노출콘크리트 전원주택 시공현장 (62평)

한글주택 현장라이브 :: 강원도 정선군

by 한글주택

강원도 정선군에 시공되고 있는 노출콘크리트 62평 전원주택을 소개하려 합니다. 노출콘크리트는 콘크리트 본연의, 특유의 멋을 느낄 수 있는데요! 그 현장을 바로 살펴보러 가보실까요?


노출콘크리트 전원주택 시공현장

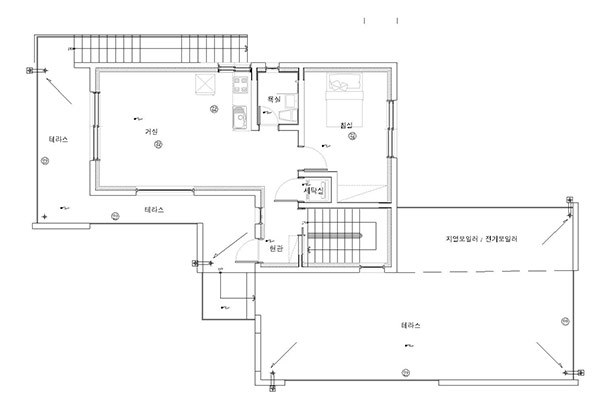
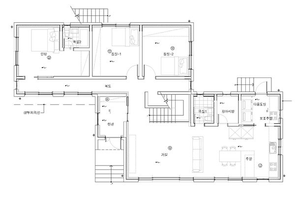
■기획설계

노출콘크리트로 시공, 계획된 사례로 넓은 창호를 여럿 두어 마을 전경을 한 눈에 담을 수 있는 주택을 그린 집입니다. 또한, 노출콘크리트는 별도의 외장재를 요구하지 않지만, 송판노출, 적삼목을 사용하여 조금 더 다채로운 느낌의 주택이 완공될 수 있도록 했습니다.
237004350_h08OYmQB_39fccf1e0ab495c1035af546fb78170694e2958f.jpg
1794414025_5IrdSL2b_bcdad6559e9f71017f8a9d31ef17d99988aee02a.jpg
237004350_Fcx36WVt_807eb0a972d1374fec30d80dd2ce631ed47c4ce9.jpg


■기초공사

237004350_qbOXR7yC_0ef7b682795cf571cc832120c96a4d941109edaa.jpg
237004350_rDICiRbU_d2c4be7a5d584c34f7fab399df0432629e33d207.jpg


■골조공사

237004350_lfFWys2b_c2bbf7c495fdeafe70c08fd1fa75b0b4f8c8e90b.jpg
237004350_zAcDxX6N_f132298f639bf4910acafdca1db8eefe6cd64810.jpg


■창호공사

1794414025_Yyw1GdDv_33c7a22bb329ab27f916417e3a0263ab3f4534d1.jpg
1794414025_ReVzbxK4_75cc178566fbfc27f37c49709fed13f7b2f52d95.jpg


■외장공사

1794414025_m9dGHlVy_3cc32034a75119e0dd94d13c29b1d39876d5d056.jpg
1794414025_cQ3Jqsbl_47d807fddae9929ae02241f9a870399ced503a31.jpg
9c4a111cda0f35699ff48b10a4386e10_1555905075_6186.jpg
9c4a111cda0f35699ff48b10a4386e10_1555905075_7161.jpg


■지붕공사

1794414025_vaC0NGwL_96ee1a14e921300eae0b0aa5fb13b5cf55c7b0bf.jpg
1794414025_9GLqRJPF_504780b2d8f4e465a685c00088da2a461b39661a.jpg


■단열, 석고공사

1794414025_1diRxMp9_1d6a19d9e2cf67dcf2ac9c006aabffe09d15aaf7.jpg


■내장공사

1794414025_aBfvUpdH_b78e6a0db46d8b722ebdd095d92d89d7c63450c1.jpg
1794414025_Rq486zL0_b83204ce274934dd43818dc05d56663076cb1bee.jpg


■입주점검 및 청소

1794414025_ug54A61z_51d8a6f3bc18e471cfcefa82f64fc73e56da4d58.jpg
1794414025_K7XpnoAN_f3257fe72973a88d56952ecb7673c457968024ba.jpg



오늘은 노출콘크리트 62평 전원주택 시공현장을 소개했는데요, 준공청소 단계에서 보여지는 고급스러운 외/내부 인테리어. 완공이 되면 어떤 모습을 하고 있을지 정말 기대되네요!


혹시, 노출콘크리트 전원주택이 궁금하신가요?

그렇다면 아래 건축상담 신청하기를 통해서 무료 건축컨설팅 받아보세요!


건축상담 신청하기 ▶ http://naver.me/FWeou5lW

한글주택 홈페이지 ▶ http://bitly.kr/HPDFLv

한글주택 유튜브 ▶ https://goo.gl/65mdXh

매거진의 이전글수익형 부동산, 전원주택 시공현장 (121평)