40평 목조주택, 충청도 시공현장

한글주택 현장라이브 :: 충청도 아산시

by 한글주택

목조주택은 콘크리트 주택보다 시공기간이 짧고, 시공금액도 비교적 저렴하기 때문에 많은 분들께서 목조공법으로 시공하고자 하시고 계십니다. 오늘은 충청도에 위치한 목조주택 시공현장을 보여드릴까 합니다.


40평 목조주택 시공현장

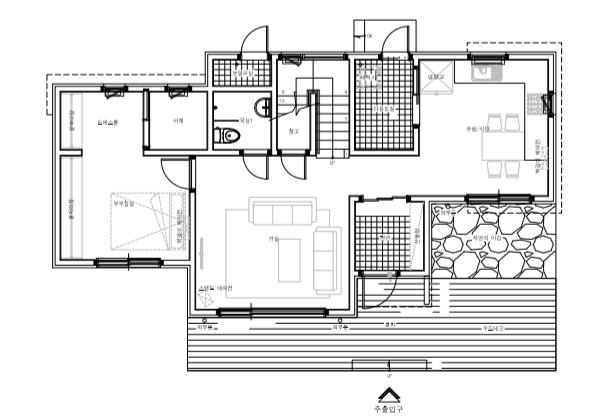
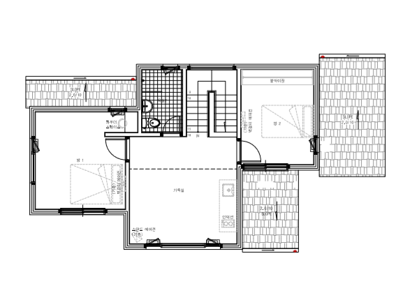
■기획설계

목조주택으로 시공된 40평대 주택으로, 창문이 많아 개방감 있으면서도 자연조명이 집 내부까지 쏟아질 수 있도록 설계한 사례입니다. 1층과 2층으로 구성되어 있으며, 외관은 스타코플렉스, 그리고 목재로 포인트를 주었습니다.
전원주택짓기.png
전원주택짓기 (4).png
전원주택짓기 (2).png
목조주택 설계/시공사례_1층 도면과 2층도면


■기초공사

전원주택짓기 (21).jpg
전원주택짓기 (18).jpg
기초공사는 목조주택, 콘크리트주택 모두 콘크리트 기초매트로 진행되고 있으며, 해당 목조주택 시공현장도 콘크리트 매트 작업으로 진행되었습니다.


■골조공사

전원주택짓기 (23).jpg
전원주택짓기 (27).jpg
현재의 외관은 타이백만 보이고 있지만 계획된 멋진 주택의 모습을 점차 찾아갈 준비를 하고 있습니다.


■창호공사

전원주택짓기 (15).jpg
전원주택짓기 (11).jpg
주택에 있어 단열 중 중요한 요소, 창호 작업 중입니다.


■외장공사

전원주택짓기 (26).jpg
전원주택짓기 (17).jpg
외장작업 중인 모습으로 주택의 외관 모습이 거의 완성되고 있습니다.
전원주택짓기 (4).jpg
전원주택짓기 (5).jpg
기단부를 파벽돌 메지작업 및 완료된 모습으로 세세한 부분이 주택에 포인트가 되어 줍니다.


■지붕공사

전원주택짓기 (13).jpg
전원주택짓기 (22).jpg
지붕 시공 중인 모습으로 지붕 마감재와 벽면의 틈 사이를 메우는 모습입니다.


■단열

전원주택짓기 (14).jpg
전원주택짓기 (12).jpg
방통타설 작업중입니다.


■내장공사

전원주택짓기 (10).jpg
전원주택짓기 (20).jpg
내장 목공사 작업 중인 모습입니다.
전원주택짓기.jpg
전원주택짓기 (2).jpg
타일 작업 중인 모습으로 점점 세련된 내부를 갖추어 가고 있습니다.


■입주점검 청소

전원주택짓기 (16).jpg
전원주택짓기 (24).jpg
벽지 및 타일 그리고 바닥재 등이 모두 완료되어 입주점검 청소 중인 모습입니다.


■완공

전원주택짓기 (25).jpg
전원주택짓기 (28).jpg
한적한 주변 풍경과 조화로운 주택이 완공되었습니다. 밝고 어두운 스타코플렉스를 사용하면서 현관에는 목재로 포인트를 준 모습입니다.

오늘은 충청도 시공현장을 둘러보았습니다. 기획 설계부터 완공까지 한번에 리뷰를 해보았는데요, 시공 단계 중 기초매트부터 입주점검청소, 완공까지의 과정은 사실 몇 가지로 추려내기가 정말 어려운 부분이 있습니다. 실상 현장에서는 정말 수백가지의 작업이 이루어지기 때문이지요.


저희 한글주택은 주택을 시공할 때 건축주님과 현장 담당 소장님과 원활한 커뮤니케이션이 가능하도록 하고 있기 때문에, 건축주 분들께서도 저희에게 믿고 맡겨주시는 것이라 생각이 듭니다. 한글주택의 목조주택 시공이 궁금하신가요? 아래 링크를 통해서 건축상담, 혹은 홈페이지에서 더 많은 주택 사례를 둘러보세요!


건축상담 신청하기 ▶ http://naver.me/FWeou5lW

한글주택 홈페이지 ▶ http://bitly.kr/wTWZrJ

한글주택 유튜브 ▶ https://goo.gl/65mdXh


keyword
매거진의 이전글노출콘크리트 전원주택 시공현장 (62평)