상가주택, 단독주택 시공현장

강원도 정선

by 한글주택

간편 건축상담 신청

오늘 소개할 주택은 1층과 2층은 근린생활시설인 상가, 3층은 거주하는 공간인 단독주택 형태의 현장입니다. 건축주님께서 원하시는 주택의 모습을 그대로 옮길 수 있도록 오랜 미팅을 통해서 설계 후 진행되는 현장이랍니다.

3층 상가주택, 단독주택 시공현장

■기획설계

해당 주택은 수익형구조로 시공된 상가주택, 단독주택입니다. 외관은 창문이 많은 형태로 시공되었는데요, 계단실에 창호가 길게 자리하고 있어 더욱 특별함이 보이는 사례랍니다.
스케치업1.jpg
스케치업.jpg
01.png
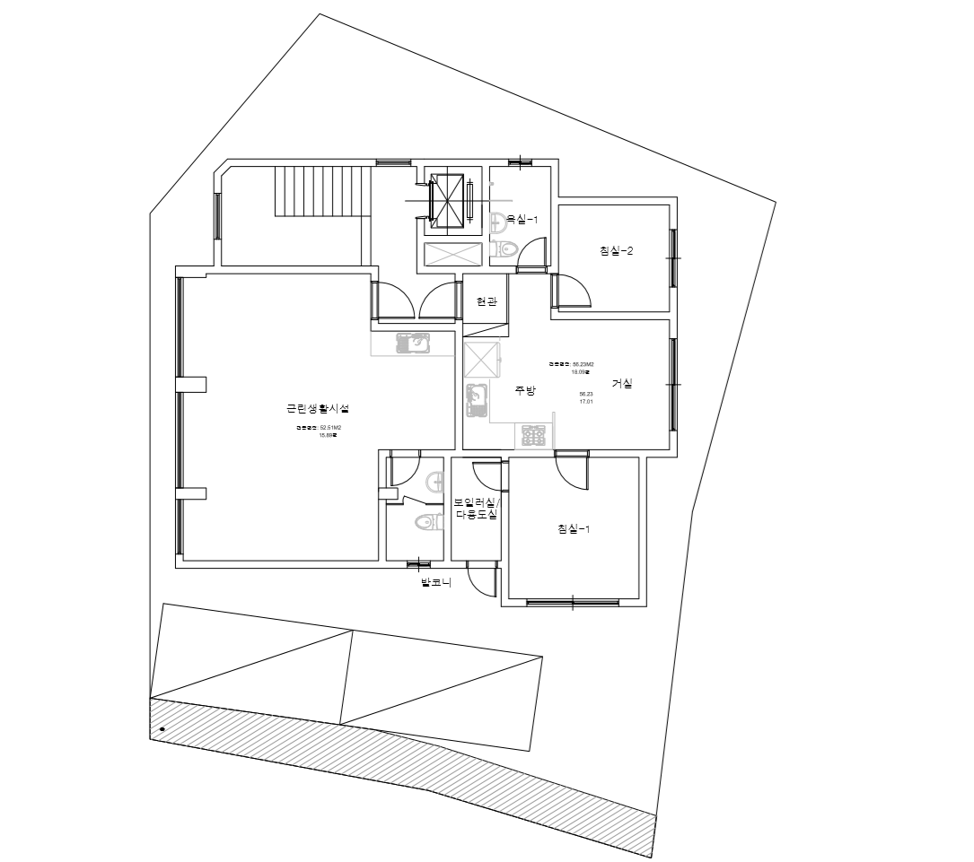
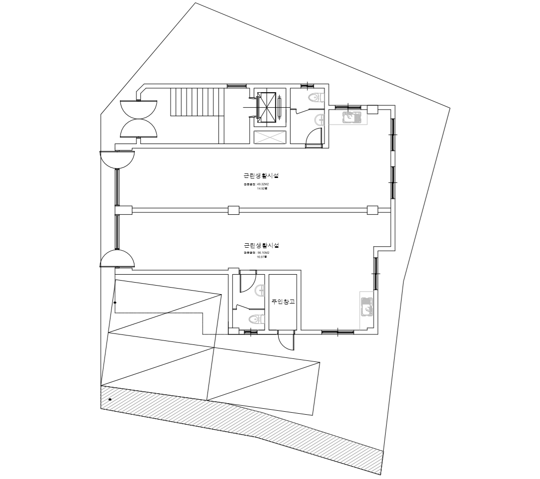
02.png
1층 / 2층 도면
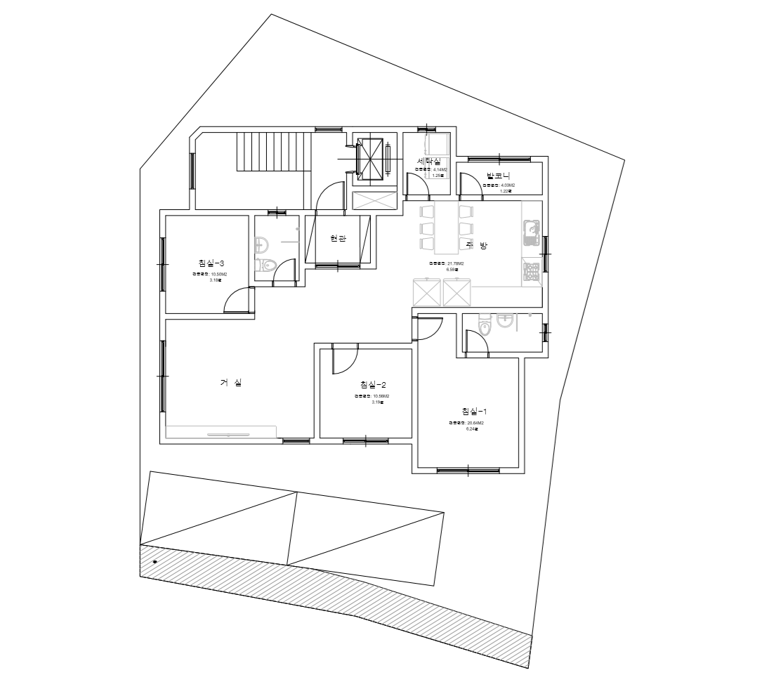
03.png 3층 도면

■규준틀 작업

규준틀 작업1.jpg
규준틀 작업2.jpg
주택 시공 전, 주택이 수평을 이뤄 시공될 수 있도록 규준틀 작업을 진행하게 됩니다.


■파일작업

파일작업2.jpg
파일작업1.jpg
파일작업은 규모가 있는 주택을 시공할 때 조금 더 튼튼하게 지지할 수 있도록 기둥을 땅 속에 세우게 됩니다.


■기초공사

기초매트_1.jpg
기초매트.jpg
기초매트 공사
기초매트 취부1.jpg
기초매트 취부.jpg
기초매트 위 단열재 취부 및 먹메김 작업을 진행하고 있습니다.
기초 철근, 거푸집 작업 1.jpg
기초 철근, 거푸집 작업.jpg
기초철근 작업, 거푸집 작업이 진행됩니다.

오늘은 한글주택의 시공 현장을 소개했는데요! 해당 주택은 수익형구조이기 때문에 노후걱정을 덜어낼 수 있답니다. 특히나 수익형주택인 상가주택, 다가구주택 등은 종합건설에서만 시공이 가능한데요, 저희 한글주택은 종합건설면허를 보유하고 있으니 궁금한 부분이 있으시다면 무료 건축상담을 통해서 궁금증 해결하세요!


무료 건축 컨설팅 신청하기

keyword
매거진의 이전글40평 목조주택, 충청도 시공현장