가평 전원주택 짓기, 현장으로 초대합니다.

by 한글주택

지긋지긋한 도심 생활을 뒤로하고, 도심가 가깝지만 자연과는 더욱 가까운 경기도 가평에 위치한 전원주택 시공 현장. 궁금하시죠? 지금 바로 여러분들을 초대합니다 : )


경기도 가평 전원주택 짓기

■기획설계

공기 좋고, 물 좋은 경기도 가평에 전원주택을 짓고자 건축주님과 머리를 맞대어 계획하였습니다. 콘크리트 공법, 2층 규모 30평대로 계획한 주택을 시공하게 되었습니다.
스케치업.png
형태.png
주택 외관 계획
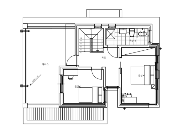
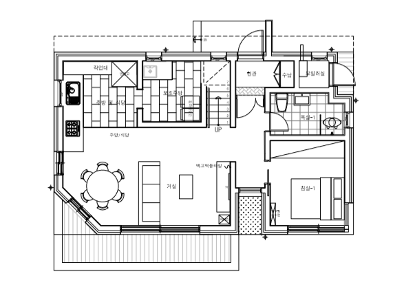
도면2.png
도면1.png
도면 1층 / 2층


■ 현장 건축주님 미팅 _ 경계측량, 가설전기 요청작업 진행

KakaoTalk_20190326_163431520_02.jpg


■골조공사

KakaoTalk_20190402_173125761_01.jpg

골조공사 진행중인 모습입니다. 콘크리트 공법은 계획한 주택의 형태 그대로 시공하기 위하여 거푸집 작업을 진행하게 됩니다. 또한 콘크리트 공법은 콘크리트를 굳히는 시간이 필요하여 시간이 소요됩니다.


KakaoTalk_20190406_105656272_01.jpg

슬라브 거푸집 작업과 단열재를 설치하는 작업이 진행중입니다. 단열재는 전원주택의 따스하게 유지시켜주기 때문에 굉장히 중요한 작업이지요 : )


외관_아시바1.jpg
외관_아시바.jpg

콘크리트가 모두 굳고 나면, 거푸집을 해체하고 외장 작업을 위하여 비계를 설치하게 됩니다. 이 비계라는 것은 '아시바'라고도 불려지며, 작업자는 이 구조물을 밟고 외장 작업을 진행하게 됩니다.


■창호작업

1794414025_Z6ytzew3_53e13cfacd0d6a0f0415701fdcc675432a3d1ac3.jpg
창호작업1.jpg

창호 또한 단열에 속하는 요소이기 때문에 중요한 작업이지요. 해당 사진은 창호 시공하는 모습입니다 : )


■지붕공사

KakaoTalk_20190803_162526860_07.jpg
KakaoTalk_20190803_162526860_09.jpg


■내부공사

내부가구공사_0727_3.jpg
내부가구공사_0727_1.jpg
내부가구공사_0727_4.jpg
내부가구공사_0727_2.jpg

내부 인테리어 공사 및 가구 공사가 진행되고 있느 모습입니다. 얼핏 보여지는 인테리어 때문에 더욱 기대되지 않나요?


■준공청소 완료

KakaoTalk_20190729_191239783_01.jpg
KakaoTalk_20190729_191239783_02 (1).jpg
KakaoTalk_20190729_191239783_07.jpg
KakaoTalk_20190729_191239783_03.jpg
KakaoTalk_20190729_191239783_08.jpg
KakaoTalk_20190729_191239783_11.jpg

많은 창호와 감성이 담겨진 내부 인테리어가 깔끔하게 완성되었으며, 준공 청소까지 마무리 되었습니다.


외관_0727_3.jpg
KakaoTalk_20190803_162526860_01.jpg


외관의 전체적인 모습과, 완성된 전원주택으로 들어서는 현관 디테일의 모습입니다. 외장은 스타코플렉스와 벽돌로 마감하여 친근하면서도 세련된 느낌을 줍니다 : )



오늘은 경기도 가평의 전원주택 현장을 소개해 드렸는데요, 모든 공정을 다 담기에는 힘들지만 현장의 생동감이 담긴 사진으로 소개드렸습니다.


저희 한글주택을 믿고 맡겨주신 경기도 가평 전원주택 건축주님에게 감사드립니다!


한글주택의 전원주택 시공이 궁금하시다면 아래

'무료상담'을 통해서 전문 건축 컨설팅 받으세요!

▶무료 전문 컨설팅 신청하기◀

keyword
매거진의 이전글상가주택, 단독주택 시공현장