서울 다가구주택 현장 둘러보기

by 한글주택

서울에서 내 집을 마련한다는 것은 정말 힘들지요. 때문에 많은 분들께서 토지를 구매하시고, 수익형 구조의 주택을 계획하고 계신답니다. 오늘 소개하는 현장도 마찬가지로 수익형 구조로 시공되는 서울 현장이랍니다. 그럼, 생생한 현장 속으로 바로 가보실까요?


완벽한 수익형 구조, 서울 다가구주택

■기획설계

지하 1층~3층으로 계획된 총 4개층으로 계획한 다가구주택입니다. 지하 1층은 연면적에 미포함되어 총 60평형이며 주차는 총 3대가 가능한데요, 서울에 위치한 주택을 접근성이 좋은 수익형 구조 건축물이라고 할 수 있겠습니다. 수익형 구조인 다가구주택은 많은 세입자들이 들어설 것이기 때문에 건물 외관의 미적 요소를 고려해야하는 점과 동선, 내부 구조 등을 모두 고려하여 시공해야지만 좋은 거주지로 판단되어 공실이 없는 주택으로 거듭날 수 있기 때문에 건축주님의 의견을 토대로 한글주택의 각 분야 설계팀, 인테리어팀, 시공팀의 전문가가 함께 계획/실행하고 있는 현장입니다.
서울다가구주택_현장라이브_0.png
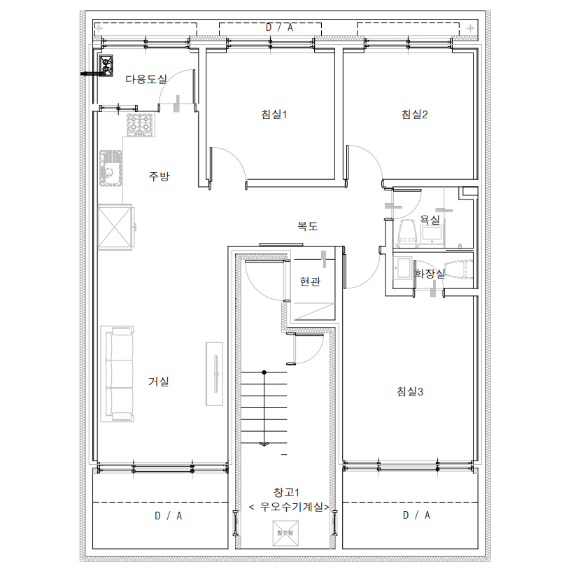
방배동_기획설계_02.png
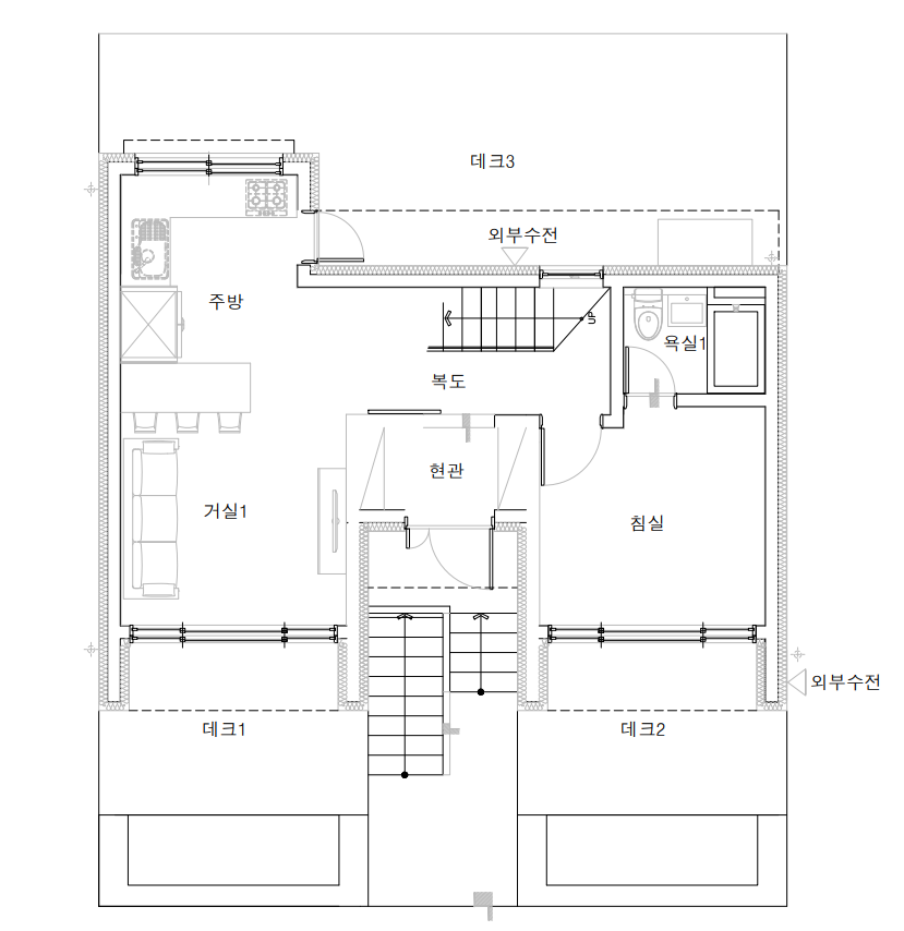
지하.png
1층.png
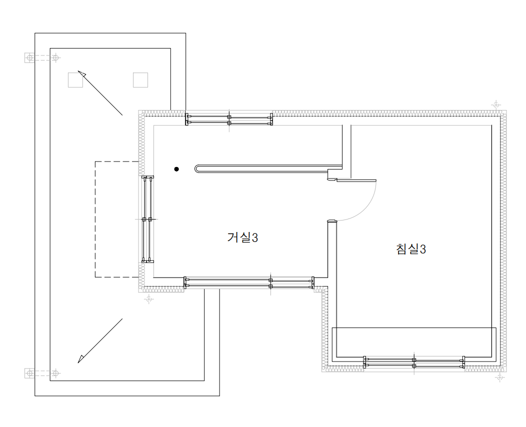
지하 1층 도면 / 1층 도면
2층.png
3층.png
2층 도면 / 3층 도면

■기초공사

서울 다가구주택_1.jpg
서울 다가구주택_3.jpg


기초공사는 목조주택, 콘크리트주택 모두 '콘크리트'로 진행하게 됩니다. 해당 주택도 기초 매트리스 공사를 진행하게 되었으며, 기초 매트 위에는 하부 단열재를 작업을 진행하게 됩니다.


■골조공사

서울 다가구주택_1.jpg


콘크리트주택의 경우에는 타설 후 굳히는 작업이 진행되기 때문에, 목조공법 보다는 시간이 오래 걸리게 됩니다. 해당 사진들은 주택의 골조 형태가 완성이 된 모습입니다. 또한, 작업자들이 외벽 공사를 할 수 있도록

'비계' 또는 '아시바'라고 불리는 구조물을 설치하여 단열재 작업, 외장재 작업을 하게 됩니다.


■외장공사

외장공사.jpg
지붕공사.jpg

앞서 언급한 것처럼 외부 공사를 하기 위하여 아시바를 설치하여 작업을 진행하는 모습을 확인하실 수 있습니다. 사진에서는 외벽에 단열재 작업을, 지붕작업을 진행하는 모습입니다.


■내부공사

내장공사.jpg
내부 가구 공사_01.jpg
데코타일시공_03.jpg

내부의 경우에는 바닥 단열, 벽면 단열, 석고보드 작업 등 진행이 완료되면 이후에 인테리어 공사를 진행하게 되지요. 사진에서는 주방과 바닥면 데코타일을 시공하고 있는 모습입니다. 아직 완성되기 전이지만 벌써부터 기대가 되는 모습이네요 : )


중문 설치_02.jpg
등기구 설치_05.jpg

이 외에도 중문 설치, 등기구 등을 설치하여 건축주님과 계획했던 모습이 점점 드러나고 있습니다.


외부 난간설치_01.jpg
외부 난간설치_03.jpg

해당 주택은 지하층부터 구성되어 있으며, 습하고 답답한 지하층이라는 점을 고려하여 지하층 테라스 천정이 오픈된 형태이기 때문에 별도의 난간을 설치하는 모습을 보실 수 있습니다.


오늘은 한글주택의 완벽한 수익형 구조, 서울 다가구주택 현장을 찾아가 보았는데요! 어떠셨나요? 이 글을 보시는 시점에는 조금 더 진행이 많이 되었을거라 예상되어 조만간 완공된 모습을 만나실 수 있겠습니다.


소중한 보금자리를 종합건설 한글주택에 믿고 맡겨주신 건축주님께 감사인사 드립니다.


종합건설 한글주택 상담신청 바로가기

http://bit.ly/2nlEN9c

keyword
매거진의 이전글가평 전원주택 짓기, 현장으로 초대합니다.