발트하임, 고급스러운 전원주택

한글주택 Brunch E16 [경기도 가평]

by 한글주택

Brunch E16

오늘 소개할 주택은, 고급전원주택입니다. 이 주택은 한글주택을 대표하는 주택이라고 할 수 있지요. 이름은 '발트하임'이며, 경기도 가평에 위치한 타운하우스 중 1등으로 뽑힌답니다. 아름다운 외관 뿐만 아니라 전원주택에서 생활을 하기 위해 모든 것이 갖추어져 있지요. 그럼 자세히 살펴보러 가보실까요?


발트하임 (60).JPG

건축정보

대지위치 : 경기도 가평

건축공법 : 외단열 콘크리트

총 평수 : 180.76㎡[54.73py]

1층 : 101.82㎡ [30.83py]

2층 : 78.94㎡[23.90py]


[인테리어 정보]

창호 : 독일식 시스템창호
외장 : 베이스판넬, 적삼목, 드라이비트
내장 : 천연마루, 대리석, 도배, 도장
가구 : 제작


발트하임(Waldheim)이라는 이름은 독일어로 '숲속의 집'이라는 뜻입니다. 경기도 가평의 깨끗하고 맑은 공기와 자연과 한층 더 잘 어우러지는 모습을 확인하실 수 있습니다. 1층에 넓은 마당과 수영장, 그리고 적삼목 외장재가 포인트인 테라스가 입체감을 더해줍니다. 2층의 테라스는 한글주택의 주택 특징을 담아내고 있기도 하지요. 한글의 자음인 'ㄷ'과 'ㅁ'이 보여지는 모습이 보이시나요?


발트하임 (52).JPG
발트하임 (51).JPG
경기도 가평 발트하임 야외 수영장

야외 수영장은 아주 큰 형태는 아니지만, 다가오는 무더우 여름에 더위를 식히며 가족들과 오붓한 시간을 보내기에 딱 좋은 공간이랍니다. 주변 자연을 만끽할 수 있겠지요?


발트하임 (23).JPG

집 내부 또한 고급스러움이 묻어나는 전원주택임을 아실 수 있습니다. 바닥재는 대리석으로 시공하였으며 천정은 우물천정으로 시공한 모습입니다. 거실과 주방은 구분이 되어 있지만, 서로 소통하기에 편리하도록 시공하 모습이 돋보이네요.

발트하임 (30).JPG
발트하임 (31).JPG
거실에서 바라본 계단실 전경 뒤로 주방, 마당이 보인다.
발트하임 (25).JPG 창이 넓은 고급스러운 전원주택의 거실

거실에는 큰 창호가 있는데요, 앞서 보셨던 마당의 작은 수영장이 한 눈에 들어옵니다. 거실에서도 마당과의 소통을 얼마든지 할 수 있도록 설계/시공한 사례입니다.


발트하임 (27).JPG
발트하임 (28).JPG
발트하임 (29).JPG
화려한 듯 세련미가 강조된 주방

이렇게 고급스러운 전원주택의 주방은 어떤 모습일까요? L/D/K 형태로 가족들과 커뮤니케이션이 원활하도록하고, 화려한 듯 세련된 조명과 동선을 고려한 센스있는 조리대로 구성되어 있습니다.


발트하임 (39).JPG
발트하임 (57).JPG
아름다운 저녁을 더욱 특별하게 해주는 테라스 전경

1층은 가족들이 함께 생활하기 좋은 공간이라면 2층은 개인공간, 힐링공간으로 이루어져 있습니다. 특히 테라스는 가평의 멋진 풍경을 그대로 담아내 더욱 특별한 공간입니다.


발트하임 (35).JPG 아늑한 나만의 영화관

작지만 아늑한 영화관이 우리집에 있으면 좋겠다는 생각은 한번 쯤 생각 해보셨을 텐데요, 오늘 소개하는 발트하임에는 아늑한 영화관이 마련되어 있습니다. 영화 시청 시 오랜 시간을 보내야 하기 때문에 전체적으로 눈과 마음이 편안한 톤 다운된 벽지와 목재로 시공했습니다.


발트하임 (37).JPG 생각이 트이는 서재

서재의 두 벽면이 통유리로 시공되어 바깥 풍경을 고스란히 담아내는데요, 이 공간에서는 독서는 물론이며 업무를 보더라도 아무 무리가 없어보입니다.


발트하임 (34).JPG
발트하임 (33).JPG
편안함이 느껴지는 침실

침실은 숙면을 취하는 공간으로 '편안함', '아늑함'이 굉장히 중요합니다. 더불어 환기가 잘 되는 것도 빠질 수 없겠지요. 예쁜전원주택인 발트하임은 편안하고 아늑함을 위해서 목재로 시공한 모습이며, 창을 여럿 두어 환기가 잘 되도록 시공했습니다. 더불어 침실에서 통하는 별도의 테라스가 더 있어 어디서든 자연을 느낄 수 있습니다.


아, 그리고 한 가지 더! 바깥 풍경을 보며 목욕 또는 반신욕을 즐길 수 있는 욕조가 들어서 있습니다. 아파트에서는 찾아보기 굉장히 힘든 형태로 전원생활에서 누릴 수 있는 요소들이 많이 반영된 모습을 확인할 수 있습니다.


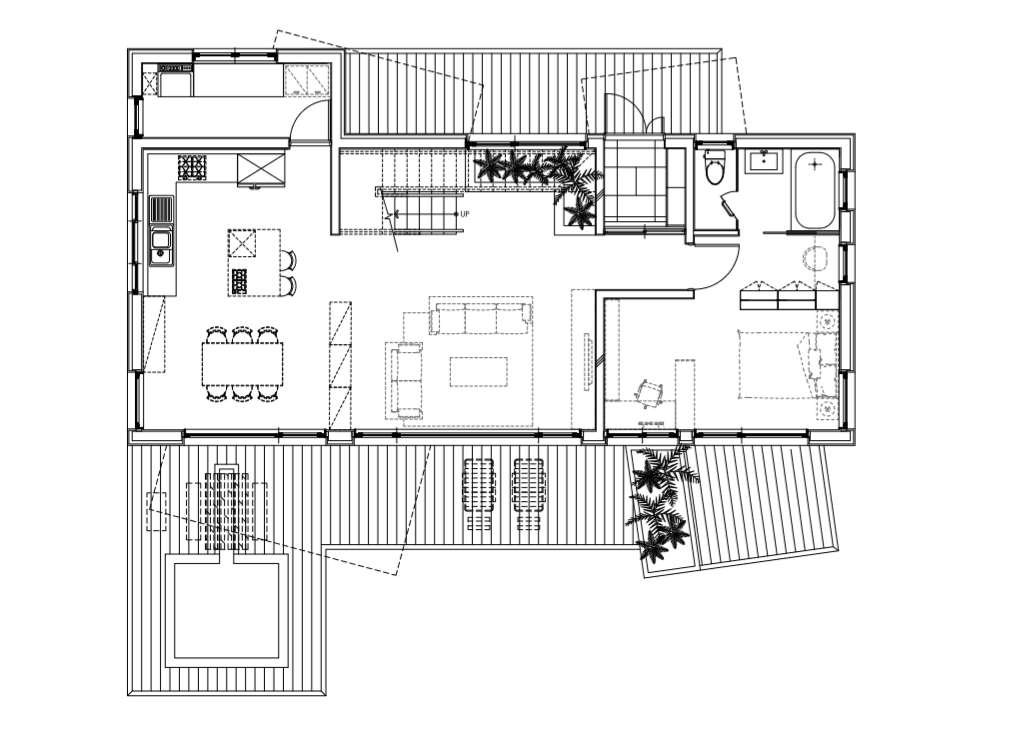
도면1.png
도면 2.png
좌 : 1층도면 / 우 : 2층도면



오늘은 한글주택의 대표 모델 중 하나인 고급 전원주택 '발트하임'을 소개해드렸는데요, 고급스러운 타운하우 이름에 걸맞게 전원주택 생활을 만끽할 수 있는 요소를 모두 담은 사례랍니다. 한글주택의 특별함이 담긴 주택이 궁금하시다면 아래 링크를 통해서 더 자세히 알아보세요!


건축상담 신청하기 ▶ https://bitly.ws/32Ma4


keyword
매거진의 이전글예쁜전원주택, 탁 트인 전망을 갖춘 집짓기