수익을 부르는 상가주택 시공하기

한글주택 Brunch E04 [강원도] 콘크리트주택

by 한글주택

한글주택 Brunch E04


수익을 부르는 상가주택, 많은 분들이 관심을 두고 계실텐데요. 대게 상가주택은 아랫층은 상점, 윗쪽으로는 단독주택으로 시공하게 됩니다. 이렇게 진행되면 거주할 곳이 해결됨과 동시에 세입자들로 인하여 수익을 창출하게 되지요. 하지만 오늘 소개할 사례는 1층 상점, 2층 단독주택 모두 건축주님이 사용하시는 상가주택 사례랍니다.


_LEE6527.jpg

[건축정보]

대지위치 강원도

대지면적 278.00㎡

연면적 168.09㎡

건폐율 33.94%

용적률 60.44%

건축구조 철근콘크리트조

건축규모 지상 2층

총 면적 168.03㎡ (51PY)

1층면적 84.87㎡ (26PY) 근린생활시설

2층면적 83.16㎡ (25PY) 단독주택

외장재 노출콘크리트


한적한 강원도에 위치한 상가주택 '슈네'입니다. 해당 상가주택은 건축주님이 직접 운영하는 화덕피자 전문점, 그리고 2층에 단독주택은 직접 거주를 하시고 계신답니다. 상가주택은 기본적으로 수익을 내고자 하는 수단이 되기 때문에 멋진 외관과 실용적인 공간 구성도 참 중요하답니다. 이 주택의 외장재는 노출콘크리트로 시공되어 콘크리트본연의 자연스러움, 견고함을 느낄 수 있는데요! 주변 자연과도 굉장히 잘 어우러지는 모습입니다.


상가주택_LEE6531.jpg

상가주택 뒷편에는 테라스가 있어 자연을 바라보며 화덕피자를 즐길 수 있기 때문에 강원도에 놀러오시는 분들의 맛집 필수 코스가 되었답니다.

주방1층.jpg

주방 내부는 자세히 나와있지 않지만, 바쁜 시간대에도 동선이 편하도록 하였으며, 위생관리를 철저히 하고 있는 것을 오픈한 형태로 시공되었습니다. (이후 도면 참고해주세요)


근린생활시설1.jpg

상가주택 내부는 외관의 모습과는 조금 다르게 아기자기하면서 부드러운 느낌을 전해줍니다. 또한 테라스에서 뿐만 아니라 내부에서도 경치를 바라볼 수 있도록 큰 창을 낸 것이 특징입니다.


상가주택2층거실.jpg

위 사진은 건축주님께서 거주하고 계시는 공간의 거실입니다. 상가에서도 자연을 만끽할 수 있지만, 거실에서도 자연을 즐길 수 있도록 포치가 들어서 있습니다.

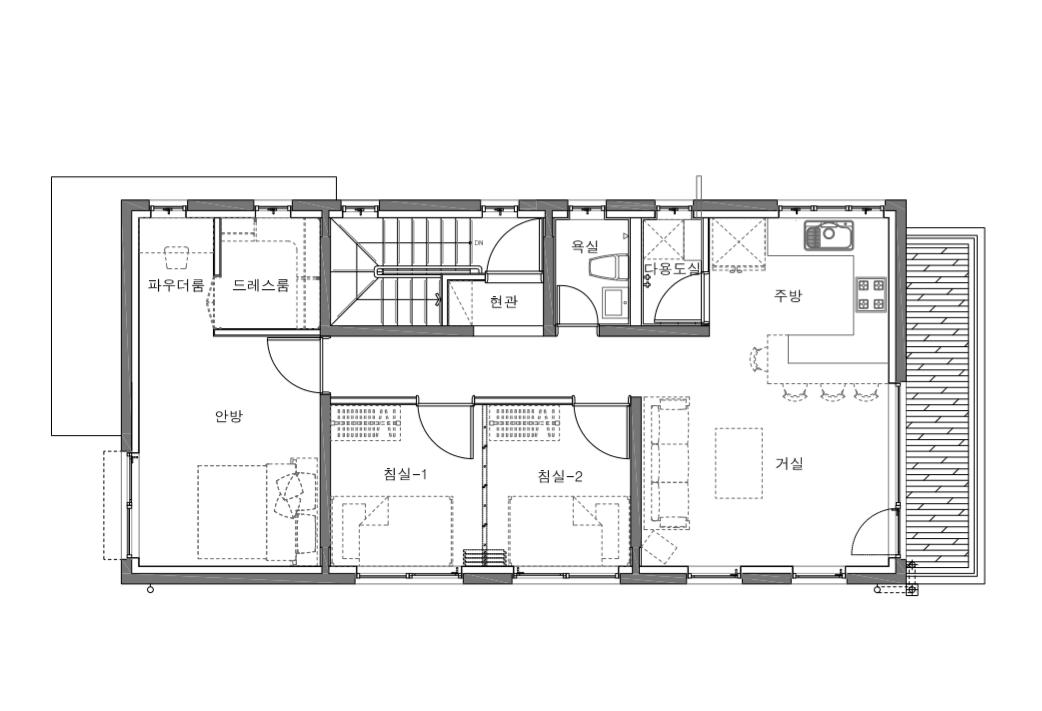
슈네 1층.png [한글주택] 상가주택 슈네_1층 도면
슈네 2층.png [한글주택] 상가주택 슈네_2층 도면



오늘은 상가주택 사례를 둘러보았는데요, 세입자를 들이는 상가주택 시공도 굉장히 많지만, 직접 운영/거주를 위한 상가주택 시공문의, 사례도 점점 상승하고 있습니다 : )


저희 한글주택은 상가주택/다세대주택, 다가구주택 등 여러 형태의 주택을 시공하고 있는데요! 수익을 창출하는 상가주택이 궁금하시다면 건축상담 신청을 통해서 무료 컨설팅 받으세요!


건축상담 신청하기 ▶ http://naver.me/FWeou5lW

한글주택 홈페이지 ▶ https://goo.gl/QDhsUf

한글주택 유튜브 ▶ https://goo.gl/65mdXh


keyword
매거진의 이전글블랙&화이트의 대비, 모던전원주택