BEST 풍수지리 목조주택은?

한글주택 건축가이드 - 풍수지리 집짓기

by 한글주택

한글주택 간편견적 신청하기

목조주택_풍수지리_썸네일.jpg


우리 조상님들의 지혜에서 비롯된 '풍수지리'

어느정도 알고 계신가요?


오늘은 풍수지리적으로 보았을 때

한글주택에서 시공한 사례 중 가장 이상적인

목조주택을 소개하려 합니다.


과연 어떠한 부분이 풍수지리로 보았을 때

어떠한 요소가 풍수적으로 주택에 좋은 영향을 미치는 것인지

살펴보도록 하겠습니다.




목조주택_풍수지리_1.jpg

[건축정보]

건축공법 경량목구조

1층 103.19㎡ [32.21PY]



지붕
목조주택_풍수지리_3.jpg


요즈음 주택은 지붕을 선택하지 않는 경우도 많지만 지붕은 하늘의 기를 담는 공간으로 여겨지기 때문에 풍수적으로 보면 중요한 요소라고 할 수 있다. 단 좌우의 균형이 맞아야 한다.

균형 잡힌 지붕이 있는 집에서는 하늘의 기운을 받아 훌륭한 인물이 태어난다고 해석한다.

이 집은 지붕이 균형 잡혀 보여 풍수적으로 좋은 지붕을 지니고 있다고 본다.



터의입지
목조주택_풍수지리_2.jpg


사진으로 보아서는 집 뒤가 계곡(溪谷)으로 보인다. 계곡이 아니라면 상관없다.

계곡이 아니라면 배산임수(背山臨水)가 이루어진 것으로 보여지는데, 굉장히 좋은 입지라고 할 수 있다.

계곡은 눈에 보이지 않아도 땅속으로 물이 내려오기에 습하고 지하에서 세굴현상(洗掘現想)이 일어날 수도 있다. 배산임수는 산을 등지는 것이지 물이나 계곡을 등지는 것이 아니다.

또한 계곡 앞에 집을 지으면 바람의 영향을 받는데 이를 풍살(風殺)이라 부른다.


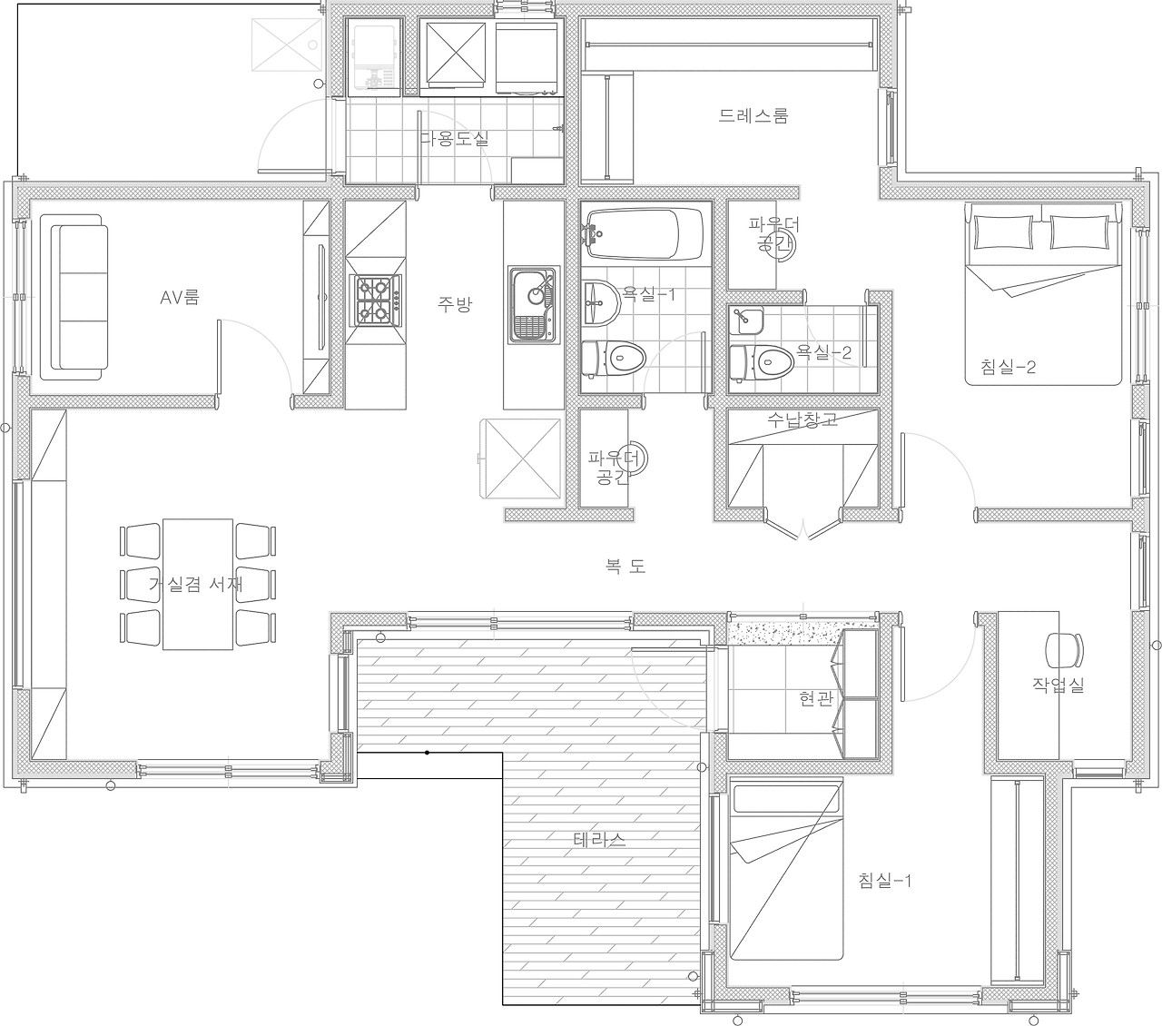
집의 형태


목조주택_풍수지리_6.JPG
목조주택_풍수지리_7.JPG
목조주택_풍수지리_도면.jpg


이 집은 기역자집의 형태이다. 기역자집일 경우 뒷쪽에 공간이 넓은 건물이 배치되어야 하는데

굉장히 잘 배치된 집이라고 볼 수 있다. 이 집은 뒷면으로 집의 공간이 넓은 부분이 자리하여

안정감이 돋보인다. 지붕도 안쪽건물의 지붕이 높을수록 좋다.

전체적으로 단순하지만 느낌 심플하다. 앞 축대에 작은 풀꽃을 심어 튀어나온 바위들을 가리면

금상첨화인 목조주택이 될 것이다.


정보제공 한글주택

자문 안종선 교수


오늘은 한글주택의 완공사례 중

풍수지리로 보았을 때 좋은 주택의 요소를 소개해 드렸는데요,

목조주택을 시공하려 하시는 분들에게 많은 도움이 되셨으면 좋겠습니다!

앞으로도 풍수지리로 보았을 때 어떠한 주택이 좋은 것인지

소개해 드리도록 하겠습니다 : )


한글주택 무료 전문컨설팅 신청하기



keyword
매거진의 이전글전원주택 지붕의 종류, 장단점은?