풍수지리 콘크리트 전원주택 BEST!

by 한글주택
풍수지리-전원주택_01.jpg

풍수지리를 아시는 분들이라면 전원주택을 시공 할 때에도 풍수를 적용하고자 하실텐데요!

한글주택에서 시공한 콘크리트 전원주택 중 풍수지리 요소로 바라보았을 때 어떠한 부분이 풍수적으로 좋은 요소를 갖추고 있는 것인지 살펴보려 하는데요, 그 중에서도 BEST로 뽑힌 주택을 소개하겠습니다!



한글주택 완공사례 중
풍수지리 BEST 집은?

콘크리트 전원주택

_96A7632.jpg 경주에 위치한 노출콘크리트 주택, BEST 풍수지리 주택으로 선정되었다.

심플함


단순한 주택의 외관은 장점이 많다. 설계와 시공도 유리하지만 풍수적으로 기의 흐름에 장애가 없다.

외관이 화려하면 굴곡이 많고 함몰된 부분이 많아진다. 함몰된 부분은 기의 흐름을 파단하거나 거스르고 충(冲)의 작용을 가져옮으로서 거주자의 건강을 위협한다.



1층과 2층의 비율/균형

2층의 규모가 지나치게 작아도 기의 흐름에 좋지 않은 영향이 생긴다. 2층이 1층에 60%정도 배정 되었으므로 기의 운용이 효율적이다. 건물은 우람하고 통통해야 재산이 들어온다. 지나치게 길거나 좌우의 균형이 1:2가 넘으면 빈상이라 하여 돈이 새는 집으로 판단한다. 이 건물은 좌우의 균형이 좋으며 2층이 구조도 매우 안정적이다.


_96A7647#.jpg
_96A7650#.jpg
_96A7676#.jpg
_96A7755#.jpg


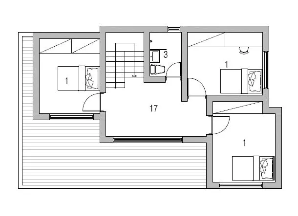
풍수적으로 좋은 내부설계


내부의 문과 창문이 모두 빗겨 있는 것을 확인할 수 있다.

내부 각각의 문이 마주치면 기의 대립이 일어나며, 그 방에 머무는 사람과 사람의 대립도 마찬가지다. 이 건물의 문은 대립을 피하고 있기 때문에 매우 좋은 설계가 이루어졌다고 판단된다.


정문에서 화장실이 보이면 거주하는 사람들에 대한 헛소문이 나는 것으로 정의한다. 일반적으로 문을 열고 들어서면 정면에 화장실이 있는 경우가 많지만, 이 전원주택은 문을 열고 안으로 들어서도 화장실이 정면으로 보이지 않는 구조를 지니고 있다.


금장리1층.JPG
금장리2층.JPG
1층 도면과 2층도면

여기까지 한글주택이 시공한 콘크리트주택 중 풍수적으로 균형잡힌 주택을 소개해 드렸는데요!

혹시, 전원주택 시공하실 때, 풍수까지 고려하고 싶으신가요?

그렇다면 지금 바로 상담 받아보세요!


무료건축상담 신청하기▶

keyword
매거진의 이전글전원주택 짓기 전 '자주 묻는 질문'