'건축상 수상' 기적처럼 지어진 서울 협소주택

by 한글주택
좌측 야경_re.jpg

오늘 소개할 주택은, 얼마 전 서울특별시 건축사회에서 진행된 2019 서울, 건축산책 : 건축사와 함께하는 우리동네 좋은집 찾기 공모전에서 수상을 받은 수상작 <ㅅㅣㄴ: THIN>집을 소개하려 합니다. 이 주택은 서울에 아주 협소한 땅에 시공된 주택인데요, 건축주님의 스토리와 함께 주택을 소개해 드리도록 하겠습니다.


한글 건축사사무소 이관수 소장님 수상작<ㅅㅣㄴ>집과 함께


삐뚤빼둘 못생긴 땅에 기적


20190902_131926.png

건축주님과 사무실에서 첫 미팅을 하면서, 위성 지도에 나온 땅은 너무나도 협소했습니다. 하지만 건축주님은 이 땅 위에 다가구주택이면서 어디서도 볼 수 없는 독특한 평면도를 원하셨지요. 작아도 너무 작은 공간이기 때문에 설계를 잘 해야하는 상황이였습니다. 더불어 독특한 평면을 원하셨기 때문에 건축주님의 소망을 되새기며 현장에 방문하게 되었습니다.


방문한 현장은 전면 도로의 경사가 급하며, 주차 공간까지도 협소했습니다. 그래도 불가능은 없다.

이 곳에 오래 거주했던 평판이 좋은 건축주님, 그리고 이관수 소장님의 계획을 실현시켜준 각 공정의 담당자들의 노력으로 인하여 많은 민원을 뚫고 건축주님의 원하는 협소한 대지 위에 '독특'한 다가구주택이 완공되었습니다.


서울 협소한 땅의 기적,
ㅅㅣㄴ : THIN 다가구주택




신림01.jpg

해당 협소주택의 이름은 <ㅅㅣㄴ>입니다. 새롭다는 의미의 新의미도 담고 있지만, 보시는 것처럼 협소한 공간에 사다리꼴 모양으로 길게 지어진 집의 날씬한 형태를 보고, ㅅㅣㄴ: THIN 이라고 지어졌습니다. 정북 방향 계획에 따라서 수직동선의 위치 선정과 아래-위/안-밖의 공간을 계단 중심으로 구성하였습니다.


096A1516_수정.jpg

[건축정보]

대지위치 서울특별시 관악구 신림동

용도 단독주택, 다가구주택

구조 철근콘크리트

대지면적 132㎡

건축면적 67.76㎡

연면적 147.34㎡

건폐율 51.33%

용적률 111.62%

규모 3층+다락


계획한 것처럼 협소한 대지 위에 시공된 협소주택이자 다가구주택의 모습입니다. 이름에 걸맞게 날씬한 주택의 외관, 그리고 新이라는 의미와도 잘 맞아 떨어지는 주변 주택과는 비교되는 새로운 모습이지요. 주차 공간이 부족하기 때문에 필로티 주차장을 두었으며, 각 층별로는 큰 창호와 테라스가 있어 자칫하면 답답할 수 있을 공간이 탁 트여보일 수 있도록 하였습니다.


1층.JPG 1층은 원룸형태이지만, 층고가 높고 창호가 많아 답답함이 없는 공간이다.
2층 거실.JPG
096A2459.JPG
096A2395.JPG
2층은 스킵플로어 형태로 거실과 주방이 나뉘며, 옥탑방이 있는 구조이다.
096A1771.JPG
096A2631.JPG
096A2612.JPG
3층은 다락방이 있으며, 다락방은 옥상으로 연결된다.

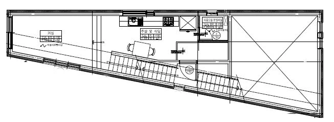
1층은 층고가 높은 원룸 형태로, 2층은 테라스를 갖춘 복층형 공간으로, 3층은 방이 있는 공간과 다락방이 있는 형태로 계획하였는데요, 사진만 보아도 정말 어디에서도 볼 수 없는 특별한 도면입니다. 각 세대의 내부 계단을 형성하여 불필요한 공간이 없도록하고 단조로운 계획을 배제하였습니다.


신림1층.JPG 1층도면
신림2층.JPG 2층도면
신림3층.JPG 3층도면
신림옥탕.JPG 다락도면

오늘은 한글주택의 수상작인 협소 다가구주택을 소개해 드렸는데요, 어떠셨나요?

정말 협소한 땅임에도 불구하고, 다가구주택을 시공할 수 있었던 것은 건축주님의 희망과 그 희망을 실현시킨 한글건축사사무소 이관수소장님, 그리고 모든 공정별 담당자 분들의 덕이 아닐까 싶습니다.


한글주택은 모든 건축주님의 공간을 고민하고 또 고민하여 최적의 주택을 설계하고 시공합니다. 콘크리트/목조주택전문 종합건설 한글주택과 전원주택 계획을 그리고 싶으시다면 무료 건축상담 신청하세요!

한글주택 무료건축상담 신청하기


keyword
매거진의 이전글세컨하우스 개념의 숲 속의 전원주택