고요함을 담아낸 전원주택

by 한글주택

전원주택의 삶은 많은 분들의 로망이지요. 오늘은 고요함이 느껴지는 전원주택 완공사례를 소개하려 합니다. 아직 입주 전이기 때문에 가구들이 완벽하게 들어오지 않아 온기가 느껴지지 않음에도 불구하고, 전원주택의 삶이 그려지는 주택이니 전원주택 생활을 꿈꾸시는 분들은 주목하시면 좋겠습니다 : )


고요함을 담아낸 전원주택

[건축정보]

건축위치 경기도

대지면적 327.00㎡

건축규모 지상 2층

건축구조 철근콘크리트

건축면적 65.05㎡

연면적 112.27㎡

건폐율 법적 20%이하 /계획 19.89

용적률 법적 80% 이하 / 계획 34.33%

최고높이 6.85M

지상 1층 65.05㎡ (19.68py)

지상 2층 47.12㎡ (14.25py)

총 면적 112.17㎡ (33.93py)


주택 외장재 자체의 조화와 주변 자연과의 조화가 굉장히 좋다고 느껴지는 외관을 갖은 이 주택은, 철근콘크리트 공법으로 총 34평으로 시공된 주택입니다. 외장재는 스타코플렉스의 컬러에 대비를 두었으며, 벽돌 마감으로 포인트를 준 모습을 확인할 수 있습니다. 더불어 이 주택의 매스감이 굉장히 독특하다고 할 수 있는데요, 길고 짧은 매스의 만남으로 'ㄱ'형태로 시공되어 조금 더 독특하면서 입체감 있는 주택으로 탄생하였습니다.


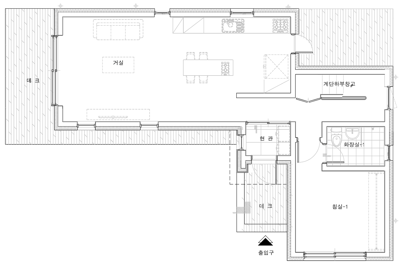
거실에는 전원생활을 만끽할 수 있도록 많은 창문이 있는 모습을 확인하실 수 있습니다. 마당과 연결되는 큰 창호는 물론이며, 채광이 들어올 수 있는 창호가 3개가 더 들어서 있습니다.


주방은 주택의 평수를 고려하여 시공하는 것이 중요합니다. 해당 주택은 'ㅡ'형태로 시공되었으며, 조리시에 음식물이 튈 수 있다는 점을 고려하여 조리대 근처는 관리가 용이한 타일로 시공하였습니다.


계단실은 최대한 공간을 차지하지 않도록 하면서, 무드있는 느낌으로 시공되었습니다. 바닥재와 벽지, 그리고 조명의 조화가 따스함이 느껴지도록 시공되었습니다.


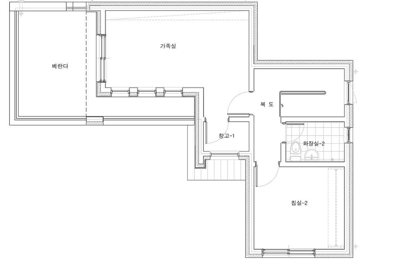
기존에는 1층은 가족공간, 2층은 개인공간으로만 많이 사용되곤 했었습니다. 하지만 현재에는 2층도 가족실을 두어 어디에서도 여유로운 시간을 보낼 수 있도록 시공하는 사례가 많아졌는데요, 해당 주택의 경우에도 2층에도 가족실이 있으며, 테라스와 연결되는 큰 창호가 있어 가족들과의 시간을 얼마든지 보낼 수 있도록 시공되었습니다.

1층도면
2층도면

오늘은 한글주택에서 시공한 경기도의 전원주택 완공사례를 살펴보았는데요, 고요함이 느껴지는 주택으로 주변 자연과 잘 어우러지는 주택입니다. 콘크리트주택, 목조주택 전문 한글주택은 건축주님들의 라이프 스타일을 고려하여 설계/시공하고 있는데요! 혹시 전원주택 계획을 아직 잡지 못하신 분들이 계신다면 종합건설 한글주택에서 무료로 건축상담 받으세요!


5초 무료건축상담 신청하기

keyword
매거진의 이전글'건축상 수상' 기적처럼 지어진 서울 협소주택