메뉴
brunch
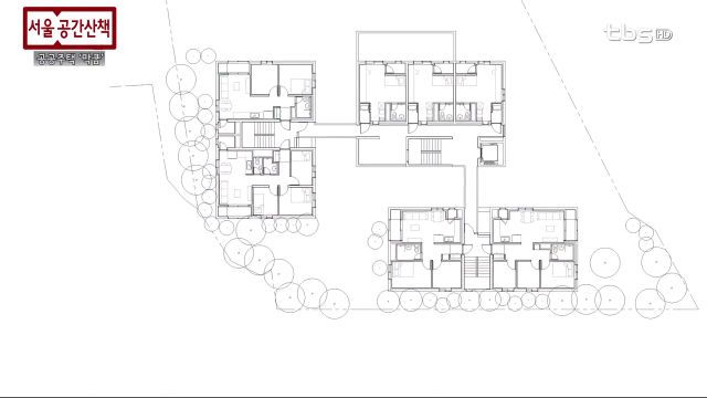
만리동 예술인 협동조합주택 '막쿱'
[tbsTV 공간산책]
by
Whats Up Seoul
Jan 14. 2016
'협동조합형 임대주택'을 아시나요?
만리동에 있는 '예술인협동조합형공공주택' 일명 '막쿱'을 소개합니다.
tbsTV 영상 링크 클릭^^
https://youtu.be/XNY-TllO__c
협동조합형 주택, '막쿱'은 입주 조건이 있는데요~
예술인으로서 협동조합 가입자면서 평균소득보다 낮은 수입이라면 OK!
'막쿱'은 살고 싶은 사람들이 모여 먼저 협동조합을 구성한 후,
건축가를 위촉하여 설계 과정에서부터 참여하게 되는데요.
뿐만 아니라 입주 후에도 건물 주변을 청소하는 일이나, 분리수거함 정리 등
건물 관리 또한 입주자들이 함께하는 시스템으로 운영합니다.
'막쿱'의 투명한 테라스와 공동 공간 등 건물과 건물을 연결하는 공간들은
이웃 간의 유대감까지 높여주는 사회적 공간이라고 할 수 있는데요~
1인 가구의 증가로
사회적 관계를 만들어갈 수 있는 공간이 떠오르고 있는데요~
다양한 형태의 사회적 공간을 tbsTV 영상 링크를 통해 확인하세요^^
https://youtu.be/XNY-TllO__c
3
댓글
1
댓글
1
댓글 더보기
브런치에 로그인하고 댓글을 입력해보세요!
Whats Up Seoul
tbsTV의 서울을 소재로 한 프로그램들을 블로그 형식으로 재구성하였습니다
팔로워
1,282
팔로우
작가의 이전글
영화인들의 열정 가득! 국립영화제작소
족발&부침개부터 숲길 휴식까지~ 5호선 공덕역
작가의 다음글