brunch

통합설계 프로젝트

건축학과 학생 프로젝트 이야기

by 김재현

학생들에게는 무엇보다도 수많은 도면을 쳐야 하는 무시무시한 과정으로 유명했다. 통합설계라는 이름답게 수많은 법규와 현실적인 문제들을 고려해야 하는 복잡한 과정이었다.


이번 프로젝트는 실시설계단계가 포함된 통합설계프로젝트이다. 지금까지 학교에서 배웠던 재료와 디테일이나 구조, 무장애설계, 법규같은 내용들을 적용하여 실시설계단계를 경험해보는 일종의 훈련이었다.


그래서 이번 글은 특히 좀 더 자세하게 써야 할 것 같다. 실시설계인지라 도면들을 구체화하는 과정에서 고려해야할 사항들이 평소보다 많았기 때문이다. 학교에서 진행했던 통합설계의 내용들이 궁금한 사람에게 도움이 되었으면 좋겠다.


실시설계에서 그렸던 많은 도면들



Rule

이번 프로젝트는 4가지 건물유형과 사이트를 골라서 진행할 수 있었다. 주민센터, 업무시설, 상업, 주거 중 하나를 선택하면, 각각의 성격에 맞게 4가지의 다른 사이트들이 주어졌다. 그리고 이 프로젝트에는 설계한 건물이 지역활성화에 도움을 줄 수 있어야한다는 조건이 있었다.


업무 사이트의 특성

나는 업무시설을 골랐다. 다른 이유보다는 업무시설에 배정된 대지가 내가 잘 알고 있는 곳이기 때문이었다. 하지만 이렇게 사이트와 건물 용도가 정해지고 나니, 어떻게 이런 건물이 지역재생에 기여를 할 수 있을지 고민해야 했다. 난감했다.


우선 업무시설이라는 프로그램이 주민센터나 상업에 비해 공공성이 덜하기 때문이었다. 그리고 주어진 대지의 용적률이 다른 곳들보다 훨씬 높았기 때문에 건물의 스케일자체도 주변보다 클 수 밖에 없었다.


대지조건

이번에 주어진 대지는 8개의 작은 필지들을 공동으로 개발하도록 주어졌다. 이곳은 준주거지역으로 인센티브 조건을 충족할 경우 용적률은 360%, 높이는 70m 까지 지을 수 있었다. 이 점이 건축주 입장에서는 건물은 크게 만들 수 있어 좋은 점이겠지만, 지역재생에 대해 고민하고 있는 우리에게는 굉장히 난감한 문제였다. 그리고 건물을 높이 쌓아올려야 하다보니 건물 형태에서도 자유도가 적다고 느꼈다. 그렇다고 대지가 넓지도 않다보니 건물을 마냥 좁고 높게 올리는 것에도 한계가 있었다.


주어진 대지의 건폐율은 60%였다. 처음에는 이정도면 건물배치에 자유도가 생길 것이라 생각했었다. 하지만 막상 지하주차장 램프를 넣고, 지구단위계획에서 요구하는 대로 건축선을 도로에서부터 이격시키고 나니 사실상 건물배치는 답이 정해져있었다.


건축개요와 대지


기본매스 형태

건물의 위치와 건폐율, 용적률을 따져보고 건물이 가질 수 있는 가장 기본적인 형태를 생각해보았다. 그리고 당연하게도 건축주는 그 주어진 면적을 최대로 사용하려 한다고 가정했다. 결과적으로 만들어지는 건물은 최소한 6층이상이 될 것이었고, 지상층의 여유공간을 둔다면 8층에서 10층정도의 규모도 가능했다.


주어진 대지의 모양이 다각형으로 특이하게 생겨있었는데, 대지 뒷쪽의 골목길의 길의 형태 때문이었다. 이런 휘어진 길을 무시하고 직사각형의 건물을 배치해야 하나 생각도 했었지만, 결과적으로 각이 지더라도 대지의 형태를 따르는 쪽이 옳다는 생각을 했다. 가장 큰 이유는 기존 골목길의 건물배치처럼 길을 따라 건물의 입면이 연속적으로 벽을 형성해야 건물이 들어선 이후에도 골목길이 유지될 수 있기 때문이다.

건축면적 700m² 일때의 건물 매스



계획설계

여기서부터는 내 건물의 계획설계에 해당하는 내용이다.


문제

이 건물에 주어진 대지는 대로를 면하고 있으면서, 골목안으로 들어가는 길에도 접하고 있었다. 이런 점들 때문에 이 대지는 상업이나 공공의 측면에서 분명한 잠재력이 있었다.


하지만 주어진 사이트는 분명한 문제가 있었다. 보행자들이 많고 상가들이 활성화 되어있는 대로변과는 달리, 바로 뒤 골목길은 사람이 별로 없고, 노후된 건물들이 많았다. 빽빽한 연립주택들과 좁은 골목길 때문인지 밤에는 약간 무섭기도 했다.


주변에 학교가 있고 대로로 부터 멀지 않은 곳임에도 이런 눅눅한 골목길이 있다는 것이 문제라고 느꼈고, 이런 골목에 활기를 주는 것이 지역재생에 시작이 될 것이라는 생각을 했다.


기본적으로 건물을 설계하면서 미리 알고 있어야 할 중요한 조건들은 이렇게 정리 할 수 있었다. 2개의 코어가 필요하다는 것과, 지하주차장으로 들어가는 램프가 필요하다는 점이었다. 고도제한은 70m 까지로 주어진 용적률에 비교하면 넉넉했다.



설계 아이디어


1. 아이코닉한 외형 만들기

우선은 이 대지의 특성을 살려 주변의 보행자들을 끌어들일 수 있는 건물이 되어야 한다고 생각했다. 그래서 이 대지가 가진 코너와 각진형태를 살려 굉장히 아이코닉한 건물 매스를 만들려고 했다. 요즘 이곳 주변에는 고층 오피스텔이 통일성 없이 우후죽순으로 들어서고 있는데, 이런 건물들과 달리 심플한 디자인으로 대비감을 줄 수 있겠다고 생각했다.



2. 골목을 잇는 통로 만들기

지어지는 건물은 그 규모 때문에 필연적으로 주변 건물들에게 위압감을 줄 수 있었다. 그리고 그 자체로 물리적, 시각적으로 대로변과 골목길사이를 막는 벽이 될 수 있었다. 이런 문제들을 해소하기 위해 건물에 구멍을 뚫어야 한다고 생각했다. 그리고 이 길은 주변 골목길의 연장선상에 있어서 이곳이 골목길의 시작점으로 인식될 수 있기를 바랬다.


건물의 통로의 역할을 보여주는 다이어그램


매스 형태

매스 다이어그램

이 두가지 아이디어로부터 매스의 형태를 잡았다. 대지에 조건들이 많아 디자인에 한계가 있었기 때문에 오히려 형태를 잡기는 정말 쉬웠다.


우선 '아이코닉'한 형태를 만들기 위해 대지가 가진 뾰족하고 비정형적인 형태를 살리고 싶었다. 그래서 각지고 날카로운 매스를 사용했다. 특히 뾰족한 대지형태를 살려서 코너쪽으로 강한 제스쳐를 주었다.


그리고 그 이후엔 건물에 구멍을 뚫었다. 건물 뒤편에 나 있는 골목길이 전에는 대로변의 건물들로 인해 대로에 바로 이어지지 않았는데, 이 길을 그대로 이어 대로까지 이어지는 길이 되도록 했다. 이렇게 할 경우에 골목에 대한 접근성이나 인지성이 좋아지고, 그로 인해 이 골목안의 공간들이 살아날 수 있을 것이라 생각했다. 그리고 이런 골목의 시작점으로 건물이 특별함을 더해줄 수 있을 것이라 생각했다.


프로그램 배치

업무시설이지만 지역활성화를 위한 건물인 만큼 일반인들을 위한 프로그램과 동선의 고려가 중요했다. 그래서 건물에 생겨난 통로공간을 어떻게 활용할 것인지가 가장 중요했다. 이 공간이 단순히 대로변과 골목을 이어주기만 하는 정도로는 부족하다고 생각했다. 건물에 통로로서 만든 구멍이 골목과도 같은 역할을 하길 바랬다.


상업시설

그래서 이 통로가 있는 건물의 저층부에는 1~4층까지를 이 동네의 주민들이나 학생들이 사용할 수 있는 공적인 프로그램이나 상업시설들이 위치하게 했다. 특히 나는 상업시설들에 대한 고민이 많았다. 이 주변을 다니는 사람으로서 이 사이트에 있는 여러 작은 음식점들과 가게들에 대한 기억이 있었기 때문이다. 그래서 새로운 건물을 만들더라도 이런 가게들이 이 건물에 다시 들어올 수 있어야 한다고 생각했다. 또한 골목을 활성화하는 측면에서도 이런 작은 가게들의 역할이 중요하다고 생각했다.


그래서 지상층에서 건물에 뚫려있는 통로를 향해 양쪽으로 상업시설들이 들어오도록 했다. 그리고 비교적 접근이 편한 2층도 이런 통로공간에서 연결되는 상업시설을 배치했다. 돌이켜보면 사실 1,2층의 공간이 그리 넓지 않아서 이런 지역의 작은 가게들을 많이 놓겠다는 생각이 어딘가 부족해 보여 아쉽다.


공공시설

공공시설은 이 건물이 스타트업 오피스라는 점, 대학가에 위치한다는 점에 주목해 대학생과 스타트업을 위한 시설로 계획했다. 1층엔 스타트업 업체들의 홍보를 위한 갤러리와 판매공간을 배치했고, 2층엔 작은 휴게공간을 두었다. 3층엔 학생들을 위한 라운지와 도서관을 두었고, 4층엔 학생과 스타트업 모두를 위한 작업공간인 메이커스페이스를 두었다.


기본설계때의 단면과(좌) 실시설계때 그린 단면도(우)

외부 계단

이런 시설들을 연결하는 것은 건물에 생긴 통로를 감싸고 돌아 올라가는 외부 계단이 담당하도록 했다. 건물이 상대적으로 좁고 높다보니 3,4층까지 공적인 프로그램을 집어넣을 수밖에 없었는데, 그러다보니 외부인들이 어떻게 하면 쉽게 접근하도록 할지가 고민이었다. 가능하다면 1층부터 3~4층까지를 슬로프로 연결하고 싶었지만, 건물 형태상 어려웠다. 그래서 어쩔 수 없이 계단을 택했다. 그리고 이 계단이 이용되도록 하기 위해서 고민했다.


이 계단은 동시에 양쪽으로 나눠져있는 건물을 연결하는 다리와 이어지게 했다. 그리고 계단형 좌석을 두고 골목쪽을 바라보며 쉴 수 있는 공간을 두었다.


그리고 무엇보다도 이 외부계단이 있는 건물의 통로공간이 건물의 외관에서 포인트요소가 되어야 한다고 생각했다. 사람들이 가지 않던 골목으로 사람들을 유도하려면 최선을 다해 그곳을 강조해야 했다. 그래서 이 계단공간이 건물에 난 통로공간을 더 강조시킬 수 있는 디자인 요소가 되도록 붉은 색으로 포인트를 주었다.

건물내부에서 바라본 외부계단의 모습과 골목쪽에서 바라본 건물외관

와이어

건물에 생긴 구멍에 해당하는 공간은 와이어를 이용해 벽면을 만들었다. 와이어로 만든 벽면은 멀리서 보았을 때는 이 와이어로인해 벽면이 있는 것처럼 보이지만, 가까이에서는 거의 이 와이어들이 보이지 않아 건물 안쪽에서 이 통로공간을 잘 볼 수 있다.

참고했던 사례- 고려제강기념관


이 건물은 특히 밤에 주변에 빛을 내뿜는 역할을 해야 한다고 생각했다. 이곳의 주택가는 밤에 특히 어둡고 인적이 드문데, 이런 지역에서 이 건물이 주변에 빛을 내뿜어 줄 수 있다면 이곳 분위기가 더 나아질 수 있을 것이라 생각했다.


그리고 건물을 상당히 아이코닉하게 계획한 만큼 매스감을 유지할 수 있는 재료를 고민했다. 결론적으로 외장재는 알루미늄 타공패널을 선택했다. 건물의 외벽자체는 커튼월을 사용하고, 그 밖에 부착되는 일종의 2중외피로서 타공패널이 설치되는 것이다.


타공패널은 건물의 각진 형태를 구상하면서부터 고려했던 것인데, 무엇보다도 날카로운 각이 진 이 건물의 형태와 어울리면서도 복잡하게 꺾인 면들을 만들수 있기 때문이었다. 또한 채광과 환기가 가능하고 밤에는 건물의 빛을 은은하게 내뿜을 수 있기도 했다.


대로쪽에서 바라본 건물 외관
건물의 남측,동측 입면도
이중외피의 시공방식을 보여주는 그림


위워크 캐이스 스터디

이 건물은 스타트업들을 위한 공유 오피스로 설정했다. 그렇기 때문에 공유오피스의 평면을 알아보기 위해 위워크(Wework)를 답사했다.


우선 위워크는 굉장히 캐주얼한 분위기의 공용공간들이 인상적이었다. 라운지공간은 마치 맨발로 다녀도 될 것 처럼 느껴질 정도로 따뜻하고 폭신한 분위기였다. 그리고 조닝(Zoning)에 따라서 개방적인 공간과 독립적인 공간이 다양하게 배치되어있어 이용자는 자신의 업무에 맞는 공간에서 작업을 할 수 있었다. 이런 위워크의 사례를 참고해 이번 건물의 피스 공간들울 배치했다. 식공간들과 라운지공간들을 배치하고, 스타트업 규모에 맞게 다양한 규모의 내부 공간들을 계획했다.



오피스 내부

9층 오피스 내부 렌더링

오피스의 내부는 이중외피의 타공판을 통해 들어오는 빛과, 이 구멍들을 거쳐 주변의 풍경들을 흐릿하게 볼 수 있는 것이 특징이다. 아이코닉한 외관을 위해 선택한 알루미늄 패널이지만, 채광, 환기등의 기능적인 문제를 해결하면서도 동시에 인상적인 내부공간을 만들 수 있을 것이라 생각했다. 인테리어는 위워크의 목재바닥과 화이트톤의 벽,천장마감을 참고했다. 공공공간들은 노출천장을 활용해 개방감을 더하고자 했다.



여기까지가 건물의 기본적인 계획설계의 내용이었다.


실시설계

이제부터는 실시설계단계에서 진행했던 구체적인 설계의 내용들이다. 건물의 설계 아이디어들을 실현시키기 위한 구체적이고 현실적인 고민들을 해야 했다.


실시설계단계에서는 수많은 도면들을 그리게 되는데, 가장 중요한 것은 이것이 시공을 위한 도면이라는 점이었다. 그래서 시공자들에게 설계자의 의도를 정확하게 전달하는 것이 가장 중요했다.



코어 계획

코어는 직통계단이나 엘리베이터등 건물의 수직동선이 들어가는 곳을 말한다. 이 건물의 직통계단은 일정한 거리 이상을 두고 두군데에 들어가야했다. 또한 이 직통계단은 '피난계단'의 조건을 만족시켜야 했고, 층수에 따라 '특별피난계단'의 적용도 고려해야했다. 비상시에 건물의 각 공간으로부터 계단까지 이르는 거리에 대한 규정도 있었고, 엘리베이터 설치 또한 면적에 따른 대수 규정이 있었다.


이런식으로 건축법에 의한 조건들을 고려하다보니 이 건물에서 코어를 배치하는것이 까다로웠다. 법적인부분들을 모두 만족시키는 범위 안에서 공간사용의 편의성을 뽑아내야 했기 때문이다.

각 실들에서 피난거리를 보여주는 도면



주차장 계획

본격적인 건물의 형태를 생각하기 전부터도 주차장 문제를 고려해야 했다. 건물에 있어서 주차장설계는 그 우선순위가 떨어질 것 같지만 실무적인 관점에서 주차장의 계획은 매우 중요했다. 건물의 기둥들은 지하에서부터 올라오기 때문에 지하주차장을 계획할 때 동시에 건물의 상부층의 평면까지도 어느정도 고려해야 했다.


특히나 우리에게 주어졌던 대지는 주차장 램프(경사로)를 만들면 남는 공간이 거의 없을 정도의 사이즈였기 때문에 주차장의 기본적인 계획이 건물의 근본을 흔들 수도 있는 중요한 문제였다.


서울시에서 정하는 업무시설의 면적당 주차대수를 고려해보면 이 건물은 최대 48대의 주차가 가능하도록 만들어야 했다. 기계식 주차장이 아닌 자주식 주차장을 사용한다면 지하주차장이 지하 2~3층까지 생겨야 한다는 결론이 나왔다.


기계식 주차를 사용한다면 지하로 들어가는 긴 램프도 필요하지 않고 훨씬 쉽게 해결 할 수 있겠지만, 교수님은 학생들이 주차장 설계를 더 이해할 수 있도록 자주식 주차를 사용하길 권장했다. 나 또한 업무 시설의 특성상 기계식을 사용한다면 출,퇴근에 있어서 큰 불편이 있을 거라 생각해서 자주식주차를 선택했다.


구조

건물의 구조를 정하는 것은 가장 어렵고 시간도 많이 들어갔다. 여러 사례들을 찾아보면서 기둥간격에 따른 기둥과 보의 두께와 같은 것들을 적용해야 했다. 일반적이고 흔한 건물형태라면 자료들을 찾기가 쉬웠을텐데, 이번 건물은 여러각도로 꺾인 부분도 많고, 발코니와 캔틸레버로 돌출된 부분이 굉장히 많았기에 구조를 해결하기가 쉽지 않았다. 아마 실제 건축설계였다면 처음부터 구조사무소와 굉장히 많은 조율을 하면서 설계를 진행해 나갔었어야 할 것 같다.


우선 건물의 기본 구조는 철골구조방식으로 결정했다. 캔틸레버로 튀어나오는 부분들이 많고, 10m 가 넘는 장스팬의 경간이 있었기 때문에 철골조가 더 효율적이라고 판단했다.


구조도면에는 기둥과 보, 슬라브가 표현되는것이 중요했는데, 역시 캔틸레버나 각진 부분들이 많다보니 이 부분도 꽤나 까다로웠다. 특히 보를 그리는 것이 어렵고 정확한 기준같은것을 찾는 것도 힘들었다.


예를 들자면 이런 식이었다.

슬라브는 얇은 부재이기 때문에 처지지 않게 하려면 일정 간격 이내에 받쳐줄 수 있는 보가 있어야 한다. 문제는 그 간격에 대한 확실한 기준같은 것이 없다는 것이었다.


그래서 내 나름대로 조사끝에 내린 결론은 이런 것이었다. 슬라브를 둘러싼 4개의 보 중, 거리가 짧은 쪽 보사이의 간격이 4m가 넘지 않게 만들면 된다는 것이었다. 실제 건축설계에서 정확한 수치는 구조사무소가 맡아서 하겠지만, 이런 대략적인 기준들을 알고 있다면 건축설계에서도 도움이 될 것 같다.



지하층 슬라브의 구조도면과 5층의 구조도면
구조단면도와 기둥, 보 일람표


조경

조경은 일반적으로 설계에서 우선순위가 떨어지다 보니 법적인 기준에 맞게 계획하는것이 중요했다. 그리고 그렇게 법적인 면적을 채워넣다보면, 어느순간부터 본래의 목적을 잃고 형식적인 면적 채우기가 되기 쉽상이었다. 평소 보던 건물들에서 사람이 잘 가지도 않는 쪽에 조경이 있다던지, 개방해 두지도 않는 옥상에 조경이 있다던지하는 등의 이상한 일들은 모두 형식적인 조경면적을 채우다보니 일어나나는 일들이었다.


그래서 계획된 건물배치 안에서 가능한 조경이 제 역할을 할 수 있는 위치에 배치하려고 했다. 차량이 드나드는 주차램프는 나무를 심어 딱딱한 공간이 덜 노출되도록 했고, 햇빛이 필요한 북쪽에는 소나무를 배치해 그나마 그림자가 덜 생기도록 하는 식으로 조금씩이나마 그 의도를 담았다.


대지와 옥상의 조경 계획도


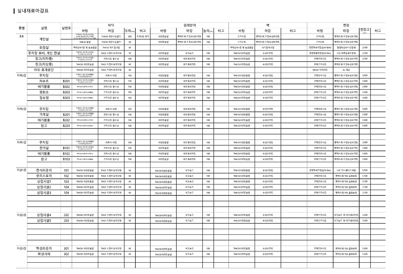
실내 재료 마감표

도면에는 층마다 각 공간들의 실내재료들을 알아 볼 수 있도록 표기를 해주어야 했다. 평면도에 모두 표기하기엔 복잡하기 때문에 보통 콜아웃(Call-out)방식으로 표현한다. 짧은 일정상 인테리어는 상세하게 하지 못했고 일반적인 사항만을 계획할 수 있었다. 중요한 것은 어떤 공간에 어떤 종류의 마감이 들어가야 하는지에 대해 숙지하는 것이었다. 방수가 필요한 공간이 있고 흡음이 필요한 공간도 있는데, 이에 따라 이루어지는 마감방식을 알아보고 결정해야 했다.

실내재료 마감표



1층 평면도
8층 평면도

천장도

천장도는 천장의 마감과 조명, 설비등을 표현하는 도면이다. 공간의 성격에 따라 조명과 마감재의 종류를 선정하는 것이 포인트였다. 화장실처럼 그 줄눈이 들어가는 천장재는 그 줄눈의 간격이나 기준점을 표현 해준다. 또한 간접등, 매립등과 같은 요소는 단면을 따로 그려주었다.


이 건물은 냉난방방식으로 EHP를 사용했기 때문에 공조장치 실내기의 위치를 표현해주었고, 외주부에 열교환기를 설치해서 통유리가 갖는 냉난방부하를 줄이고자 했다.


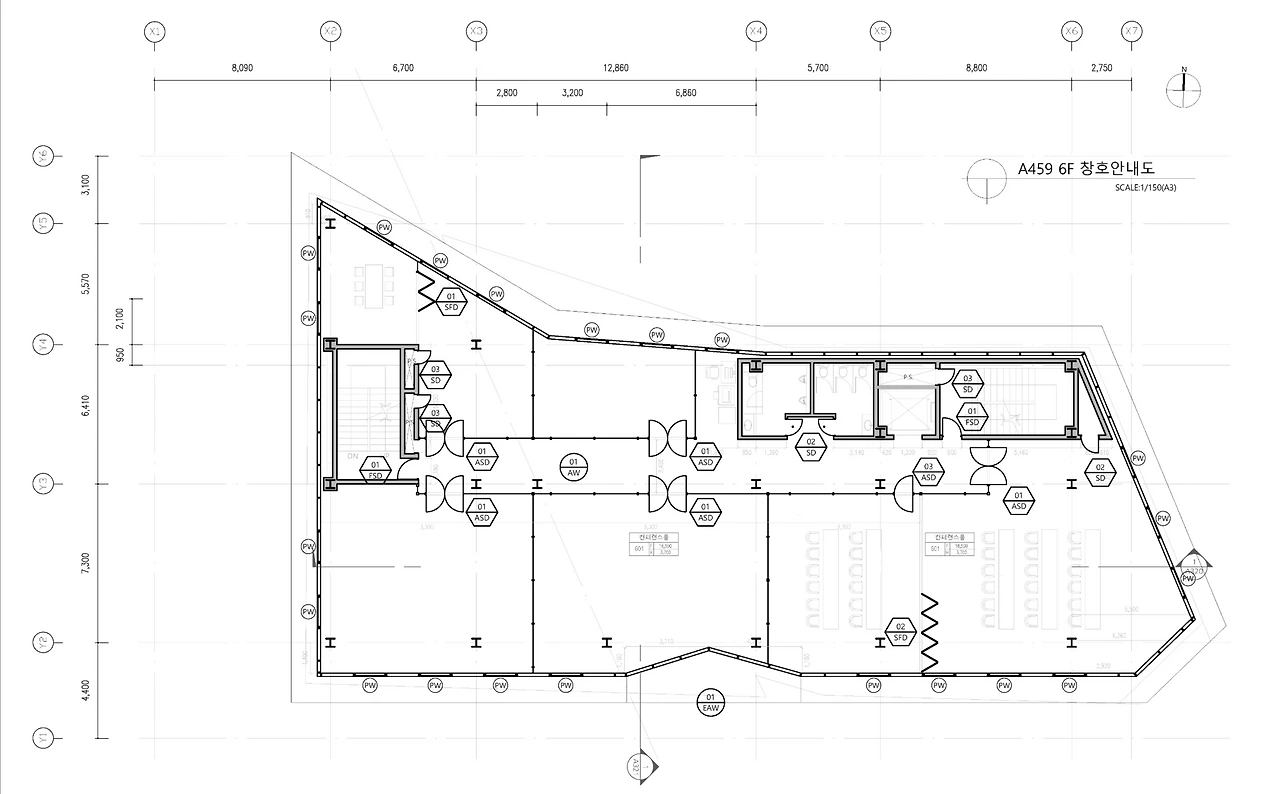
창호안내도

건물의 문과 창문에 관한 도면이다. 평면도상에 간략한 기호로 표현하고 창호일람표를 통해 구체적인 창호의 정보들을 표기했다. 외벽이 커튼월 유리로 된 이번 건물 특성상 외벽의 창호를 간단한 일람표정도로는 모두 표현하기 어려웠다. 커튼월을 표현해주기위한 입면도들을 따로 그리긴 했지만, 실제로는 훨씬 더 많고 자세한 시공용 도면이 따로 필요했을 것으로 보인다.


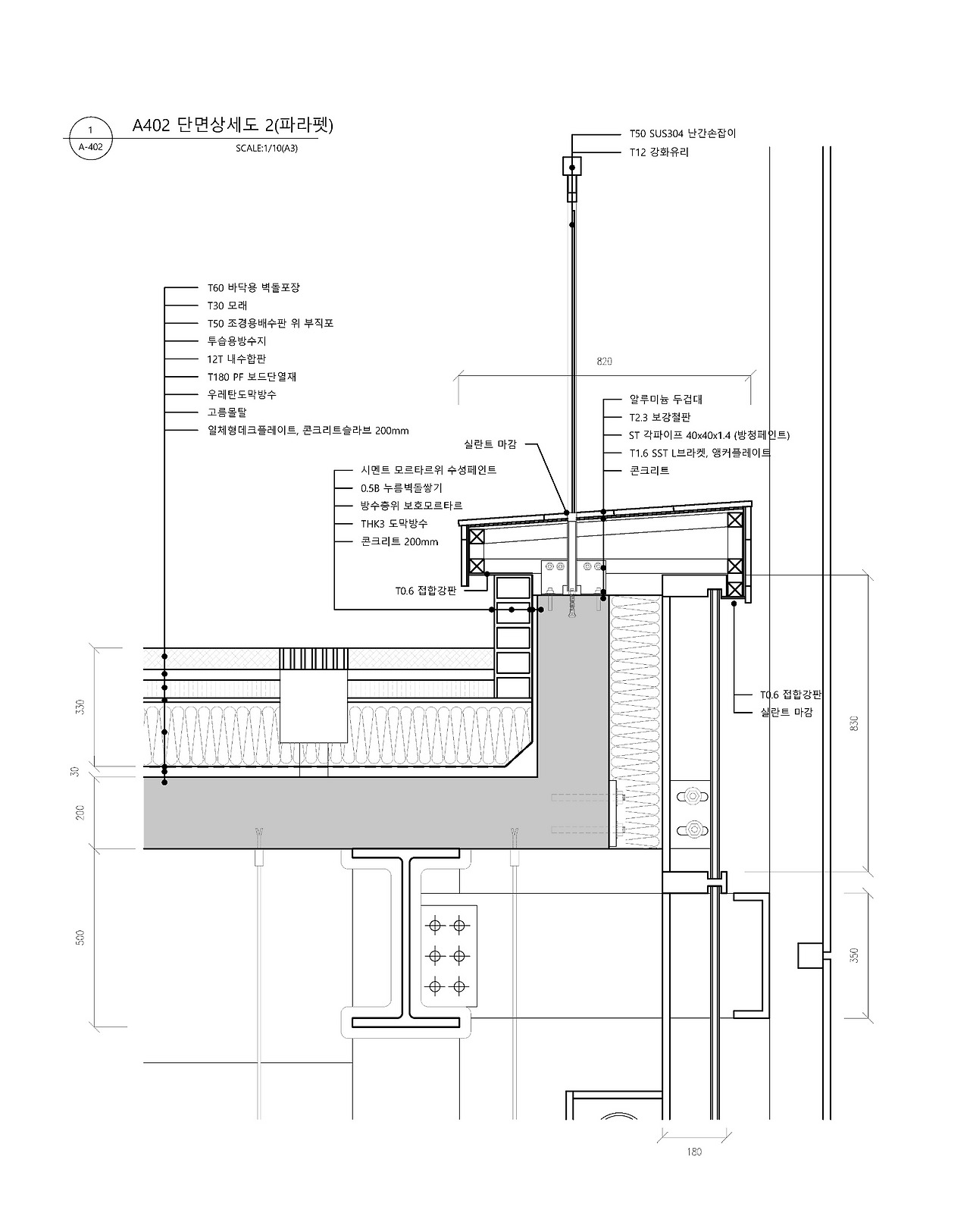
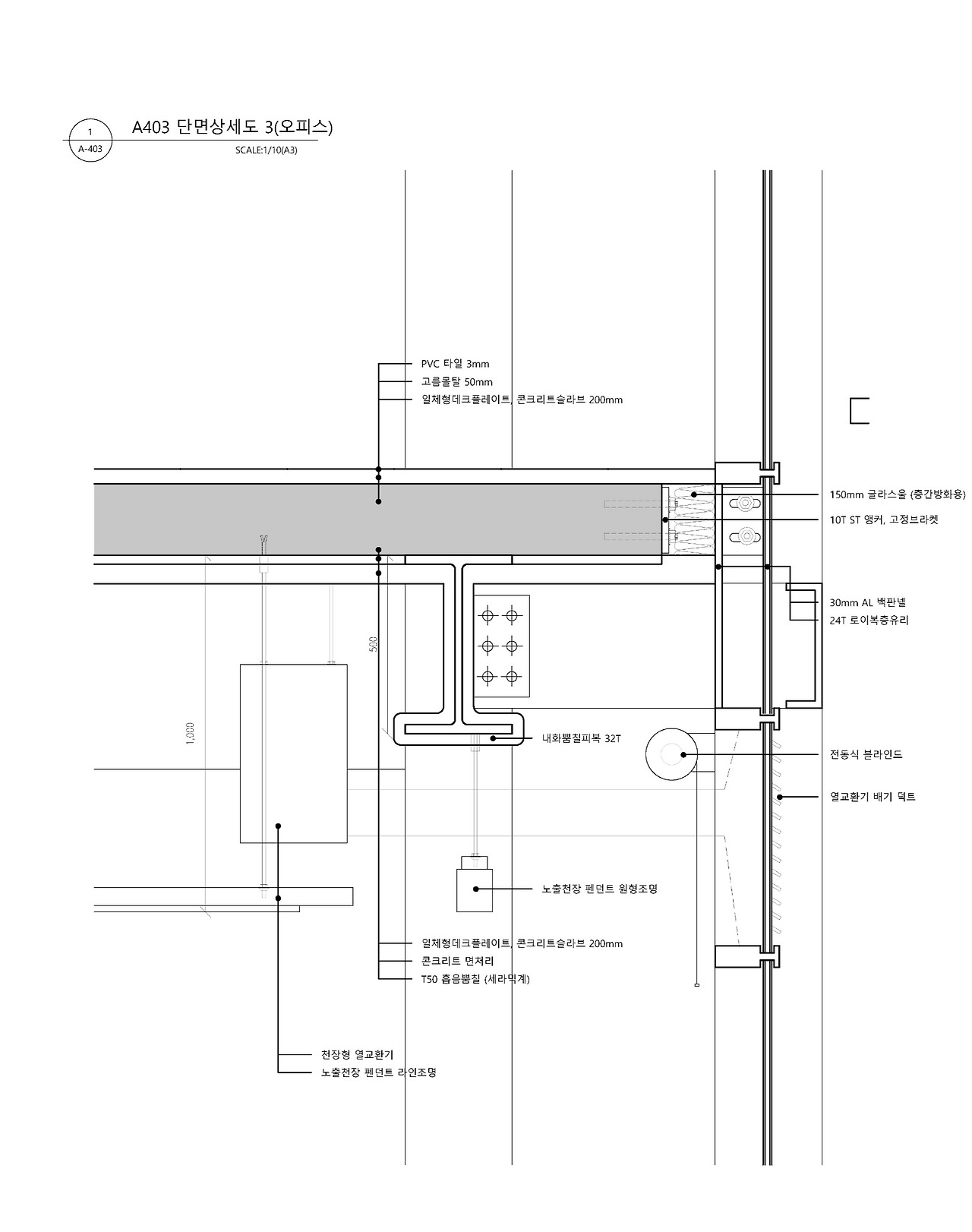
단면 상세도

상세도는 건물의 구조와 방수, 단열이 어떻게 이루어지는지를 보여주어야 하기 때문에 가장 까다로웠다. 하나의 도면을 그리기 위해서는 실제 건물의 상세도들을 여럿 찾아보아야 했다. 그리고 자신의 건물에 맞는 방식의 단열, 방수를 선택해야 했다. 모든 건물의 구조가 조금씩 다 다르기 때문에 단순히 다른 사례를 복사&붙여넣기로 해결할 수 있는 것도 아니었다. 그래서 이때 그렸던 도면들이 시공방식에 맞지 않는다거나, 나중에 보니 방수, 단열에 하자가 발생할 수 있는 경우도 있었고, 너무 과해서 현실적이지 못한 경우도 있었다.


외벽의 상세도1
외벽의 상세도2

외피 상세도

일종의 이중외피방식을 사용하는 이 건물의 경우 커튼월 바깥으로 알루미늄 타공판이 설치되게 된다. 그래서 그 구조물이 어떻게 고정되는지를 보여주는 상세도가 필요했다. 이중외피의 유지보수를 위해 볼트체결방식으로 외부패널을 떼어낼 수 있게 했다. 실란트를 쓰지 않는 방식을 택해서 외관이 오염되는것을 피하고자 했다. 다만 지금은 걱정되는 것이 아연도각관이라도 구멍을 내고 볼팅을 했을때는 오랜 시간이 지나면 녹이 생기지 않을까 하는 생각이 든다. 이 부분은 더 확인을 해봐야 할 것 같다.


외피의 상세도

무장애 설계

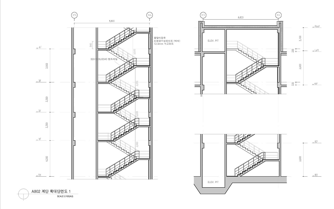
무장애설계는 장애인들이 건물이용하는데에 문제가 없도록 설치기준에 맞게 계획했음을 보여주는 도면이다. 계단실은 이런 무장애 설계나 방재에 관한 규정에 맞춰야 하는 부분이 특히 많기 때문에 따로 상세 평,단면을 그려주는 편이었다.


무장애계획도
계단실의 확대평,단면도




마치며

한 학기동안의 정말 많은 것들을 배울 수 있는 시간이었다. 디테일한 요소와 현실적인 구현 방식을 생각해야 한다는 점에서 기존의 다른 설계수업들과는 차이가 있었다.


이상 vs 현실

처음에는 정말로 내가 그린 도면들만 가지고도 시공이 이루어 질 수 있을 정도로 건물의 든 부분들을 표현하고 시공의 문제를 해결하겠다는 생각을 했었다. 지나고 나니 이것은 사실상 불가능했던 것 같다. 아직도 이 건물에 해결이 되지 않은 많은 부분들이 있다. 예를들어 바닥마감재의 단차가 생기는 부분이 있다던지, 발코니로부터 열교가 발생한다던지 하는 등이다. 아마 이런 모든 문제들을 해결하고 넘어가기 위해서는 기본설계부터 굉장히 현실적이고 전형적인 디자인을 택했어야 할 것이다.


이런식으로 실시설계에서 조금 특수한 디자인을 하다보면 이런 부분들을 해결하기가 까다로워진다. 이런 어려움들에 대해 이야기들을 들어오다보니 학생들은 기본설계에서 평소보다 경직된 디자인을 하는 경우가 많아보였다. 그리고 나도 이런생각에 시공방식을 어느정도 예상할 수 있는 디자인을 찾았던 것 같다. 하지만 지나고 보니 실시설계라고 해서 그런 고려가 반드시 필요하진 않았던 것 같다.


이 프로젝트의 목적은 정말 건물을 짓는 것이 아니라 실시설계단계에서 더 디테일하고 현실적인 문제들을 해결하는 과정을 배우는 것이었다. 복잡하고 어려운 건물은 그 나름대로 이런 문제들을 해결하기 위해 더 많이 찾아보고 고민을 하게 되는 과정에서 더 많은 것을 배울 수도 있을 것이다. 그래서 나는 통합설계에서도 학생들이 평소처럼 자유로운 디자인을 시도했으면 좋겠다.



설계실 분위기

교수님이 각자 건물에 사용할 마감재의 샘플들을 구해오라고 했을때, 학생들이 별의별 재료들을 구해오던 것이 기억난다. 벽돌부터 유리블록, 테라코타등 수많은 재료들을 설계실에 놓아두고 어떤 제품이 가장 자신의 건물에 적합할지 손으로 만져보면서 재료를 선정했다. 정말 곧 있으면 건물을 지을 것 같았다.


그리고 교수님은 우리가 일반적이지 않은 설계를 가져오면 쉬운 쪽으로 설계를 바꾸자고 하는 대신, 어떻게하면 해결할 수 있을지를 같이 고민해주셨다. 캔틸레버가 많고, 스팬도 넓은 이번 건물을 가져갔을 때도 교수님은 구조에 대해 더 자주 크리틱을 해야겠다고 하시면서 구조전문가의 도움도 받아주셨다.


이때의 설계 스튜디오 분위기는 계속 기억에 남을 것 같다. 유독 생들과 교수님 모두가 프로젝트에 열정적이었다. 우리는 매일 학교에 와서 서로의 건물에 대해 이야기하고 같이 고민했다. 항상 같이 작업하고, 토론하고 또 놀면서 어느새 각자의 건물들은 모두가 참여한 작업이 되어갔다.




keyword