brunch

다세대주택 첫걸음

무엇을 어떻게 고려하며 설계할까

by 동그라미

(그 유명한) 과천시 별양동이다. 단독주택만 지을 수 있도록 지구단위계획으로 묶여있었는데 지난해 공동주택도 가능하게끔 지구단위계획지침이 변경되었다. 처음 지을 때는 마당 딸린 2층 단독주택이 많아서 살기에는 참 좋았을 것 같다. 특히 당시 아이들이 있는 집이라면 부러움의 대상이 되던 단독주택이었을 듯하다. 하지만 이제는 세월이 그만큼 흘렀고, 흐른 세월만큼이나 집은 낡아버렸다. 대대적인 수리를 하든 아니면 재건축을 하고 싶어도 사업성이 안 좋아 망설였던 건축주들에게는 반가운 지침개정일테다.


도시형생활주택에 한하여 1층 필로티를 층수에서 제외해주고 그 외에 4개층을 지을 수 있도록 했다. 주차가 세대당 1대인데 그마저도 총7대까지만 가능하다. 작은평형대를 여러 세대 계획하는 건 불합리하다. 큰 평형대 (최소 2룸 이상) 7세대가 알맞다. 이 동네 대지 크기는 대부분 비슷해서 방위와 도로에 접하는 부분, 지구단위계획지침의 영향을 많이 받는다.

지적도 확인 후 각종 법령에 따른 건축가능영역을 설정한다. 지구단위계획지침상 건축한계선 1.5m이격 / 과천시 건축조례에 따라 대지안의 공지 이격(1.0m , 1.5m)

지적도를 확인하고서 각종 법령을 따져본다. 가장 중요한 게 지구단위계획지침(줄여서 지단)이다. 지단에서는 건축한계선, 용도, 규모, 인센티브항목 등이 정해져있다. 안 되는 것과 장려하는 것이 나와있음으로, 하지 말라는 건 하지 않고 되도록 하라는 것은 하는 방식으로 건물을 설계하는 것이 좋다. 그래야 법령 위반없이 최대 규모로 지을 수 있다.

대지가 북측에 도로를 면하고 있으나 45도 정도 틀어져 있어서 어정쩡하게 좋다. 3층까지는 매스가 똑바로 올라가지만 4, 5층은 일조사선방향 따라 줄어든다.

국계법상 주거지역은 건물을 지을 때 정북방향으로부터 일정 거리를 떼도록 되어있다. 흔히 일조사선으로 불리는 조항이다. 낮은 층은 조금 떼고 높은 층은 높이에 비례해서 멀리 떼다보니 3,4층 넘어가면서부터는 건물을 지을 수 있는 유효 영역이 줄어든다.


코어(엘리베이터와 계단실)는 일조사선에 의한 건물 유효영역 안에 있어야 한다. 4곳으로 나눠서 검토해 볼 수 있다. 어느 곳이 좋을까?

1번은 건물 가운데인데다 남향인 곳이다. 주택은 남향이 최고다. 어떻게해서든 남향을 조금이라도 넣는 게 좋다. 안 그래도 폭이 좁은데 그 중 한곳에 코어를 놓는다며 남향을 가려버리면 아깝다. 1번 코어 첫번째로 탈락. 그럼에도 3번은 검토해볼 만하다. 주차 7대가 깔끔하게 나오기 때문이다. 그런데 이 대지에서 가장 좋은 공간에 코어를 놓아야한다. 정북일조규정 자체가 이런 코어위치를 요구하는 것이다. 이 규정 자체가 문제가 많아서, 신도시같은 경우는 정남일조규정을 두는 곳이 많다. 여튼, 3번도 과감히 탈락.

코어를 2번 4번에 놓으면 주차장계획의 어려움에 봉착한다.

2번은 북쪽코어여서 남향으로 최대한 실을 많이 구성할 수 있는 장점은 있으나 주차가 6대 밖에 안나오고 피난동선 확보가 어렵다. 더욱이 3층까지는 어찌해본다고 할 수 있으나 4층, 5층에서 일조사선에 의한 짜투리 공간이 많이 나온다. 반면 4번 코어는 위치는 가장 좋으나 주차대수가 부족하다. 그래도 가장 우선해서 검토해볼만한 코어위치다.

주차계획이 꽃이다. 법령에 맞춰서 겨우 7대 성공.

설계는 일방향이 될 수 없다. 그리고 모든 정보를 파악한다고해서 한 번에 설계안이 도출되지 않는다. 'AI면 그게 가능할까?' 싶지만, 그렇다하더라도 건축주의 마음은 바람과 같아서 그 또한 모른다. 설계(design)는 어딘가에 숨겨진 답을 찾아가는 문제해결의 과정과 함께 좋은 대안을 만들어내는(creating) 일을 포함한다. 다세대주택에서 코어의 위치를 어디에 놓고 피난동선을 어디로 빼며 요구되는 주차장을 어떻게 배치할 지를 설계(design)할 때에도 수없이 많은 피드백을 필요로 한다. 한 번 정했다고 끝이 아닌것이다. 그 많은 피드백의 흔적은 도면과 스케치노트에 쌓여져 있어서 잘 모를 뿐, 고민의 시간은 책임의 무게만큼이나 길고 무겁다. 겨우 주차 7대를 맞췄다.

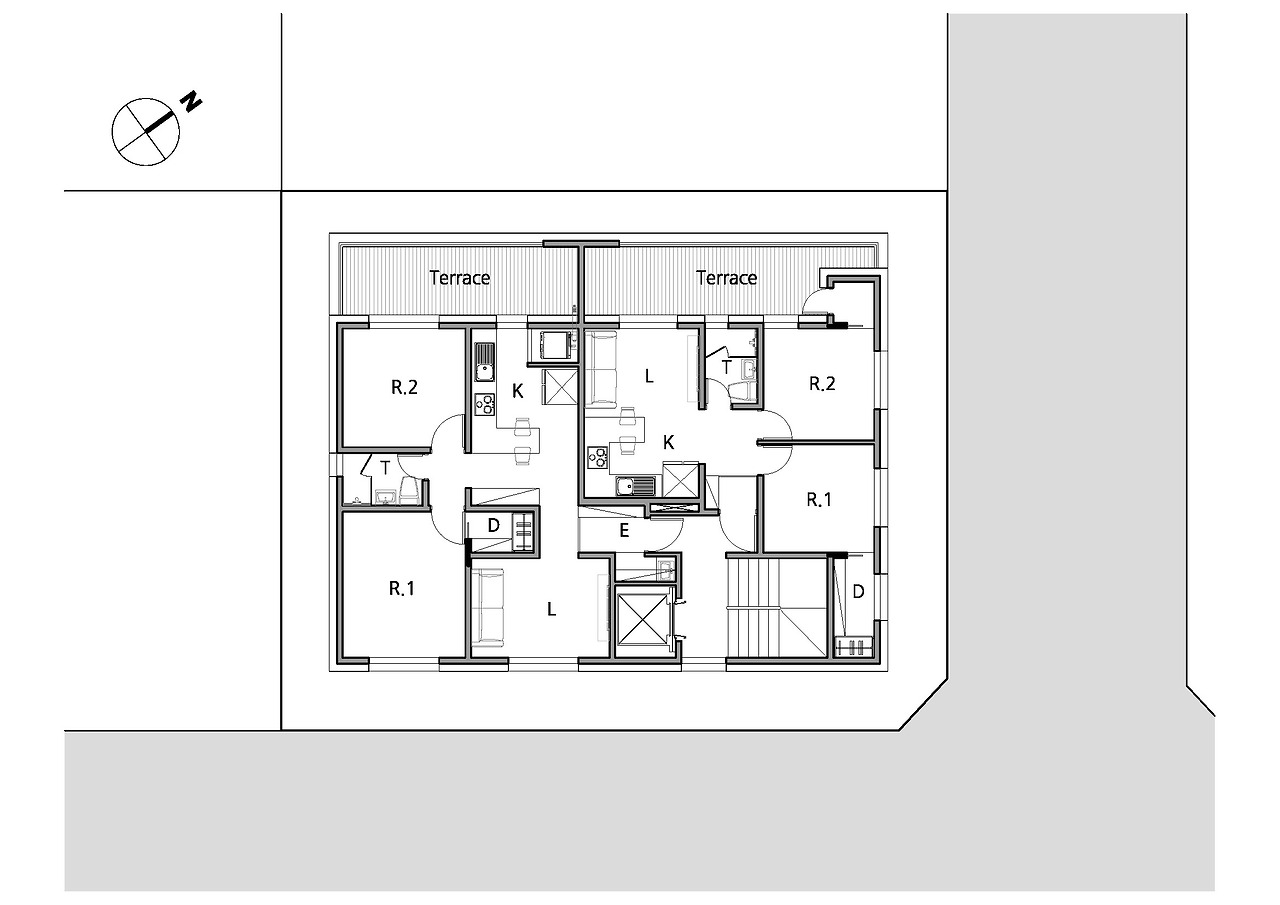
2,3층은 2세대씩이다. 각 세대가 한 층에서 크게 어떻게 나뉠지 따져봐야 한다.

평면의 효율성과 안정성을 생각한다면 두 번째처럼 나누는 것도 나쁘지 않다. 세대 내 복도공간이 많이 필요없을 테니 각 실의 규모도 커질테고 확장형베란다 면적도 넓게 가져갈 수 있을 것이다. 그런데 아무리 생각해도 B가 아쉽다. 햇볕이 오후 2~3시부터나 들어올거고 그마저도 서향볕이다. 아무리 저녁에만 사람이 머문다고해도, 주말에 집에 있을라치면 채광이 잘 안되서 우울해질 것 같다. 더욱이 상대적으로 A는 너무 좋다. 동남향인 도로쪽으로는 개방되어 있기도 하고. 이런 편파적인 평면은 안된다. 그래서 조금 무리해서라도 B가 남향을 면하도록 했다. 처음에는 거실을 남향실로 두었으나 그렇다보니 세대내 이동공간이 너무 많이 잡혀서 결국 방을 하나 두는 걸로 설계안을 정리했다.

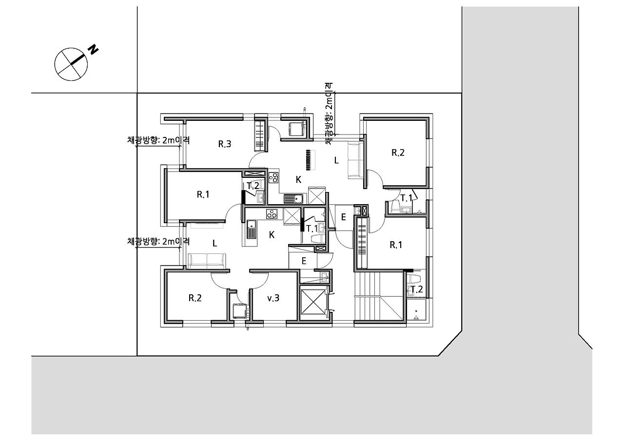
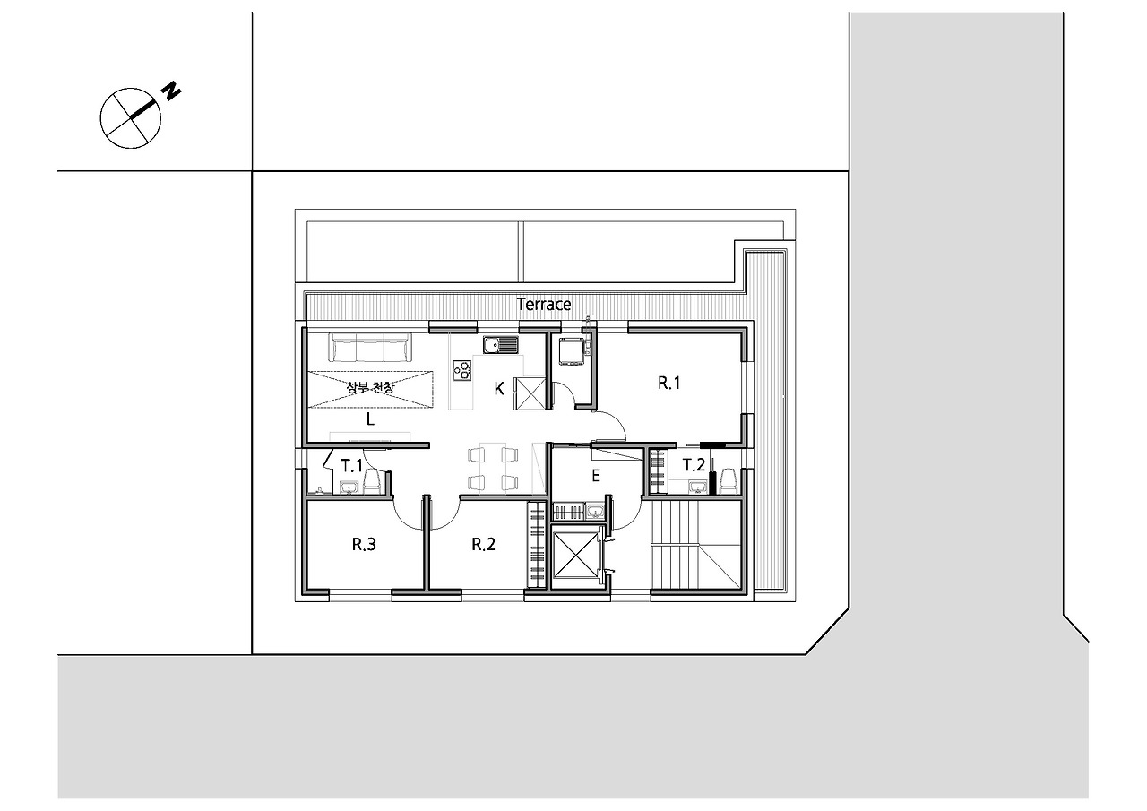
2,3층 평면, 4층 평면, 5층 평면. 저놈의 채광방향 2m이격 조항 때문에 요철이 생기고 남향의 수혜를 제대로 못 받는다.

과천시 건축조례에 따르면 채광창은 인접대지경계선에서 2m이상 이격하도록 되어 있다. 채광창을 옆집에서 저만치 떼어서 놓으라는 뜻이다. 그래야 채광도 좋고 사생활보호도 된다고 보기 때문이다. 그런데 그렇게 하다보니 건물이 자꾸 쪼그라든다. 쓸만한 바닥면적이 줄어들어서 공간이 옹색해지고 평면도 볼잘것 없어졌다. 그래서 채광방향 벽면과 아닌 벽면을 구분해서 요철모양처럼 2m 이격할 벽면은 이격하고 아닌 벽면은 최대한 바깥으로 밀어서 계획했다. 아주 작은 창이라도 넣으면 되니까. 이건 계획설계 하게 되면 건축주와 상의해야봐할 사항이다.

박스모양으로 형태를 만들고 싶었다. 일조사선에 의해 생기는 경사진 벽면을 만들 수도 있지만 그보다는 네모 반듯하면서 매스브한 형태로 해보고자했다. 본격 설계진행하면서 변경예정
1층은 매트한 느낌으로 처리하고 2~4층을 묶어서 하나, 5~옥탑을 묶어서 다른 하나. 두 개의 매스가 적층된 걸로 했다. 색상과 채도가 다른 벽돌 2종류를 매치시키는 방식을 선택


keyword
매거진의 이전글사무실 인테리어