brunch

세계의 연주홀 -10
Concert. Amsteldam

Concertgebouw Amsterdam

by franciscopaik



image?url=https%3A%2F%2Fapp.thefeedfactory.nl%2Fapi%2Fassets%2F5ff8898dde7e8633a4aab824%2Fdd39698b-b4f5-48d0-8402-4f4724ef65b0.jpg&w=3840&q=75

ConcertgebouConcertgebouw

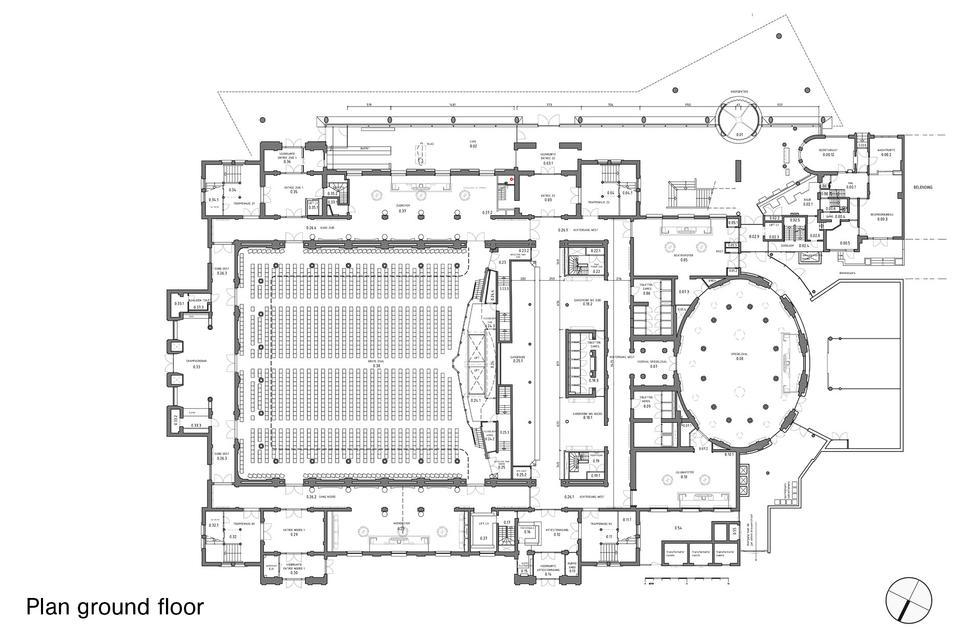
Concertgebouw은 네덜란드 암스테르담에 있는 오케스트라 전용 홀로 빈의 무직페어라인 홀과

미국의 보스턴 심포니 홀, 이 세 연주홀이 연주홀로는 세계 최상의 홀로 뽑이기도 한다.


1883년 Adolf Leonard van Gendt의 설계로 착공하여 1888년 4월 11일 완공 기념공연을

한 이 연주홀은 1,974 좌석(메인 홀)과 437 좌석(리사이틀 홀) 150석(코랄 홀)으로, 1985년

리 모델링에 들어가 완공 100주년 기념일인 1988년 4월 11일 재 개관을 한다. 이 연주홀을

위해 전용 오케스트라가 창단되어 1888년 11월 3일 첫 공연을 갖는데 그 오케스트라가

현존하는 세계 오케스트라들 중 최상의 오케스트라로 존중되는 로열 암스테르담 콘서트게보

오케스트라이다.


2013년 콘서트허바우 개관 125주년 기념행사에서 왕립이라는 칭호를 받았다. 그 이후로 공식

명칭은 로열 콘서트허바우가 되었다. 1,974석의 메인 홀은 28m 넓이에 44m 길이, 17m 높이로

음향의 잔향 시간은 without audience 2.8초 with audience(청중이 있을떼) 2.2초로 클래식

낭만음악에 매우 적합한 음향으로 많은 오케스트라들에게 사랑을 받는다. 이 연주홀은 상주

단체인 rco 뿐만아니라 많은 네덜란드 오케스트라들이 즐겨 연주를 한다.



maxresdefault.jpg



Concert18.jpg




concertgebouw_plattegrond_begane_grond.jpg%28mediaclass-small.7ff8e719b8d3c91a82717166dbe6aa693f4d6e5d%29.jpg




470600-3.jpg




hq720.jpg?sqp=-oaymwEhCK4FEIIDSFryq4qpAxMIARUAAAAAGAElAADIQj0AgKJD&rs=AOn4CLD8yzScCWWlzh4070x_MLij_2Fncg





SummerConcertatTheRoyalConcertgebouwinAmsterdam-Klook.jpg




Concertgebouw%20kleine%20zaal.png



3c.jpg

Kleine Zaal



Study-Session-Concertgebouw.jpg?stamp=2309221021&tag=xs





Concertgebouw.jpg




Het_Concertgebouw_cr_Hans_Roggen__ScaleMaxWidthWzE1MDBd_CompressedW10.jpeg


keyword
작가의 이전글세계의 연주홀 - 9 Wiener Musikverein