공간도 유통기한이 있을까?오래된 공간이 힘을 잃는 이유

오프라인 스토어를 운영하는 브랜드 담당자를 위한 관찰 기록

by taeinkim



공간에도 유통기한이라는 것이 있을까?


새로운 공간에 가면 나는 자연스럽게 관찰하게 된다.

인테리어는 어떻게 구성되어 있는지,

사람들은 어떤 속도로 머무는지,

그리고 왜 이 공간에 사람들이 모이거나 떠나는지.


이 질문은, 예전에는 늘 사람들로 가득했지만

어느 순간 다시 찾지 않게 된 공간들을 보며 시작됐다.


예전에는 늘 사람들로 가득했던 공간들이
어느 순간부터 발길이 줄어든 모습을 종종 보게 된다.
사라진 것도, 망한 것도 아니지만
굳이 다시 찾게 되지 않는 공간들이다.


이유는 다양하다.
소비자의 라이프스타일이 바뀌었을 수도 있고,
SNS를 통해 공간을 소비하는 속도가 훨씬 빨라졌기 때문일 수도 있다.
하지만 이 현상을 공간의 관점에서 보면
문제의 핵심은 ‘낡음’이 아니다.


중요한 것은 사람들이 그 공간을 사용하는 방식이 바뀌었는지,
그리고 그 공간이 여전히 존재 이유를 가지고 있는지다.


단지 예쁘기만 한 공간은
사진 한 장으로 소비되고 기억에서 사라진다.
한 번의 방문으로 끝나는 공간이 아니라,
다시 머물 이유를 만들어주는 공간인지에 대한 고민이 필요하다.


내가 해석한 공간의 유통기한은 명확하다.
소비자의 니즈, 브랜드의 목적, 공간의 컨셉
이 세 가지가 여전히 같은 방향을 바라보고 있는가.


이 글은 브랜드 공간을 설계하며 실제로 마주했던 사례를 바탕으로 정리했다.

비슷한 고민을 하고 있다면, 이야기를 나눠보는 것만으로도 방향이 정리될 수 있다.


시작하기 앞서 예시로 감성적인 분위기의 베이커리 카페를 상상해보자.
공간은 유명한 인테리어 스튜디오를 통해 트렌디하게 완성되었지만,
브랜드의 목표는 박리다매 방식의 대량 판매라면
소비자는 한 번의 방문 이후 다시 갈 이유를 느끼지 못한다.


이 경우 공간은 SNS에 남은 한 장의 사진으로 소비되고 끝난다.
공간의 문제라기보다 브랜드와 소비자 사이의 방향이 어긋난 결과다.


반가의 (1).jpg


이러한 변화는 오래 운영된 공간에서 더 분명하게 드러난다.
프로젝트를 진행했던 전통 한복 브랜드 반가의 우리옷 역시
시대의 흐름 속에서 운영 방식의 변화를 겪었다.


예복 수요가 줄어들며 맞춤과 대여 공간이 하나로 합쳐졌고,
기존에는 여유롭던 공간이 사람과 재고, 동선이 겹치는 구조로 바뀌었다.


기존 공간의 전통적인 목재 구조와 패턴은 여전히 멋스러웠지만,
운영 방식이 달라진 상황에서는 오히려 공간의 개방감이 단점으로 작용하기 시작했다.
공간이 시대의 변화에 맞춰 다시 정렬될 필요가 생긴 것이다.


여기서 중요한 질문은 이것이다.
공간의 변화만으로 이런 문제를 해결할 수 있을까?





정답은 완벽한 ‘예’는 아니다.
하지만 공간은 사람들의 시선을 다시 모으고,
이후의 경험을 지속시킬 수 있는 충분한 역할을 한다.


그래서 해결의 방향은
겉모습을 바꾸는 리뉴얼이 아니라
브랜드 자체의 재정렬에 있다.


공간의 관점에서 보면 운영 방식은 레이아웃과 동선으로,
브랜드의 방향성은 공간 컨셉으로 드러난다.
유행하는 스타일을 따르기보다
이 브랜드가 지금 무엇을 말하고 싶은지,
그리고 소비자는 무엇을 기대하는지에 초점을 맞추는 과정이다.


반가의의 경우 브랜드가 말하는 것은
역사와 전통이 담긴 기품 있는 한복이었고,
소비자가 원하는 것은
그에 걸맞은 프라이빗하고 신뢰감 있는 경험이었다.


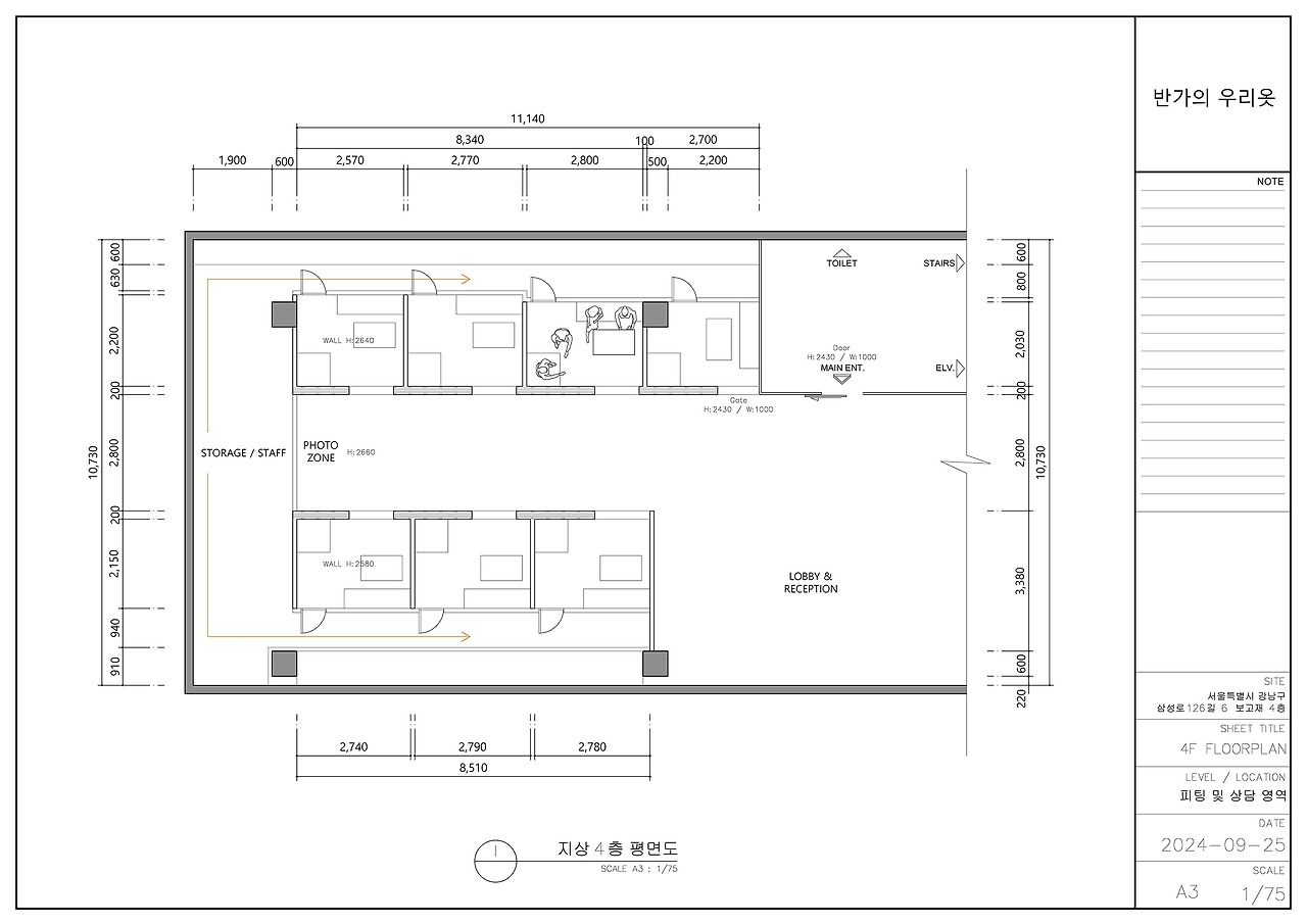
[스튜디오 보이] 반가의 우리옷 도면 240925 - 복사본.jpg 반가의 우리옷 청담점 상담실 도면



이에 따라 공간은 1:1 상담이 가능한 룸 형태로 재구성되었고,
운영 동선과 고객 동선을 분리해 혼잡함을 줄이는 방향으로 정리되었다.
공간은 더 이상 한복 전시장이 아니라 브랜드를 경험하는 장소가 되었다.



KakaoTalk_20240922_180428706_16.jpg
KakaoTalk_20240922_180428706_23.jpg
리뉴얼 전
반가의 (12).jpg
반가의 (10).jpg
리뉴얼 후






디자인 과정에서는 가구와 소재를 통해 브랜드의 헤리티지를 담아내고자 했다.
한옥의 구조를 해석한 가구, 수평과 수직의 힘이 균형을 이루는 디테일,
한지와 조명을 활용한 부드러운 음영과 묵직한 다크 우드의 대비가 공간의 중심을 잡았다.


이처럼 오래 운영된 공간이라도 소비자의 경험은 공간을 통해 다시 설계될 수 있다.



반가의 (4).jpg
반가의 (7).jpg
BANGAUI Dark Wood Table


반가의 (9).jpg
반가의 (8).jpg
BANGAUI Dark Wood Bench



이 글을 통해 전하고 싶은 마음은 단순하다.
내가 좋아했던 공간들, 좋은 경험을 남겼던 공간들이
조금 더 오래 유지되기를 바란다.


공간은 시간이 지나면 변하지만,
그 안에서 만들어진 경험은 사람의 기억 속에 더 오래 남는다.
내가 만드는 공간 역시 그렇게 기억되기를 바란다.



반가의 디자인 스토리 보러가기 << Click