brunch

빨래와 주택설계

살림살이의 소소함이 드러날 때 집은 완성된다

by 김주원

요리, 청소, 빨래, 쓰레기처리. 집안일의 4대 핵심과제다.

단독주택이라면 여기에 주택과 정원관리가 추가된다.

무릇 좋은 집이란, 이 살림살이의 동선이 효율적으로 구성되어야 하는 법.


오늘 주제는 빨래.


설계를 할 때, 이 세탁실의 위치를 정하기 위해 세가지 정도의 옵션을 제안한다.

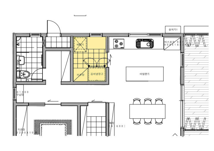
가장 고전적인, 첫번째 옵션은 주방 옆 다용도실. 물론, 아파트라면 달리 선택의 여지는 없다만 주택이라면 각자의 라이프에 따라 고려해봄직하다. 주생활자가 주방과 같은 플로어에 침실을 두고 있다면 괜찮은 선택이다. 다용도실은 문을 닫을 수 있으므로, 세탁/건조시에 발생하는 소음도 효과적으로 제어할 수 있다. 다른 주방일을 하면서 간간히 빨래돌리기를 병행할 수 있는 것도 장점이다. 다만, 다용도실을 복합용도로 사용하고 있다면, 빨래통 등을 여간 정리하지 않아서는 다용도실을 세컨주방 용도로 사용하기에 좀 복잡해지는 것은 단점. 개인적으로 나는 동선이 너무 깊어져, 이 방법을 그다지 선호하지는 않는다.

고사리주택_세탁실_230920_114357692_0.png 인제 고사리주택 @하우스스타일 설계
[크기변환]인제주택-14.jpg 주방과 연결된 문 안쪽이 세탁실 겸 다용도실 공간 @고사리주택




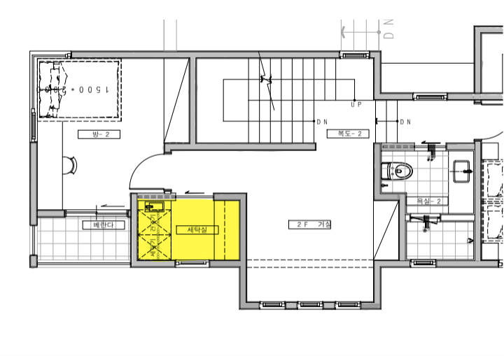
두번째 옵션은 복도 어딘가에 문을 닫을 수 있는 세탁실을 만들어 사용하는 방법. 공간적 여유가 있다면, 빨래통과 생활용품수납이 함께 된다면 훌륭한 선택이다. 이 경우의 단점이라면, 공간이 충분히 깊지 못하면 세탁기문을 열어둘 수 없다는 점 정도랄까? 예전 세탁기는 오버플로우 등에 대한 걱정으로, 세탁실 바닥에 배수가 되고 타일로 마감하기도 하였지만, 요즘은 마루바닥에 배수를 올려심고, 여기에 바로 세탁기 배수관을 꽂는 방식이 통용된다. 배관막혀 오버플로우 했다는 이야기는 못들었지만, 간혹 세탁기 청소를 게을리하면 세탁조 안에서 구멍이 막혀 넘치는 물이 마루로 흘러넘치는 경우가 있으니 주의할 것.

충분한 깊이와 폭을 확보할 수 없는 경우가 많기 때문에, 이때 세탁실 문은 가구도어로 틈새가 좀 있는 갤러리 도어로 구성하는 것이 좋다. 세탁기 문을 살짝 열어둘 때, 환기가 되는 것이 중요하다면. 다만, 세탁기가 돌아가는 동안의 소음이 신경쓰인다면, 추천하지 않는다. 무엇이 더 중요한가에 대한 우선순위의 문제이지, 틀린 것은 아무 것도 없다.

담영재1층.png 경산 담영재 세탁실 @하우스스타일 설계


[크기변환]50경산주택-19.jpg 복도 동선을 활용해 세탁실을 배치한 경산 담영재

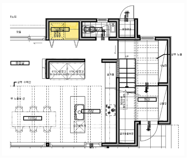
세번째 옵션. 나처럼 1층을 주방/거실로 사용하고 주생활자들의 침실공간이 2층에 있다면, 적극적으로 세탁공간을 2층으로 옮길 것을 권한다. 이 경우 욕실을 세면공간과 변기/샤워공간으로 분리해 세면공간을 파우더룸 겸 세탁실로 같이 활용할 수 있다. 나는 2층에 별도의 분리된 세탁실을 두고, 세탁기와 건조기를 나란히 두고 반대편으로 세탁통과 의류관리기를 함꼐 두어 사용하고 있다. 생활용품 수납을 겸하니 팬트리+세탁실의 조합이다. 사례로 든 주택, 노로재는 작년에 지어 살고 있는 우리집이다.

빨래가 주로 나오는 욕실과 세탁실, 의류를 보관하는 침실 혹은 드레스룸, 그 중간에 빨래를 개고 관리할 수 있는 다목적룸과의 동선이 관건이다. 사람의 동선 못지 않게, 이 빨래의 이동동선이 살림의 질을 꽤 많이 좌우한다는 것을 기억하자. 2층 거실은 나중에 방이 필요할 때 막아서 방으로 쓸 참인데 현재는 다목적룸으로 사용되고 있다. 주로 빨래개는 공간.

노롲재2층_230920_112740965_0.png 양평 노로재 세탁실 @하우스스타일 설계


그간의 꼼수로는 2층 욕실에서 아랫층 세탁실로 빨래를 던져넣는 직통 대형파이프를 매립하기도 하였지만, 그 통로가 층간소음의 전달통로가 되기도 하고, 층이 분리되어 있다면 빨래가 층간이동을 하는 것은 꽤나 힘든 일이어서 추천하지 않는다.

한층으로 구성된 아파트에서 단독주택으로 이사갈 때, 익숙한 동선대로 세탁실을 1층 주방 옆 다용도실에 두곤 하는데, 이게 꽤 많은 스트레스 유발요인이라는 후일담을 듣곤 한다. 특히 빨래 정리를 위해서, 별도 전용트레이가 필요하다는 이야기도 들었다.

최근의 사례에서는, 가족 공용 드레스룸을 1층에 크게 구성하고, 여기에 욕실과 함께 세탁공간까지 함께 마련하는 경우도 보았다. 일종의 다목적가사실이랄까. 꽤 큰 공간을 할애해야 하는 일이긴 하지만, 수납을 한꺼번에 처리하고 나면, 침실들을 타이트하게 설계할 수 있고, 침실 내 가구배치가 자유로워지는 장점도 있다.


세탁실, 1층에 둘 것인가 2층에 둘 것인가. 단독주택 설계에서 정말 중요한 의사결정요인이다.

요즘은 2층으로 많이 올라가고 있는 듯한데, 단 세탁기 수평을 꼭! 전문설치기사를 통해 잘 맞춰서 설치할 것. 특히 목조주택이라면 세탁기 탈수코스에서 진동을 느끼지 않으려면 말이다.

주택설계란 살림살이의 소소함을 살뜰히 챙겨 반영하지 않으면 안되는 것인만큼, 오늘은 아주 소소한 세탁실 위치에 대한 그간의 고민과 결과를 간단히 정리해 보았습니다.


주택설계란 살림살이의 소소한 고민을 살뜰하게 반영하지 않으면 안되는 일인만큼, 오늘은 시시하다 생각할지 모르는 세탁실 위치에 대한 그간의 고민과 사례들을 정리해 보았습니다. 소소하지만 의외로 중요한 살림살이의 배치, 앞으로도 사례중심으로 이어나가 보겠습니다.


2023.9.20.

집짓는 고양이

keyword
작가의 이전글새로운 가족, 새맘뜰 공동체주택