brunch

주방의 치트키, 아일랜드조리대

물과 불, 어느 쪽이 좋을까

by 김주원

주방설계의 중요한 세 꼭지점, 냉장고-개수대-가열대의 거리의 합이 짧게 하는 것이 중요하다. 특히, 개수대와 가열대 사이에 놓여지는 빈 공간, 조리대라고 부르는 공간의 폭은 900-1200 정도로 설계하는 것이 원칙이다. 여기에 아일랜드 조리대가 배치된다면, 조금 계산이 복잡해진다.

이상적으로는 아일랜드 조리대가 충분히 길어서, 개수대와 가열대가 양쪽 여유공간을 두고, 그 사이 공간에 조리대가 충분히 확보될 수 있는 것이 좋다. 그러자면 아일랜드는 최소한 3미터 이상이 나와야 하니, 어지간한 집에서는 꿈도 못꿀 럭셔리한 주방평면이 되는 셈이다. 여기에 개수대나 가열대를 사용할 때 사방으로 튀게 마련인 물과 양념들이 주방 바닥을 온통 어지럽히는 것을 방지하려면, 보통의 주방가구 깊이인 600 앞으로 300 정도의 여유공간을 두는 것을 권장한다. 이쯤되면, 3미터 길이에 깊이 900의 거대한 덩치를 수용할 수 있는 주방이란 대개 주방가구 전시장에서나 볼 수 있지 싶다. 방법이 없을까?

그동안 설계했던 집들을 꼼꼼하게 살펴보고, 소개할 만한 아일랜드 주방배치에 대해 정리했다.


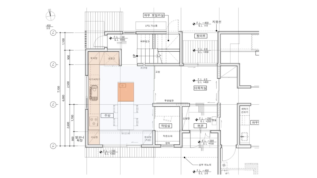
26년차 디자이너인 내가 그래도 다루어본 주택평면은 족히 300개는 넘지 않을까 싶다. 그 중 3미터가 넘는 단독 아일랜드 키친을 평면에 적용한 사례는 딱 두개다. 역시 아파트는 언감생심이고, 단독주택 평면에서는 가능했다. 그 중 하나가 '고석공간'이라고 불리는 김수근 선생님이 1983년 설계한 박고석화백의 자택이다. 이 집의 리모델링을 맡게 된 것이 2020년이니, 지어진지 38년만이다. 이집 리모델링에 관한 사연은 길고도 절절하니, 따로 한번 써야겠다. 리모델링의 핵심은 주방의 위치이동이었는데, 원래 2층 살림집공간에 있던 주방을 1층으로 옮기는 일은 다해놓고 보면 아무 것도 아닌 것 같아도 대공사였다. 3.9미터 길이에 800깊이의 거대한 아일랜드 주방과 측면으로 숨겨진 세컨주방, 별도의 다용도실 공간으로 구성되어 1층에 온전히 자리잡은 주방.

원래 이 공간은 화백의 작업실 바깥에 있던 포치공간이었는데, 실내장지문은 그대로 두어 분합문 역할을 하게 하고, 외창 역할을 했던 유리문은 철거. 이 프로젝트는 외관과 공간의 성격을 최대한 보존하는 것이었던 만큼, 아일랜드만으로 구성된 주방으로 벽면을 해치지 않는 것이 관건이었기에 나올 수 있었던 안이다.

없던 설비를 보이지 않게 구성하느라 고생 꽤 했다. 마침 주방 아래가 주차장이어서, 모든 배관을 지하에서 끌어서 주방 아래로 바로 꽂아서 해결할 수 있었다.

예전에는 아일랜드키친에 가열대를 배치할 때 항상 아일랜드 후드가 따라왔었는데, 요즘은 다운드래프트(오르내리)후드라는 녀석이 나와서, 조금 더 주방의 이미지를 톤다운해 거실공간에 녹아들 수 있게 되었다. 가격이 좀 비싼 것은 흠이고, 이 주방처럼 미리 설비가 되어있지 않다면 탄소필터를 주방가구 하단에 설치해 주기적으로 필터를 갈아주는 방식으로 적용될 수 있다. 어쨌건, 3.9미터 길이의 아일랜드키친의 위용은 그 자체로 존재감이 묵직하다. 커다란 나무가 하나 누워있는 듯한 느낌을 주고 싶어서 선택한 주방가구도어의 재질은 건식무늬목의 일종인 퀄커스판재였고, 상판은 세라믹타일 큰판으로 한번에 처리해 한덩어리 느낌을 해치지 않으려 했다. 그럼에도 불구하고, 드는 의문이 있을 거다. 소소한 주방소가전이며, 냉장고는 어디로 가는가.

파티션같은 가구를 돌려세우고, 냉장고와 그릇장, 소가전수납용 보조작업대를 분합문 뒤로 배치해 주방의 기능에 충실하도록 했다. 처음부터 좀 쎈 디자인으로 기 좀 죽여봤다.

(고석공간 리모델링 / 2020 / 설계:하우스스타일 김주원, 시공:황요셉목수)

거실과 다이닝공간과 이어지는 주방공간. Ⓒ박영채
워낙 앞뒤 사이즈가 빠듯해 커튼대신 매직글라스(온오프로 불투명/투명이 전환되는 유리) 처리한 유리를 창호에 끼워 설치했다. 주방 뒷편으로 보이는 파티션가구와 장식장.Ⓒ박영채
다용도실은 뒷마당으로 이어지는 곳에 증축된 창고공간을 이용해 배치. 김치냉장고를 포함한 팬트리 역할. Ⓒ하우스스타일

그럼, 작은 집에는 불가능할 것이라고 생각하는가? 오산이다.

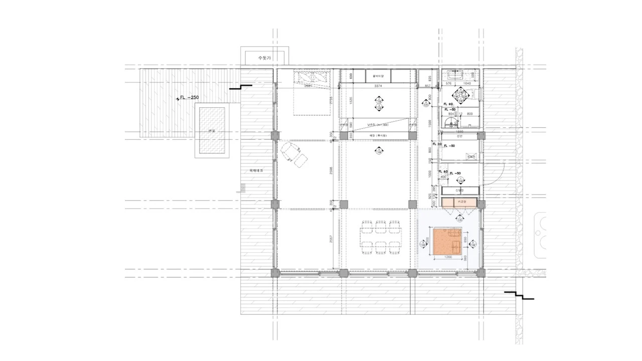
고석공간이 사방 2.5미터의 모듈이 정연하게 배치된 집인 것처럼, 이제 소개하는 한칸집도 사방 3미터 모듈 9개를 붙여둔 집이니, 81제곱미터에 불과한 작은 집이다. 이 집의 9제곱미터 모듈 한칸이 주방인데, 마찬가지로 아일랜드 하나만으로 구성되었다. 물론 극강의 미니멀리스트만 거주할 수 있는 것은 맹점이지만, 자세히 보면 있을 건 다 있는 주방이다. 현관쪽을 파서 한문냉장고와 팬트리장을 배치하고, 사방 1200의 아일랜드안에 작은 싱크대와 하이라이트 1구를 배치해 주방의 기능에 충실하다. 이 집 역시 모든 방향으로 확장되는 평면의 강점을 주방이 해치지 않도록 한 설계다. (설계 : 김개천) 원안은 벽면으로 주방이 배치되었었지만, 공간을 다듬는 과정에서 아일랜드 주방 아이디어가 받아들여져 지금의 평면으로 완성되었다. 이 프로젝트는 하우스스타일이 건축가와 협업한 1호 프로젝트로 의미가 깊다. 간소한 삶을 지향한다면, 참고할 만하지 않은가.

(한칸집/2013/설계:김개천+하우스스타일)

한칸집의 전체 평면을 보지 않는다면, 이 주방의 배치가 이해되지 않을지 모른다. 평면의 장점을 살리는 주방설계는 중요하다. Ⓒ김개천, 하우스스타일
한칸집은 작지만 거대한 집이라 불린다. 3미터 모듈은 사방으로 확장되어 어느 방향으로도 9미터, 혹은 그 이상의 공간감을 느끼게 한다. 아일랜드 후드가 적용되었다.


아일랜드가 물과 불, 그러니까 개수대와 가열대를 모두 포함하게 하는 것이 지극히 효율적이지만 현실적인 이유로 그렇게 할 수 없다면 둘 중 어떤 것이 오는 것이 좋을까. 나는 정답이 있다고는 생각할 수 없고, 취향의 차이라고 밖에 못하겠다. 다만, 주방에서 일어나는 행위를 연구하는 학자들의 조사에 따르면, 한끼 식사준비에는 평균적으로 개수대는 약 25분, 가열대는 7분 내외라고 하니 개수대를 사용하는 시간의 양이 조금 더 많다는 점이 힌트가 될 것 같다. 조금 더 많은 시간을 대면주방의 형태로 사용하고 싶다면 개수대를 배치하는 것이 좋겠고, 개수대 주변에 많은 물품을 수납하는 사용습관이 있거나, 개수대를 항상 깔끔하게 유지할 자신이 없다면 벽면으로 가는 것이 옳다. 혹은 둘 중 아무 것도 없이, 조리대로 사용하거나.

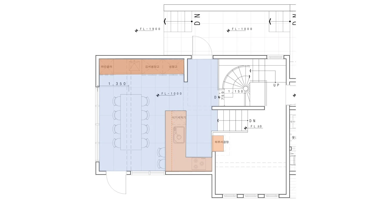
내가 사는 집인 노로재는 중간 형태인데, 벽면에 붙여 가열대를 배치하고 ㄱ자로 꺾어 대면형태로 개수대를 배치했다. 아일랜드 형태로 나온 부분은 900 깊이로 설계해, 양쪽으로 수납을 가능하게 했고.

요즘 주방 트랜드 중 하나인 음료바, 혹은 홈까페, 혹은 베버리지바라고 부르는 보조싱크는 다음편에서 개속하기로 하자. 이 주방을 사용해 보니, 가열대와 개수대 사이의 조리공간이 조금 모자란 것이 살짝 불편하긴 하지만, 식기세척기가 배치된 위 상판을 두번째 조리대로 사용할 수 있고 아일랜드의 폭이 깊어 크게 불편하지는 않다. 조리대 넓이 900-1200이라는 원칙은 깊이가 충분히 깊다면 700 정도까지는 괜찮다로 바꾸어야겠다. 디자이너에게 이런 구체적인 수치가 체화되어 있는 것은 아주 중요하다.

(노로재/2022/설계:김주원, 시공/케이에스피앤씨)

컴팩트하게 설계된 주방배치. 단차를 이용해 뒷쪽으로 서랍장을 하나 넣은 것이 신의 한수였다고 자평한다. Ⓒ하우스스타일
대면형일 뿐 아니라 넓은 창을 통해 보이는 숲풍경이 노로재의 중요한 인상을 결정짓는다. 키큰장은 한쪽으로 붙여 배치했다. Ⓒ박영채
아일랜드인듯, 아일랜드 아닌듯한 위치. 앞뒤로 동선이 트인 주방은 의외로 편리하지만, 늘 전시장처럼 주방을 관리해야 하는 어려움이 있다. 사용한 후드는 가구매입형. Ⓒ박영채

아일랜드 테이블의 높이는 꼭 850이어야 할까?

주방가구의 높이는 으레 850이었다. 모든 하부매입형 주방가전도 거기에 맞춰 나오니까, 그런 줄 알았다. 한국인의 평균신장이 커졌고, 남자들의 주방일도 많아졌기 때문에 간혹 본주방테이블은 850에 맞추지만 아일랜드테이블은 조금 높이 설치하는 경우가 있다. 이 경우, 아일랜드테이블과 높이 750인 식탁을 나란히 놓았을 때 애매하게 100정도 차이나는 것보다 보기에 낫고, 키가 큰 사람들이 작업대로 사용하기에도 높이 950-1000의 아일랜드 작업대는 훌륭한 선택이다.

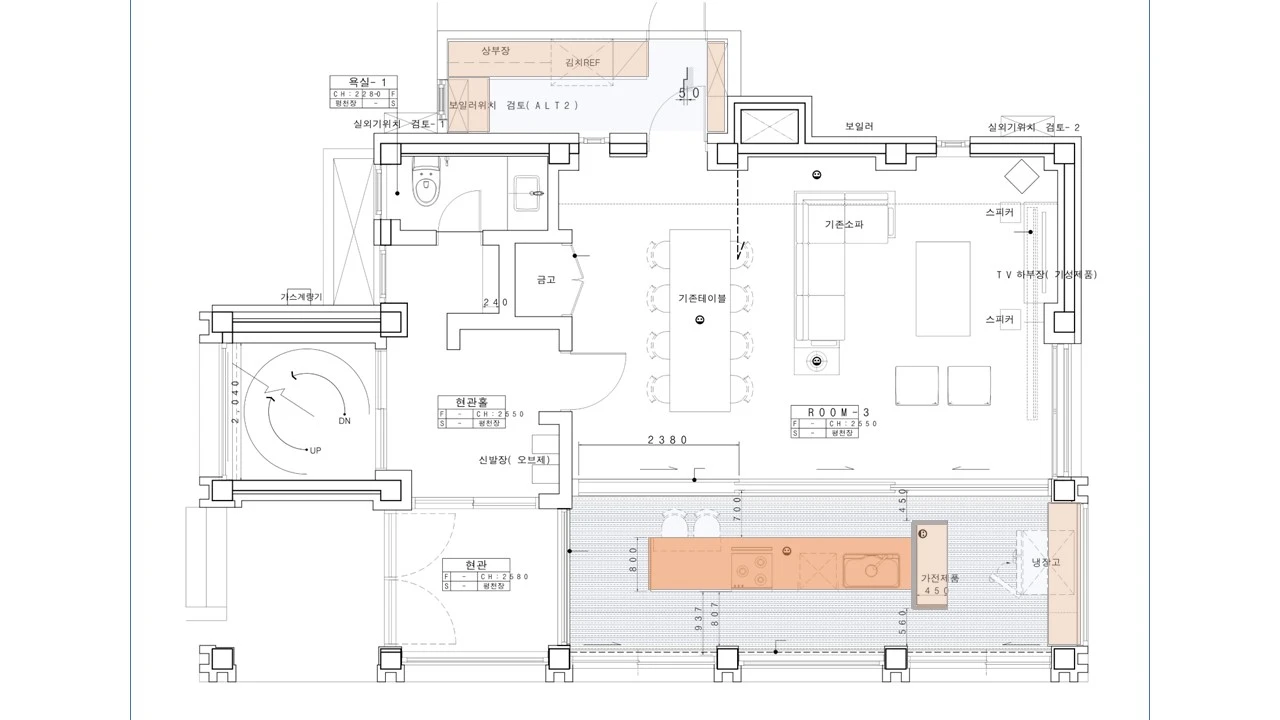
깨알공장은 프렌치감성의 웹툰작가 아내와 개량한복 감성 국어선생님 남편이 봄과 나무라는 이름의 아들,딸과 함께 지내는 집이다. 한식 다목적홀과 프로방스풍 주방이 만나는 장면이 근사하지 않나? 두 공간이 만나는 장면에서 파티션 역할을 하도록 놓여진 아일랜드 테이블에는 작은 두번째 개수대가 배치되었다. 키가 큰 남편의 작업공간이기도 하고, 주방을 조금 가리는 역할이기도. 요즘 트랜드가 개수대 2개인 건 많이 알려졌다. 뭐, 다다익선이니까. 특히 식후 과일을 씻거나 차를 준비하거나 할 때 유용하고, 무엇보다 개수대가 없다면 아일랜드의 활용도가 확 떨어지는 건 사실이니까. 물없는 주방이 어디 있을까.

깨알공장 아일랜드의 포인트는 1000이라는 높이와, 두번째 개수대를 품고 있는 작업대에 있다.

(깨알공장/2019/설계:하우스스타일 김주원, 시공:케이에스피앤씨)

현관홀을 확장해 다실로 계획된 한식다목적실, 그 너머로 프로방스풍 주방이 병치되었다.Ⓒ박영채
아일랜드 테이블의 높이는 1미터, 두번째 개수대가 설치되어 키큰 남편이 허리를 굽히지 않고 사용할 수 있도록 했다. 가열대를 제외하고는 1000이라는 높이는 나쁘지 않다. Ⓒ박영채
누가 봐도 이집 동선의 중심이 된 주방공간. 침실공간은 별채처럼 조용하게 배치되었고, 2층동선의 피해갈 수 없는 마주침으로 가족은 끈끈해짐. Ⓒ박영채

누구는 아일랜드테이블이 너무 뻔하고, 큰 덩치인 것이 꺼려진다고 했다. 화순방리에 있는 디귿집 안주인의 말이다. 처음에는 아일랜드가 계획되지 않았지만, 역시 자주쓰는 그릇의 수납이나, 주방에서 식탁으로 건너가기 전 거치할 작업대, 그리고 약간 주방을 가려줄 수 있는 파티션 역할을 할 수 있는 아일랜드가구를 생각해 보자고 했다. 다만, 이 가구가 너무 존재감이 확실하지 않았으면 좋겠다는 모호한 주문.

이케아에서 철재선반가구를 사이즈에 맞게 구입하고, 3면으로 10mm 불투명아크릴판을 부착해서 후면과 측면을 처리하고, 그 위에 미러글라스를 날렵하게 얹어서 수납형 아일랜드파티션을 제작했다. 결과는? 나쁘지 않았고, 독특한 주방풍경을 완성해 주었다. 역시 고정된 것이란 아무것도 없다. 본질에 충실한 한걸음의 궁리만 있을 뿐. (화순방리디귿집/2016/원설계:이강수+강주형 리빙큐브매니저:김주원, 시공:시스홈씨앤엘)

주방과 다이닝, 거실이 하나로 이어지는 전형적인 LDK 통합형 주방이다. 너무 휑한 느낌을 상쇄할 만한 아일랜드테이블 아이디어가 요구되었다. Ⓒ하우스스타일
해놓고 보니 허전한 느낌을 지울 수 없어 고안된 아일랜드 파티션가구. 이것은 아일랜드인가. Ⓒ박영채

마지막으로, 최신 주방트랜드 하나 소개해 보자.

아일랜드와 히든키친 조합이다. 주방전시장에 가면 많이 볼 수 있는 아이템인데, 뒷 벽면에 팬트리장과 함께 물, 불, 혹은 그 중 하나를 배치하고, 그 앞에 인서트도어를 설치해 사용할 때만 열어서 사용하는 방식이다. 평소에는 넓은 아일랜드 테이블로만 주방의 역할을 다하게 하는 것인데, 밀키트처럼 간편한 요리식이 보편화된 요즘 같은 시대에 꼭 맞는 주방이랄까. 뭔가 간단히 조리하고 플레이팅하기만 하면 근사한 식사가 차려지는 마법같은 시간을 위한 주방이다.

하이엔드 주방브랜드 중 하나인 '하농'제품.


keyword