brunch

건축가의 주유천하 V 전라 군산 근대건축 조선은행

열하나. 근대건축의 보루…군산 05 구 조선은행 군산지점

by Architect Y

구 조선은행 군산지점

채만식 소설 [탁류]에서 고태수가 다니던 은행으로 묘사된 곳.


광복 후엔 은행 건물로 사용되다, 예식장에서 유흥업소로 쓰이기도 했다.

2010년 개항 100주년을 맞아 군산시는 '근대문화유산 벨트화 사업' 시작.

일단 17억 투입해 조선은행 리모델링 착수하여 근사한 건축관으로 재탄생했다.

근대건축물의 복원 과정을 세밀하게 살펴볼 수 있고, 당시 은행 관련 자료도 찾아볼 수 있다.

구 조선은행 군산지점은 군산시 장미동 12번지와 23-1번지에 자리하고 있다.

본래는 세관의 남쪽에 자리했지만 1922년 현 위치로 옮겼다.

이곳은 군산 개항 후 조계지가 설정되어 있었던 곳이다.

강점기 관공서와 여러 금융시설 및 각종 회사 등이 집중되어 있는 본정통이다.

구 조선은행 군산지점은

1909년 11월 14일에 경성 본점 및 4개 지점, 8개 출장 소와 더불어 동시에 개업하였다.

처음에는 1903년에 개설된 제일은행 군산출장소 를 그대로 인수하여 출장소에 불과하였으며, 군산세관 남쪽에 자리하고 있었다.

군산출장소는 조선은행의 성장과 더불어 1916년에 진남포, 목포, 부산출장소와 함께 지점으로 승격되었고 지점으로 승격되면서 2년 후에는 현재의 대지를 매입하고 1920년부터 새 건물과 사택을 짓기 시작하였다.

상량식의 날짜는 정확히 알 수 없지만 1920년 12월 중에 상량식을 거행하였음을 알 수 있고 설계자는 나카무라 요시헤이(中村與資平), 시공사는 시미즈 구미(淸水組), 공사 감독은 미우라 (三浦儀市)가 담당하였다고 기록되어 있다.

설계에 가장 큰 영향을 미친 건축가는 Anton Feller안톤 펠러로 판단되고 있다.

구 조선은행 군산지점은 건립 당시 군산에서 가장 높은 건물로서 장중한 외관과 건축수법 등에 있어 최고의 건물이었다.

광복 후에는 조선은행이 한국은행으로 바뀌고 전주로 이전하면서 1953년부터 한일은행이 건물을 인수하여 사용하며 본래의 형태와 기능을 유지했다.

1981년 개인이 이 건물을 소유하게 되면서 예식장으로 사용하다가 2층 45평을 증축고

1984년 나이트클럽으로 용도를 변경하였으며

1990년 1층 서쪽 부분에 30평을 증축하면서 건물을 많이 변경하였다.

증축 후 얼마 지나지 않아 화재가 발생하여 건물이 크게 훼손되어 그대로 방치되었다.

1990년대 중반에는 노래방으로 사용하기도 했다.

2008년에 군산시에서 매입한 후 등록문화재 제 374호 로 지정되었으며, 군산시에서는 현재 옛 건물을 복원하여 지금의 근대역사 박물관으로 탈바꿈 된것이다.

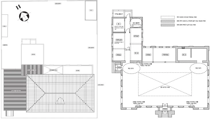
구 조선은행 군산지점은 1920년대 벽돌조 은행건축의 특징을 잘 보여주고 있다.

2층의 기능이 거의 없음에도 불구하고 건물을 2층으로 계획한 것과 층고를 높게 하고, 지붕층을 사용하지 않으면서도 지붕부를 높게 구성한 것 등을 볼 때 기능을 고려하기보다는 건물을 과시하고자 했던 의도가 컸던 것으로 보인다.

전체적인 외관은 사각형 평면에 우진각지붕을 올린 단순한 형태로서 서양식 고전건축의 모습을 취하면서도 장식을 절제하는 등 당시 유럽에서 유행하였던 Secession 근대분리파 양식을 따르고 있다.

안정적인 비례감을 보여주고 있고 정면 중앙에 포치를 돌출시키고 지붕 중심에는 커다란 반원형 도머창을 계획하였으며, 양끝의 벽체를 다른 벽체보다 약간 튀어 나오게함으로써 중심성을 강조하여 건물의 정면성을 강하게 부각시켰다.

벽체와 창호를 일정하게 반복하여 수직성을 강조하고 리듬감을 주고 창호부분은 수평 돌림띠를 여러겹으로 돌려 부분적으로 장식하였다.

구조는 벽돌조로 2층 지붕부는 목조 트러스로 구성하고 금고, 지점장실, 부속공간의 지붕은 평슬래브로 처리하였는데 목조트러스의 형태와 구성 방법은 국내 근대건축물에서는 찾아보기 어려운 희소성을 지니고 있다.

이제 어느정도 완성도를 보이는 장미동 內港내항 일대의 이 조선은행 군산지점과 나가사키 18은행, 미즈 상사 창고 등은 각종 공연장과 북 카페테리아, 갤러리, 근대 기초과학 체험관 등 '예술창작 벨트'로 조성되었다.

keyword
매거진의 이전글건축가의 주유천하 III 경상 도산서원