brunch
매거진 Story

우리가 매일 우연히 마주친다면

두 건축가가 말하는 '유일주택'의 공간 이야기

by 브리크매거진

에디터. 박경섭 사진. 최진보, 이상훈, 김주영, 에이라운드 건축, 마인드맵 건축

자료. 에이라운드 건축 a round architects, 마인드맵 건축 Mindmap architects



전농동은 서울시립대와 청량리역 사이에 자리하고 있는 동네이다. 서울의 오래된 주택가가 그렇듯 얼키설키 뒤얽혀 뻗아나가는 골목에 빌라와 연립주택이 촘촘히 들어차 있는 풍경을 간직한 곳이다. 청량리역에서 서울시립대로 향하는 대로변에 첫 번째로 나 있는 골목으로 내려가면, 주변과 조금 이질적인 모양새의 유일주택이 나온다. 유일주택을 맨 처음 봤을 때 곳곳에 알뜰살뜰 조성된 조경에 감탄했다. 건물 전면의 외부를 향해 노출된 중정과 1층 건물 앞과 지하, 그리고 후면의 층별 화단까지. 유일주택은 집인 동시에 도심 정원이었다. 전면 중정에 심어진 자작나무를 보며, 이 안에 숲을 닮은 공간과 사람들이 살고 있지는 않을지 상상의 나래를 펼쳐 보기도 하였다. 청량리역을 향해 달리는 열차 소음이 한낮의 적막을 일깨우던 평일 오전, 유일주택을 둘러보고 돌아왔다.




열려 있는 집, 자라는 집



유일주택 전면 @Sanghoon Lee
유일주택 전면의 중정 @Sanghoon Lee
입면도 @a round architects & mindmap architects


유일주택 파사드는 상당히 독특하다. 2층과 3층 전면부에 창문이 나 있지 않은 대신, 건물 전면 정중앙에 두 그루의 자작나무가 심어진 중정이 배치되어 있다. 중정은 유리나 창으로 막혀있지 않고 외부를 향해 뚫려 있다. 북쪽 도로에서 보이는 입면을 어떻게 구성할지 치열히 고민한 산물이다. 건물 전면부가 북향이라 4층과 5층은 일조권 사선제한에 맞춰 들어가 있으며, 별도의 테라스가 설치되어 있다. 유일주택 전면부 바로 앞 도로에서 건물을 쳐다보면, 바깥을 향해 가지를 드리운 자작나무의 푸르름에 가장 먼저 눈길이 간다. 여기에 건물 바로 앞뜰에 지피류로 조경을 하여 산뜻함을 더했다. 자칫 심심해 보일 수도 있는 아이보리 색 외장에 녹음이 어우러짐으로써, 한 번 보면 좀처럼 잊을 수 없는 건물의 얼굴이 완성되었다.


유일주택 후면 @Sanghoon Lee
단면도 @a round architects & mindmap architects


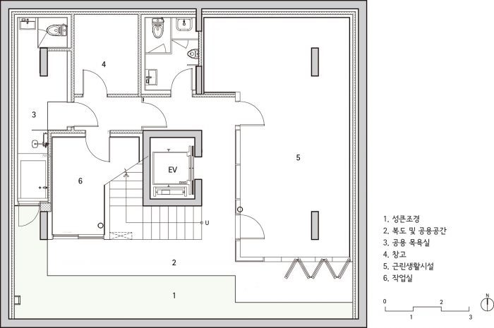
유일주택의 전면부의 오프닝이 테라스와 중정, 자작나무로 구성되어 있다면 후면부 오프닝은 공용 공간인 층별 화단과 성큰 가든이 핵심이다. 유일주택은 남측 세대가 북측 세대보다 살짝 들어 올려져 있는데, 대지 조건과 채광을 고려한 결과이다. 그 때문에 4층에 위치한 두 개의 1.5룸에서는 주방에서 침실로 넘어가는 지점에 내부 단차가 생겼지만, 지하 공간에서 큰 장점으로 작용하였다. 주변 건물들의 높이가 낮은 영향도 있지만, 건물의 단차는 지하 1층에 조성된 성큰 가든에 풍성한 햇볕이 들어오도록 만들었다. 훌쩍 자라 1층을 향해 가지가 올라온 성큰 가든의 단풍나무처럼, 층별 화단에 심긴 가우라도 무성히 우거져 줄기를 아래로 떨구었다. 햇볕이 뜨거워지는 만큼 식물들은 빠르게 생장하여 건물 외부를 향해 고개를 내밀고 있으니, 유일주택은 날마다 조금씩 자라는 셈이다.


유일주택 선큰 가든 @Sanghoon Lee
유일주택 선큰 가든 @Sanghoon Lee
지하 1층 평면도 @a round architects & mindmap architects


“건물과 마주했을 때 오프닝과 나무만 보이도록 북쪽 도로에서 보이는 입면에 창을 뺐어요. 움직임이 있는 식물이 건물 한가운데에 있으면, 파사드에 자연스러운 변화가 끊임없이 생기리라 생각했죠. 유일주택의 경우 도로와 맞닿아 있는 북향과 후면부인 남향 공간 사이에 단차가 있어요. 지하 성큰 가든으로 더 많은 햇볕이 들어갈 수 있도록 의도한 부분이에요. 사선제한을 북쪽으로 받으니까, 남쪽에서는 가능한 많은 햇볕을 끌고 들어가고 싶었어요.” – 박창현 건축가(에이라운드 건축 대표)

“전농동은 평범한 주거 지역이다 보니까, 주변 풍광도 일상적이에요. 전면부인 북쪽 세대에 집 안에서 볼 수 있는 풍경을 만들어주고 싶었어요. 외부로 트인 중정이 배치되면서 자연스레 유일주택의 입면에도 영향을 미쳤죠. 유일주택 중정과 복도는 건물 내부와 외부의 경계에 있어요. 막힘없이 비바람이 오가고 햇볕이 떨어지지만, 그래도 건물 내부이긴 하니까요. 식물들이 조금씩 자라는 모습을 거주자분들이 공유하게 하고 싶었어요.” – 최하영 건축가(마인드맵 건축 대표)




공용 공간, 일상을 공유하다



유일주택 남쪽 복도 공용 공간 ⓒJooyoung Kim


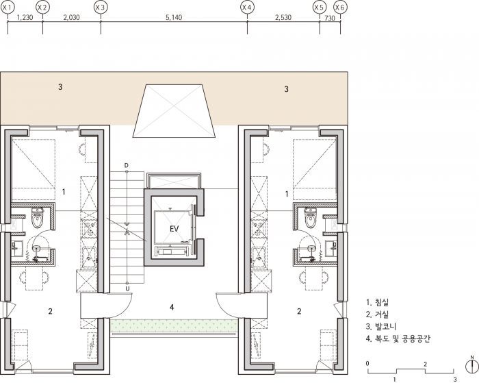
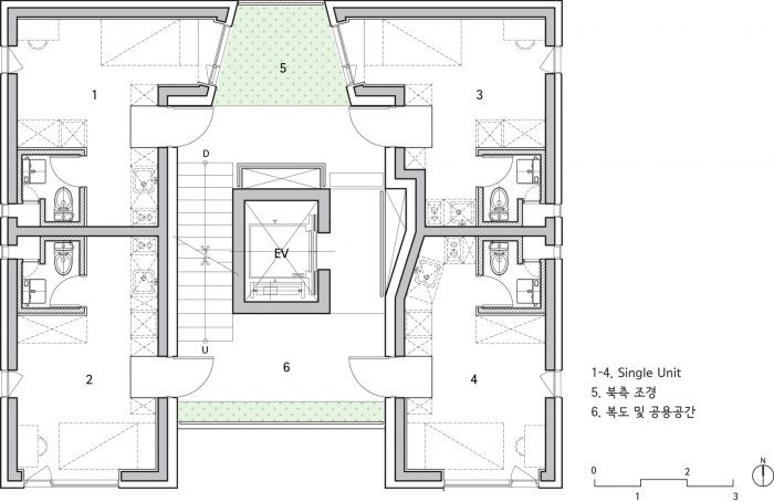
유일주택 2층과 3층에는 각각 네 개씩 총 여덟 개 원룸이 배치되어 있다. 4층에는 두 개의 1.5룸이 있으며, 5층에는 건축주 부모님이 거주하고 있다. 총 열한 가구가 함께 사는 유일주택에서 중정과 화단은 내부 조경 공간 이상의 의미를 지닌다. 일반적으로 다세대주택에서 계단과 복도는 독립적인 공간이라기보다 개별 가구 현관문으로 가는 과정에 놓인 통로 정도로 인식되어 왔다. 자전거와 택배 박스처럼 집에 둘 공간이 없어 바깥으로 나온 물건만이 복도와 계단을 내부 공간을 집의 공간으로 묶어줄 뿐이었다. 각자 따로가 아니라 함께 잘 사는 방법을 찾기 위해, 유일주택은 개별 공간을 조금 줄이더라도 공용 공간을 키우는 쪽을 택했다. 4층, 5층과 달리 2층, 3층에는 독립된 개인 테라스 공간이 없는 것은 그 때문이다.


유일주택 북쪽 세대 @Sanghoon Lee


유일주택 거주자들에게 있어 복도는 작은 마당과도 같다. 서로 따로 나눠 가졌을 때 늘어날 공간보다 두 배는 큰 공간을 다양한 목적에 맞춰 사용할 수 있게 되었다. 누군가에게 복도는 화단과 계절의 변화를 감상하는 휴식의 공간일 것이다. 어떤 이에게는 집에서 잠시 벗어나 커피 한 잔과 함께 생각을 정리할 수 있는 사색의 공간일 것이며, 바쁜 일상을 살아가는 이에게는 노트북을 들고나와 업무를 처리할 수 있는 공간이기도 할 것이다. 다양한 이들이 모이는 만큼 유일주택의 공용 공간의 쓰임새는 더욱 다채로워질 테다. 각자의 쓸모를 채우는 와중에 사람들은 서로 마주칠 것이고, 인사를 나누게 될 테고, 얼굴이 익으면 서로 안부를 묻는 이들도 생길 것이다. 나의 일상이 타인의 일상과 가볍게 맞닿을 때, 삶은 예상치 못한 방향으로 우리를 데려가 뜻밖의 즐거움을 선사한다는 것을 유일주택에 사는 이들은 알고 있다.


2~5층 평면도 @a round architects & mindmap architects


“거주자분들이 집 안에서 의자를 하나씩 가지고 나와, 복도 공용 공간에 머물러도 무리가 없는 분위기를 만들고 싶었어요. 복도와 계단을 넓힌 만큼 공간의 쓸모가 많아지기를 바랐죠. 북쪽 세대 중정에는 자작나무가 심겨 있고, 남쪽 층별 화단에는 지피류 위주로 심어 봤어요. 사람들이 저마다 키우는 화분이나, 허브 같은 작물을 층별 화단에 옮겨 심어 기를 수 있으려면 지피류처럼 조경에 여유를 줄 수 있는 식물이 좋겠더라고요.” – 최하영 건축가(마인드맵 건축 대표)

“남쪽 세대는 각 층의 두 집이 화단과 복도를 공유하는 형태예요. 본인이 원한다면 화단을 직접 가꿔볼 수도 있죠. 반면 북쪽 세대는 2층과 3층의 네 개 세대가 중정이라는 단일한 공간을 공유하고 있어요. 북쪽 세대와 남쪽 세대가 집 안에서 바깥을 바라보는 시선과 공용 공간을 사용하는 방식이 상이해지도록 신경을 썼어요. 입주를 염두에 두는 사람들에게 다양한 옵션을 주고 싶었어요. 무엇보다 사람들이 공용 공간에서 다양한 일을 할 수 있으면 좋겠더라고요. 공용 공간에 별도의 조명과 콘센트도 설치한 것도 사람들이 공간에 오래 머물 수 있도록 하기 위해서였죠.” – 박창현 건축가(에이라운드 건축 대표)




우연한 마주침을 위한 부단한 시도들



유일주택 슬라브의 오프닝 ⓒJooyoung Kim


유일주택은 거주자들 간의 우연한 마주침을 위해 공용 공간을 만들기도 하였지만, 만들지 않는 방식으로도 만남을 유도하였다. 층별 슬라브에 오프닝을 만들어 거주자들이 서로의 존재감을 느끼도록 만들었다. 비록 층이 달라 얼굴을 마주할 기회가 없을지라도, 잠깐의 스침이 차차 쌓임으로써 서로를 한 건물에 함께 사는 이웃으로 인식하게끔 하려는 의도가 담긴 건축적 제안이다. 건물 내부와 외부의 개방감이 사는 이들이 휴식과 환기의 시간을 가지게 하였다면, 건물 내부 간의 개방감은 유일주택 전체를 하나의 공간으로 사고하게끔 하는 계기를 제공하고 있던 셈이다. 대지 조건상 만들어진 건물 내부의 단차는 중앙 계단과 함께, 건물 내부로 들어온 거주자의 동선과 시선이 단절되는 지점 없이 연결되게 만드는 데 일조함으로써, 내부 공간의 오프닝에 담긴 의도를 한층 강화하고 있기도 하다. 건축가는 공간을 만들고, 공간을 사람을 기른다는 믿음이 있었기에 가능한 시도일 것이다.


유일주택 남쪽에서 바라본 엘리베이터와 북쪽 세대 모습 @Sanghoon Lee


“중앙 계단을 따라 오르다보면, 보게 되는 풍경이 계속 달라져요. 사방을 가로막고 있는 벽만 보는 것과는 완전히 다른 경험인 거예요. 공간의 성격은 사람에게 일정한 영향을 준다고 생각해요. 유일주택 의 크고 작은 오프닝은 다분히 의도적으로 만든 것들이에요. 일반적인 건물과 달리 슬라브를 찢어서 오프닝을 만들어 봤어요. 누군가 위층이나 아래층을 지나갔다는 게 인지되는 것만으로도 의미가 있어요. 이웃의 인기척이 자연스레 느껴지면, 경계심이 한층 느슨하고 완만해지거든요.” – 박창현 건축가(에이라운드 건축 대표

“유일주택은 전면과 후면이 각각 중정과 화단으로 개방되어 있을뿐더러, 위아래로도 뚫려있어요. 계단을 중심으로 층별 슬라브마다 오프닝이 배치되어 있고요. 엘리베이터 앞쪽 공간도 벽을 파는 동시에 위아래를 오픈했어요. 사실 굳이 엘리베이터 앞 벽을 파낼 필요는 없거든요. 다만 거주자분들이 느낄 시각적 답답함을 해소하기 위한 장치였죠.” – 최하영 건축가(마인드맵 건축 대표)




좋은 집이라는 것



오렌지색 페인트 ⓒJooyoung Kim
유일주택 4층 1.5룸 거실 ⓒJooyoung Kim


우리는 집의 모양새, 공간적 특질, 마감의 세밀함 등 수많은 조건에 따라 집이 얼마나 좋은지 혹은 나쁜지 가려내려 한다. 이 집은 이것이 문제고, 저것이 아쉬우며, 이런 걸 보강해야겠다고 오가는 말은 결국 그 집의 부동산적 가치를 명확히 가려내려는 욕망에 기대고 있는 경우가 많다. 집은 사는 이가 편히 머무를 수 있는 곳이어야 한다는 것, 그래서 자극과 환기의 장이 될 수 있어야 한다는 박창현 건축가와 최하영 건축가의 말은 넘쳐나는 말의 홍수 속에서도 새겨들을만한 가치가 있는 이야기일 것이다. 열한 가구가 사는 유일주택에서 누군가는 오늘도 이웃과 우연히 스치고, 마주치며 하루를 보낼 것이다. 그 시간이 좋은 집을 만들어가는 여정이리라 믿어 의심치 않는다.


유일주택 4층 1.5룸 테라스 @Sanghoon Lee
유일주택 북쪽 세대 원룸 @Sanghoon Lee


어떤 집이든 집은, 사는 곳이라는 본연의 의미에 충실한 공간이어야 해요. 정말 좋은 집은 가격이 아니라, 내부 공간과 그것을 둘러싼 환경에 따라 결정된다고 봐요. 건축이 가진 고유한 특성이 살아나야만 하는 거죠. 집의 태생적 불리함은 충분히 극복 가능해요. 악조건도 얼마든지 우회할 수 있거든요. 유일주택 역시 내부 단차를 공간적으로 잘 풀어냈잖아요. 좋은 집은 거주자가 그 안에서 품격 있게 머무를 수 있는 곳이라고 생각해요. 가격이나 크기는 부차적인 거죠. – 최하영 건축가(마인드맵 건축 대표)

유일주택을 설계하고 짓는 동안 건물이나 건축 안에서 이뤄지는 시도가 꼭 기능과 연결되어야만 하는지 의문이 들더라고요. 유일주택 곳곳에 칠해진 오렌지색 페인트가 고민의 결과물이에요. 기능과는 전혀 상관이 없죠. 그냥 페인트를 칠한 거니까요. 신경 쓰지 않고 지나가면 그만이지만, 한 번 눈에 띄면 계속 찾아보게 될 거예요. 다른 공간에는 어디에 칠해져 있을지 궁금해질 테니까요. 그 과정에서 공간이 달리 보이는 경험을 얻을 수도 있겠죠. 예술과 건축의 교집합에 있는 작업이라고도 할 수 있겠네요. 집이라는 게 기능도 중요하지만, 사는 이가 끊임없이 자극받고 환기될 수 있는 여유도 중요하지 않을까요 – 박창현 건축가(에이라운드 건축 대표)


유일주택 층별 화단 ⓒJooyoung Kim





<브리크 brique> 웹 페이지에서 더 자세히 보기 : http://asq.kr/HeE3vTvxnQsO


<브리크 brique>의 더 다양한 기사 보러가기 : https://magazine.brique.co/articles/


keyword
매거진의 이전글온전한 ‘1’이 되는 집을 꿈꾸다