brunch
매거진 Story

온전한 ‘1’이 되는 집을 꿈꾸다

서울소셜스탠다드의 '청운광산' 기획과 운영 이야기

by 브리크매거진

에디터. 김윤선 사진. 최진보, 텍스처 온 텍스처, 양성모 자료. 서울소셜스탠다드, 구보건축



청운광산의 기획과 운영을 맡은 서울소셜스탠다드는 ‘서울Seoul’을 배경으로 사람과 시간, 공간이 만드는 다양한 ‘사회적 관계Social’ 속에서 우리가 지지해야 할 ‘표준Standard’을 발굴하는 회사다. 2013년부터 ‘통의동집’, ‘어쩌다집@연남’ 등 다양한 공유 주택 프로젝트를 기획, 운영해왔다. 빠르게 변하는 시대 속에서 집과 삶의 지속 가능한 새로운 기준을 세워나가고 있는 사람들, 김민철 서울소셜스탠다드 대표를 만나 청운광산의 기획과 운영 전반에 관한 이야기를 들어봤다.


김민철-01.jpg 김민철 서울소셜스탠다드 대표를 청운광산에서 만났다. ⓒBRIQUE Magazine


‘사회주택’이라는 말이 아직은 생소한데요. 청운광산은 어떤 집인가요?

사회주택은 주로 정부나 공공에서 시행하는 주거 복지 정책의 하나로, 주변 시세보다 낮은 임대료로 공급하는 공공주택입니다. 청운광산은 그중에서도 ‘서울시 토지임대부 사회주택’으로, 서울시가 보유한 토지를 저희와 같은 민간이 저렴한 이자로 장기임대해 주택을 짓고, 이를 주거 취약계층에게 제공하는 민관 협력 사업이에요. 이미 토지임대부 주택의 많은 사례가 있지만 청운광산은 주택도시보증공사(이하 HUG)를 통해 추진된 1호 사례였기에 더욱 공공적인 성격이 강하고 선례가 없다 보니 행정적인 시행착오가 많았어요. 보통 사회주택을 수익이 없는 집으로 보는 경우도 많은데, 그건 오해예요. 수익이 있어야 운영을 하고, 새로운 것을 기획할 수 있으니까요. 임대수익률은 비교적 낮지만 삶을 위한 새로운 가치를 만들기 위한 모든 시도가 넓게 보면 사회주택 테두리에 있다고 봅니다.


청운광산-collective-mine-구보건축사사무소-GUBO-Architects-최진보-Jinbo-Choi-10.jpg 청운광산 ⓒBRIQUE Magazine


‘공유 주택’을 두고 전문적으로 기획과 운영을 전문으로 하는 회사도 많아졌고, 대기업에서도 다양한 시도가 있어요. 이와 관련해 서울소셜스탠다드만의 운영 철학이 있다면 뭘까요?

주로 신축이나 리모델링 등 시간과 비용이 많이 드는 프로젝트를 해왔어요. 비슷한 시기에 시작한 다른 기업들은 초기투자 비용을 적게 하는 대신 많은 사람이 살 수 있는 공간을 빠르고 저렴하게 공급했다는 점에서 저희와 달랐죠. 초기에 그런 공유 주택이 많이 공급되고 이슈가 되면서 공유 주택이나 청년 주택은 저렴해야 한다는 인식이 높아졌어요. 반면 저희는 저렴한 집에 초점이 맞춰져 있지 않았죠. 정림건축문화재단과 협업해 만든 ‘통의동집’은 월세를 57~67만 원으로 책정했는데, 너무 비싸다는 비판이 있었어요. 공유 주택은 주방과 화장실을 공유하는 형태인데, 이런 집은 옛날부터 존재했거든요. 하숙집, 고시원 등이 그렇죠. 그러니까 원래 있던 방식인데, 왜 30만 원이 아닌 60만 원이냐는 거죠. 우린 단지 ‘우리가 살고 싶은 집’, ‘온전히 1이 될 수 있는, 집다운 집’을 만들고 싶다는 목표를 가졌을 뿐이거든요. 온전한 ‘1’이 되는 집을 제공하기 위해 저희가 찾은 해답 중 하나가 공유 주택이고, 계속해서 새로운 답을 찾아 나가고 있어요. 1인 가구의 공간이든, 삶의 가치든, 우리가 서포트할 수 있는 무엇인가를 해보자는 게 처음부터 지금까지 가지고 있는 목표예요. 지금은 공간의 공유뿐 아니라 서비스의 공유나 재화의 공유로도 시각과 역할이 확장되어 가는 것을 느끼고 있어요.


서울소셜스탠다드-통의동집.jpg 통의동집 개인실 ⓒSeoul Social Standard




집을 기획하고 운영한다는 것은



토지임대부 사회주택 공모에서 대지가 여러 군데 있었는데, 그중 궁정동을 선택해 공모에 참여했어요. 사회주택으로서 가장 가능성이 있는 곳이라고 봤나요?

저층 주거지는 주택이 밀집한 경우가 많은데, 이곳은 남쪽으로 넓은 근린공원이 있고 주변에 높은 건물이 없어 시야가 트여 있는 쾌적한 환경을 가지고 있었어요. 매력적인 환경 조건이 대지 선택의 가장 큰 이유였죠. 공모에 나온 대지 대부분이 서울시 소유로 서울주택도시공사(이하 SH)가 관리하다가 민간에 내놓은 땅이라, 규모가 작거나 역세권에서 벗어나 있어 개발하기 쉽지만은 않은, 어떻게 보면 사업성 면에서 2% 부족한 땅이에요. SH 역시 수익을 남겨야 하는 기업이니 개발 가치가 높은 땅은 그들이 먼저 나서서 개발하겠죠. 다만 대지를 장기임대할 수 있고 공사비를 빌려주는 시스템을 갖춰놓는 등 취지가 좋았기 때문에 사업에 참여했습니다.


청운광산-collective-mine-구보건축사사무소-GUBO-Architects-11.jpg ⓒtexture on texture


사업성 확보를 위한 최소한의 요건은 무엇이 있었나요?

임대 수익을 바탕으로 15년간 빌린 공사 비용을 갚아 나가게 되는데, 검토 결과 최소 11가구가 입주해야 그 비용을 충당하면서 주택 운영이 가능했어요. 사회주택은 임대료를 시세의 80% 수준으로 책정해야 하는 기준이 있어요. 임대료는 주택의 감정평가를 통해 결정되고 이는 주변 시세에 영향을 받는데, 주변에 비슷한 유형의 공유 주택이나 원룸이 거의 없어서 책정하기가 무척 어려웠어요. 감정평가사가 이곳을 고시원으로 해석해서 평가하는 바람에, 사업을 진행할 수 없을 정도로 너무 낮은 감평가가 나와 논쟁도 있었고요. 근거리에 있는 저희가 운영하는 공유 주택 사례를 보여주며 임대료를 다시 책정하는 과정을 거쳤어요.


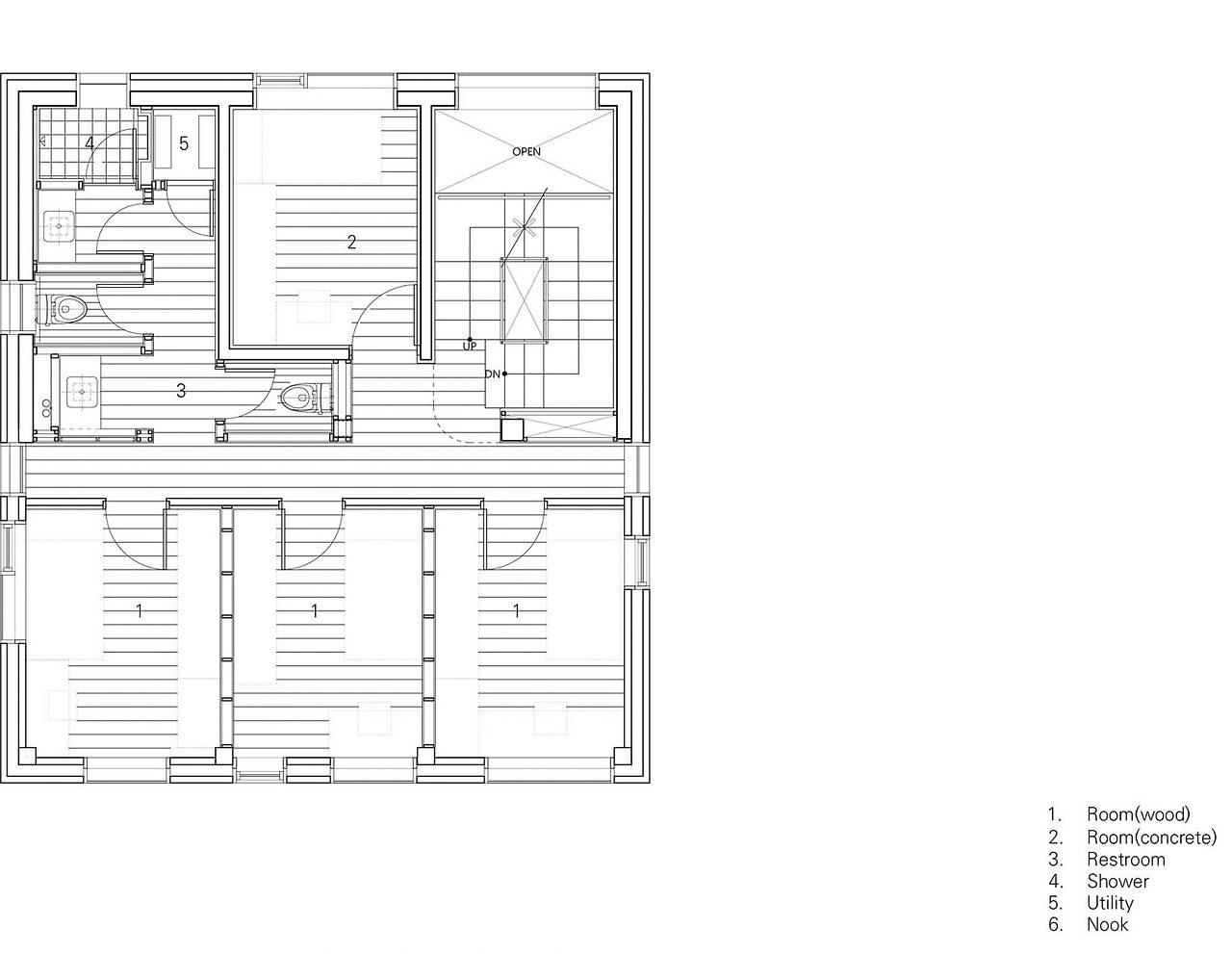
-collective-mine-구보건축사사무소-GUBO-Architects-3층평면도-e1592175010170-1536x1190.jpg 청운광산 3층 평면도 ⓒGUBO Architects


사회주택과 관련해 마련되어 있는 지침이 있었나요?

이전에도 비슷한 형태의 주택은 계속 공급되어 왔고 저희도 많이 참여했기 때문에 최소한의 공간 기준 등은 이미 가지고 있는 상태였죠. 구체적인 가이드라인은 없었지만 저희가 자체적으로 개발한 1인 가구 셰어하우스를 위한 기준을 가지고 있어 그걸 반영했죠. 이전에 SH와 신림동에 있는 리모델링형 사회주택 프로젝트로 협업한 적이 있어요. 그때 많은 논의를 통해 기준을 만들었고, 그 기준이 현재 다른 주택 공고에도 적용되고 있는 것으로 알아요. 실제적인 실행은 오히려 저희와 같은 민간에서 훨씬 능동적이고 발 빠르게 대처할 수 있는 것 같아요. 다만 지침이 없어 어려웠던 점은 돈 문제예요. 금융이 발목을 잡았죠.


돈 문제로 터파기를 다 해놓고 나서 공사가 중단된 적도 있다고 들었어요.

사업을 시작하기 위해 저희와 시공사를 포함해 서울시, SH, HUG, 리츠, 은행 등 총 7개 기관이 약정을 맺었어요. 그런 다음 공사를 시작했는데 누구 잘못이라고 할 수 없지만, 서울시, SH, HUG 쪽과 의견이 맞지 않은 부분이 조율이 계속 안 됐어요. 혹여 사업이 제대로 진행되지 못해 중단되는 경우, 누가 책임을 지고 비용을 부담할 것인가에 관한 문제였죠. 기관마다 보험을 들어놓는데, 그것 중에 몇 가지가 상충했거든요. 그 문제로 공사가 1년 정도 중단됐어요. 결국 서울시가 한발 물러나 새롭게 협약이 맺어졌고 그 가운데 시공사가 노력을 많이 해줬어요. 공사포기각서도 작성하고, 계약금도 없이 공사 진행을 해주셨죠. 공사가 중단되는 바람에 초기에 들어간 공사비의 일부는 사비를 털기도 했지만, 이 부분까지도 다 이해해주시고 공사가 재개될 수있도록 기다려주셨습니다.


계속해서 기획, 운영을 해오면서 지식과 노하우를 축적해오셨을 것 같은데요.

회사를 시작한 2013년 즈음만 해도 우리나라는 공유 주택 문화가 낯설었고 그 기준도 없었어요. 해외 사례에 눈을 돌릴 수밖에 없었죠. 영국, 홍콩, 덴마크 등 서울처럼 임대료가 높은 해외 대도시는 함께 사는 것에 대한 고민을 우리보다 먼저 시작한 터라 공유 주택 논의와 건설이 활발했거든요. ‘코하우징co-housing’이라고 덴마크에서 1970년대에 시작된, 여러 세대가 공동 시설을 마련해 함께 모여 사는 협동 주택 사례를 참조했고, 저희 멤버가 일본 셰어하우스에 살았던 경험을 토대 삼기도 했어요.

기획할 때 세운 중요한 기준이 하나 있는데, ‘4명이 사는 공간이면 문짝이 4개 있어야 한다’라는 거예요. 아파트 욕실에서는 세면대, 변기, 샤워 공간이 보통 한곳에 들어가 있어 언제나 1명밖에 점유할 수 없지만, 공유 주택에서는 사람마다 각자 다른 일을 동시에 할 수 있게 만들어야 한다고 생각했어요. 청운광산 2, 3층은 각각 4명의 입주자가 있는데, 세면공간 1개, 화장실 2개, 샤워실 1개로 4명이 동시에 욕실을 쓸 수 있도록 했어요. 집은 한번 지으면 몇십 년 이상 가잖아요. 시공의 효율성뿐 아니라 유지, 관리 측면에서 하자가 생길만한 부분을 원천 차단하는 게 중요해요. 구보건축에도 11가구의 방과 좋은 공유 공간을 확보하되, 요철과 이음매를 최대한 없애 단순하고 물 안 새는 집으로 설계해달라고 요청했어요. 의외로 물 안 새는 집이 별로 없거든요. (웃음)



청운광산-collective-mine-구보건축사사무소-GUBO-Architects-33-수정.jpg ⓒSungmo Yang
청운광산-collective-mine-구보건축사사무소-GUBO-Architects-46-수정.jpg ⓒSungmo Yang


올해 1월부터 입주를 시작하셨죠. 어떤 사람들이 입주해있나요?

도시근로자 소득 70%(월 약 378만 원) 이하, 주택과 차량을 소유하지 않은 1인 가구만 입주할 수 있다는 제한이 있어요. 동네에 일터가 있는 분들이 들어오기를 바랐는데, 바람대로 대부분 도보로 통근을 하거나 재택근무를 하는 분들이 입주해있습니다. 연령대는 20대부터 40대까지 다양해요. 대학생도 있고요. 역에서 가깝지는 않지만, 오히려 동네의 조용함과 아늑함을

보고 온 분이 많아요. 산이 보이고 바로 앞에 넓은 공원이 있고, 햇살도 잘 드는 남향집이니, 서울에서 쉽게 만나기 어려운 조건이죠. 청와대가 가까워 방범도 확실해요. (웃음) 여러 사람이 함께 살아가는 집인 만큼 공동체 감각과 생활 태도도 중요한데 여성분들이 상대적으로 소셜 포텐셜이 높고 더 열려있는 것 같아요. 처음에는 남성분도 모집할 생각이었는데, 공교롭게도 현재 11가구 모두 여성분들이 거주 중이에요. 입주 전에 한시적으로 숙박해볼 수 있는 스테이를 운영했는데, 그때 오셨다가 계약을 한 분도 있어요.



동네를 밝히는 집의 사명



공모에 여러 기업이 참여했을 것 같은데, 서울소셜스탠다드가 선정된 이유는 무엇이었을까요?

해외 사례를 조사하다 보니 10년 이상 동네에 터를 잡고 운영하는 카페나 음식점이 무척 인상적이었어요. 그들로 인해 동네와 커뮤니티가 살아나더군요. 특히 1층에 어떤 프로그램이 들어오느냐에 따라 동네의 가치와 매력이 결정된다고 느꼈죠. 더군다나 이곳은 생활의 인프라가 별로 없는 동네라 적절한 프로그램이 들어온다면 입주자에게도 좋고, 동네에도 좋은 영향을 미칠 수 있겠다고 생각했어요. 집이 매력을 가지려면 집 자체도 중요하지만, 주변에 갈만한 곳이 있어야 해요. 누가 우리 동네에 놀러 오면 괜찮은 카페나 빵집을 소개해주고 싶잖아요. 집에서 할 수 없는 걸 동네에서 제공한다는 관점에서 초기에는 1층을 마을 주방으로 기획했어요. 일종의 앵커 공간이랄까. 서로 다른 사람들이 모여 살 때 커뮤니티의 중심을 잡아 줄 수 있는 공간이 될 거라고 봤죠. 주인 없는 공간은 결국 버려지기 마련이거든요. 주인이 있되 프로그램에 따라서 누군가는 이곳을 자기의 주방으로 생각할 수도 있는, 집이 확장된 개념의 공간으로 기획하겠다고 제안했어요. 아마 그 부분이 저희가 공모에서 선정된 가장 큰 이유인 것 같아요.

현재 1층과 지하 1층은 발효 식료품 카페가 10년 장기임대로 입주해있어요. 원래 홍대 앞에서 오랫동안 운영해온 채식주의 카페인데, 마침 공간을 확장하고 싶어 하던 차에 저희가 요청을 드렸죠. 장기임대하는 것에 부담을 느끼긴 했지만, 임대료가 시세의 80% 수준이고 지하 1층은 발효음식 연구와 작업, 보관을 위한 공간으로 활용할 수 있다는 게 메리트로 작용했죠. 좀 더 자리가 잡히고 입주자들과 소통이 생기면 함께할 수 있는 이벤트도 기획하고 있어요. 그런 의도를 기획 단계부터 공감하며 들어온 가게라 가능한 일이죠.


청운광산-collective-mine-구보건축사사무소-GUBO-Architects-최진보-Jinbo-Choi-03.jpg 1층에는 발효 식료품 카페 큔qyun이 자리하고 있다. ©BRIQUE Magazine
청운광산-collective-mine-구보건축사사무소-GUBO-Architects-최진보-Jinbo-Choi-13.jpg ©BRIQUE Magazine


그 공간이 공동체 감각을 체득하고 커뮤니티를 형성하는 데 큰 역할을 하게 될 것 같네요.

그동안 여러 공유 주택을 운영하면서 알게 된 것 중 하나가 집에 머무는 시간이 많은 재택근무자나 프리랜서라고 해서 주방에서 음식을 많이 해 먹지는 않는다는 점이에요. 음식은 간단하게 먹고 자기 일을 하는 데 더 바쁜 세대가 요즘 1인 가구죠. 사실 우리나라는 남자든 여자든 부모님과 함께 사는 이상 주방에 손을 안 대는 경우가 제법 많아요. (웃음) 그게 1인 가구로 독립을 했을 때도 이어지고요. 가정간편식(HMR)이나 음식 배달 시장이 성장하는 이유도 그와 관련이 있겠죠. 아마 그게 요즘 변화하는 밀레니얼 1인 가구가 주방과 식문화에 대해 가지는 태도인 것 같아요.


냉장고나 가스레인지 없이도 주방이라고 할 수 있는 시대가 곧 올지도 모르겠어요. (웃음)

제 친구도 주방에 밥통이 있는데, 1년 넘게 사용하지 않았대요. 전자레인지로 즉석밥을 먹는 경우가 많으니 밥통 쓸 일이 없는 거죠. (웃음) ‘통의동집’에서는 입주자 7명이 자연스럽게 만날 수 있는 공간을 만들기 위해 주방을 넉넉하게 두었거든요. 조리 공간이 넓어 좋기도 하지만, 한 달에 한번 기분을 내 요리를 하거나 친구를 초대했을 때 여유 있는 식사 공간이 있다는 점에서 입주자들의 만족도가 무척 높았어요. 주방의 활용이 전통적인 방식에서 벗어나 있었죠.


청운광산-collective-mine-구보건축사사무소-GUBO-Architects-01.jpg 4층에 자리한 공유 주방 ⓒtexture on texture




집과 삶의 새로운 기준을 만들어가는 일



최근 들어 다양한 라이프스타일이 등장하고 있어요. 1인 가구가 증가하고 고령화 시대로 가는 동시에, 생활뿐 아니라 근무 형태도 달라지고 있죠. 이런 상황 속에서 서울소셜스탠다드가 가진 고민은 무엇인가요?

고령화 시대로 접어들면서 1인 가구 역시 실버 세대의 비중이 높아지고 있어요. 저희도 그들을 위한 공간을 생각하고 있는데, 결과물을 내놓기까지는 시간이 더 필요할 것 같아요. 지금 저희가 주목하고 있는 청년 1인 가구도 나이가 들 테고 가치관도 변하겠죠. 저희도 마찬가지고요. 변화와 움직임을 관찰하면서 어떤 공간이 있어야 하는지 파악하는 일이 먼저일 거예요.

최근 진행 중인 노량진 고시원 매입형 공공리모델링 시범 사업(건축 설계: 건축권장 장수정, 가구: 스튜디오 프레그먼트 서동한)은 아주 최소한의 개인 공간을 가지는 공유 주택이에요. 개인실은 침대와 옷장 정도만 두어 극소화했고, 개인실 바깥 벽에 책상과 책장을 붙여 배치했어요. 책상이 개인실 밖으로 나와 있으니 이곳을 사무실처럼 활용할 수도 있겠죠. 생활 공간과 커뮤니티 공간을 넓게 쓰고자 공유 공간을 극대화한 시도예요. 다만 원래 방은 외기에 면해 있어야 하는 법이 있는데, 이 개인실엔 창이 없잖아요. 이전에 없던 형태라 심의 통과하는 데 애를 먹었죠. (웃음)


노량진-도면-삼시옷.jpg 노량진 고시원 매입형 공공리모델링 시범 사업 평면도 ⓒSeoul Social Standard


회사 이름이 서울소셜스탠다드예요. 새로운 ‘기준’을 제시하겠다는 의미가 담겨있는 이름인 것 같은데요. 앞으로 어떤 계획이 있는지 궁금합니다.

우리나라는 공간에 대한 기준이 별로 없어요. 이를테면 기숙사는 주변에서 많이 볼 수 있는 건물인데도, 1980년대 이후로 업데이트가 안 되고 있죠. 찾아보니 군부대 기준보다 못한 열악한 수준이더군요. 초창기엔 그런 물리적인 기준에 대한 고민을 많이 했던 것 같아요. 저희는 ‘원래 그런 것’을 싫어하는 성향이 있어요. (웃음) 청운광산 역시 도시 한가운데 위치한 집이라 다양한 법적 제한에서 벗어날 수 없었는데, 부득이하게 대지 일부를 도로로 내어줄 수밖에 없는 상황이 있었어요. 면적은 사업성에 크게 영향을 미치는 부분이라, 유사 사례든 판례든 꼼꼼히 찾아보며 어떻게든 면적을 확보해보려 적극적으로 관과 협의에 나섰죠. 결과적으로는 잘 안 됐지만요. 법은 지켜야 하는 것이지만, 세부적인 사항을 규정해놓지 않은 경우도 꽤 많거든요. 그 사이를 파고들어 우리가 극대화할 수 있는 것은 무엇이 있을까를 항상 찾고 있어요. 한정된 공간에서 단순히 저렴한 집이 아니라, 내가 살아도 불만이 없는 공간, 온전히 ‘1’이 되는 집과 공간, 그리고 그 기준을 공급하는 게 지금도 그렇고 앞으로의 목표입니다.


궁극적으로 집이 가져야 할 중요한 가치는 무엇이라고 생각하세요?

저희가 하는 일 중 지역조사 작업이 있는데, 동네의 집과 건물을 조사해 유형을 정리하고, 지어진 시기와의 관계를 파악하는 일이에요. 아마 그때부터 이런 생각을 하게 되었던 것 같은데, 우리가 제공하고 있는 공유 주택이 어느 시점에는 하나의 주요한 유형으로 자리 잡았으면 좋겠어요. 세상에는 아주 다양한 사람들이 그만큼의 다양한 가치관을 가지고 살아가는데, 주택의 유형이 너무 한정적인 것 같아요. 우린 그동안 시장 논리에 의해 결정된, 누군가 공급한 집에서만 살아왔죠. 저희가 제안하는 공유 주택이 유형으로 자리잡히면 계속해서 새로운 공급이 생겨날 것이고, 그게 집을 위한 또 다른 대안이 될 수 있을 거예요. 사람마다 선호하는 집이 다르고, 집에 따라 지불 가치나 비용은 다르겠지만 선택지가 있다는 게 중요해요. 집이 시장 논리가 아닌 사람들의 필요에 의해 만들어지고 더 다양해지는 것. 그게 집이 가져야 할 중요한 가치고, 저희가 이 일을 하는 이유이기도 합니다.


청운광산-collective-mine-구보건축사사무소-GUBO-Architects-10.jpg ⓒtexture on texture



<브리크 brique> 웹 페이지에서 더 자세히 보기 : http://bitly.kr/jrOEAhgyOPT

<브리크 brique>의 더 다양한 기사 보러가기 : https://magazine.brique.co/articles/


keyword