전문성에 감성적인 디자인을 더하다.

달롤컴퍼니의 쇼룸형 플래그쉽 스토어 "달롤마켓" 인테리어 프로세스

by No Stress Big Money

달롤 마켓

- 주소 : 경기도 김포시 걸포1로 102

- 면적 : 192.5㎡

- 착공/준공 : 23년 10월 착공 / 23년 12월 준공

- 설계 : (주)엔에스비엠컴퍼니

- 시공 : (주)엔에스비엠컴퍼니

달롤컴퍼니는 국내 최초이자 최대 규모의 글루텐프리 전문 제조공장을 보유하고 있다. HACCP 인증은 물론, 글로벌 글루텐프리 인증제도인 GFFP(Gluten Free Food Program) 시설을 국내에서 유 일하게 인증받은 전문 제조공장을 운영하고 있다. 글루텐프리 제품으로 마니아층을 형성하고 있는 달롤컴퍼니는 처음으로 오프라인 공간을 기획하면서 고객들에게 어떤 경험을 전달할지 NSBM과 함께 의견을 나눴고, 글루텐프리 쇼룸형 플래그 십 스토어로 방향을 잡았다. 그에 맞게 내부 공간은 글루텐프리에 대한 정확한 정보를 볼 수 있으며, 지역 농가와 계약재배를 통해 수확한 김포금쌀을 도정, 제분해 빵과 디저트를 만들어내는 스토리를 볼 수 있다. 공간의 디자인 역시 쌀/정미소/베이커리 등의 키워드와 어울리게 자연적인 요소와 따뜻한 톤의 재료들을 사용해 그 감성을 표현하고자 했다.

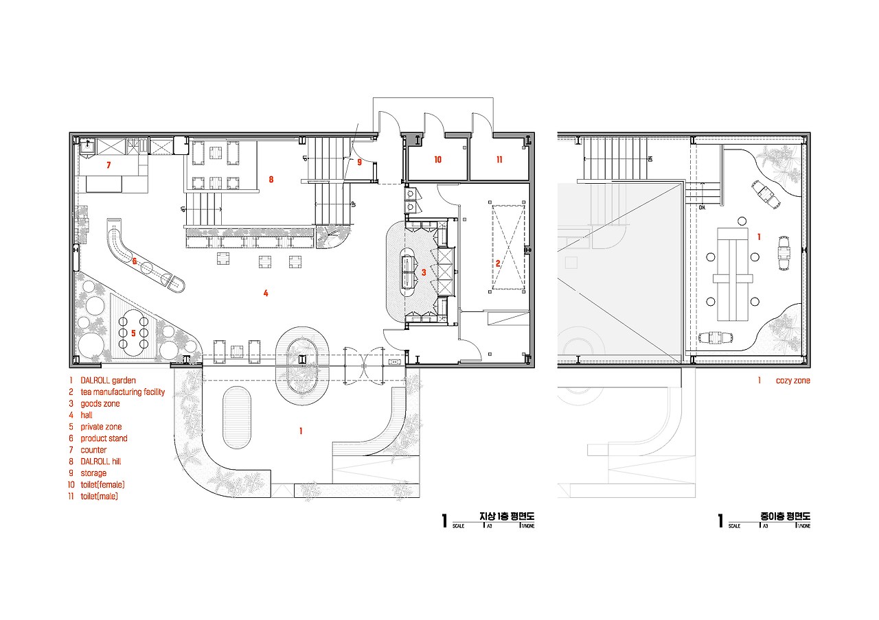
[판매를 위한 공간이 아닌 경험을 위한 공간]

달롤컴퍼니가 가진 전문성은 국내에서 유일하다. 다양한 온라인 쇼핑몰에 입점되어 있으며 많은 마니아층을 확보하고 있는 달롤컴퍼니의 첫 오프라인 매장은 어떤 모습일까? 과연 판매를 위 한 매장일까? 만약 그렇다면 김포에 위치한 전문 제조공장 옆에 위치하지는 않았을 것이다. 처음 기획 단계에서 달롤컴퍼니 측은 고객들에게 글루텐프리에 대한 정확한 정보를 알리고 싶어 했고, 그 과정을 소개하고 싶어 했다. 그리고 오프라인 공간을 통해 지역 기반의 커뮤니티를 조성하고, 국내 글루텐프리 식문화의 건강함을 알리고 싶어 했다. 그렇게 공간의 경험이 중요해지면서 베이커리 카페의 모습보단 다양한 사람들이 찾아와 제품에 대해 같이 정보를 교환하고, 소통할 수 있는 [마켓]의 성격으로 프로그램이 정해졌다. 공간 디자인의 방향성은 글루텐프리 베이커리의 주재료인 [쌀]을 모티브로 잡았다. 공간을 경험하는 고객들이 본질에 더욱 집중할 수 있도록 정미소의 사일로, 벼를 이용한 실내조경, 따뜻한 감 성을 느낄 수 있는 재료의 무드 등의 디자인 요소들을 적용했다. 고객들이 이동하면서 동선에 따른 경험에 초점을 맞춰 디자인을 적용했으며, 장면 즉, 시퀀스에 집중해서 프로그램을 설정했다.

[동선에 따른 시퀀스 경험 디자인.]

글루텐프리 전문 제조 공장부지 초입에 위치한 [달롤마켓]은 흔히들 말하는 창고형 건물이다. 디 자인 방향성이 정해지면서 디자인 영역이 건물 내부만으로는 부족하다고 생각했고, 큰 창을 통해 자연스럽게 내부와 외부가 연결되길 바라는 생각으로 진입로에 정원을 계획했다.(sequence 1) 편 하게 앉을 수 있는 벤치와 벼를 이용한 조경요소를 더해 건조한 출입구를 좀 더 따뜻하게 느낄 수 있도록 의도했다. 내부로 진입하게 되면 자연스럽게 제품이 진열된 매대가 보이면서 동선이 유도된다. 매대 뒤쪽으로는 [달롤마켓]의 아이덴티티를 느낄 수 있는 정미소의 사일로 조형물과 글루텐프리 제품에 대한 스토리를 접할 수 있다.(sequence 2) 고객이 제품을 구매하면서 자연스럽게 그 제품에 대한 정보도 얻게 된다. 제품을 구매하고, 내부에 설치된 계단을 통해서 각각의 좌 석으로 이동할 수 있다. 이 계단은 마치 언덕과 같아서 계단을 오르는 동안 전면의 큰 창을 통 해 벼가 재배되는 논을 바라볼 수 있다.(sequence 3) 계절에 따라 장면이 바뀌는 뷰는 해 질 녘 노 을이 더해지면 훨씬 더 감성적인 뷰로 바뀌게 된다. 계단을 올라 중이층으로 이동하면 아늑한 좌 석 공간이 나타난다. 인위적이지 않고 자연스러운 패턴을 가진 트래버틴 스톤타일을 배경으로 실 내조경과 함께 배치되어 있는 좌석은 고객들에게 제품을 즐길 수 있는 온전한 시간을 제공한 다.(sequence 4) 그리고 천장에 뚫려 있는 천창은 자칫 답답할 수 있는 중이층 공간에 활기를 불 어 넣어 준다. 마지막으로 계단을 통해 내려가면 퇴식구와 함께 굿즈존을 배치했다. 달롤컴퍼니의 다양한 제품들을 셀프로 직접 구매할 수 있으며, 브랜드의 굿즈들 또한 접할 수 있다.(sequence 5) 이처럼 오프라인 공간은 브랜드의 기획과 공간 디자인컨셉, 그리고 세밀한 평면계획이 조화를 이룰 때 의도했던 공간 경험디자인이 완성되는 것이 아닐까 생각한다.

[쇼룸형 플래그십 스토어의 본질.]

첫 번째 오프라인 스토어는 다양함을 가져야 한다. 그렇지만 어떤 매장이든 모든 걸 다 갖출 순 없다. [달롤마켓]은 매장을 가득 채울 수 있는 좌석보단 고객들에게 글루텐프리의 올바른 정보를 제공할 수 있는 공간이 더 우선이었다. 익숙한 고객들에겐 정확한 정보를, 생소한 고객들에겐 관 심을 가질 수 있는 정보가 필요했다. 또한 쇼룸의 역할을 할 수 있는 굿즈존은 달롤컴퍼니의 다 양한 제품들을 진열할 수 있어야 하며, 누구나 사고 싶은 마음이 들 정도로 디스플레이 되어져야 한다. 한편, 브랜드의 관점에서 본다면 쇼룸은 브랜드 자체를 보여줄 수 있는 장소이다. 컨셉이 확연히 드러나는 정미소 사일로들 사이에 배치된 프라이빗한 테이블은 달롤컴퍼니를 충분히 인식시켜 줄 수 있는 공간이다. 밖으로 열려있는 큰 원형 창문은 달롤컴퍼니의 아이덴티티를 느낄 수 있고, 사 선으로 배치한 유리 파티션에는 브라운 톤의 썬팅필름을 입혀 전체 무드와 조화롭게 맞췄다. 그 리고 바닥의 원목 데크재와 사일로 조형물, 조경 요소들은 함께 어우러져 브랜드를 잘 설명해 준 다. 물론 고객들에겐 제품과 함께 사진을 찍을 수 있는 공간으로 활용되겠지만, 브랜드 관점에서 는 바이어들 혹은 협력사와의 미팅 장소로 이용하기에 최적이다. 이렇듯 플래그십 스토어는 고객의 만족뿐만 아니라 브랜드가 가지는 본질을 잘 담아야 한다.

[작은 디테일에도 브랜드의 모습이 보이도록.]

[달롤마켓] 대부분의 가구 및 조형물들은 기성품이 아니라 제작으로 진행했다. 제품들이 진열되어 있는 매대는 브랜드의 로고 형태를 차용해 구조적으로 안정적이며, 시각적으로 답답하지 않게 디자인했다. 매대를 비추는 펜던트 역시 사선의 라인을 맞춰 제작했다. 대부분의 좌석 및 테이블로 이용되는 가구는 격자 패턴의 파레트 형태로 디자인해 원목으로 제작되었다. 정미소 분위기의 러프함을 보여주지만 세심하게 다듬어 고객이 불편함 없이 사용할 수 있게 의도했다. 출입구의 손잡이 역시 고객이 느끼는 사소한 부분이지만 브랜드 이니셜을 적용해 제작했다. 한 브랜드의 오프라인 공간을 디자인하면서 느낀 점은 세심한 설계가 적용되면 적용될수록 브랜 드(발주처)가 느끼는 스트레스는 줄어든다(No Stress)는 것이다. 그리고 그 세심한 설계가 잘 적용되어 결과물로 보여지면 우선적으로 고객들이 먼저 느끼게 된다. 이런 선순환이 반복되면 브랜드와 디자이너, 시공사 모두 좋은 영향(Big Money)을 받을 것이라고 생각한다.

keyword
작가의 이전글투박함은 자연스러움으로, 정직함은 반듯함으로.