요즘 대세 목조주택, 주요 공정별 체크포인트!

by e분양캐스트


한국 사회에서의 아파트는 투자와 재테크의 상징이다. 매매가 쉽고 해마다 가격이 오르는 아파트, 때문에 그 안에 사는 사람들의 삶의 가치보다는 재테크로서의 가치가 더 높다는 게 현실이다.

그런데 요즘, 생활의 질과 행복을 중요시하는 경향이 높아지면서 ‘집’이라는 개념이 재테크 수단이 아닌 사는 곳으로 바뀌고 있다. 이제 주거 트렌드는 획일화된 아파트가 아닌 거주자의 라이프스타일과 개성을 담은 주택으로 차츰 변화하고 있다.


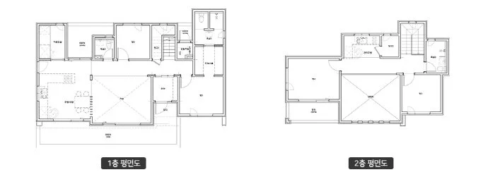
%EB%B3%80%ED%99%98_1_%EA%B4%91%EC%96%91.jpg?type=w1200 [목조주택 시공사례-전남 광양 율천리 46py]


%EB%B3%80%ED%99%98_1-1_%EA%B4%91%EC%96%91plan.jpg?type=w1200


목조주택의 이유 있는 인기몰이


1. 합리적인 가격, 짧은 공사기간

누구나 저렴한 가격에 튼튼하고 예쁜 집을 짓길 원한다. 토지 구매비용과 여러 가지 부대비용까지 주택건축에는 생각보다 많은 금액이 들어간다. 때문에 타 공법에 비해 공기(工期)가 짧아 저렴한 목조주택은 가장 이상적인 공법이다.

2. 친환경적

콘크리트 속 유해물질들은 인체를 공격해 질병을 유발한다. 목조주택은 스스로 실내 온∙습도를 조절하여 쾌적한 환경을 조성하고 피톤치드 같은 생리활성물질을 분비하여 아토피 피부염과 스트레스 등을 완화시킨다.

3. 지진과 화재에 강한 목조주택

목조주택은 탄성과 충격흡수성능이 뛰어나며 내친철물로 주택 전체를 일체화하여 잡아주기 때문에 지진에 가장 강한 공법이다. 또한 화재 시 목재가 탄화되어 공기 유통을 차단, 불의 번짐을 막아주고 시안화수소, 메탄 등의 유해가스가 발생하는 콘크리트 주택과는 달리 인체에 치명적인 유해가스가 발생하지 않는다.


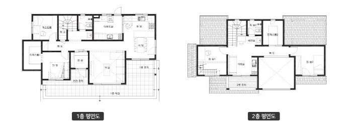
%EB%B3%80%ED%99%98_2_%EC%95%88%EC%84%B1.jpg?type=w1200 [목조주택 시공사례-경기도 안성 칠곡리 49py]
%EB%B3%80%ED%99%98_2-1_%EC%95%88%EC%84%B1p.jpg?type=w1200
목조주택 건축, 주요 공정별 체크사항


'집 짓고 10년 늙는다' 는 말처럼 건축을 시작하면 걱정과 고민이 늘 수밖에 없다. 나와 내 가족의 평생을 함께 할 집, 신중하게 선택하고 꼼꼼히 체크해야 후회가 없는 법! 기초, 골조, 단열 공정에서 꼭 체크해야 할 사항들에 대해 상세히 알아보자.


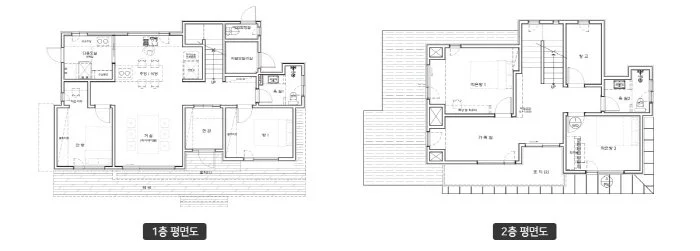
%EB%B3%80%ED%99%98_3-1_%EC%B0%BD%EC%9B%90.jpg?type=w1200 [목조주택 시공사례-경남 창원 하천리 50py]
%EB%B3%80%ED%99%98_3-2_%EC%B0%BD%EC%9B%90p.jpg?type=w1200


보이지 않는 곳까지 정석(定石)대로 정직(正直)하게!

고기밀∙고단열 시공, 하우스톡


나와 내 가족이 살 집, 제대로 된 시공사를 만나야 후회 없이 좋은 집을 지을 수 있다.

목조주택을 전문으로 스틸하우스, RC상가주택까지. ㈜하우스톡(HT종합건설)은 100% 직영공사로 거품을 뺀 가격을 현실화하고 자재 선별과 품질관리시스템으로 건강한 집 짓기를 지향하는 브랜드다.

무엇보다 시공품질을 최우선으로 하는 엔지니어 출신 대표의 경영철학으로 2020년 KQSI한국품질만족도 3년 연속 1위를 수상하였고 고객에게 만족을 넘어 감동을 주는 집 짓기를 목표로 하고 있다.

체계적인 작업 진행에 대한 자부심으로 공사현장을 투명하게 공개하며, 하우스톡의 베테랑 건축 매니저들이 건축비는 물론 토지 매입 단계에서 부대비용까지 건축에 대한 전반적인 사항에 대해 꼼꼼하게 체크하며 건축주의 취향과 예산에 맞는 1:1 맞춤 컨설팅을 세워드리고 있다.

설계부터 시공까지, 지금 바로 하우스톡만의 차별화된 맞춤 설계와 시공 능력을 경험해보자.


%ED%95%98%EB%8B%A8%EB%B0%B0%EB%84%88.jpg?type=w1200

http://www.house-talk.co.kr/


keyword
매거진의 이전글집 안 분위기 살리는 다채로운 베란다 인테리어