brunch

모듈러주택 평수별 설계 참고하기

by 공간제작소
공간상단.png
DSC01042.jpg



모듈러주택 평수별 설계 참고하기


집 평수보다 많은 방과 구조가 들어가면 적은 면적이 아님에도 답답하게 느껴질 수 있습니다. 그래서 평수에 맞춰 공간을 넉넉하게 확보하고 필요한 요소들은 적절히 넣는 것이 중요합니다. 오늘은 공간제작소에서 시공했던 20평 이하의 소형 모듈러주택부터 40평대까지 참고하실 수 있는 사례를 소개하도록 하겠습니다.


DSC04464.jpg


단독주택 개요


위치: 강원도 양양군

건축형태: 경량목구조

건축규모: 지상 1층

연면적: 총 20평


여유있는.jpg


멋진 동해바다와 아름다운 자연을 함께 느껴볼 수 있는 강원도 양양. 이곳에 소박하게 지어진 모듈러 주택이 평화로운 분위기로 자리 잡았습니다. 푸른 하늘 아래 더욱 빛이 나는 하얀색 메탈 사이딩이 따스한 햇살을 받아 따스한 분위기를 풍기고 그 위에 무채색 롤슁글 지붕이 깔끔한 인상을 더합니다.

20평의 단층 주택 안에는 3세대가 함께 거주하는데요. 각자 독립적인 생활을 위해 개인 공간을 집 가장자리에 하나씩 두고, 중앙에 공용 공간을 배치했습니다.


여유있는-이미지-3개.jpg


충분한 넓이로 배치된 세 개의 방은 서로 적절히 떨어져 있어 혼자만의 시간을 편안하게 보낼 수 있습니다. 또한 각 방마다 주변 풍경을 즐길 수 있도록 창을 적절하게 시공하여 전원생활의 느낌을 연출했는데요. 개인 공간인 만큼 외부의 시선에 사생활이 노출되지 않도록 적절한 높이와 크기로 설계했습니다.


여유있는-이미지-2개.jpg


중앙에 위치한 거실과 주방은 원할 때마다 편하게 개인 방에서 나와 식사를 하거나 대화를 하기에 좋습니다. 이런 구조는 소형주택에서 가족의 소통과 함께 개인의 독립성도 높이는 장점이 있습니다.


강원도 양양군 손양면 하왕도리_공간제작소.gif


거실에 있는 큰 창문은 주방까지 채광이 충분히 들어오며 내부를 화사하게 밝혀줍니다. 이 앞에는 마당이 있어 외부 활동을 하기에도 용이합니다. 차후 조경까지 완성되면 집 안에서도 자연의 아름다움과 따스함이 가득 느껴질 것으로 기대됩니다.


https://youtu.be/89r2UsGK2nE



128. 강원도 양양군 서면 용천리 220.jpg


단독주택 개요


위치: 강원도 양양

건축형태: 경량 목구조

건축규모: 지상 2층

연면적: 총 35평


강원도 양양군 손양면 하왕도리_공간제작소_1.gif


주택 뒤편으로 낭만적인 배 꽃 풍경을 감상할 수 있는 모듈러주택입니다. 깔끔한 하얀 메탈사이딩과 짙은 컬러감의 롤슁굴 사이로 보이는 적삼목루버가 고급스러운 분위기를 전합니다. 외부에 마련된 휴식처가 전원생활을 여유로움을 느끼게 합니다.


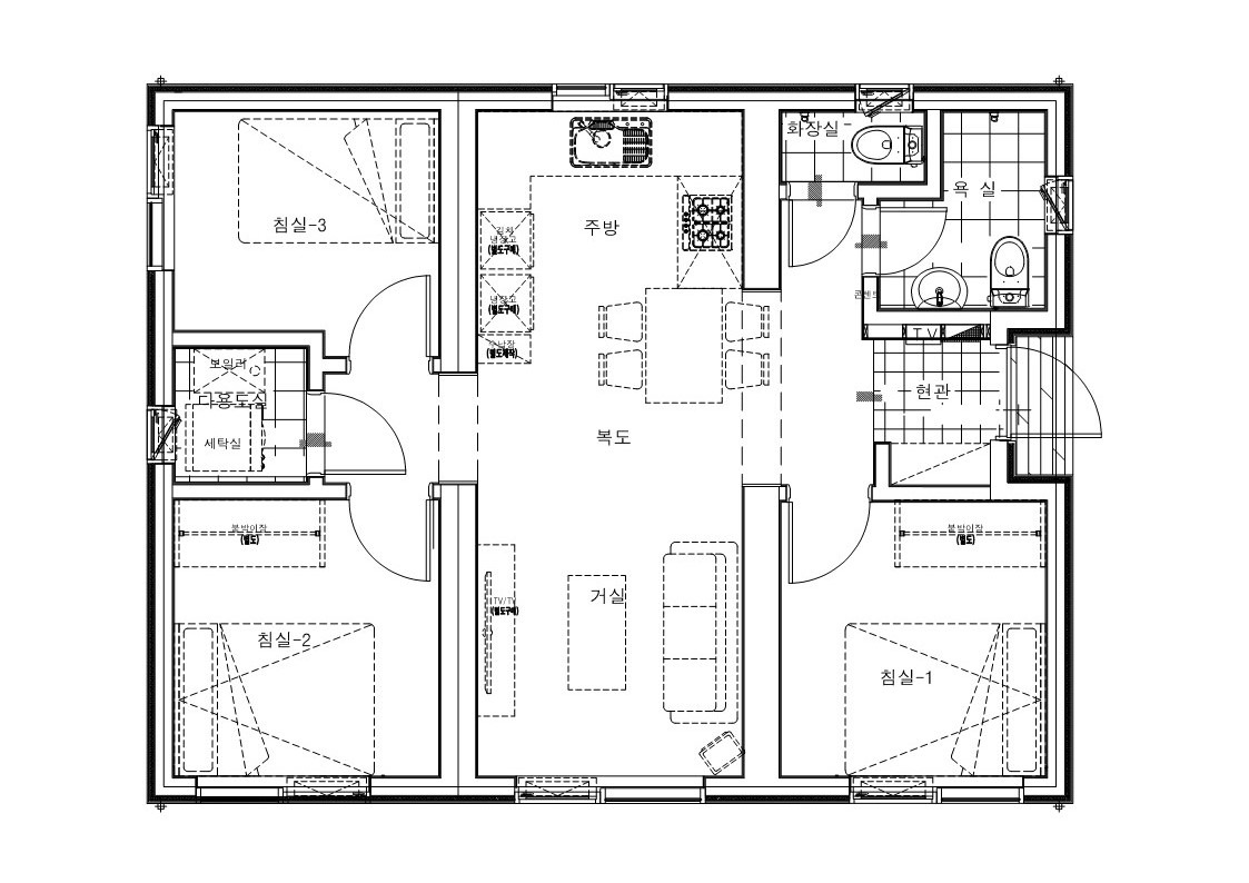
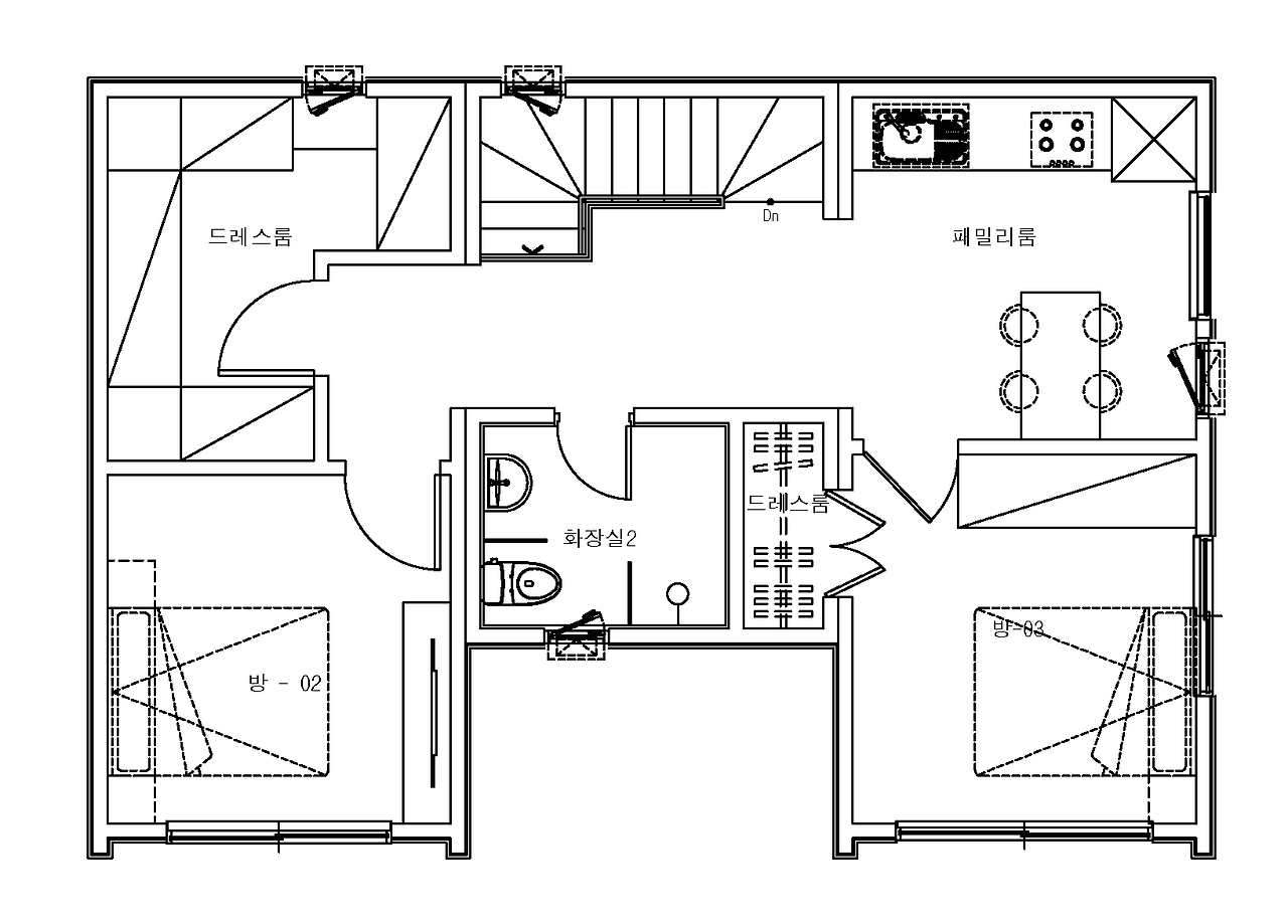
2층 평면도.png
1층 평면도.png
1층 평면도 / 2층 평면도


35평의 주택은 2~3명이 살기에 여유로운 크기입니다. 그래서 거실, 주방, 개인 방들을 제외하고 자유롭게 사용할 수 있는 공간이 추가적으로 배치되었습니다. 가족들과 소통할 수 있는 공용 공간과 침실 옆에 이어진 드레스룸, 욕실이 눈에 띕니다.


강원도 양양군 손양면 하왕도리_공간제작소_2.gif


경사지붕을 활용해 완성된 1층의 거실은 높은 천고가 주는 개방감이 특징입니다. 그 아래로 창이 적절하게 시공되어 따스한 햇살이 들어오며 외부의 풍경을 감상할 수 있습니다. 내부는 창을 통해 들어오는 주변 자연과 어우러지는 화이트 색상의 합지벽지와 밝은 톤의 강화마루로 시공을 진행했습니다.


여유있는-이미지-2개.jpg


거실과 함께 한 주방은 짜임새 있는 설계로 수납공간을 충분히 확보했습니다. 냉장고와 수납공간이 좌우에 깔끔하게 배치해 벽면을 효율적으로 활용하며 시선에 거슬림 없이 완성했습니다. 덕분에 많은 수납장이 있음에도 답답해 보이지 않고 넓어 보이는 효과까지 연출했습니다.


여유있는-이미지-3개.jpg


개인 방은 1층과 2층에 각각 분리되어 배치되었습니다. 가족과 함께 이야기를 나누고 싶을 때는 중앙의 공용 공간에 머무르고, 혼자만의 시간이 필요할 때는 각자의 공간으로 흩어져 편하게 휴식을 취할 수 있습니다.


강원도 양양군 손양면 하왕도리_공간제작소_3.gif


해당 모듈러주택은 집 뒤의 자연을 바라볼 수 있는 포치가 매력적입니다. 봄이 되면 꽃이 피며 더욱 아름다운 풍경을 선사할 것으로 예상되는데요. 지붕이 있어 뜨거운 햇빛이나 비를 막아 쾌적한 환경 속에서 감상할 수 있습니다.


https://youtu.be/FlMvrqZUoQM




111.jpg 조경시공 완료 예상 안입니다


단독주택 개요


위치: 강원도 평창군

건축형태: 경량 목구조

건축규모: 지상 2층

연면적: 총 41평


D65A6304.jpg 조경시공 이전 모습니다.


사방이 산으로 둘러싸인 대지 위에 완성된 강원도 평창의 사례입니다. 주변에 가득한 자연 향기가 심리적 안정감을 전하며 자연친화적인 분위기로 평화로움이 감도는 집입니다. 중앙을 기준으로 똑같은 모습을 하고 있어 독특함이 느껴지는데요. 화이트와 베이지로 조화롭게 외관을 꾸며 주변 분위기와도 잘 어우러지는 모습입니다.


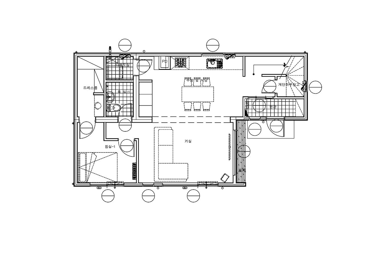
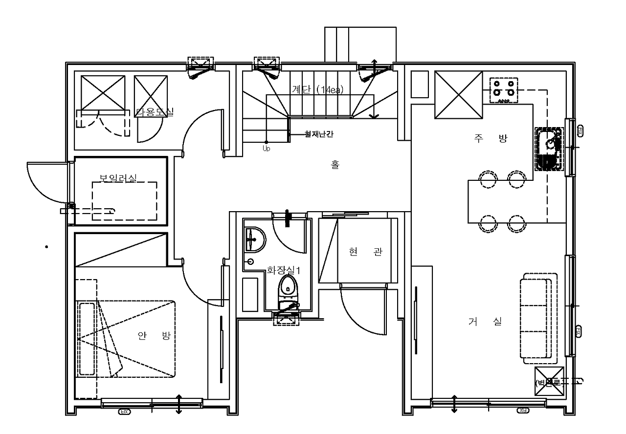
●210524) 평창 이목정리 설계_1f.png
●210524) 평창 이목정리 설계_2f.png
1층 평면도 / 2층 평면도


41평의 해당 주택은 거실, 주방, 방 3개, 욕실 2개, 패밀리룸, 다용도실 등으로 설계되었습니다. 집 모양 따라 ㄷ자 형태로 방이 나눠진 모습이 인상적입니다.


강원도 양양군 손양면 하왕도리_공간제작소_4.gif


상하부장이 비슷한 모양인 다른 집들과는 다르게 상부장은 ㄱ자, 하부장은 ㄷ자로 다르게 배치했습니다. 덕분에 더 많은 수납공간과 함께 별도의 식탁까지 확보할 수 있었습니다. 더불어 식탁으로 활용할 수 있는 부분에는 상부장이 따로 없어 더 넓고 시원한 개방감이 느껴집니다.


여유있는-이미지-2개.jpg


주방 옆에는 넓은 소파를 둘 수 있는 크기의 거실이 있어 요리를 하거나 식사할 때 쉬고 있는 가족과 이야기를 하거나 창밖의 풍경을 마음껏 감상할 수 있습니다.


D65A6286.JPG


공용 공간을 지나 등장하는 홀은 집 안의 여러 장소를 구분하는 역할을 합니다. 여기서는 주방과 거실을 지나지 않아도 바로 개인 방으로 이동할 수 있는 특징이 있는데요. 이런 구조는 개인 시간을 중요하게 생각하는 구성원에게 심리적인 안정감을 전달합니다.

여유있는-이미지-3개.jpg


각 층마다 있는 방은 건축물의 돌출된 영역에 위치하고 있습니다. 여기에 적절한 창이 들어가 채광이 막힘없이 들어오며 쾌적한 환경을 유지하는데 도움이 됩니다. 또한 방마다 욕실, 주방이 적절하게 구성되어 다른 층으로 이동하지 않아도 편안한 생활이 가능합니다. 계단 아래에 생기는 여유 공간을 만들어 물건을 보관할 수 있게 하는 등 데드스페이스를 최소화한 설계가 돋보입니다.


https://youtu.be/mZfNzlZHA2M



DSC01037.jpg


넓은 40평이라도 효율적인 이동 동선을 고려하지 않으면 복잡해지고 생활이 불편할 수 있습니다. 반대로 소형의 20평 주택일지라도 데드스페이스를 최소화해 여러 사람이 살 수 있는 집으로 완성할 수 있습니다. 이처럼 건축주님께서 생각하신 평수에서 구조가 알맞게 설계되는 것이 중요합니다. 다양한 모습으로 완성되는 모듈러 집이 궁금하시다면 언제든 문의 남겨주시길 바랍니다.



비가오나 눈이오나 멈추지 않는다, 공간제작소




▶ 건축상담 바로가기 ◀

하단배더너ㅓㅓㄴ.jpg


keyword
매거진의 이전글아이들이 뛰어놀 수 있는 30평대 전원주택