brunch

담백하고 미니멀한 매력의
모듈러주택

by 공간제작소
000. 모듈러주택.png
001. 모듈러주택.gif



담백하고 미니멀한 매력의 모듈러주택


부담스러운 화려함보다 담백하고 미니멀하게 완성된 충북의 모듈러주택. 깔끔한 마감재로 아늑하고 내추럴한 분위기를 연출하며 머무는 사람에게 편안하고 따스한 느낌을 전하는 공간제작소 시공 사례를 소개합니다.


001. 모듈러주택 1층 도면.jpg
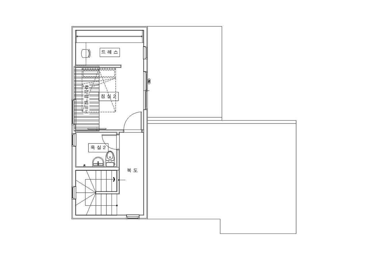
001. 모듈러주택 2층 도면.jpg
1층 평면도 / 2층 평면도


단독주택 개요


위치: 충청북도 충주시

건축형태: 경량 목구조

건축규모: 지상 2층

연면적: 총 30평


002.-모듈러주택.jpg


다양한 모습의 주택들과 대비되는 깔끔한 외관이 인상적인 모듈러 주택입니다. 밝은 색의 메탈사이딩은 햇살 가득한 날 더욱 화사하고 짙은 색의 지붕재가 모던함을 더합니다. 특별한 장식을 더하지 않은 깔끔함은 전반적으로 담백하고 편안한 분위기를 자아냅니다.



해당 사례는 건축주님의 취향과 라이프 스타일을 집 안에서 엿볼 수 있습니다. 네추럴한 화이트와 연한 우드가 메인이 되어 집 안 곳곳을 포근하게 만드는데요. 가족과 반려묘에게 아늑한 보금자리가 될 수 있도록 꾸민 인테리어는 편안하고 따뜻한 분위기를 자아냅니다.



또한 거실은 층고를 높인 덕분에 넓은 면적이 아님에도 개방감이 느껴집니다. 그리고 주방을 벽과 문으로 나누기보다 오픈형으로 기획하여 높은 층고와 더불어 시원한 느낌을 연출합니다.


005.-모듈러주택.jpg


가족들이 함께 머무는 시간이 많은 거실은 채광이 가득 들어와 따스한 느낌이 흐릅니다. 이에 눈이 부시지 않도록 세로로 긴 창문을 양 옆에 일정하게 설치했는데요. 다른 집과의 거리가 가까운 편인 것을 고려하여 크기도 적당하게 설정해 사생활 보호도 확보했습니다. 덕분에 외부의 시선이 차단되어 더욱 안정감이 느껴집니다.



주방은 거실과 마찬가지로 내추럴한 느낌이 드는 우드 소재 가구들이 공간을 꾸미고 있습니다. 상부장이 한쪽 벽면에만 배치되어 시원한 개방감이 그대로 유지되며 중앙에 아일랜드 식탁으로 여유로운 분위기가 연출됩니다.


007.-모듈러주택.jpg


주방 바로 옆에는 툇마루가 창문으로 연결되어 있어 날씨 좋은 날에는 밖에서 가족들과 특별한 식사 시간을 보낼 수 있습니다. 이어져 있는 두 공간은 음식을 운반하는데 편리하며 환기도 원활하게 해주어 주방을 쾌적하게 유지하는데 도움이 됩니다.


008.-모듈러주택.jpg


편하게 쉴 수 있는 공간을 원하신 건축주님의 니즈에 맞춰 침실도 포근한 느낌으로 완성되었습니다. 화이트와 우드 인테리어로 밝고 아늑한 분위기가 흐르는데요. 창호는 외부에서 침대가 노출되지 않은 크기로 시공되어 편안하게 휴식을 취할 수 있습니다.


009.-모듈러주택.jpg


침실 옆에는 건식 세면대와 욕실이 마련되어 취침 전후 혹은 하루 중 언제든 편안 이용이 가능합니다. 건식세면대는 다른 방과 비슷하게 인테리어한 반면, 욕실은 초록색 타일로 포인트를 주어 자연친화적인 느낌을 더욱 강조했습니다. 또한 긴 길이의 타일이 깔끔하게 시공되어 세련된 인상을 전합니다.


010.모듈러주택.jpg


2층과 연결하는 계단도 우드 소재를 사용해 부드럽고 차분하게 완성했습니다. 아름다운 그림이 놓여진 그림들은 화이트 벽지가 깔끔하게 시공되어 더욱 아름답게 보이는데요. 올라가는 중앙 벽면에는 세로로 긴 창을 내어 햇살이 화사하게 들어오고 해당 공간에 여유로움이 느껴집니다.


011.-모듈러주택.jpg


2층은 8평으로 아담하지만 알차게 설계와 시공이 진행되었습니다. 욕실, 침실, 드레스룸이 이어지는 동선으로 기획되어 일상에 편리함을 제공합니다. 1층과 마찬가지로 내추럴하고 담백한 분위기가 흐르며, 미니멀함에서 오는 편안함이 전해져 옵니다.



침실과 드레스룸은 한 방을 가벽으로 공간을 분리해 편한 이동이 가능함과 동시에 정돈된 인상을 줍니다. 붙박이장을 짜임새 있게 시공하여 다양한 색상과 길이의 옷들과 개인적인 짐을 깔끔하게 보관할 수 있습니다.



013.-모듈러주택.jpg


오늘 소개한 모듈러하우스는 건축주님께서 생각하셨던 담백한 매력이 담겨 완성되었습니다. 여기서 아늑하고 소박하게 흘러가는 일상은 건축주님에게 안정감와 평온함을 제공하는데요. 공간제작소는 이처럼 집의 편안함을 더 많은 분들이 느껴보실 수 있도록 합리적인 비용으로 목조주택을 짓고 있습니다. 더 많은 정보와 내용이 궁금하시다면 홈페이지 혹은 대표번호를 통해 문의 남겨주시기 바랍니다.



비가오나 눈이오나 멈추지 않는다, 공간제작소




▶ 건축상담 바로가기 ◀



keyword
매거진의 이전글가족을 위해 설계된 40평 단독주택