brunch

공간제작소가 선보이는
고급단독주택

by 공간제작소

공간-상단배너.jpg

1.jpg
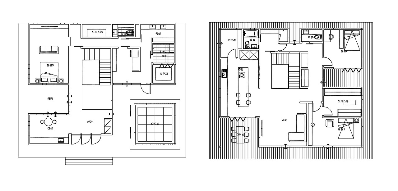
2.jpg 1충(좌) / 2층 (우) 평면도


주택개요


위치 : 경기도 화성

건축규모 : 지상 2층

연면적 : 87.21평

*(외부 면적 포함 시 총면적 약 100평)




2.jpg
외관

공간제작소의 하이엔드 기획모델 고급단독주택의 외부는 단단함과 웅장함이 조화를 이루며 한눈에 고급스러움을 느낄 수 있도록 설계되었습니다. 외벽은 세라믹 사이딩으로 마감되어 내구성과 세련된 미감을 동시에 만족시키며, 시간이 지나도 변치 않는 품질을 자랑합니다. 지붕은 징크로 마감되어 견고하면서도 세련된 실루엣을 완성합니다.


GIF.gif


전반적으로 직선적인 라인과 깔끔한 디자인을 강조한 모던한 건축 스타일이 돋보이며, 군더더기 없이 심플하지만 우아한 감각을 드러냅니다. 이러한 외관은 자연과 조화를 이루는 동시에 현대적 감각을 담아내어, 고금단독주택의 품격을 한층 더 높여줍니다.


GIF.gif
별채

고급단독주택에 들어서기 전 만날 수 있는 이곳은 한옥의 감성을 담은 별채입니다. 넓은 창을 통해 자연광이 가득 들어오며, 외부 풍경을 여유롭게 감상할 수 있습니다. 별채 전체는 베이지와 우드 컬러를 중심으로 차분하고 아늑한 분위기를 자아냅니다.


3.jpg
1층

1층 내부로 들어서면 고급스럽고 압도적인 분위기가 느껴지며, 2.9m에 이르는 높은 층고는 입구에서부터 시원한 개방감을 선사합니다. 계단을 중심으로 왼쪽에는 주방과 다이닝룸이, 오른쪽에는 방과 욕실이 자리하고 있습니다. 고급단독주택의 주방과 다이닝룸은 대리석과 우드가 조화를 이루며, 자연스러운 색감의 마감재를 활용해 품격 있는 분위기를 강조했습니다. 특히 주방 안쪽에는 히든도어를 통해 간이 주방으로 이어지는데, 이곳은 팬트리로 활용이 가능하며 반대편으로 연결되는 문이 있어 순환 구조를 제공합니다.


GIF.gif


고급단독주택의 첫 번째 방은 따뜻한 조명이 어우러져 아늑하면서도 집중하기 좋은 분위기를 자아냅니다. 취미 생활을 즐기거나 업무를 보는 용도로 활용할 수 있으며, 각자의 취향에 따라 다양한 스타일로 연출이 가능합니다.


4.jpg


고급단독주택의 두 번째 방은 침실로 편안하고 안락한 휴식을 제공합니다. 안쪽에는 깔끔하게 설치된 붙박이장이 있어 수납공간을 효율적으로 활용할 수 있으며, 공간을 더욱 넓어 보이게 만들어줍니다. 침실과 연결된 욕실은 세련된 디자인과 실용성을 겸비하고 있어 편리한 사용이 가능합니다


5.jpg


마지막 끝 공간에는 공용 욕실이 자리하고 있습니다. 화이트 톤의 대리석으로 마감되어 깔끔하고 세련된 분위기를 자아내며, 환기창이 있어 항상 쾌적하고 편안하게 이용할 수 있습니다.


GIF.gif
2층


2층 거실은 넓고 탁 트인 대공간으로, 시원하고 개방감 있는 분위기를 선사합니다. 특히 코너창을 통해 들어오는 풍부한 자연광은 공간을 더욱 넓고 밝게 느껴지게 하며, 외부 풍경을 감상할 수 있는 여유로운 환경을 제공합니다. 이러한 2층 거실은 가족이 함께 모이거나 손님을 맞이하기에 적합한 곳으로, 넉넉한 크기와 세련된 디자인이 돋보입니다.


6.jpg
GIF.gif


고급단독주택의 2층 마스터룸은 침실과 드레스룸, 욕실이 연결된 구조로 되어 있습니다. 천장이 높아 개방감이 뛰어난 침실에는 테라스가 있어 외부로 바로 나갈 수 있습니다. 이 테라스는 2층 외곽을 둘러싸고 있어 산책하듯 한 바퀴 돌아볼 수 있습니다. 드레스룸은 옷을 넉넉히 걸어둘 수 있도록 깊고 높게 설계되었습니다.


7.jpg


드레스룸을 지나 안쪽으로 들어가면 욕실이 나타나는데, 큰 욕조 앞에는 슬라이딩 도어가 설치되어 있어 풍경을 감상하며 힐링을 즐길 수 있습니다. 욕실에는 두 개의 세면대와 대형 거울이 있어 공간이 더욱 넓어 보이며, 샤워 부스 안에는 1인용 욕조가 따로 마련되어 있어 프라이빗하게 사용할 수 있습니다. 또한, 이 욕실은 순환형 구조로 설계되어 방과 거실 양쪽에서 편리하게 출입할 수 있습니다.


GIF.gif


2층의 다른 침실은 자녀 방으로 활용하기에 적합합니다. 코너 창으로 설계되어 탁 트인 멋진 뷰를 감상할 수 있으며, 풍부한 자연 채광이 들어와 아늑하고 밝은 분위기를 제공합니다.


GIF.gif


방 입구 쪽에는 드레스룸이 따로 마련되어 있어 옷이나 다양한 물건을 넉넉히 보관할 수 있어 실용적입니다.


8.jpg


마지막 방은 서재로 꾸며졌습니다. 큰 창이 시공되어 있어 아름다운 풍경을 감상할 수 있으며, 테라스로 바로 연결되어 있어 개방감이 돋보입니다. 벽면에는 유리 도어로 된 붙박이장이 설치되어 있어 깔끔하게 정리하고 수납하기에 매우 실용적입니다.


GIF.gif


고급단독주택의 2층 공용 욕실은 대리석 마감과 은은한 조명이 어우러져 세련되고 품격 있는 분위기를 연출합니다.


공간제작소의 고급단독주택이

궁금하시다면, 영상을 확인해 보세요!


9.jpg


하이테크 기술로 완성된 공간제작소의 하이엔드 기획 모델 고급단독주택은 500억 원 규모의 공장에서 자동화 로봇을 활용해 대부분의 시공을 진행하여 정밀하고 기밀하게 완성하였습니다. 공간제작소는 뛰어난 기술력과 풍부한 노하우를 바탕으로 패널라이징 공법을 적용해 대공간 시공이 가능하며, 다양한 디자인으로 설계할 수 있습니다.


10.jpg


로봇이 완성한 하이엔드 기획모델은 공간제작소 공장에서 직접 견학이 가능합니다. 관심 있는 건축주님들께서는 방문 예약을 남겨주시기 바랍니다. 방문 시 건축 매니저와의 무료 상담은 물론, 로봇으로 지어진 다른 샘플하우스도 둘러보실 수 있습니다.



▶ 건축 문의 ◀


11.jpg


keyword
매거진의 이전글모듈러주택 대칭 구조로 완성된 완벽한 공간