단독주택건축 시공 현장의 생생한 모습!

in 충남 아산시

by 공간제작소
20191101_단독주택건축_공간제작소_01.jpg

안녕하세요-!

미래기술 프리패브 목조주택 공간제작소입니다.


오늘은 충청남도 아산시에 위치한 단독주택건축 현장을 소개해드리려고 합니다.

20191101_단독주택건축_공간제작소_02.jpg ⓒ 공간제작소
설계개요

대지위치 충청남도 아산시

건축용도 단독주택

건축공법 경량목구조

건축규모 지상 2층


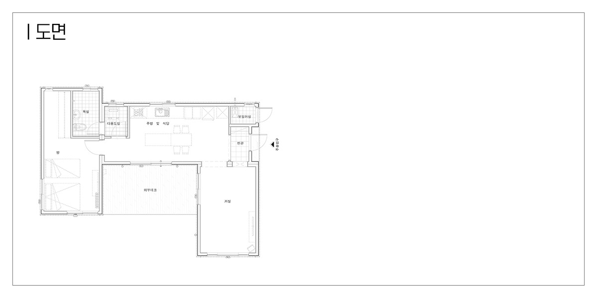
115.7㎡(35py)

1층 115.7㎡(35py)

20191101_단독주택건축_공간제작소_03.jpg ⓒ 공간제작소

2층 전원주택의 매력과는 다른 단층 단독주택입니다. 관리가 수월하고 가격까지 합리적이기 때문에 아이가 없는 노부부께서 선호하시는 설계입니다.

20191101_단독주택건축_공간제작소_04.jpg ⓒ 공간제작소

단독주택건축 시 가장 먼저 자재를 자동화설비시스템이 오차 없이 재단하며 빌더가 조립하게 됩니다.

20191101_단독주택건축_공간제작소_05.jpg ⓒ 공간제작소

그 뒤에 전문 인력인 빌더들이 도면에 맞게 전기와 수도 배관을 연결하고 PVC 배관을 연결하는 작업이 이어집니다.

20191101_단독주택건축_공간제작소_06.jpg ⓒ 공간제작소

각 설계에 따른 창호가 시공되는 현장입니다.

20191101_단독주택건축_공간제작소_07.jpg ⓒ 공간제작소

단독주택건축 시 창호공사가 마무리되면 바닥 난방 작업과 방수 작업 그 뒤를 이어 타일 작업이 마무리됩니다.

20191101_단독주택건축_공간제작소_08.jpg ⓒ 공간제작소

외장재 마감과 지붕 마감이 되면 상차 일정이 잡힙니다.

20191101_단독주택건축_공간제작소_09.jpg ⓒ 공간제작소

상차를 하여 현장으로 이동하여 모듈 설치 및 결속 작업과 지붕 마감재 작업을 정비하고 내부 작업을 마치면 현장 시공은 종료됩니다.



오늘 알아본 충남 아산시에 단독주택건축 현장, 지붕 있는 공장에서 단독주택건축 하기 때문에 기후의 영향을 받지 않고, 공사 기간이 절감되어 빌더들의 피로도가 적어져 주택의 품질 또한 훨씬 퀄리티 높아질 수 있습니다. 지금 바로 공간제작소에 문의하세요!


7초 건축상담 하러가기 ▶ https://c11.kr/ggbrunch

공간제작소 완공영상 보러가기 ▶ https://c11.kr/ggyoutube

공간제작소_배너_하단.jpg


keyword
매거진의 이전글경기도 프리패브 목조주택시공, 시공 현장의 모습