예쁜 전원주택 시공 현장에는 무슨 일이 있을까?

in 전라도

by 공간제작소
20191108_예쁜전원주택_공간제작소_01.jpg

안녕하세요-!

미래기술 프리패브 목조주택 공간제작소입니다.


오늘은 전라남도 곡성군에 위치한 예쁜 전원주택 시공 현장을 소개해드리겠습니다.

20191108_예쁜전원주택_공간제작소_02.jpg ⓒ 공간제작소
설계개요


대지위치 전라남도 곡성군

건축용도 단독주택

건축공법 경량목구조

건축규모 지상 1층


113.40㎡(34.03py)

1층 113.40㎡(34.03py)

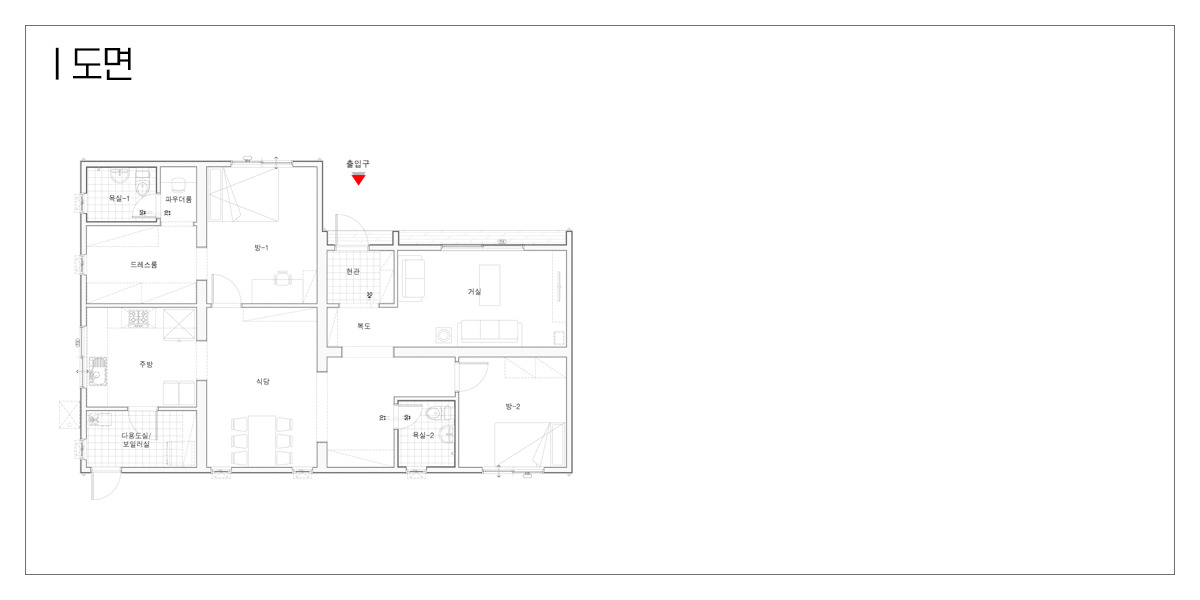
20191108_예쁜전원주택_공간제작소_03.jpg ⓒ 공간제작소

방향을 고려하여 창호의 방향을 정하고, 건축라이프를 고려하여 설계가 들어갑니다. 많은 분들께서 방 2개가 되는 지에 대해 질문을 하시는데 이는 건축주님의 선택사항입니다.


20191108_예쁜전원주택_공간제작소_04.jpg ⓒ 공간제작소

예쁜전원주택 시공 과정 중 첫 번째인 자재를 재단하는데 이때 자동화설비시스템으로 오차 없는 재단이 가능하여 하자율이 제로가 가깝습니다.

20191108_예쁜전원주택_공간제작소_05.jpg ⓒ 공간제작소
20191108_예쁜전원주택_공간제작소_06.jpg ⓒ 공간제작소

PVC 배관과 전기 수도 연결이 끝나고 나면 창호시공이 진행됩니다. 공간제작소의 창호는 미국식 창호를 사용 중입니다.

20191108_예쁜전원주택_공간제작소_07.jpg ⓒ 공간제작소

외장 작업과 타이백작업을 꼼꼼히 하여 방수작업까지 마무리되면 상차작업 일정을 잡고 상차작업이 이루어집니다.


20191108_예쁜전원주택_공간제작소_08.jpg ⓒ 공간제작소

토대 작업이 이루어진 토지 위에 예쁜전원주택을 안착하고 모듈을 결속하고 방수작업을 하는 진행과정이 거치게 됩니다.


오늘 보신 예쁜전원주택 현장은 어떠셨나요? 공간제작소는 최소 평 수 18평부터 진행됩니다! 언제든지 문의 주시면 친절하고 자세한 상담 도와드리겠습니다!


7초 건축상담 하러가기 ▶ https://c11.kr/ggbrunch

공간제작소 완공영상 보러가기 ▶ https://c11.kr/ggyoutube

공간제작소_배너_하단.jpg


keyword
매거진의 이전글단독주택건축 시공 현장의 생생한 모습!