모던전원주택이 완성되는 과정은?

in 충북 단양군

by 공간제작소
20191122_모던전원주택_공간제작소_01.jpg

안녕하세요-!

미래기술 프리패브 목조주택 공간제작소입니다.


모던전원주택이 과연 어떤 공정 과정을 통해 시공이 될지 오늘은 충북 단양군에 지어진 모던전원주택 사례를 들고 욌습니다.

20191122_모던전원주택_공간제작소_02.jpg ⓒ 공간제작소
설계개요


대지위치 충청북도 단양군

건축용도 단독주택

건축공법 경량목구조

건축규모 지상 1층


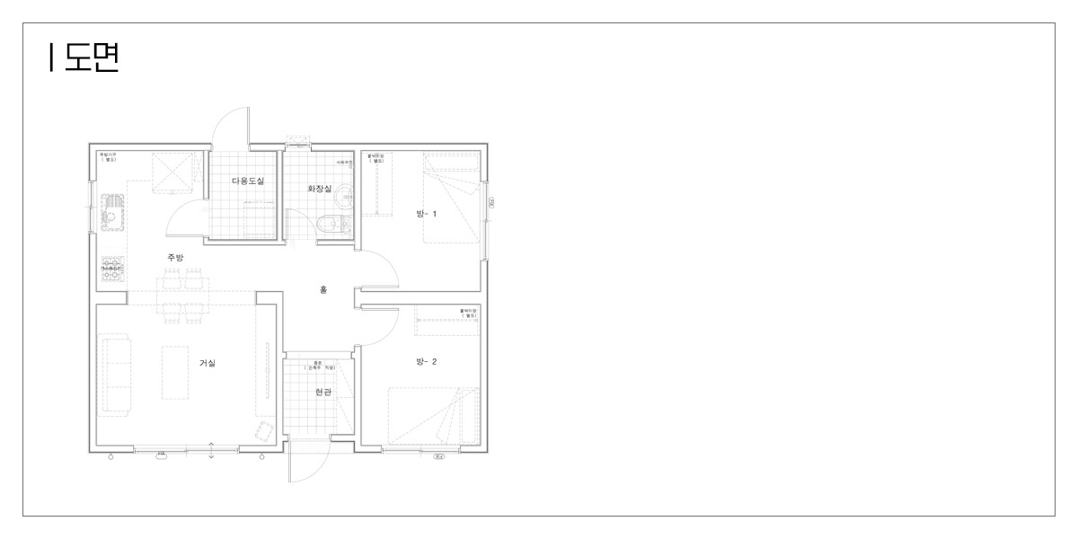
62.46㎡(18.89py)

1층 62.46㎡(18.89py)

20191122_모던전원주택_공간제작소_03.jpg ⓒ 공간제작소

공간제작소에서 시공할 수 있는 최소 평 수인 18평으로 계획된 이 모던전원주택은 같은 단층전원주택이더라도 설계를 어떻게 하냐는 천지차이입니다.

20191122_모던전원주택_공간제작소_04.jpg ⓒ 공간제작소

모던전원주택 건축 시 가장 처음 단계는 수치를 일정화하여 자재를 재단하는 일입니다. 수치 입력 후 자동화 설비 시스템이 일정한 수치로 균일하게 자재가 재단됩니다. 이때 오차율은 제로에 가까우며 더욱 견고하고 기밀한 시공이 가능하므로 단열이 더욱 우수합니다.

20191122_모던전원주택_공간제작소_05.jpg ⓒ 공간제작소

자재를 재단하고 그 재단된 자재들로 모듈 조립이 완성되면 PVC 배관 및 에이콘 작업과 전기 배관, 수도 등의 연결작업들이 진행됩니다.

20191122_모던전원주택_공간제작소_06.jpg ⓒ 공간제작소

공간제작소에서는 모던전원주택 건축 시 미국식창호를 사용 중입니다. 창호재는 시스템창으로 아르곤 가스 등을 주입하여 사용하고 있습니다.

20191122_모던전원주택_공간제작소_07.jpg ⓒ 공간제작소

바닥 난방 작업과 방수 작업이 이어집니다.

20191122_모던전원주택_공간제작소_08.jpg ⓒ 공간제작소

해당 모듈을 크레인에 실어 상차 작업을 하고 현장으로 이동하게 됩니다.

20191122_모던전원주택_공간제작소_09.jpg

현장으로 이동하여 현장설치 시 모듈을 결속하고 조립하며 방수 작업 등 마무리 작업을 3일 정도 하면 모던전원주택이 완공됩니다.


오늘 보신 모던전원주택이 완공되는 모습! 미래 기술의 도입으로 늘 발전하는 공간제작소 될 것을 약속드립니다.


7초 건축상담 하러가기 ▶ https://c11.kr/ggbrunch

공간제작소 완공영상 보러가기 ▶ https://c11.kr/ggyoutube

공간제작소_배너_하단.jpg


keyword
매거진의 이전글예쁜 단독주택, 공사현장의 모습은 어떨까?