목조주택시공, 충남 부여군 시공 현장!

in 충청남도 부여군

by 공간제작소
20191129_목조주택시공_공간제작소_01.jpg

안녕하세요-!

미래기술 프리패브 목조주택 공간제작소입니다.


오늘 소개해드릴 목조주택시공 현장은 추운 날씨에도 불구하고 공장 내 실내에서 시공이 가능하여 공사기간이 늦춰지는 경우가 절대 없는 공간제작소의 목조주택시공 현장! 지금 바로 보실까요?


20191129_목조주택시공_공간제작소_02.jpg ⓒ 공간제작소
설계개요

대지위치 충청남도 부여군

건축용도 단독주택

건축공법 경량목구조

건축규모 지상 1층


총 85.99㎡(26.01py)

1층 85.99㎡(26.01py)

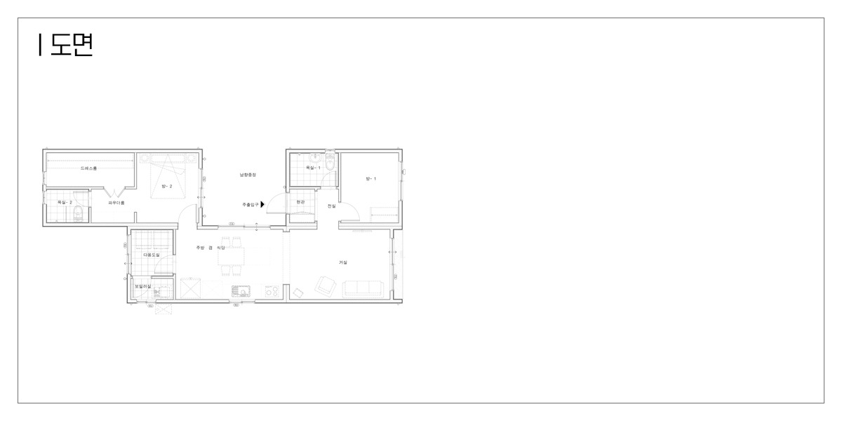
20191129_목조주택시공_공간제작소_03.jpg ⓒ 공간제작소

이번 목조주택시공 현장은 1층으로 계획된 26평의 목조주택입니다. 남향으로 중정이 있어 독특한 분위기를 자아냅니다.

20191129_목조주택시공_공간제작소_04.jpg ⓒ 공간제작소

목조주택은 습기에 취약하기 때문에 벽체가 비가 오랜 시간 노출될 경우 벽체가 손상되는데요, 하지만 공간제작소의 목조주택시공은 지붕이 있는 실내 공간에서 짓기 때문에 자재를 최고의 상태로 보존할 수 있습니다.

20191129_목조주택시공_공간제작소_05.jpg ⓒ 공간제작소

재단과 모듈의 조립이 다 이루어지면 그 뒤에 PVC 배관 작업과 에이콘 배관 작업이 이루어집니다. 에이콘 배관은 PB 배관으로 불리며, 수도 연결 등의 배관이므로 누수의 걱정이 없습니다.

20191129_목조주택시공_공간제작소_06.jpg ⓒ 공간제작소

공간제작소는 미국식 창호를 사용 중입니다. 미국식 창호 브랜드 안에서 자유롭게 선택이 가능합니다.

20191129_목조주택시공_공간제작소_07.jpg ⓒ 공간제작소

우리나라는 주거 습관으로 인해 대부분 주택들은 바닥 난방을 이용하고 있습니다. 예전에는 바닥에 직접적으로 열을 가하는 땔감과 아궁이 등을 이용한 방식이었으나 현재는 보일러나 전기온돌판넬 등으로 가열된 온수를 이용하는 방식입니다.

20191129_목조주택시공_공간제작소_08.jpg ⓒ 공간제작소

위에 말씀드린 거와 같이 목조주택은 습기에 취약하기 때문에 이를 보완할 수 있는 부자재인 타이벡 또는 투습 방수지를 사용합니다.

20191129_목조주택시공_공간제작소_09.jpg ⓒ 공간제작소

외장공사에 이어 내장마감이 이루어집니다. 이에는 욕실 타일 작업 등이 해당됩니다.

20191129_목조주택시공_공간제작소_10.jpg ⓒ 공간제작소

타이벡은 단열효과와 결로방지, 그리고 습기가 유입되지 않도록 일종의 보호막의 역항을 합니다. 공간제작소는 실내에서 시공하지만 현장으로 이동 시에 벽체가 노출되므로 이를 방지하기 위하여 타이벡으로 주택을 꼼꼼히 감싼 후 상차를 합니다. 타이벡은 아주 견고한 섬유질로 이루어져 있어 물방울과 같은 수분이 침투 되는 것은 막아주지만, 공기는 통하는 특성을 가지고 있어 목조주택을 숨쉴 수 있게 하는 중요한 자재입니다.


강추위가 한창인 요즘, 실내에서 공정이 이루어지므로 기후의 영향을 받지 않아 절대 공사 기간이 감소되는 공간제작소에서 목조주택시공으로 따스한 겨울 보내세요♡


7초 건축상담 하러가기 ▶ https://c11.kr/ggbrunch

공간제작소 완공영상 보러가기 ▶ https://c11.kr/ggyoutube

공간제작소_배너_하단.jpg


keyword
매거진의 이전글모던전원주택이 완성되는 과정은?