adorable(어도러블)| 세식구의 사랑스러운 하루

by 공간기록






DJI_0465.jpg
DJI_0448.jpg
DSC07543.jpg
DSC08020 (1).jpg
ⓒggglog | 어도러블




사랑스러운 세 식구의 포근한 하루

adorable(어도러블)


부드러움을 머금은 공간에 사랑이 피었습니다.

아기와 젊은 부부의 행복이 매일 솟아나는 심플하우스

/충청북도 청주시 오창읍 전원주택





오창-횡단면도.jpg
오창-종단면도.jpg
ⓒggglog | 어도러블



공간기록

View Point 4

1. 다채로운 외부 활동을 위한 | 세 가지 마당
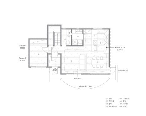
2. 이성과 감성의 교차 | 서번트(Servant) vs 서브드(Served) 스페이스
3. 사생활을 고려한 '독립과 연결'ㅣ순환동선
4. 로망을 담은 '창가의 풍경'ㅣ윈도우시트 (Window Seat)

ⓒggglog





adorable(어도러블)

사랑스러운 세 식구의 포근한 하루_ 어도러블


햇살의 따스함이 조용히 내려앉은 청주 오창의 작은 한마을, 사랑의 온기로 공간을 가득 채운 사랑스러운 보금자리가 있습니다. 어도러블은 불필요한 것을 제거하고 꼭 필요한 것들로만 심플하게 설계된 단독주택으로, 이제 막 새로운 삶을 시작한 신혼부부와 갓 태어난 아기의 행복한 일상이 담긴 포근한 분위기의 집입니다.

특별히 값비싼 자재를 쓰지 않고 합리적인 예산과 편의를 고려하여 가족에게 알맞은 섬세한 동선과 구조를 설계하고, 자연의 푸르름을 담은 창문의 햇살은 실내를 은은한 생기로 채웁니다.


이곳은 다채로운 외부 활동을 위해 마당을 세 가지 컨셉의 섹션으로 나누고, 내부 공간 또한 서번트(Servant)-서브드(Served Space) 공간으로 설계하여 건물이 가지는 기능적 특성과, ‘공간의 온도’를 살려 이성적-감감적 영역을 교차로 설계했습니다. 이 외 가족 간의 프라이버시를 함께 고려하여 라이프스타일을 반영한 순환형 동선체계를 구성하여, 부부와 자녀의 공간을 미묘하게 분리해 ‘독립과 연결’을 통한 정서적 편안함을 더했습니다.


한 편 건축주 가족의 로망을 실현해 줄 윈도 시트는, 유대관계를 깊어지게 합니다. 계절의 모습을 액자로 걸어놓은 듯한 네모진 창문은 실내공간의 답답함 해소시키고, 숨은 그늘 없이 자연의 밝음으로 집안을 화사하게 물들입니다.



그림2.jpg
그림1.jpg
ⓒggglog | 어도러블


일상의 사랑으로 가득한 채워진 집, 어도러블은 아기의 부드러운 살결처럼 폭신하고 부드러운 감성적인 분위기 속에서, 공간의 가능성과 기능을 세심하게 설계하여 완성한, 「30평대 2층 전원주택」의 정석과도 같은 집입니다. 아기의 옹알이와 부부의 행복한 대화가 차곡차곡 쌓이는 소리가 들리는 이곳은 서로의 속삭임에 집중하며 소중한 일상을 켜켜이 쌓아 행복의 미래를 함께 그려갑니다.






DJI_0433.jpg ⓒggglog


View Point 01

다채로운 외부 활동을 위한 | 세 가지 마당


청주 오창의 택지 위에 지어진 어도러블은 아늑한 자연 속 경치를 자랑하는 안정적인 위치에 자리 잡고 있습니다. 이미 2m 이상 되는 길 차이로 인해, 프라이버시와 조망은 확보되어 있는 상태였지만, 확실한 가족의 프라이버시 보호와 넓은 마당을 활용하기 위해, 매스를 최대한 북쪽으로 밀착시켜 남향의 넓은 마당을 확보했습니다. 덕분에 적극적으로 마당을 활용할 수 있게 되어, 건축주 부부는 각각 세 가지 컨셉의 섹션으로 알맞게 나누어 사용하고 있습니다. 첫 번째 앞마당은 정원 다운 마당으로, 두 번째 마당은 재철 식자재를 직접 수확할 수 있는 신선한 채소로 가꾸어진 텃밭으로 마지막 세 번째 정원은 고소한 냄새가 익어가는 바비큐장으로 활용하여, 저녁이면 가족과 친구들이 모여 식사를 즐기며 이야기를 나누고, 소중한 일상을 나누는 마당으로 완성되었습니다. 어도러블는 전략적인 설계를 통해 넓은 마당을 여유롭게 누리며, 자연을 둘러싼 주변 안정감과 녹음의 깊이를 경험할 수 있습니다.



DSC07697.jpg
DSC07738.jpg
DJI_0465.jpg
ⓒggglog | 어도러블


ⓒggglog | 배치도




View Point 02

이성과 감성의 교차 | 서번트(Servant) vs 서브드(Served) 스페이스


문을 열고 들어서자마자 포근함이 감도는 인테리어가 마음을 부드럽게 만져주는, 어도러블의 실내 공간은 서번트(Servant) vs 서브드(Served) 스페이스로 구성하여 건물이 가지는 기능적 특성을 고려 해 공간의 온도를 이성적 - 감성적으로 교차하여 설계했습니다. 공간을 크게 북향과 남향으로 방향을 크게 구분하여, 볕이 잘 들지 않는 차가운 공간에는 기능적인 활동이 필요한 ‘주방이나 욕실, 팬트리’를 두고, 따뜻한 남향에는 오랜 시간 가족이 머무를 수 있도록 ‘거실, 다이닝, 취미실’과 같은 공간을 배치하여 구조에 당위성을 더했습니다. 특별히 정리 공간이 부족한 주방에, 팬트리를 추가로 설치하여 쉽게 어수선해질 수 있는 집기나 다양한 물건을 보관할 수 있도록 수납공간을 배치해, 실용적인 공간에 깔끔함을 완성했습니다.



DSC07543.jpg
DSC07636.jpg
DSC07891.jpg
ⓒggglog





View Point 03

사생활을 고려한 독립과 연결 | 순환동선

*순환동선 : 공간과 공간이 분리되지 않고, 시각적- 공간적으로 연결되어 있는 동선


DSC07985.jpg
DSC08020.jpg
DSC08058.jpg
ⓒggglog


2층으로 올라오면 계단을 중심으로 어도러블의 포인트라 할 수 있는 순환동선이 마련되어 있습니다. 순환동선은 일반적인 아파트에서 경험하기 어려운 구조로 건축주의 동선에 꼭 맞춘 편의를 제공합니다. 이곳의 개별적 공간에 걸쳐있는 세 개의 문을 어떻게 활용하냐에 따라 온 가족의 패밀리룸이 되기도 하고, 부부만의 프라이빗 한 마스터룸으로 변신해 공간을 미묘하게 분리하면서도 공간의 ‘연결과 독립’을 효율적으로 정리했습니다. 먼저 패밀리존을 기준으로 아이 방과 침실을 배치하고, 침실 안쪽 영역에는 드레스룸, 파우더룸, 욕실까지 하나로 이어지는 마스터존이 됩니다.

오창-1층-평면도.jpg
오창-2층-평면도.jpg
ⓒggglog | 평면도

*서번트 / 서브드 : 돕는 공간, 도움받는 공간이라는 뜻으로 주로 설비 공간과 거주공간으로 나뉜다.

*팬트리 : 식료품 저장창고, 일반적으로 주방 옆에 위치해 주로 식료품이나 주방집기 등을 보관하는 용도로 사용되었으나, 최근에는 다양한 물건을 수납하는 창고로 용도가 확장되었다.



설치된 포켓도어를 닫게 될 경우 개인의 프라이버시를 보호하는 벽으로 구분이 되기도 하고, 문을 열게 될 경우 길게 이어진 패밀리존으로 유기적으로 연결되어 개방적인 순환동선으로 활용할 수 있습니다. 순환동선은 건축주님의 생활습관에 따라 공간을 집약적으로 활용할 수 있어 실용적인 설계를 선호하는 건축주님에게 추천하는 방식 중 하나입니다. 어도러블하우스의 순환동선은 제한된 공간에 아이를 돌보면서도 구분된 공간을 유지할 수 있어, 서로의 이해를 돕고 사랑이 넘치는 일상을 돕는 지혜로운 선택입니다.






View Point 04

로망을 담은 창가의 풍경 | 윈도우시트

*윈도우시트 : 창가에 조성된 공간


건축주 부부는, 기존 살던 아파트를 처분하고 태어난 아이와 함께 목가적인 전원생활을 향유하기 위해 어도러블을 짓게 되었습니다. 너른 마당과 함께 싱그러운 자연과 낭만이 깃든 이곳에서 부부가 가장 매력을 느끼는 장 소중 하나가 윈도우 시트입니다. 윈도우시트는 큰 창문을 둘러싼 형태로 창문 아래 평상을 제작하여 만들어진 휴식공간입니다. 네모 반듯한 창문은 실내의 답답함을 없애고, 사계절을 액자처럼 담아내며 집안 곳곳에 숨은 그늘 없이 밝음으로 내부를 화사하게 물들입니다.


그림1.jpg ⓒggglog


평상은 공간의 존재만으로도, 이곳에서 같은 곳을 바라보고, 같은 시간을 보내며 하나로 연결되는 듯한 행복한 감상을 느끼게 해주는 장소입니다. 넉넉한 공간은 아니지만, 쉽게 놓칠 수 있는 여유를 잃지 않기 위해 계단으로 올라오면 바로 눈앞에 쭉 펼쳐진 하늘의 전경을 바라볼 수 있는 로망이 깃든 장소로 연출했습니다.










keyword
매거진의 이전글스테이 산월(山月)|가족이 함께 운영할 농어촌 민박