설계에 소요되는 시간

작은 건물을 설계하는데 들어가는 시간이 얼마나 될까?

by 이고아

얼마 전에 아는 지인으로부터 부탁이 있었다. 4층 규모의 다가구주택 계획안을 좀 만들어줄 수 있냐는 부탁이였고 무엇보다 설계를 하고 싶은 마음이 가득하기에 물론입니다. 라며 답을 드렸다. 문제는 급한 상황이다보니 시간이 얼마 없어 그 다음날까지 어떻게 안되겠냐는 물음이였다.


"급해서 그런데 다음날까지 부탁해도될까?"


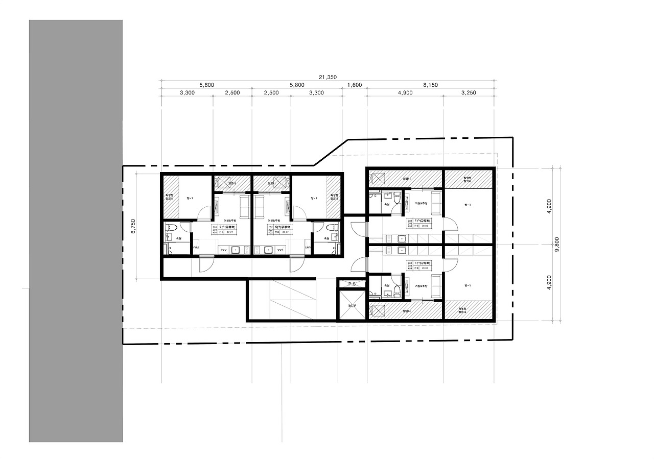
속으로는 그게 어떻게 가능하겠는가.. 하겠지만 거절은 못하겠고 일단 해보겠다고 하면서 어떻게 하면 최대한 빨리 결과물을 낼 수 있을까 고민했다. 요구하는 사항은 장방향의 대지이기에 주차하기가 어려운 땅이라는 점을 골 적정주차대수를 확보하면서 최대한 가구수를 만들어내는 것이였기에 다른 고려사항은 생략한 체 오로지 주차대수와 다가구주택 가구수만을 충족하기 위해 고민하기 시작했다.


이때 도움이 가장 많이 된 것은 과거에 다녔던 건축사사무소에서의 경험이였던걸까.. 늘 궁금했다. 어떻게 저렇게 빠르게 계획안이 나올까? 라는 질문이였고 그에 대한 답변은 몇해가 지나 계획을 하다보면 거의 똑같은 패턴이기에 어떻게 배치하느냐에 차이일 뿐 크게 달라지는 게 없다고 했다. 솔직히 그때만 하더라도 이상을 쫓아서였던건지 그런 말들이 내게는 건축을 제대로 고민하지 않는게 아닌가 싶었다. 그러나 시장은 고민하는 시간보다는 빠른 시간내에 최대의 이익을 원했고 나의 주장은 힘을 잃어버렸다.


지금은 내가 직접 계획안을 작성하는 건축사의 입장이 되어보니 그때의 기억과는 달리 오히려 존경스럽다는 생각이 들기도 했다. 그만큼 설계에 시간을 투자했고 그 경험이 직관적인 설계가 가능하게 되면서 짧은 시간내에 계획안이 나오는게 아닐까하는.. 그러나 반대로는 그렇게 만들어진 집이라는 장소는 특색이 없기에 오랫동안 거주하는 곳이라기보다는 잠시 들렸다가 나가는 임시거처의 느낌이 강하게 느껴지기도 했다.



20251022 계획안(1차피드백)-모형_1.jpg






약속은 약속이니 밤을 지새우며 평면 배치를 고민했고, 새벽녘쯤에는 평면을 따라 간단한 스케치업 모형을 기반으로 3D 모델링까지 만들어서 보내드렸다. 다행이도 요즘에는 3D 모델링 AI가 잘 되어있기에 박스로 올리고 대략적인 형태보여주기에는 몇분도 채 걸리지가 않지만..


건축사사무소가 전국에 15000개소정도 된다고 한다. 그 중에 나를 택하여 설계를 의뢰한다는 것만으로도 감사한 일 그자체다. 그저 설계가 하고 싶을 뿐이다. 그저 의뢰인과 밝은 미래를 상상하며 긍정적 에너지가 가득한 건축을 하고 싶을 뿐이다.


작가의 이전글불특정을 위한 집과 당신을 위한 집