brunch

골목길을 품은 건물

공공일호 관찰기 2편 <1층 보행자통로>

by 공공그라운드

글, 사진 | 조이


인턴 면접을 보러, 공공일호에 처음 왔던 날이 기억납니다. 공공그라운드는 부동산 회사이다보니, 첫 번째 사옥인 이곳을 공부해갔어요. 건물의 역사와 건축가, 사진까지 찾아봐 놓고는 코앞에서 건물을 찾아 헤맸습니다.


IMG_5334 (1).jpeg 인도와 이어진 공공일호 1층 보행자통로 ⓒ 조이


아마 1층에 난 길 때문인 것 같아요. 건물을 가로지르는 많은 사람과 앞에서 보이는 뒷 편의 풍경 덕분에 건물이라기보다는 골목길 같다는 생각을 했습니다.

사무실에 있으면, 그 날의 저처럼 길을 묻는 전화가 참 많이 옵니다. 혜화역 2번 출구로 나와 돌아서면 보이는 건물이라서 눈 앞에 있을텐데 말이죠. 조금은 번거롭지만 그날을 떠올리며 저는 기분좋게 문의전화를 받습니다. 도드라지려 애쓰는 건물들 속에서 자연스럽게 어우러지는 공간이 가지는 특별함을 이 곳에서 생활하며 배웠거든요.



호기심을 일으키는 시점


공공일호 1층은 대학로와 함께 호흡하고 싶은 건축가의 의도가 가장 잘 드러나는 곳입니다. 인도와 이어진 길을 통해 공공일호로 들어서면, 통로의 중간에서 두갈래 길과 만나게 됩니다. 이런 통로는 건물의 정면과 후면, 좌측면에 뚫려 있어 건물의 중간에서 ‘ㅓ’모양으로 교차합니다. 문 없이 동굴처럼 뚫린 통로를 통해 많은 사람들이 자유롭게 건물을 드나들죠.


by_tabial_S7B8969.jpg
IMG_5339 (2).jpeg
by_tabial_S7B9055.jpg
공공일호 1층 보행자 통로_우측부터 정면, 후면, 좌측면 ⓒ 공공그라운드


1층의 보행자통로를 단순히 일자로 뚫어놓은 것이 아니라 대각선으로 틀어 설계했고, 중간에 4-5칸의 층계를 설치하여 높낮이를 주었습니다. 자연스럽게 여러 눈높이가 생기니 건너편 일부는 훤히 보이지만, 일부는 가려져 궁금증을 불러일으킵니다.

서로 다른 눈높이가 공존하는 1층의 공간감은 사람들의 공간 경험을 풍부하게 하고, 행동을 유도합니다. 언뜻 보이는 풍경은 지나는 이의 눈길을 사로잡고, 인도에서 건물 안쪽으로 발을 들이게 하죠.



길과 길이 만날 때


일이 손에 잡히지 않을 때면, 1층 통로를 거닐며 공간과 사람을 관찰했습니다. 매일 같은 시간 통로를 지나는 사람들과 눈과 비를 피하는 쉼터가 되어주는 공공일호의 일상이, 참 특별하다는 생각을 했습니다. 제가 하루의 대부분을 보내는 회사가 누군가에게는 골목길(혹은 지름길)로 더 익숙할 것이라는 생각도 즐거웠죠. 그러다 허허벌판에 이 건물을 만든 건축가는 무슨 상상을 했는지 궁금해졌어요. 건축가 김수근은 이 건물을 통해 하나의 도시를 표현했다고 합니다. 우리의 도시가 그러하듯, 다양한 골목과 광장 그리고 함께하는 일상을 이 공간에 녹였습니다.



보행자가 걸을 때 미국 도시에 비해 유럽 도시가 더 자주 교차로와 마주치게 된다. 그만큼 보행자는 더 다양한 선택의 경험 혹은 진행방향과 다른 방향으로 난 도로의 공간감을 체험하게 된다는 말이다……. 이러한 선택의 경우의 수가 많이 생겨날수록 그 도시는 우연성과 이벤트로 넘쳐나게 되는 것이다.

- 유현준, <도시는 무엇으로 사는가?>

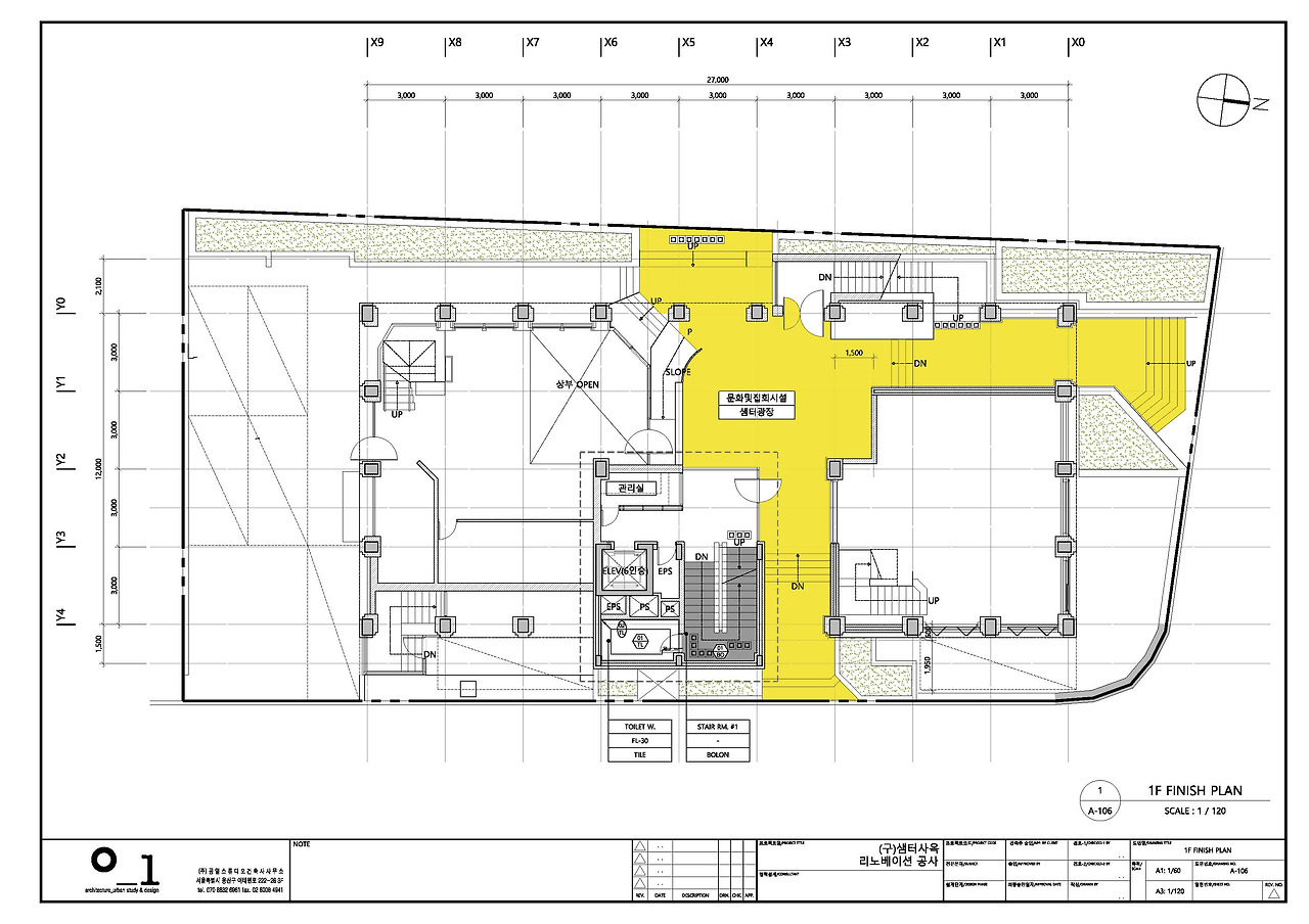
1F 도면.jpg 공공일호 1층 도면 ⓒ 공공그라운드/공일스튜디오 제공


건물 3면의 통로가 엮여 만들어진 교차로의 수 만큼이나 다양한 사람들의 움직임이 보입니다.아마 김수근 건축가가 꿈꾼 도시는 풍요롭고, 역동적인 모습이었을 것입니다. 공간을 활용해 다양한 골목길을 만들고, 주변의 길과 이어주며 혜화에서 일상을 보내는 이들에게 풍부한 선택지를 만들어주고 싶었을 것입니다.



공간을 잘 비우는 것


경제적인 면을 보나 관리하는 품을 생각하면, 공공일호는 효율적인 건물이 아니예요. 상층부에 비해 많게는 3배 높은 임대료를 받는 1층을 비우고, 그 곳을 지나는 사람들을 위해 꾸준히 정돈하고 수리하는 것은 효율을 생각하면 할 수 없는 결정이죠. 그러나 일부러 시간을 내어서라도 방문하는 공간과 일상의 흐름 속에 녹아있는 공간은 전혀 다른 분위기를 풍깁니다. 공공일호가 유독 따뜻하게 느껴지는 것은 아마 1층의 일부를 활짝 열어 주위의 소중한 일상을 품었기 때문일 것입니다.


사진 타별 사진관_by tabial studio_S7B3146.jpg
사진 타별 사진관_by tabial studio_S7B3186.jpg
공공일호 1층 광장 ⓒ 공공그라운드/타별사진관


공공일호에서 생활하면서 공간에서 중요한 건 결국 잘 비우는 것이라는 생각을 했습니다. 일반적으로 형태가 멋있거나 용적률을 최대로 높인 건물이 높게 평가받지만, 좋은 공간은 훨씬 더 많은 고민이 필요합니다. 사용자의 편의를 넘어 공간의 내외부에서 모두를 생각하고, 이웃과 함께하는 열린 공간을 어떻게 배치할지에 대한 고민, 그리고 이를 넘어 주변의 건물 혹은 공공과 어떻게 함께할지에 관한 고민이 필요한 거죠.




공공일호의 개방된 1층은 시골 버스정류장 같습니다. 시골에서 버스를 타면 정류장 표시가 없거나 길거리에 버스가 서곤 하잖아요. 초행길인 사람은 여기가 맞나 헷갈리고 무심코 지나치곤 하죠. 그러나 이 곳이 정류장임을 아는 사람들에게는 반갑고 설레는 공간일 것입니다.


저는 공공일호 1층이 그런 정감 있는 곳이었으면 좋겠습니다. 제게 눈에 띄지 않던 이 곳이 일상이 된 것처럼, 함께 혜화를 살아가는 이들에게 하나의 의미로 기억되기를 바랍니다.

keyword