brunch

가설계를 부탁해도 될까요?

가설계는 기획설계나 계획설계를 이른다

by 김정관

흔히 가설계라고 부르지만 공식 용어로는 기획 설계나 계획 설계이다. 대지를 확정하려면 그 땅에 적용되는 건축법과의 관계를 살펴서 토지의 효율성을 알아보는 것이 중요하다. 이 단계는 해당 토지와 건축법의 관계를 검토해서 집이 어떻게 구성될 수 있는지 살피는 기획 설계에 해당된다.


그다음에 대지를 구입하고 나서 계획안을 받아보려는 건 계획 설계가 된다. 사실 이 작업은 건축사의 설계 능력을 검증하려 하는 의도일 수 있다. 기획 설계는 작업이 비교적 단순하지만 계획 설계는 꽤 많은 작업 기간이 필요하다.


비용을 들이지 않으려는 가설계


가설계라는 말은 본 설계에 앞서 간단하게 작성하는 설계 작업이라고 볼 수 있다. 가설계를 서비스해 주면 검토를 해보고 본 설계 계약을 할 수도 있다는 밑밥을 깔아 작업 의뢰를 하는 경우가 많다. 그동안 건축사들이 무료로 기획설계-가설계를 해주는 게 관행이었기 때문이다.

양식이 없는 건축주는 이곳저곳 건축사사무소를 찾아다니며 계획안을 받아 설계비가 싼 건축사와 계약을 하기도 한다. 그렇지만 싼 게 비지떡이라는 말은 건축 설계에도 꼭 같이 적용된다는 걸 알았으면 좋겠다. 남이 작업한 계획안을 받아 심도 있는 검토 없이 건축허가를 받는 단계로 진행되는 건 결과물이 뻔한지 않을까?



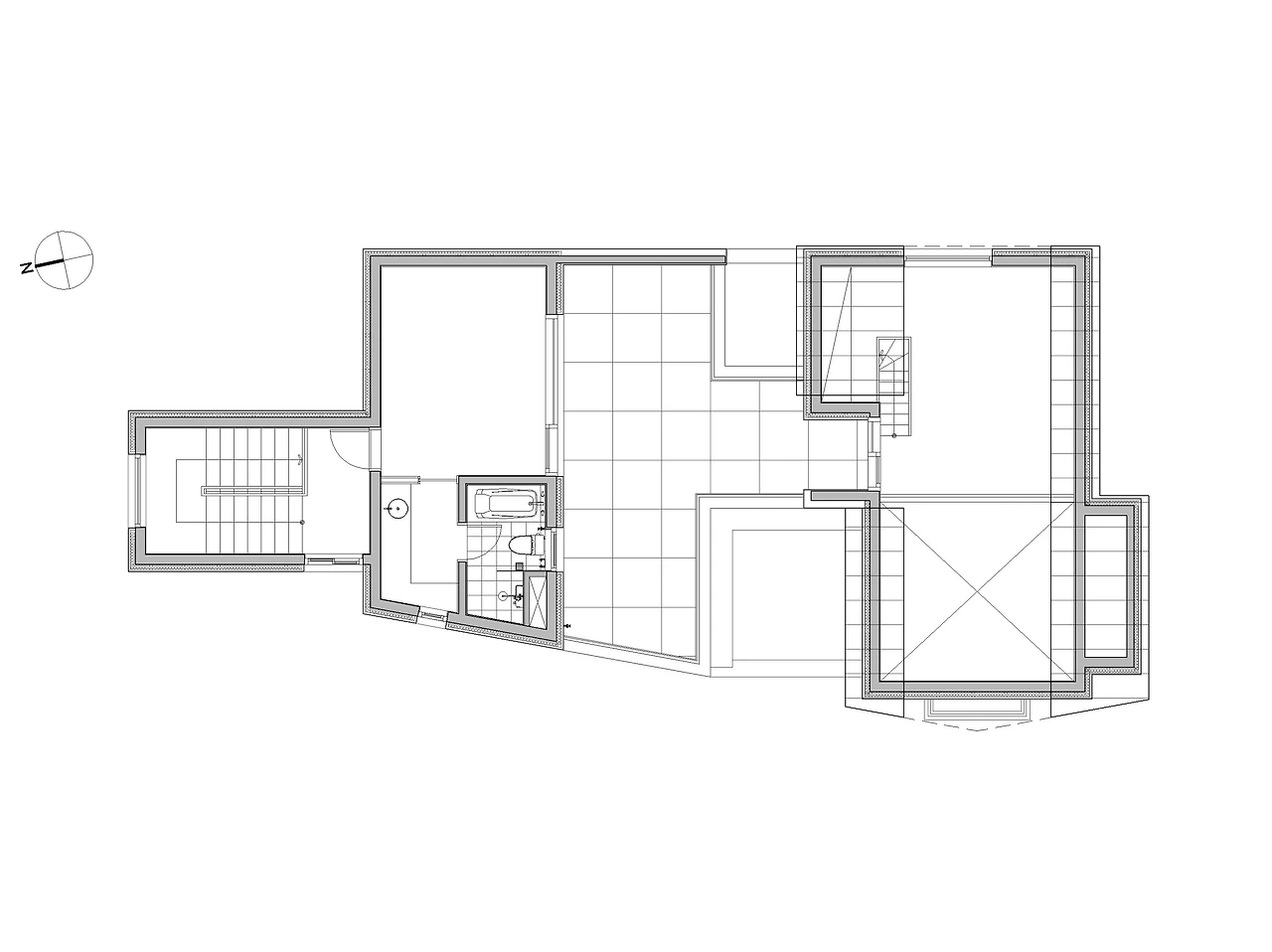
필자 설계 -도반건축사사무소-부산 문현동 상가주택 양명재-대지조건은 서향으로 앉아 형태도 이형이라 게획설계가 마무리될 때까지 40개의 안이 검토되었다


설계비를 아끼려는 속셈으로 몇 군데 건축사사무소를 순회해서 받았던 안 중에 하나는 건축주의 눈에 들어온 것일 뿐이다. 집을 지어 파는 일을 하는 부동산개발 사업자라면 그렇게 해도 될지 모른다. 좋은 집을 지으려 하는 것보다 잘 팔리는 집에 관심이 많기 때문이다.


그렇지만 좋은 집을 짓기 위해서는 계획안을 수십 번 검토해야 한다. 그런데 설계비를 아끼려고 공짜 계획안을 챙겨서 가장 싼 대가로 건축사를 정한다면 어떻게 될까? 주는 대로 받고 시키는 대로 빨리 도면 작업을 끝내려고 할 것이다. 이렇게 되면 그야말로 사상누각을 짓는 일이 되고 만다.

우리집 설계를 의뢰할 건축사는


가설계를 받아 건축사를 정하는 건 별로 권장할 방법이 아니라고 본다. 건축사사무소를 순회하는 것보다 내가 지으려고 하는 용도의 건축물을 돌아보는 게 좋지 않을까 싶다. 눈에 들어오는 건축물을 찾았으면 설계자가 누구인지 확인하는 건 어렵지 않다.

맘에 드는 건축물을 설계할 건축사를 찾았으면 건축사사무소를 방문해서 상담을 해보면 되겠다. 그런데 건축주와 건축사가 궁합이 맞는지 대화를 나누는 건 아주 중요하다. 건축주가 바라는 집과 건축사가 추구하는 건축관이 맞아떨어져야 하기 때문이다.


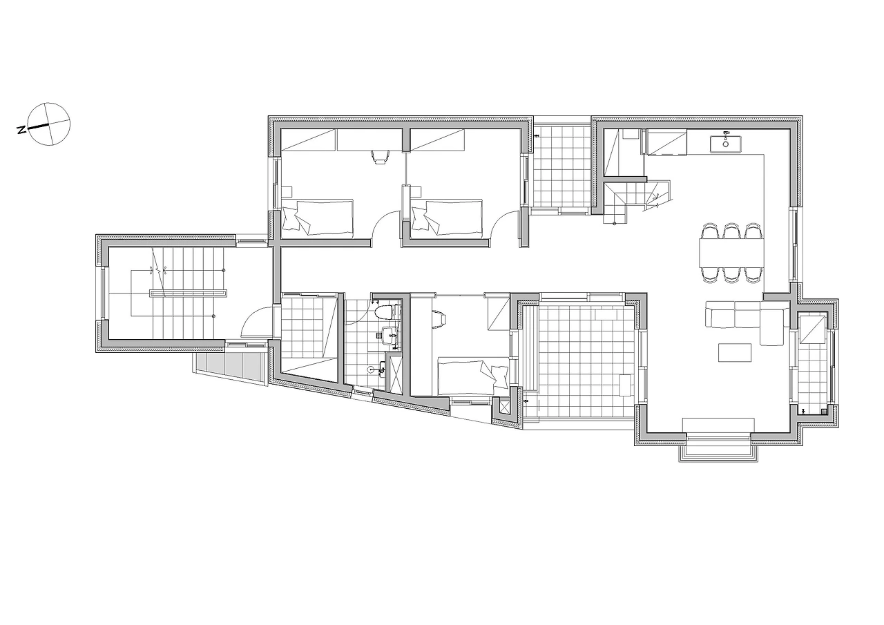
계획설계가 마무리되면 최종 결과물을 3D 모델링으로 실제 건축물로 지어질 상태를 점검해본다


건축주와 건축사의 궁합은 집을 설계하는 과정에서 아주 중요하다고 할 수 있다. 사실 가장 좋은 궁합이라면 건축주는 건축사를 신뢰하고, 건축사는 건축주의 입장에 서는 사이가 아닐까 싶다. 건축사가 자신의 집을 짓는다면 설계를 얼마나 오래 다듬고 또 다듬을까?

설계 기간은 건축사의 설계 대가의 원가를 결정하는 가장 큰 요인이라 할 수 있다. 설계비를 건축물의 규모와 관련해서 평당으로 책정하는 건 건축주의 부담을 줄이려는 필요조건이 될 수는 있다. 그렇지만 좋은 집으로 작업을 제대로 하려는 건축사의 입장에서는 충분조건이 될 수 없다. 그래서 설계비가 적정하지 않으면 설계를 서둘러 끝내려고 하는 것이다.

계획 설계비를 드릴 테니

설계 상담을 받고 다녀갔던 건축주에게 연락이 왔었다. 계획 설계비를 지불할 테니 계획 설계를 해 줄 수 있느냐는 내용이었다. 건축주는 솔직하게 얘기하며 다른 건축사와 계약을 하고 설계를 진행하고 있다고 했다.

계획 설계안을 받아보니 너무 마음에 들지 않아 작업에 대한 기대치가 없다고 했다. 이 대지는 계획안을 풀어나가는 게 쉽지 않을 조건을 가지고 있다. 도심주거지역 골목 안에 있는데 남향으로 앉은 대지지만 5층 다세대주택이 앞을 막아 햇볕이 들기 어려운 조건이다.


아주 열악한 조건의 대지였지만 건축주의 전폭적인 신뢰에 힘 입어 심도있는 설계 과정과 공사를 거쳐 지어진 집에 건축주는 크게 만족했다.


건축주와 상담할 때 거실이 3층, 방은 2층에 두어야 남향 햇볕이 집에 들 수 있다고 조언을 했었다. 건축주가 계약했던 건축사에게 이 조건을 제시했는데 맘에 드는 안을 내지 못하고 있나 보다. 대지 면적이 적은 땅이라 제한된 여건을 풀어내 맘에 드는 집이 나오는 게 쉽지 않을 것이다.

도심지 작은 땅에 수직으로 지어 올리는 단독주택이 아파트보다 좋게 나오는 게 쉽지 않다. 지가와 건축비를 더하면 큰 평수의 신축 아파트에 살 수 있으니 단독주택에서 누릴 만족감이 들지 않으면 낭패가 아닌가? 계획 설계비를 받고 계획안 작업을 하기로 했는데 건축주가 만족하는 결과가 나왔으면 좋겠다.



내가 작업했던 집들이 마음에 들었으니 다시 찾아와 계획 설계를 부탁하게 되었을 것이다. 그런데 건축주는 왜 다른 건축사를 찾아 계약을 했던 것일까? 아마도 내가 제시했던 설계비에 부담을 가져 좀 더 저렴한 대가로 설계자를 찾지 않았을까 싶다. 계획 설계 결과를 보고 계약 여부를 결정하겠다고 하는데 어떻게 될까?


마흔 평 대지에 주차는 네 대, 이층에 방이 세 개, 삼층에는 거실과 주방, 서재가 들어간다. 어떻게 안을 풀어낼 수 있을까? 건축면적이 24 평 정도인데 계단실과 미니 EV가 들어가면 유효면적은 20 평이 채 되지 않는다. 건축주가 마음에 들어하는 계획안이 나와서 실제 계약으로 이어지길 바라며 계획안 작업을 시작한다.



설계 상담 : 도반건축사사무소 (T-051-626-6261)


keyword