brunch

아파트와 다르고 단독주택도 부럽지 않은 집

명지동 3380-4 Balcony House 집 짓는 이야기 3

by 김정관

상가주택의 최상층에 들어가는 단독주택의 대지는 아래층 평면의 틀 안이된다. 출입구도 계단실과 E.V가 있는 쪽으로 정해져 있다. 여러 가지 제약 조건이 많지만 아파트만큼 편리하고 단독주택처럼 자유롭게 살 수 있는 집이 되어야 한다.


아파트와 단독주택이 다른 점은 무엇일까? 아마도 마당이 없고 있는 것에서 다르다는 것을 금방 얘기할 수 있다. 집에서 안팎을 드나들며 생활할 수 있어야만 아파트를 떠날 이유가 분명해지지 않을까 싶다.

Balcony House의 3층에 단독주택을 구성하면서 가장 주안점을 둔 부분이 바로 마당과 집 안의 관계를 풀어내는 것이었다. 건축주와 가족들은 그동안 살아온 대형 평수의 아파트보다 더 나은 생활이 될 수 있으리라는 확신이 들어야만 설계가 종료되지 않겠는가? 과연 건축주와 그의 가족들이 만족할 수 있도록 작업의 결과가 나올 수 있을지 궁금하다.

단독주택이 아파트와 다른 점이 한두 가지가 아니지만
마당이 있어 외부 공간을 쓰는 생활의 다양성이 아닐까 한다

제약 요소를 살피다


대지 형태가 가지고 있는 상황을 보면 남북이 장변이라서 동향집이 된다. 아파트 평면을 생각해보면 가운데 거실과 주방이 있고 계단실이 위치한 북서쪽에 현관과 함께 방이 두 개 놓이게 될 것이다. 남쪽에 면해서 안방과 부속실이 들어가면 크게 이견이 없는 평면이 된다.

방위에서 음양을 보면 동과 북은 햇볕이 드는 시간이 짧아서 음陰, 서와 남은 오후 내내 햇살을 받을 수 있으니 양陽이라 볼 수 있다. 남향집은 삼대 적선의 공덕으로 얻을 수 있다고 하니 방위가 주는 생활의 질이 얼마나 큰지 알 수 있다. 가장 좋은 방위는 동남향인데 동쪽에 살짝 물리는 남향이 되면 집 전체에 햇볕을 들일 수 있게 된다.

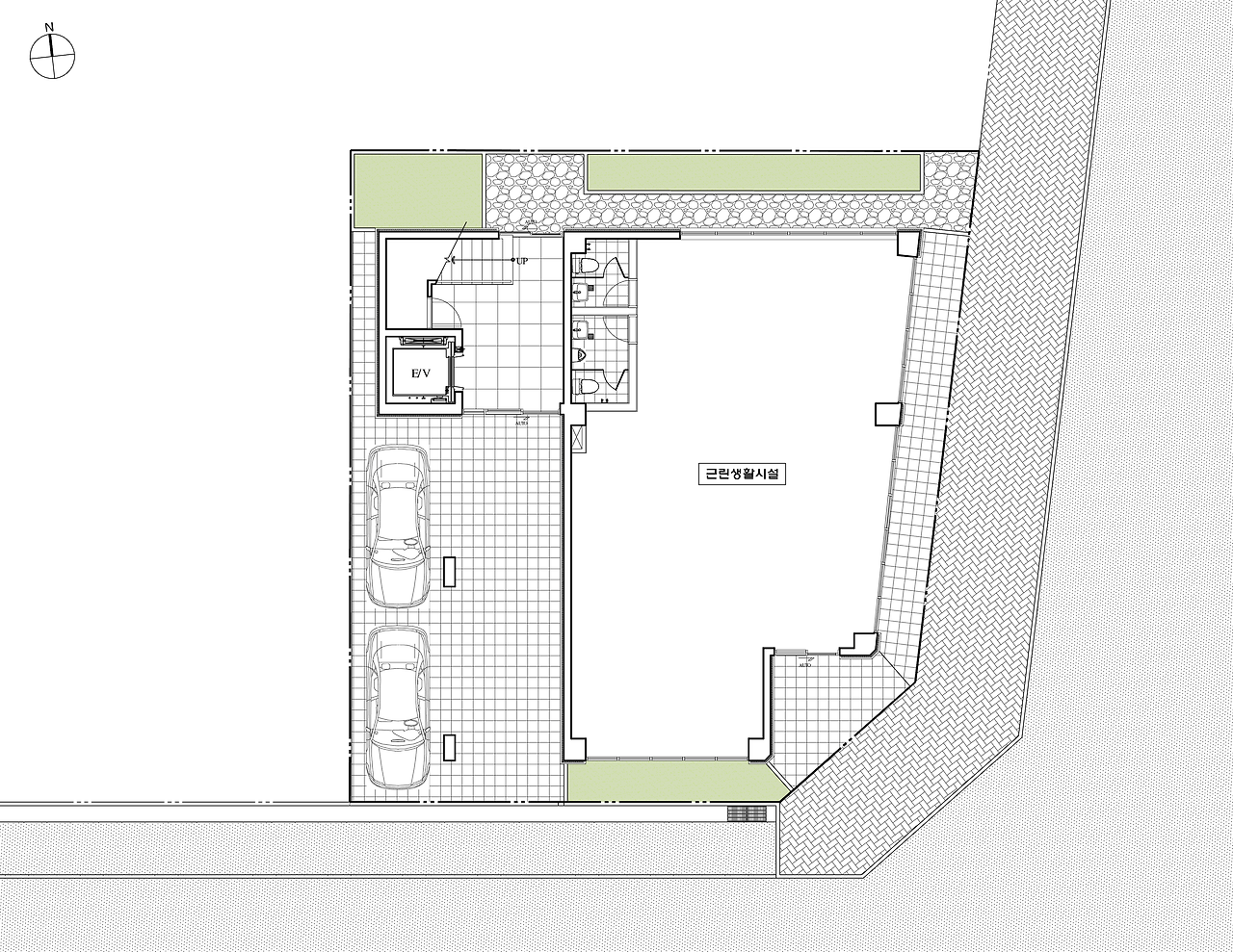
상가주택에 들어가는 단독주택은 아래층을 대지 삼아 평면을 구성해야 한다는 한계를 극복해야 한다

대지의 형상이 장방형에 가깝지만 북쪽 변이 넓고 남쪽이 좁으며 동남쪽에 가각이 된 이형異形이다. 1,2층은 도로 가까이 접해서 대지의 형상대로 평면이 구성되어 있다. 그렇지만 3층 단독주택이 대지의 형상을 따를 수는 없지 않겠는가?

이러한 제약 조건에도 불구하고 우리집보다 더 좋은 집이 어디에 있느냐는 확신을 가질 수 있게 작업이 되어야 한다. 동향집이라는 한계와 이형의 대지 형상을 극복하면서 좋은 집이 될 수 있는 묘안이 나올 수 있을까? 설계자는 작업의 한계를 넘어야 하지만 건축주는 상상의 나래를 펼쳐 꿈꾸던 우리집을 기다릴 텐데.

일층 이층은 대지의 형상에 맞추어 도로에 인접하여 구성되었다. 하지만 3층 단독주택은 계단실이 고정되니 출입구가 정해진 상태에서 건축주가 만족할 수 있게 결과를 만들어야 한다.

평면과 공간에서 찾아내는 쓰임새

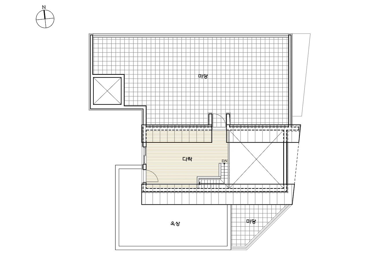
도로에 접한 대지의 형상에 맞춰서 짜진 이형의 3층 바닥은 단독주택의 외벽을 후퇴하면서 극복했다. 3층 외벽이 안으로 들어오면서 만들어진 작은 마당과 발코니에서 공원을 바라보는 공간이 생기게 되었다. 마당에는 남쪽 햇살이 담기고 거실과 주방 앞 발코니로는 공원과 강이 가까이 다가온다.

평면도는 도면에서 보는 집의 얼개이다. 실제 지어진 집의 내부는 벽으로 구획되어 있어 전체를 알 수 없다. 결국 집의 분위기를 좌우하는 건 열려 있는 영역인 거실 주방이 될 것이다. 거실은 경사지붕 아래로 깊은 공간이 생기고 다락과 옥상 큰 마당으로 이어지는 계단을 통해 다양한 공간감이 연출된다.

Balcony House의 백미는 두 개의 마당을 쓰는 데 있다. 거실 남쪽의 작은 마당은 거실 공간의 쓰임새를 확장하고 시선을 밖으로 두면 공원과 강이 우리집 정원으로 끌어온다. 또 거실에서 내부 계단으로 이어지는 옥상의 큰 마당은 단독주택에서 생활하는 외부 활동을 담아낸다. 옥상 공간을 현관 밖으로 나가서 주계단으로 출입하게 되면 층으로 구분되어 사용이 제한된다.


작업을 시작하면서 전체적인 얼개를 구성하면서 한 덩어리로 만든 초기안과 다듬어지면서 남향을 위주로 작업했었던 안, 방이 외곽으로 배치되어 주방이 내부에 있어 갑갑해 보인다
최종안에 가깝게 작업된 평면, 방이 남쪽과 북쪽으로 옮겨지고 공용 공간이 동쪽으로 배치되면서 마당이 작아졌지만 공원과 강을 향하는 의지가 담긴 집이 되었다
최종안, 현관과 팬트리가 커지면서 공용 공간의 균형이 잡히게 되었고 안방의 프라이버시가 확보되었다.
상가주택이면서 넓은 마당을 쓸 수 있도록 거실에서 다락으로 이어지는 계단으로 윗마당과 연게된다



깎아내어 만든 조각 같은 조형미

Balcony House는 거대한 대리석을 깎아내어 만들어낸 조형성을 가진다. 2개 층은 큰 덩어리로 기단으로 삼아 그 위에 단아한 단독주택을 놓았다. 이층과 삼층의 일부를 깎아낸 듯한 발코니는 단순한 조형감에 리듬을 더했다.

2개 층의 매스가 주는 다소 무거운 느낌이 일층 출입구 부분을 덜어내면서 가벼워졌다. Balcony House를 바라보는 시선은 거실 부분의 경사 지붕에 머문다. 이층에서 이어지는 수직벽이 경사지붕과 하나 되어 전체적인 매스가 일체감을 이루게 된다.

지붕 처마와 발코니의 차양 아래로 떨어지는 조명이 대리석 질감의 흰 외벽을 비춰 밤에 빛나는 집이 될 것이다. 공원으로 열린 집이라 낮에는 집에서 밖을 보고, 공원에서 보이는 집이라 조명을 받아 밤에 더 시선을 끌게 된다.


최종안과 초기안의 이미지의 차이를 확인할 수 있다. 발코니 부분이 단순화 되었고 일층 출입구 부분이 변경되었다

낮에도 조형성이 잘 드러나지만 집의 윤곽이 뚜렷해지는 야경이 Valcony House의 이미지를 돋보이게 한다
Balcony House는 일층 상가, 이층 다가구주택에서는 수익성을 극대화하고
삼층 단독주택은 이보다 더 좋은 집이 없다는 자부심을 가질 수 있도록
설계가 마무리되었다

Balcony House의 단독주택은 남향의 햇살이 담기는 거실의 깊은 공간감, 주방과 테이블에서 바라볼 수 있는 공원과 강, 작은 마당과 큰 마당에서 다양한 일상을 보낼 수 있는 생활의 여유는 아파트에서는 누릴 수 없고 단독주택에 부럽지 않은 집이 된다.




도반건축사사무소-대표 건축사 김정관은

집이 행복의 원천이라는 주거의 인문학적 접근을 통해

부산, 양산, 김해, 울산의 단독주택, 상가주택 및 공동주택을 주로 설계하고 있습니다.

설계 상담 : 도반건축사사무소 (T 051-626-6261)

keyword
매거진의 이전글이 집에서 살아보면 다른 집에서는 못 살아요