brunch

이 집에서 살아보면 다른 집에서는 못 살아요

명지동 3380-4 Balcony House 집 짓는 이야기 2

by 김정관

상가주택을 짓는 목적은 상가와 다가구주택에서 임대 수익을 확보하고 3층 단독주택에서 가족들이 행복하게 살 수 있도록 하는 데 있다. 임대수익의 극대화와 우리 가족의 행복이 보장되는 집을 설계하는 것이 설계자에게 주어진 임무가 될 것이다. 돈도 벌고 행복도 찾는다는 두 마리 토끼를 잡을 수 있을까?


일층 상가는 주어진 대지의 여건에 맞춰 주차장을 배치하면 저절로 나오게 되니 고민할 게 많지 않다. 하지만 2층의 다세대주택은 입주자가 늘 거주하도록 최적의 평면이 나올 수 있어야 한다. 또한 3층의 단독주택은 아파트에 사는 것보다 좋은 주거여건을 갖추어져야만 설계를 끝나게 될 것이다.


집이라 불러보면 단어가 주는 느낌에서 마음이 푸근해진다. 3층 단독주택도 그러해야겠지만 2층의 다가구주택도 입주자가 집이라는 느낌이 들 수 있게끔 설계가 되어야 할 것이다. 집이란 규모의 문제가 아니라 집이라는 정서가 푸근하고 포근하게 다가올 수 있도록 결과를 만들고자 한다.

외관의 초기 작업에서는 일층 상가 면적을 대지의 형상대로 최대한 확보했지만 건축주의 요청으로 출입구를 밀어 넣어서 정리되었다.
불이 켜지면 매스의 진면목이 한눈에 들어오게 된다. 공원과 강을 바라볼 수 있는 발코니를 설치한 설계자의 의지가 명확하게 드러난다

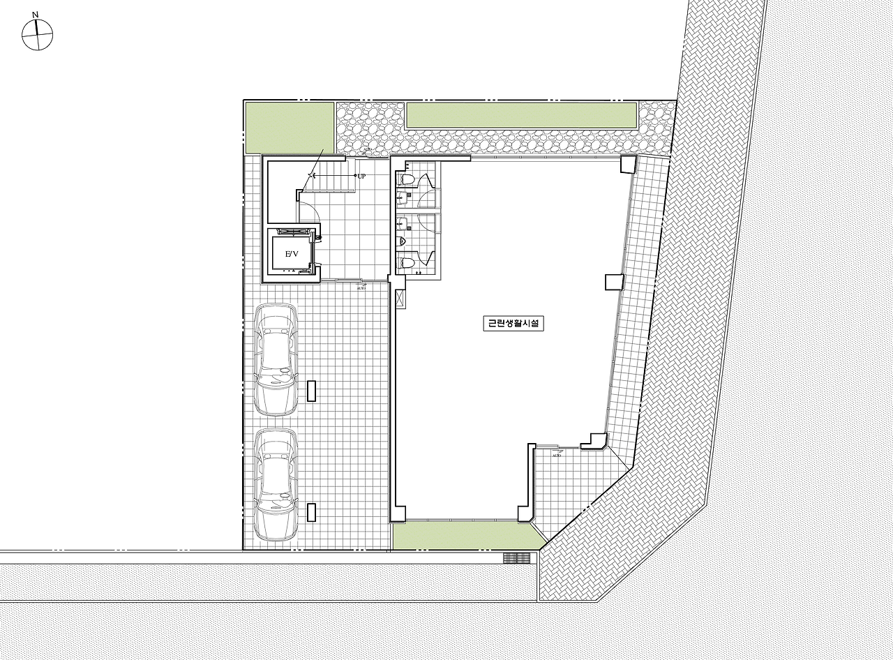
일층 근린생활시설과 주출입구


대지가 있는 이 단지는 도시설계로 주차장 출입구가 지정되어 있어서 쉽게 정리가 되었다. 대지에 접한 도로는 동쪽과 남쪽인데 차량 통행량이 적은 남쪽에 주차장을 두게 되어있다. 따라서 상가는 동쪽 도로에 면해서 길게 배치되었다.


Balcony House는 밤에 빛나는 집이다. 어둠이 내려앉기 시작하면 메인 매스에서 깎아내어 돌출시킨 발코니가 빛나게 된다. 밤에 공원에서 바라보는 Balcony House는 그야말로 빛나는 집이 되니 일층 상가에 입점하는 가게는 손님이 저절로 들지 않을까 싶다.


이삼층 출입구는 두 군데가 만들어진다. 보행자는 북쪽으로 통로를 두어 동쪽 도로에서 들어오고 차를 타고 오는 사람은 주차장에 차를 대고 남쪽에서 들어오면 된다. 건폐율에 맞춰서 남은 땅은 북쪽 통로인데 조경 공간이 함께 하게 되니 잘 꾸몄으면 좋겠다.

삼층 이상 짓는 집에는 E.V는 꼭 설치해야 하는데
수직 동선은 장애인이나 노약자, 짐을 옮겨야 하는 것을 고려해야 하기 때문이다

2,3층 출입 홀은 집의 품격을 떨어뜨리지 않을 공간으로 만들었다. 가끔 3층 정도면 걸어서 오르내릴 수 있다며 E.V를 설치하지 않는 경우도 있다. 수직으로 이동하는 건 건강한 사람의 특권이지 누구나 어떤 상황에 다 적용되는 건 아니지 않은가?


2층까지는 E.V의 도움을 받지 않고 오르내릴 수 있을지 모른다. 하지만 장애인이나 노약자, 다리를 다치거나 짐을 옮기는 상황을 고려하면 3층이면 E.V는 꼭 있어야 할 것이다. 설계자가 건강한 사람이면 계단실을 특별하게 디자인하느라 이런 기본적인 내용을 간과할 수도 있겠다.


Valcony House - 배치 및 일층 평면도

이층 다가구주택


Balcony House에는 이층에 임대용 다가구주택이 네 세대가 있다. 방과 리빙 키친이 있는 소위 투룸이 세 세대, 원룸이 한 세대로 이루어져 있다. 투룸이 전용 면적 13 평 내외로 되어 있는데 일인 세대로 집에 손님을 초대할 수 있도록 의도했다.


집이냐 방이냐의 차이는 주거 공간이 얼마나 사회성을 가지고 있는지 살피면 된다. 혼자서만 쓸 수 있는 집이라면 주거의 정서에서 고립되어 버린다. 집에 손님이 와도 괜찮은 분위기라면 혼자 있더라도 집에서 할 수 있는 일이 많아질 것이다.

소형주택에서 집이냐 방이냐는 사회적 정서가 살아있는지 살펴보면 되는데
손님이 올 수 있어야 집이라고 할 수 있다

Balcony House의 네 세대 중 세 세대는 사적 영역인 침실과 공적 영역인 리빙 키친이 구분되어 있다. 특히 리빙 키친의 공간 구성에 공 들여 작업했는데 테이블 자리를 확보하는데 신경을 썼다. 작은 집이지만 서둘러 돌아가고 싶은 내 집이 되었으면 좋겠다.

Balcony House - 이층 평면도

다가구주택 세대별 특성


-A Type

이 세대는 원룸으로 구성되었다. 보일러실을 세대마다 들이려면 좁은 폭의 외벽을 가릴 수밖에 없다. 그래서 네 세대의 보일러를 통합하는 보일러실을 두다 보니 원룸이 되고 말았다. A-type 세대는 발코니를 살려서 공원을 내다볼 수 있는 여건을 가진다.


-B type

이 세대는 외기에 면하는 벽이 좁은 여건이다. 그래서 침실과 리빙 키친을 매입형 문으로 구획하여 필요할 때 구분해서 쓸 수 있도록 했다. 좁은 집이지만 사적 영역과 공적 영역을 구분해서 쓰는 건 사회적 공간이 유지되는 정서가 필요하기 때문이다. 이 세대도 발코니가 살아있는 특성이 있다.

-C type

이 세대는 A, B 세대와 달리 외기에 면하는 벽이 동과 남의 두 면을 가진다. 거실 영역을 동향으로 배치해서 대지가 가지고 있는 공원을 조망할 수 있는 세대의 특성을 살렸다. 남향의 쾌적한 일조여건을 매입형 문을 설치하여 공적 영역으로 확장할 수 있게 배려했다.

-D type

이 세대는 남향으로 외벽이 넓게 면하는 위치적 특성을 가진다. 공적 영역과 사적 영역이 모두 남향이라 세대 중에 가장 양질의 주거성을 가지고 있다. 정방형의 특성을 가진 세대 평면이라 제한된 면적을 사용하는데 가장 유리하다고 할 수 있다.

상가주택에서 임대공간의 수익성을 안정적으로 유지할 수 있는 세심한 배려가
설계 과정에서 깊이 있게 검토되어야 한다

일층과 이층의 임대공간의 얼개를 살펴보았다. 일층의 상가는 카페나 음식점이 들어올 만한 입지적인 장점을 가진다. 도로 건너편에 공원 주차장이 있어서 주차공간이 확보될 수 있기 때문이다.


건축주는 식당은 용도 특성상 조리할 때 발생하는 냄새 등으로 건물 유지 관리에서 문제가 많으므로 카페 등의 입점을 예상하고 있었다. 옆 건물의 일층이 카페로 성업 중이라 같은 용도로 입점이 될지 의문이지만 경쟁력을 생각하면 오히려 비슷한 용도가 모여 있는 게 유리하다고 본다.


2층의 다세대주택은 각 세대가 다른 평면을 가지고 있다. 세대가 가지는 공통점은 사회적 기능을 부여해 손님을 초대할 수 있는 집으로 만들었다는 것이다. 세대별로 특징이 주어져 있어 불리한 부분을 장점이 될 수 있도록 하였다.


3층의 단독주택은 이야기를 다음 글로 이어가도록 한다.


도반건축사사무소-대표 건축사 김정관은

집이 행복의 원천이라는 주거의 인문학적 접근을 통해

부산, 양산, 김해, 울산의 단독주택, 상가주택 및 공동주택을 주로 설계하고 있습니다.


설계 상담 : 도반건축사사무소 (T 051-626-6261)

keyword
매거진의 이전글쓰기도 좋고 보기에도 좋게 두 마리 토끼를 잡은 집짓기