매거진 Local Blend

#2-1 시작이 반. 기획 GO!

[LocalBlend] - 시공 이야기 첫 번째 - 기획단계 이야기

by 소준의

기술과 열정이라는 무기로 목표를 이뤄 나가는 것은 더 이상 어렵다고 판단한 지난해 10월 이후,

직접 오프라인 진출/개입 ➡️ 도시와 마을의 번창 ➡️ 여행 저변 확대 ➡️ OTA로의 변화

로 변경된 목표를 설정하니 진행 방향이 조금 더 명확해졌습니다.


CEO 입장에서의 세부 목표로는,

1) 10km 이내의 이동거리에서

2) 제주 마을 특유의 정취를 느끼며

3) 오감을 자극받는

4) 만남과 소비가 있는

5) PUB과 HUB로 기능하는

오프라인 거점 역할의 장소로 기존 카일루아 공간을 재창출하기로 방향타를 설정하였습니다.

스크린샷 2020-12-10 오후 10.55.27.png 당연하게도 웰컴센터 PLAN은 notion을 활용하였습니다.


이러한 기조 아래 꾀나 힘든 브랜딩 과정을 진행하였습니다. (정리 깰끔 feat. by inzview)

몇 안 되는 멤버들이 생각하는 새로운 공간의 모습과 느낌을 정리하는 과정에서 어떤 이는 사진과 단어로 어떤 이는 음악으로, 어떤 이는 구술로 설명하며 점차 구체화시켜갔습니다.


아래는 두 명의 팀원이 공유한 각자의 웰컴센터 공간에 대한 이상향(ㅋ)입니다.


스크린샷 2020-12-10 오후 11.02.33.png
스크린샷 2020-12-10 오후 11.03.12.png
스크린샷 2020-12-10 오후 11.03.31.png
스크린샷 2020-12-10 오후 11.02.50.png
스크린샷 2020-12-10 오후 11.03.44.png
제 아내이자 이번 프로젝트의 인테리어 디자인을 맡게된 jade의 생각들

독특한 점은 위와 아래 아이디어는 각자가 어딘가에서 찾아낸 자신의 생각을 시각화할 사진과 단어들인데요. 이들이 묘하게 일치하는 점들을 발견하게 됩니다.(!!!)

월평마을이라는 곳에서 카일루아가 할 수 있는 부분들의 교집합 점을 이야기하고 있었을까요?


스크린샷 2020-12-10 오후 11.09.50.png
스크린샷 2020-12-10 오후 11.08.51.png
스크린샷 2020-12-10 오후 11.08.31.png
스크린샷 2020-12-10 오후 11.09.03.png
스크린샷 2020-12-10 오후 11.09.16.png
스크린샷 2020-12-10 오후 11.09.29.png
카일루아 컨텐츠 총괄인 inzview님의 빛나는 생각들.

자꾸 등장하게 되는 프랑스 사람들의 햇살 가득한, 석회 미장, 녹음이 있는 곳에서, 웃음 넘치는 모습들.

도심의 세련되고 모던한 모습보다는 불규칙하고 채도가 낮은 배경 속 밝은 사람들.


너로 정했다!

프랑스 시골 마을의 친척 집에 온 느낌의 PUBLIC HOUSE!

스크린샷 2020-12-10 오후 11.29.22.png


인테리어 디자이너와 컨텐츠 PD의 빛나는 아이디어가 시각화되고 나니 공간에 대한 규칙들이 보입니다.

어떤 색으로, 어떤 물성을 가진 자재를 활용할지, 조경은 이렇게, 방문객의 페르소나와 운영 방식까지.

2월부터 약 2달 동안 지루한, 때로는 '유레카' 모멘트가 존재하는 일련의 회의와 정리의 과정을 거쳤습니다.


가장 재미났던 점은 전기 카트 아이디어였습니다. 기존에 운영하던 '서귀포 펍크롤'이 어떤 단계에 오르게 되면 약 1500만 원 정도 하는 전기 카트 (12인승)을 구매하려 했더랬습니다.

스크린샷 2020-12-10 오후 11.04.01.png
2AF73F7C-1204-43AA-947D-CFCC9AE7DB2E-91783-0000069321F3B5E5.JPG
네. 꼭 사게될 날이 올겁니다!

아시다시피 펍크롤은 코로나로 무기한 보류가 되었지만, 다수 멤버들 의견에서 나온 마을을 자전거와 산책으로 둘러보는 이야기 중 전기 카트 아이디어가 툭 튀어나옵니다 ㅎㅎ


제주의 행정동 구분은 대체적으로 한라산을 중심으로 부채꼴로 나누어져 있습니다. 월평동 또한 거주 지역은 다소 내륙이지만, 이러한 부채꼴 특성에 따라 긴 해안을 끼고 있고 이 지역에 올레길 7-8번이 지나고 있습니다. 하지만 거주 지역에서 해안까지는 걸어서 30분 정도, 자전거로는 10분, 차로는 5분 정도가 걸립니다. 이 거리가 전기 카트라는 Green한 접근으로 더 가까워지고, 제주의 공기를 느낄 수도 있게 된다고 생각하니 마을을 접근하는 방식에 다채성을 부여하게 될 아이디라며 무릎을 탁! 쳤더랬습니다.


그리고 또 다른 흥미로운 점은 오감에 대한 inzview님의 접근입니다.

사실 월평마을이라는 곳에 제가 그리고 카일루아가 정착하게 된 과정과 현재에 이르기까지 무엇이 이 곳으로 우리들을 이끄는 매력이었는지 정리가 되어야 이 곳을 찾는 분들께 우리가 사는 '이 곳'을 명확히 소개할 수 있었는데, inzview님의 의견은 좀 더 불분명한 오비탈 상태의 무언가에서 원자의 위치를 가늠케 하는 듯한 설명이었습니다.


스크린샷 2020-12-10 오후 11.27.25.png inzview님의 제주-월평마을에 대한 오감에 대한 이야기

아.. 정말이지 5월 8일 첫 삽을 뜬 그 날의 이전의 시간 동안 이들 문서와 회의가 없었다면...

220여 일에 걸친 대장정 중 멘탈 바사삭 순간에 마법 같은 해결책이 될 참고서가 없었을 수도 있다고 생각하니.... (참말로 다행입니다)


그리하여 아래와 같은 첫 도면이 무료 도면 앱으로 소소하게 나옵니다.

_2020-03-28__5.41.53.png
_2020-03-28__5.44.21.png
_2020-03-28__5.43.00.png
네. 원래 계획에는 발 담그는 수영장도 있었습니다. (에헴)


카일루아의 본사의 좌측을 아내가 운영하는 maybewavy_vintage와의 콜라보로 샵인 샵.

우측을 웰컴센터 라운지로 나누어 시공 전 준비에 박차를 가합니다.

'맞이하고 만나는 체험의 장소' + '보고 만질 수 있는 소비의 장소'


다행히도 제가 대학시절 animator로 일했던 경험이 있다 보니, 3D 스케치가 가능했지만...

우리 중 누구도 이 정도 규모(?)의 리모델링을 직접 진행해본 경험은 없었습니다. 자재에 대한 경험과 시공에 대한 경험도 있었을 리 없었죠. 그리고 뭐 예산이 많을 리도 만무하고. 믿는 건 '그거 뭐 유튜브 있으니까 다 가능하겠지'라는 믿음뿐이었지 싶습니다. (아 진짜 웃음만 나옵니다... 미쳤었구나... 내가, 너가, 우리가....)


이후로는 이리저리 제주 구석구석 재미난 건물과 자재상들을 돌며 우리가 그린 모습에 가까운 물건과 배치를 고민합니다. 그 과정에서 보고 들은 내용을 아래처럼 인쇄해 벽에 걸고 함께 논의에 논의를 거쳤습니다.

2020. 12. 11. 오전 12_04_17의 사진 7.JPG
2020. 12. 11. 오전 12_04_17의 사진.png
2020. 12. 11. 오전 12_04_17의 사진 5.JPG
2020. 12. 11. 오전 12_04_17의 사진 2.JPG
2020. 12. 11. 오전 12_04_17의 사진 4.JPG
2020. 12. 11. 오전 12_04_17의 사진 3.JPG
정말 평생할 건축, 자재, 도면, 시공 공부를 다 했습니다.

그리고 좀 더 명확한 내부 구조를 3D 도면화하여 공간의 평면도를 가지기로 하고, 일부 도급이 가미된 '직영 공사'로 시공방식을 결정하면서 작업자들에게 지시할 간략한 도면 또한 별도로 만들기로 합니다.


이 말인즉슨,

요즘 DIY가 아닌 DIT라고 하던데요.

네... Do It Together를 건드려버린 것입니다.


그때 왜 좀 아껴보자고 그랬을까... 217일이 흐른 오늘 그 날의 결정을 되짚어봅니다...(ㅋㅋㅋ)


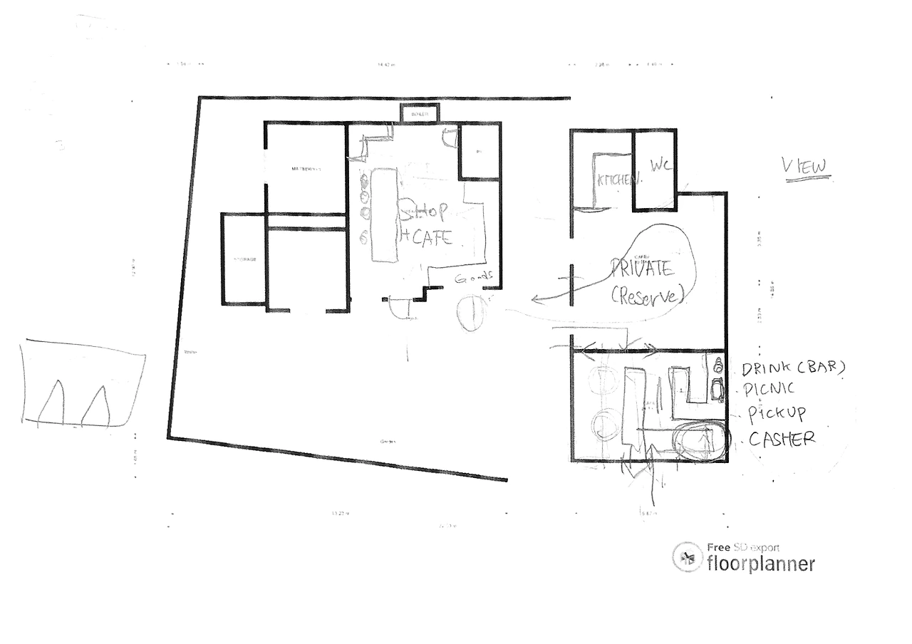
3월 말. 우선 각 공간의 기능과 동선에 따른 배치를 간단한 평면도 위에 손 스케치로 표현하며 의견을 모아 최종 구상을 마쳤습니다. 아래는 주방 동선이 나오지가 않아 고려해본 여러 안 중의 1/5 정도입니다. (당신의 시공 일정이 +5일 증가되었다)

2020. 12. 10. 오후 11_54_37의 Scannable 문서 4.PNG
2020. 12. 10. 오후 11_54_37의 Scannable 문서 6.PNG
2020. 12. 10. 오후 11_54_37의 Scannable 문서 3.PNG
2020. 12. 10. 오후 11_54_37의 Scannable 문서 7.PNG
2020. 12. 10. 오후 11_54_37의 Scannable 문서 5.PNG
2020. 12. 10. 오후 11_54_37의 Scannable 문서 2.PNG
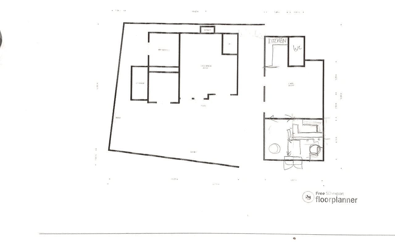
좌우측 건물의 기능은 명확했는데... 동선이 안빠져서 오랫동안 허우적...

가장 문제가 되었던 것은 기능에 따라 좌측과 우측 공간의 역할은 샵과 라운지로 구분되었지만, 각 기능에 따른 동선과 세부 기능을 위한 내부 구조가 도저히 나오지 않아 며칠을 서로 머리를 맞대고 고민하였습니다.


그리하여 4월 15일 시공 전 최종 3D 도면이 나왔습니다.

스크린샷 2020-12-11 오전 12.15.56.png

스케치업을 활용한 이 도면은 작업 중간중간 상황에 따라 변경 사항을 (밤을 새우면서) 지속 업데이트했으며, 온라인으로 자동 동기화해 두어서 시공 과정에서 필요할 때 모바일로 mm 단위까지 확인하거나 시공자에게 설명하는 데에 아주 요긴하게 활용했습니다. (시공하시는 분들이 그러셨어요. 이거 뭐냐고. 어떻게 하는 거냐고. 캬캬캬)


그리고 간략화한 시공 작업자용 평면도를 슥삭슥삭. (당신의 시공 일정이 +5일 증가하였습니다)

2020. 12. 11. 오전 12_17_25의 Scannable 문서 2.PNG
2020. 12. 11. 오전 12_17_25의 Scannable 문서.PNG
2020. 12. 11. 오전 12_17_25의 Scannable 문서 3.PNG
철거에 활용된 작업자용 평면도입니다. 주1(좌측)과 부1(우측)으로 나누어 명칭을 확실하게 했습니다.


이런 중간중간 5년여간 카일루아에 살며, 일하며 쌓인 집기들을 정리합니다.

IMG_2254.jpeg
IMG_3984.jpeg
IMG_3529.jpeg
IMG_3948.jpeg
아 너무 많아... 버릴 것이...

바쁘다는 핑계로 뒷전이 된 건물은 많이 노후되어 있었고, 관리 안된 조경은 말할 것도 없었습니다.

이때만 해도 금방 시공에 들어갈 것 같아서 설레는 마음에 정리를 진행했는데 이러고도 1달은 흐른 후에야 겨우 철거에 들어갔던 것 같습니다.


2월부터 4월까지의 시공 준비 기간을 정리한 사진 한 장이 있습니다.

IMG_1992.jpeg "ㅈㄴ 피곤해... 매일매일이! Zzzz"하고 잠들던 때. 근데 준의야 그거 알아? 앞으로 200일간 그거 20배는 더 힘들 거야^^^^

아무튼,

경기가 어려운 관계로 인테리어 업종 자체가 불황이었기 때문에 직영 공사를 하기에도 일부 도급으로 진행하기에도 문제가 없었다 잔꾀를 갖고 있었고 이런 상황이 저희에게는 운이 좋은 부분으로 작용하기도 하였던 터라 "업자 다 구해질 테니 계획을 확실하게 해 두자"는 일념 하에 철거, 목공, 전기 업자가 정해지기도 전에 계약서와 별첨으로 달릴 도면에 심혈을 기울였습니다.


역시 시작이 반이죠! 정말 그렇게 생각했더랬습니다.

그리고 멘탈이 바사삭 부서지는 좌충우돌 시공 계약과 실제 시공이 시작....

(다음 편에 이어집니다)

keyword