소방공사와 세탁실

by 가을탓

2014.04.16


모든 사람을 충격에 빠뜨린 세월호 참사는 내가 살아가는 이 나라에 생명과 안전이라는 숙제를 남겼다. 그날 오후 배가 침몰하는 장면은 아직 내게 생생하게 남아있는 인생의 사건이고 상처이다. 그 영혼들은 어떤 별이 되고 바람이 되었을까?


세월호 참사가 있은 그다음 해 겨울 발생한 의정부 D아파트 화재로, 2017년 겨울 제천의 N스포츠센터에서 큰 불이 나서, 또 많은 사람들이 다치고 죽었다. 이번에는 물이 아니고 불이다. 그 화재들은 건물을 짓고 유지할 때 돈이나 효율성보다 훨씬 중요하고 궁극적인 요소는 사람이라는 너무 당연한 교훈을 내게 남겼다. N 스포츠 센터는 쉽게 불이 붙는 단열재를 썼고, 비상탈출구를 창고로 쓰며 피해를 키웠다. 놀랍게도 문제의 단열재는 당시 건축 규정으로 허용되는 것이었다. D아파트는 있던 방을 나누어서 더 많은 사람을 들였고, 스프링클러가 제기능을 발휘하지 못할 상황이기도 했지만 그보다 아예 작동하지를 않았다.


공사를 시작하기 전, 지나가다 우연히 발견한 어느 다세대 주택의 모습은 놀라웠다. 필로티 구조의 1층 외부 마감재의 일부가 돌타일인 줄 알았는데, 깨져나간 것으로 보이는 단면이 이상해 보여서 가까이 가서 보니까 스티로폼에 얇은 껍데기를 씌운 자재다. 아마도 건축주나 시공자 중 하나가 건축비를 아끼려고 이렇게 시공을 했을 것이고, 보통의 경우는 결코 아닌 드문 경우일 것 같다. 내가 집 짓기에 조금 더 개입하고 더 많은 걸 직접 결정하려고 했던 이유 중 하나는 이 장면이었다.



구조설계에서 한바탕 소란을 겪은 뒤에 매일 전쟁터 같은 공사판 어딘가에 가라앉아 있던 안전이라는 이슈는 소방공사에서 다시 고개를 들었다. 공사 중에 소방설계를 변경해야 하는 사정이 생겼다. 처음 설계에서 스프링클러용 물탱크와 펌프 용량이 기준을 충족시키지 못해서 더 상향해야 했다. 문제는 그 부피가 생각보다 훨씬 크다는 거였다.


엄격해진 규정을 충족하는 물탱크는 32,000리터, 펌프의 모터는 37kW 용량이다. 이것도 규정을 충족하는 최소한으로 줄이고 줄인 결과였다. 화재로 전기가 끊길 수 있으니 모터 대신 그만큼의 출력을 내는 디젤엔진이 별도로 필요하고, 펌프와 엔진을 합한 크기가 배관을 포함해서 웬만한 경승용차만 하다. 주방과 보일러실을 비롯하여 건물의 모든 공간에 연결된 스프링클러로 물을 뿜어낼 소방펌프의 전기모터는, 계약전력 46kW에 매달 기본요금이 평균 32만 원 수준이고, 사용량에 따른 전력요금은 매달 달랑 800원이다. 배보다 배꼽이 400배 크다.ㅎㅎ



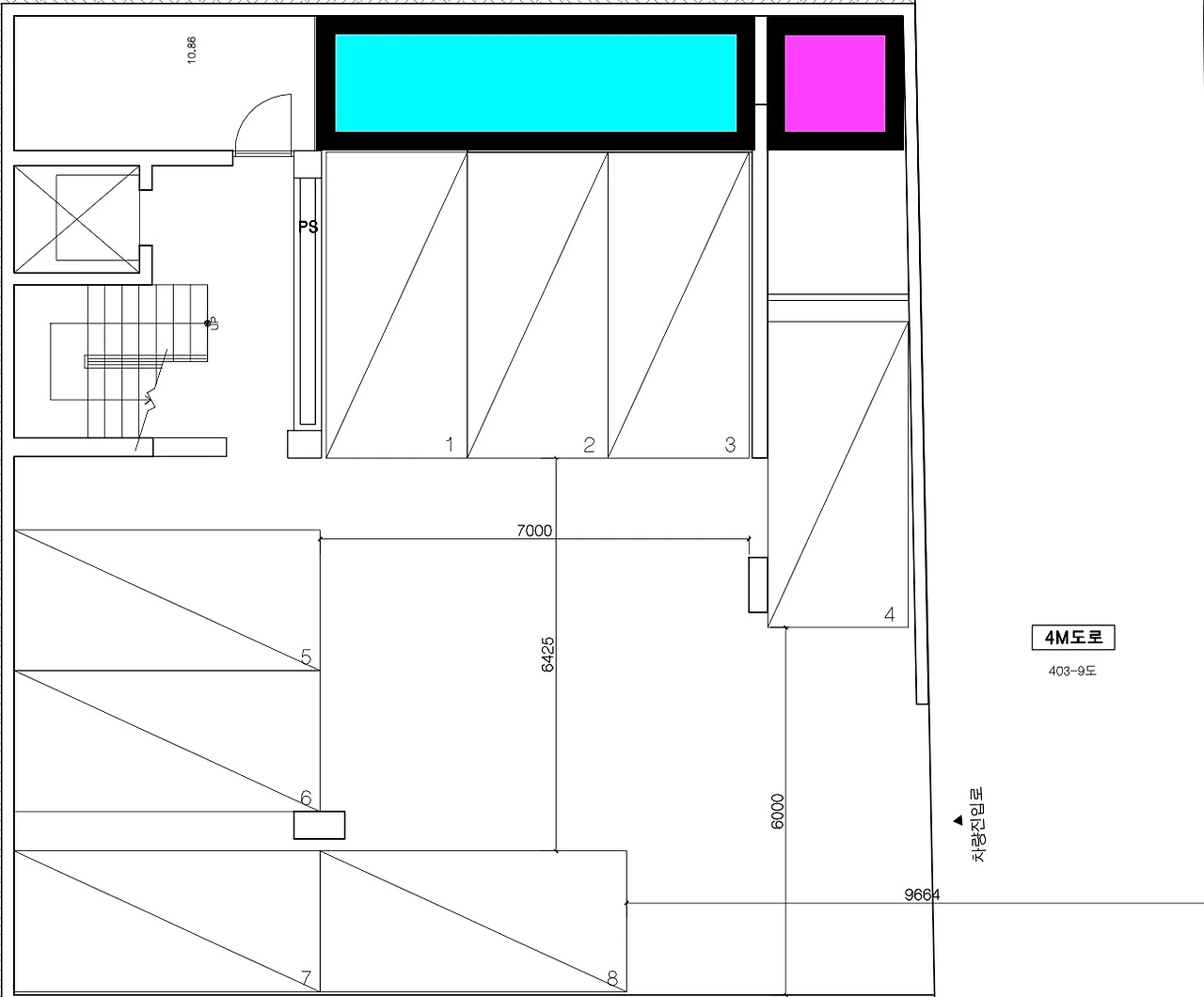
지하층의 도로 쪽 면으로 길이 7미터, 너비 2미터, 높이 2미터의 거대한 소방용 저수조가 들어앉았고, 이 엄청난 소방수를 건물 곳곳으로 실어 나를 펌프와 엔진을 위한 공간이 길이 5미터, 너비 2미터의 자리를 차지하게 됐다. 내가 이 건물에 사는 한 나를 포함하여 모든 이들의 안전을 위한 소방 설비에 아무런 불만은 없다.


사진 상단 왼쪽이 펌프실, 파란 부분이 소방저수조, 우측 보라 부분이 세탁실


이 거대한 소방 설비 때문에 주차면적이 다소 좁아지는 것은 아주 약간의 편리성을 포기하면 된다. 이 집은 경사지에 위치하고 있어서, 주차장 진입로가 따로 필요 없이 4미터 도로에서 곧바로 주차장으로 진입하는 게 큰 장점이다. 이런 경사진 곳이 아니었다면 나는 지하층에 주차장을 만들 꿈을 꾸지 못했을 것이다. 작은 부지에 집을 지을 때는 주차장 진출입로가 골치거리라는데, 내게는 그런 걱정이 없다. 내가 집터를 주저 없이 이곳으로 정한 중요한 이유 중 하나는 주차장이었다. 게다가 골조공사의 실수로 10 센터 미터 높아진 지하층 바닥의 높이는 도로와 높이를 맞추는 걸 도와서 주차장 진출입을 더 쉽게 만들어 주었다.


아픔은 다른 데 있었다. 공동 세탁실과 지하창고를 넣을 공간이 사라져 버렸다. 지하에 조용하고 편리한 빨래방을 두려던 계획에 차질이 생겼다. 지하에서 1층으로 올라가는 계단 밑에 넣어보려고 했으나, 그 자리는 상수도 탱크와 펌프의 차지다. 집의 부족한 수납공간에 여유를 주려고 넣었던 창고가 사라지게 된 것도 내게는 아팠다. 또 머리에 쥐가 나기 시작했다.


연구를 거듭한 G 도시건축은 구석진 자리에 세탁실 공간을 확보해 주었다. 처음의 바람은 엘리베이터에서 내려서 바로 옆에 세탁실을 만들고 싶었으나, 어렵사리 찾아낸 공간은 반대편 끝 구석자리였다. 세탁실에 가려면 엘리베이터에서 내려서 주차장 나가는 문을 열고 나가서 주차장을 가로질러가서 왼쪽 구석으로 다시 한번 꺾어져야 한다. 그래도 세탁실이 없는 것보다 있는 게 백만 배 정도 좋다. 칸막이와 문을 만들고 벽에 투명 페인트를 내가 직접 칠한 다음 대용량 드럼세탁기와 건조기를 넣었다. 지하 창고는 결국 포기해야 했고, 모든 공사가 끝난 뒤 물탱크 벽면에 수납장을 주욱 만들어서 놓는 것으로 대체했다. 대신 6층 엘리베이터실 옆으로 비는 공간에 큰 선반을 만들어서 아쉬움을 달랬다.


시공 견적에서 소방공사비는 3,900만 원으로 예상했으나 설계가 변경되고 설비의 용량이 커지고 오래 걸리면서 5,700만 원으로 올라갔다. 생명과 안전에는 아무리 투자해도 아깝지 않다.


마감공사 중에서는 승강기를 먼저 시공했다. T사 제품 9인용 승강기를 3,800만 원에 계약하고 설치해서, 마감 공사를 할 때 장비와 자재를 실어 나르는 데 잘 활용했다. 승강기 사용 승인이 나기 전에 사용하면 불법이기는 한데, 소장이 승강기 마스터키를 가지고 가벼운 장비와 자재를 위아래로 운반할 때 제한해서 작동시켰다.



층마다 바닥공사와 보일러 배관이 착착 진행될 즈음, 내부 마감공사를 할 업체를 찾았다.


이 집 짓기에서 내가 접촉한 청년그룹은 둘이었다. 한 팀은 공사 전체를 함께 할 파트너를 찾을 때 연락했던 청년 건축가 그룹이었고, 그들은 내가 건축을 제안하고 일주일 정도 검토를 하더니 자신들이 이런 복합건물을 해 본 경험이 적어 적절하지 않다면서 거절했다. 한 번 도전해 볼만했을 텐데 포기하는 그들을 보면서, 내가 더 아쉬워하며 존경하는 마음을 보냈다.


다른 한 팀은 인테리어를 전문으로 하는 A 사였다. A사의 대표 J는 참가자를 모으고 있던 사업 추진 단계에서 입주를 하려고 준비모임에 몇 번 참여했다가, 교회가 들어 온다는 걸 알고 나서 슬그머니 빠져나간 사람이었다. 그는 자신이 빠진 이유가 무엇이었는지를 거의 2년이 지나서야 내게 알려주었다. 키가 크고 그윽한 눈빛의 J는 섣불리 자기 속내를 드러내지 않는 신중한 사람이었던 게다. 내가 눈여겨보아 둔 A사는 내부 마감공사를 제안받고 한참을 저울질하다가 공사를 하겠다고 전격 알려왔다.


창호공사, 바닥공사, 내부 조적공사, 미장공사, 전기통신공사가 한창 진행되는 초여름에 이 집 짓기의 마침표라고 할 수 있는 내부 마감공사 준비가 끝났다. 참여자들은 이사업체와 통 크게 계약해서 일곱 건의 이삿날을 잡았다.



#서울에서집짓기 #집짓기 #건축 #소방공사 #승강기공사 #엘리베이터 #마감공사 #인테리어공사