소나무 언덕, 도시형한옥

도시형 한옥

소나무 언덕, 인천 동구 송현동

A의 집에 대한 첫 번째 기억은 인천의 어느 한옥집이다. 지금의 그를 있게 한 근원과 같은 곳이다. A와 그의 부모님과 가족들의 삶터였던 곳이다. 또한 그가 결혼하여 신혼집을 마련한 곳이기도 하다. 그러나, 안타깝게도 지금은 사라지고 없다. 해방 이후에 지어진 집이니 어떻게 생각하면 사라진 것이 당연할 수도 있다. 그곳은 인천시 동구 송현동이다. 송현(松峴)은 소나무가 있는 고개라는 뜻으로 전국에 많은 동네 지명으로 쓰이는 흔한 명칭이다. 지명의 유래를 거슬러 올라가 보면 1900년대 초에 인천부 다소면 송현리가 송현동 명칭의 시작이다.

이 집은 위치는 정확하게 알기 어렵다. 현재 주공아파트(솔빛마을 주공 2차 1단지)로 재개발되어 사라진 상태이기 때문이다. 2003년 12월 준공된 아파트이니, 집이 사라진 것은 불과 20여 년 정도밖에 되지 않았다. 그러나, 위치를 가늠할 수 있는 것은 솔빛 주공아파트 맞은편에 위치한 1951년부터 있던 인천 중앙 장로교회이다. 집은 교회 맞은편 골목 안쪽에 위치하고 있었다고 한다. 그리고 그 골목 옆에 '구세 약방'이 기억 속에 있지만, 이것도 현재 사라지고 없다. A의 본적 주소가 ‘인천 동구 송현동 60번지’이어서 그쪽 지번을 지금 찾아보면 너무 넓은 하나의 필지로 정확한 위치를 알기는 어렵다. 하나의 번지 안에 수십 가구가 모여 살았을 것으로 추정된다. 당시의 지번의 구조를 고려하면 당연한 것이기도 하다.

재개발이 되기 전에 A는 그 집의 대문 앞까지 다시 가보았다고 한다. 집 앞 대문까지 갔을 때 큰길에서 거의 1미터 정도밖에 안 되는 작은 골목을 따라서 10미터 정도 걸어 들어가서 대문을 만날 수 있다. 옛날에는 이 정도 골목도 불편 없이 살았지만, 다시 가보았을 때는 너무 좁고 불편한 곳이었다고 한다. 다른 사람이 살고 있었기 때문에 대문 앞까지만 가고 더 안쪽은 들여다볼 수 없었다.


어떤 집이었을까


집의 모습은 A의 기억을 토대로 할 수밖에 없었다. 그가 개략적으로 그린 스케치와 기억들을 종합하여 집의 형태를 구체화해 나갈 수 있었다. 첫 번째로 어떤 집이었는지를 그려달라고 부탁했다. 메모지에 작게 평면을 어느 정도 그려주었고, 각 실의 쓰임새를 지시선을 그리시며 실명을 글자로 써주신 메모를 전달받았다.

처음으로 집이 어떻게 생겼는지를 알게 해주는 순간으로 모르는 집을 처음 스케치로 만날 때가 가장 설렌다. 개략적인 집 스케치로도 어떤 집이었는지 머릿속으로 상상이 되었다. 누구나 자신이 살았던 집에 대한 공간 인식은 기본적으로 가지고 있다. 내 방과 건넌방, 그리고 거실, 화장실, 마당 등. 그 공간의 연결과 구성은 그림과 말로 어떤 형태로든 표현이 가능하다. 그것이 우리가 아는 건축 평면도 같이 나오지는 않지만, 어떤 형태인지, 구성인지를 파악하는 데는 전혀 부족함이 없다.

A 씨가 직접 그린 집의 기억

대락적인 평면과 실명을 큰 글자로 써 내린 쪽지를 받았다. 장독대, 빨래터, 대문, 중문, 부엌, 계단, 욕실, 방, 작은 마루, 건넌방, 마루, 안방, 부엌, 방, 꽃밭, 화장실....


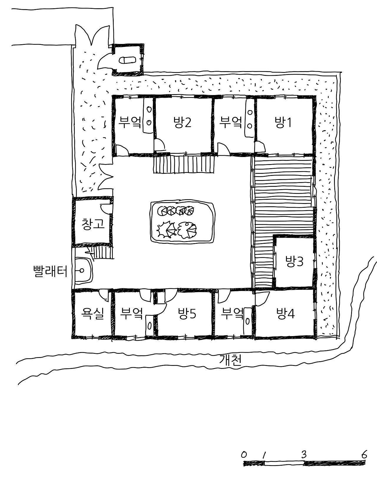
전형적인 ‘ㄷ자’의 도시형 간이 한옥으로 추정된다. 마당을 중심으로 ‘ㄷ’ 자 모양으로 방들이 열 지어 있고, 한쪽 변은 장독대와 수돗가가 위치하고 있다. 화장실은 마당에서 가장 멀지만, 대문 바로 옆에 있다.


집의 모습을 구체화해가다

집의 두 번째 스케치는 첫 번째 받은 그림을 보고 직접 그려보았다. 방의 비례와 실과 실들이 연접하는 구성들을 고려하여 그렸다. 그리면서 계속 맞는지, 틀린 지, 다른지를 A와 이야기하며 조금씩 형태를 구체화해 나갔다. 집이라는 것은 그 시대가 가지는 어느 정도의 규격화된 유형이 있다. 자신이 집을 짓거나, 집을 전문적으로 건설하는 전문가가 지을 때, 집에 대한 시대적 기본 유형에서 벗어나지 않는다. 아주 간혹 독특한 집을 짓기도 하나, 그것 또한 그 시대, 혹은 외국에 있는 어떤 유형의 변형의 형태일 경우가 많다. 그래서 시대적 유형의 집은 그 시대의 삶을 담고 있다.

이 집은 전형적인 도시형 간이 한옥이며 전통 한옥의 공간 구성을 가지고 있다. 마당이 중심에 있고, 대청마루가 있고, 양쪽으로 방과 부엌이 구성되면서 마당을 에워싸고 있다. 그러나, 한 가지 독특한 것은 방과 부엌이 한 세트로 몇 개씩 있다는 점이다. 부잣집이면 방이 여러 개이고 부엌이 한 칸 있었을 텐데, 어려운 시절에 방 한 칸에 가족 모두가 살던 시절이었기 때문에 변형된 구성을 가지고 있다.

위에서 내려다보다

집의 조감도, 엑스노 메트릭이다. 기억에 의존해서 재구성하였기 때문에 전체적인 구성은 맞겠지만, 지붕의 형태는 어떠하였는지 정확하지 않다. 방의 구성을 대략적으로 기억해 낼 수는 있지만, 지붕의 형태를 일반인이 정확하게 기억해내기는 어렵다. 대청마루 부분의 지붕이 더 높았을 수도 있고, 맞배지붕이 아닌 팔작이나 우진각 지붕이었을 수도 있으나, 그런 가능성은 거의 없어 보인다. 또한 기와의 재료는 전통기와는 아니었을 것이고, 개량 기와이거나 슬레이트였을 수도 있다. 이 집은 김포가 고향인 A 씨의 부모님께서 인천으로 와서 살기 시작하면서 직접 지으셨다고 한다. 6.25 전쟁으로 피난 가기 전까지 계속 이곳에 살다가, 전쟁이 나서 피난 갔다 오니 거의 불타 없어져 있어 전쟁 이후에 그 자리에 다시 집을 지으셨다. 이후 1953년부터 1977년까지 이 집은 대가족의 거처였다.

집의 증축

처음 집의 형태는 ‘ㄷ’ 자가 아니었다고 한다. 최초에는 위의 맞배지붕 'ㄱ'자 부분만 있었다가 이후에 개천변의 'ㅡ' 자를 증축하여 세를 놓았다고 한다. 어려운 시기에 가족의 생계를 위해서 세를 받기 위한 증식의 과정이었다.


그곳에서의 삶


A는 3남 2녀의 장남으로 이 집에서 아버지, 어머니, 그리고 5명의 자녀분이 살았다. 그의 기억에 의하면 가족들은 대청마루와 대청마루에 연결된 방 2개에서 모두 모여 살았고, 나머지 방들에는 모두 다른 가족들이 살았다고 한다. 네 가족이 한 집에 살았지만, 화장실은 1개소였다. 하나의 집인 것 같지만, 부엌이 4개소였다는 것에서 지금과는 다른 거주의 형태였다. 방과 부엌이 하나의 세트로 한 가족이 삶을 영위하는 공간이었다. 부엌은 난방을 하는 아궁이가 있는 공간이면서, 식사를 준비하는 요리하는 공간이자, 몸을 씻는 욕실의 기능을 수행하는 다목적의 공간이었다. 마당을 사이에 두고 네 가족이 살았으니 약 20명은 넘는 사람들이 모여 살았던 매우 밀도가 높았던 곳이다. 아마 옆 집에서 무엇을 하는지 충분히, 소상하게 알 정도로 밀집한 곳이었다.

집 평면도

대문으로 들어오면 집의 중심과 가장 먼 곳이면서 대문 바로 앞에 변소가 있고, 조금 지나 중문이 하나 더 있었다. 중문을 열고 들어서면 마당이 있고, 마당 주변으로 방들과 광(창고), 야외 욕실이 있다. 창고 위로 올라가는 계단이 있고 그곳에 장독대가 있었다. A는 76년에 결혼을 하였고, 추후 증축한 부분의 방 1개와 부엌으로 구성된 곳에서 신혼방을 마련하였다. ‘ㄱ’ 자 집에서 ‘ㄷ’ 자 집으로 증축되었고, 증축된 부분의 지붕 높이는 기존 지붕보다 낮게 만들어졌다. 이 집에서 약 30년을 살았다고 한다.


keyword