여주 주택 (2018)

2. 설계 상세 - 공간

by JSH


건축개요


위치 : 경기도 여주시 대신면 초현리

대지면적 : 850㎡ 중 450㎡

건축면적 : 82.39㎡

연면적 : 122.05㎡ (1층 81.20㎡, 2층 40.85㎡)

건폐율 : 19.39% (60% 이하)

용적률 : 28.72% (180% 이하)

조경면적 : 23.23㎡ (5.47%)

용도 : 단독주택

규모 : 지상 2층

구조 : 경량 목구조

높이 : 7.5m


설계협력 : ANA 건축사사무소(최종배)

시공사 : East4 Partners

건축주 : 이용자, 이희숙




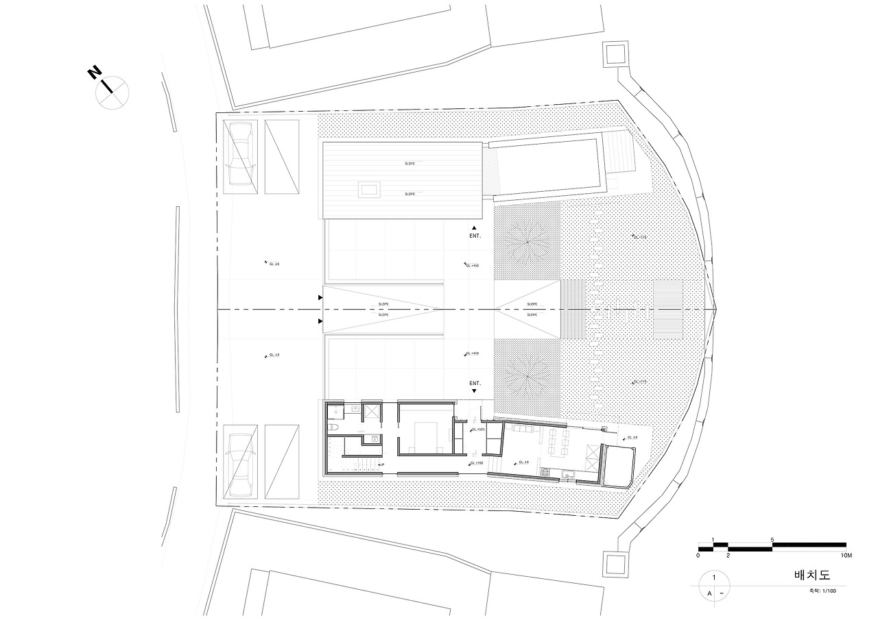
배치


00. 배치도.jpg


땅은 동서로 길고 남북으로 짧다. 집에 닿는 주 도로가 서쪽에 위치하고 있어 서쪽으로 출입하는 것이 자연스럽고 동쪽으로는 이웃집의 밭이 있어 시야를 가리지 않는 넓은 영역이 확보된다. 따라서 주차장은 가장 서쪽에, 마당은 가장 동쪽에 위치하게 배치하였고, 그에 따라 건물은 땅의 남북으로 붙어 동서방향으로 길게 계획하여 야외 공간을 최대한 넓게 공유하도록 하였다.


주차장의 레벨을 ±0mm으로 설정했을 때, 건물의 주출입구는 +450mm 정도로 높게 계획하였는데 주차장과 집을 분리하고 내부에서 외부를 조망할 때 눈높이에 차이를 주려는 의도였다. 하지만 주차장과 주출입구는 경사로로 연결되어 출입구 앞까지 자동차의 진입이 가능하다.


마당의 레벨은 -175mm로 주차장보다 낮게 계획하고 역시 경사로로 연결되게 계획하였는데 주출입구의 레벨이 +450mm이므로 결과적으로 주출입구의 레벨과 마당은 625mm의 차이가 나게 된다. 그 레벨차로 인해 마당은 차도와 명확하게 구분되어 차도와의 가시적, 심리적 거리감과 안정감을 갖게 된다. 마당으로 내려가는 경사로 양 옆에는 단풍나무 두 그루를 식재하여 계절의 변화를 느낄 수 있도록 하였다. 주방과 마당은 연결되는 공간으로 계획하여 마당이 단순한 정원의 용도를 넘어서서 다양한 기능을 수행하도록 계획하였다.




평면


01. 1층 평면도.jpg


현관문 위에는 캐노피가 있어 햇빛도 차단하고 우천 시 비가 현관으로 들이치는 것을 방지한다. (우산을 펼치기 좋은 공간이다.) 현관문을 열고 들어오면 양쪽에 신발장과 수납장이 양쪽으로 배치되어있고 정면에 큰 창이 있어 시야를 틔운다. 그리고 현관에서 계단 한 단의 높이를 올라가면 양쪽으로 갈라지는 복도가 있다. 현관을 생활하는 공간보다 한 단 낮게 계획하는 것은 공간적으로도 둘의 구분을 명확하게 할 뿐 아니라 기능적으로도 신발에 묻어오는 먼지와 우산에 묻어오는 빗물을 차단하는 효과를 준다. (청소도 용이해진다.)


복도에서 왼쪽으로는 침실과 화장실, 드레스룸 등이 배치되어 있고 오른쪽으로는 거실과 주방이 배치되어 있다. 거실과 주방은 복도에서 4계단 아래에 위치하여 마당과 같은 레벨이 되게 함으로써 주방이 마당과 자연스럽게 연계되도록 계획하였고, 거실과 주방의 바닥 레벨이 복도 및 침실 바닥 레벨보다 700mm 낮아진 결과 거실과 주방의 천장고는 자연스럽게 700mm 높게 되어 공간의 개방감을 높였다. 거실과 주방 사이에는 낮은 파티션 정도만 두어 공간은 구분하되 시각적으로는 하나로 보이게끔 하여 결과적으로 공간이 넓어 보이게끔 하였다.


1.jpg 시야의 확장과 자연환기를 위한 창의 배치 (1층)


집의 규모가 크지 않으므로 항상 시야를 길게 틔워주는 것이 내부를 답답하게 느끼지 않게 한다. 따라서 몸이 회전하는 움직임을 갖는 곳 대부분에 창이 계획되었고, 결과적으로 동서남북 어디에나 개폐가 가능한 창이 있어 자연환기가 용이하게 된다.


02. 2층 평면도.jpg


계단을 따라 2층으로 올라오면 침실과 화장실, 드레스룸, 그리고 옥상 마당이 있다. 옥상 마당의 경우 지붕을 1800mm 더 내밀어 햇빛과 비를 피할 수 있는 전이공간(Intermediate Space)을 두었다. 침실에서 잠시 나와 야외 공간에서 벤치와 테이블을 두고 음악을 들으며 느긋한 시간을 보내기 좋을 것이다. 전이 공간의 난간은 2중 접합유리로 계획하여 야외 의자에 앉았을 때 난간으로 인한 시야의 차단을 막고 안전도 확보하였다. (옥상의 난간은 안전상의 이유로 법적으로 바닥면에서 1200mm 이상 높이게 되어 있는데 때로는 이 조항 때문에 난간이 시야를 차단하여 야외임에도 불구하고 공간을 답답하게 만드는 경우가 잦다.)


2.jpg 시야의 확장과 자연환기를 위한 창의 배치 (2층)


2층 역시 1층과 마찬가지로 몸이 회전하는 움직임을 갖는 곳 대부분에 창을 두어 시야를 넓게 틔우고 자연환기가 가능하게 하였다. 개인적으로 화장실의 자연환기를 매우 중요하게 생각하는데, 2층 화장실의 경우 외벽과 접하지 않는 곳에 위치하게 되어 외벽창을 통한 자연환기가 불가능하다. 따라서 2층 화장실에는 지붕에 천창을 두어 자연환기가 가능하게 계획하였다.


07. 지붕 평면도.jpg 2층 화장실에는 천창을 두어 자연환기가 가능하게 하고 여름철 뜨거워진 공기가 쉽게 배출되도록 하였다.




단면


05. 단면도(1).jpg


06. 단면도(2, 3).jpg


집에는 건물주 부부 외에도 여든을 넘기신 자매의 아버지가 함께 살게 된다. 따라서 부부의 침실은 2층에, 계단을 매일 오르내리기 힘든 아버지의 침실은 1층에 두었으며, 언젠가 1층 침실이 용도를 다할 경우 안방과 복도의 내벽을 철거한 후 부엌과 붙어있는 지금의 거실을 위로 옮겨 지금보다 훨씬 넓은 거실을 가질 수 있도록 계획하였다.




입면


03. 입면도(북측).jpg


04. 입면도(동측, 서측).jpg


시야의 확장과 환기를 위해 창의 개수는 자체는 많은 편이지만 개별 창들의 면적은 그리 크지 않아 외부에서 내부가 훤히 들여다보이지는 않도록 계획하였다. 특히 내밀한 공간에 있는 창들은 건물의 측면에 배치하여 도로나 건물 정면에서 내부가 보이지 않도록 하였고, 어쩔 수 없는 경우 미스트 유리를 사용하여 시야를 차단하였다. 외장 마감재는 청고벽돌이라는, 이미 시간이 스며든 재료를 사용하여 건물이 원래 거기 있었던 듯 주변과 이질감 없이 어울리고자 하였다.




규모가 작은 집을 계획할 때 사람들은 대부분 현관, 계단, 복도, 화장실 같이 사용빈도가 비교적 적거나 스쳐 지나가는 공간의 크기를 줄여 거실, 방, 부엌과 같은 주 공간의 크기를 최대한 확보하려 한다. 하지만 개인적으로 그런 생각에 반대하며 오히려 부 공간을 더욱 세밀하게 계획해야 한다고 생각한다. 실제로 여러 사람이 들어오면 신발을 벗어둘 곳이 없는 현관, 두 사람이 동시에 오르내릴 수 없거나 매우 심하게 가파른 계단, 왕래하는 사람의 어깨가 부딪히는 복도, 샤워공간이 분리되어 있지 않아 항상 변기에 물이 튀어있는 화장실이 있는 집에 가보면 그런 공간이 주는 기능적 불편함으로 인해 조금 더 커진 거실, 방, 부엌의 효용을 느끼기 힘든 경우가 많다는 것을 알게 된다. (그저 작은 집이라 생각될 뿐이다.) 그래서 오히려 집이 작아질수록 현관, 계단, 복도, 화장실 같은 부 공간이 더 풍성해야 한다. 그래야 집 전체에 여유가 생기고 결과적으로 실제 규모보다 더 큰 효용을 느끼게 된다.


우리가 편의상 집의 여러 공간을 용도별로 구분하여 부르지만 실제로 집 전체 공간은 - 심지어 야외 공간까지 - 유기적으로 얽혀있고, 이 공간은 저 공간에 물리적-심리적 영향을 주게 된다. 특히 주택은 뭔가를 얻기 위해 뭔가를 극단적으로 포기해서는 안된다는 게 개인적인 생각이다.




keyword