매거진 집 이야기

내 집 설계하기

by 와룡

집을 지으려면 설계부터 해야 한다.

오래전, 그러니까 내가 어렸을 때쯤에는 시공사가 건축주 요구 사항과 기본 설계 경험을 바탕으로 대충 설계한 다음, 시공하면서 문제가 생기면 임기응변으로 땜빵했다고 한다. (이런 곳을 "집장사"라고 부른단다) 우리가 흔히 가진 "개인 주택은 춥고 문제가 많다"는 이미지는 바로 이런 상황에서 시작됐다. (물론 추운 건 다른 이유도 있지만)

이 방식으로 설계하면 설계비는 보통 5백만 원 이하로 싼 편이다.


설계는 전문가에게

그럼 건축사사무소, 즉 전문 건축설계사를 통해 설계하면 어떨까?

일단 돈부터 따져보자. 작년에 땅을 산 후 설계를 하려고 건축사사무소 몇 군데를 찾아봤더니, 설계비만 3,4천만 원(부가세 별도)이었다. 시공사 설계비가 5백만 원이라면 설계비만 8배다. 정말로 믿을만한 시공사고, 공간 구성도 아파트처럼 표준 형태로(그 시공사가 많이 지어 본 형태) 할 거라면 3천5백만 원을 아끼고 시공사에 설계를 맡기는 것도 나쁘지 않을 것 같다.

하지만 나만의 공간을 디자인하고 싶다면, 돈을 떠나서 건축사사무소를 찾을 수밖에 없다. 내가 원하는 새로운 공간을 구획하고, 그 공간이 설계상 안전한지 확인하고, 정확한 설계도서를 만들어 시공 도중에 분쟁이 생기지 않게 해주는 곳이 건축사사무소다.

pexels-energepiccom-110469.jpg 건축 설계. energepic.com 님의 사진, 출처: Pexels

집을 짓겠다고 결심했을 때부터 난 무조건 패시브하우스를 생각했다. 대단한 환경 애호가는 아니지만 어려서부터 자연과 환경에 관심이 많아서, 뭐든 할 수만 있다면 돈을 더 들이더라도 에너지 낭비를 줄이는 소비를 하려고 해 왔기 때문에. 그러다 보니 패시브하우스 설계 경험이 있는 건축사사무소를 찾아야 했고, 위치나 그간 포트폴리오를 고려해 결국 한 군데로 결론이 났다. 설계비가 비싼 편이라 약간 망설이긴 했지만, 설계가 끝난 지금은 그 설계비가 전혀 아깝지 않다.


어떻게 하면 집을 잘 지을 수 있을까

전설처럼 떠 도는 "집 지으면 10년 늙는다"는 말은 우리나라 건축계의 어쩔 수 없는 환경 때문이지만, 요즘 보면 건축계에서도 이를 바꾸려고 노력 중인 것 같다. 그중 하나가 "정확하고 세밀한 설계 도서로 문제를 방지하자"는 방식이다. 설계 도서가 세밀한 부분까지 명확히 표현하고, 시공사가 설계 도서대로 견적을 내고 시공한다면 시쳇말로 "눈탱이 맞는 일"이 벌어질 가능성을 낮출 수 있다는 게 요지다.


그것만으로 다 될까?

한국패시브협회 유튜브 채널을 보면, 우리가 사는 집(주택이든 아파트든)이 얼마나 문제가 많은지 소름이 끼칠 정도다. 주택을 지으면 눈탱이를 맞는다는 건 여태 들어와서 알고 있겠지만, 아파트를 사도 결국 눈탱이를 맞는 건 똑같다. (물론 아파트는 언젠가 비싸게 팔 수 있으니 덜 아까울 순 있다) 특히 아파트는 내단열 구조라 정말 신경 써서 단열하지 않으면, 찬 공기가 들어오고 심각할 때는 결로도 생길 수 있다. 그저 뜯어보지 않아서 모르고 사는 것일 뿐이다.


나는 "정확하고 세밀한 설계 도서"외에 이 문제를 풀어낼 또 하나가 "패시브하우스"라고 생각한다. 사실 패시브하우스라고 무조건 좋은 것만은 아니다. 이것도 사람이 하는 일이고 사람이 하다 보면 결국 예전 관습이 끼어들 수밖에 없을 테니까. 하지만 패시브하우스가 되려면, 사용하는 자재나 건축 방식이 규격을 따라야 하며 최종적으로 기밀도를 측정해 합격해야 한다. 말인즉, 시공사가 아무리 대충 하고 싶어도 합격점을 넘기 위해서 어떤 부분만큼은 반드시 제대로 해야 한다는 것이다. 숫자는 거짓말을 하지 않는다. 패시브하우스가 되면 정성적인 집 짓기가 정량적인 결과물을 낼 수 있다.


어차피 나도 집 짓기는 처음이다. 정말 눈탱이 맞지 않고 잘 짓게 될지는 모르지만, 초보 건축주가 할 수 있는 최소한의 안전장치–명확한 설계 도서를 만들어줄 건축사사무소를 찾고, 패시브하우스 규격을 따르게 하는 일–는 해뒀다고 생각한다.


설계 기간에 한 일

우리 집 설계는 9개월 가까이 걸렸다. 물론 그 기간 내내 설계만 한 것은 아니다. 건축 허가받는 시간, 패시브하우스 검토 시간, 시공사 선정 도중에 발생한 설계 변경 적용 시간까지 들어가다 보니 시간이 더 길어졌을 뿐, 우리 의견을 전달한 후 최종 형태를 결정하기까지 걸린 시간은 약 6개월 정도였다.


이전 포스팅에 썼다시피, 내겐 이미 명확한 요구 사항이 있었다.

모든 공간에 내벽을 최소화. 스튜디오처럼 한 공간으로 만들 것

방은 1층에 하나, 2층에 하나면 충분

마당은 크지 않아도 됨

지하에는 차 2대 이상 주차 가능하되 서로 방해받지 않고 출입하게끔

형태를 스케치업으로 대강 만들어보기도 했지만, 설계할 때 그걸 들이밀지는 않았다. 보여주기가 부끄럽기도 하고, 내 생각에 갇히기보단 완전히 새로운 그림이 나오는 걸 더 기대했기 때문이다.

결과를 보고 나니 역시 잘한 일이었다. 이래서 전문가에게 맡겨야 하나 보다 싶었다. 땅 아까우니까 건폐율을 최대한 사용해서 방이나 주방을 아무렇게나 늘어놓은 나와는 달리, 방향, 이웃집과의 간섭, 공간 비율과 형태의 아름다움을 전부 고려해서 그린 그림이 나왔으니까.

IMG_1527.png
IMG_1529.png
IMG_1528.png
1차 설계안. 왼쪽부터 지하, 1층, 2층

생각지도 못한 지하층 선큰이라든가, 사선으로 마무리한 1층 외벽, 2층 베란다 같은 것들이 그렇다. 지하 선큰이나 베란다는 갖고 싶긴 했지만 공간 낭비라는 생각이 들어서 내 계획에는 넣지 않았었다. 하지만 막상 설계안에 나온 걸 보면 역시 넣는 쪽이 예쁘다.


설계 도중에 건축주가 해야 할 일 중에 가장 중요한 것은, 이렇게 설계안이 나왔을 때 내가 어디까지 받아들일 수 있는지 결정하고, 받아들일 것은 받아들이고 거부할 것은 명확히 거부하는 것이다.

일단 남편과 나는 지하층과 1층은 전부 마음에 들어서 그대로 받아들였고, 2층은 본래 우리 생각대로 방 하나만 남기기로 했다. 가장 고민한 건 베란다였다. 있으면 참 좋은데, 뭐라 말할 수 없이 좋은데, 저만한 공간을 포기하면서까지 있는 게 좋을까? 고민 끝에 베란다는 없애되, 2층 일부에 다락을 설치해서 하늘을 볼 수 있게 하면 어떨까 제안했다.

우리 건축사님은 이 의견을 듣고 비상한 아이디어를 내셨다. 바로 3층!

3층이 올라간 우리 집 모양

우리 집터 건축법에는 집을 최대 3층까지 올릴 수 있단다. 이웃집 대부분이 2층에 다락을 올린 형태여서 3층은 생각지도 못했는데. 3층을 올리는 순간 2층에 베란다를 못 만들어 아쉬웠던 점이 전부 해결되고, 심지어 공간마저 하나 더 생겨서 일석이조였다. 게다가 보기 싫은 경사 지붕을 살짝 숨길 수도 있다.

물론, 한 층을 더 올리려면 돈이 많이 든다는 것이 크나큰 단점이었다. (각 층 층고가 낮아지는 단점도 있지만, 우리에겐 별로 중요하지 않았다)


결국 모든 게 돈으로 귀결되는 게 안타깝지만, 세상 이치가 그런 걸 어쩌나.

설계를 하면서 이것저것 추가하다 보면 저도 모르게 예산을 넘기게 된다고 들었다. 우리는 가능한 예산을 지키려 애썼고, 가능한 추가하기보단 없애는 쪽으로 가닥을 잡았지만 3층은 포기할 수 없는 매력을 가진 공간이라 이번만큼은 예외로 두기로 했다. 이렇게 해서 우리 집은 지하 1층, 지상 3층짜리 큰 집이 되었다.


빼는 것이 미학

건축사님과 처음 상담하면서 들은 이야기 중 가장 기억에 남는 건 "더하는 것보다 빼는 것이 어렵다"였다. 처음 집 짓는 사람은(알다시피 집 짓는 사람은 대부분 처음이다) 내 집에 환상이 있는 데다 인생에 하나뿐인 기회라 생각해서 온갖 것을 다 넣고 싶어 한다. 그러다 보면 내 집만의 독특함은 사라지고 이것저것 짬뽕된 결과물이 나오기 마련. 그래서 내 집의 컨셉을 먼저 정하고, 그 컨셉에 맞지 않는 것은 과감하게 뺄 줄 알아야 특색 있는 집이 된다.


우리 집 설계에선 그걸 잘했을까?

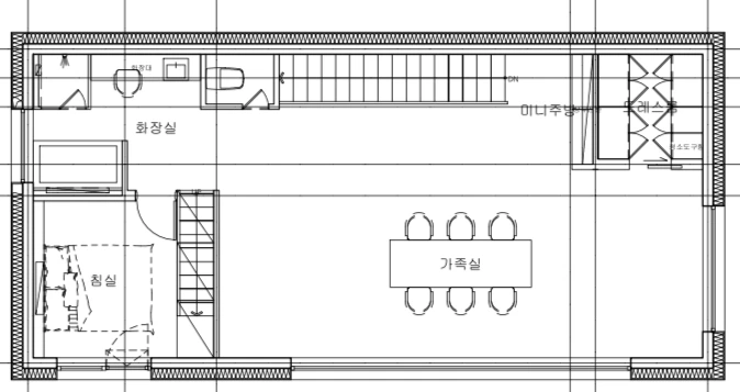
처음에는 2층에 미니 주방을 만들려고 했다. 아무래도 2층을 주로 쓸 텐데, 층계를 오르락내리락하면서 커피를 만드는 게 귀찮을 것 같았고, 주방 만드는 김에 와인도 마시고 간식도 먹을 수 있게 공간을 크게 만들어서 바처럼 쓰면 좋겠다 싶어서.

그런데, 크지도 않은 2층에 침실, 드레스룸, 큰 욕실까지 만들어놓고 미니 주방까지 욱여넣으려고 보니 너무나 답답해 보여서 영 맘에 들지 않았다. 결국 과감하게 미니 주방을 빼고 드레스룸을 그쪽으로 옮겼더니 그보다 더 좋을 수 없더라. 평생 한 번 지을까 말까 하는 집에서 하나를 빼는 건 아쉽기 그지없는 일이지만 때론 그 순간의 선택이 평생 살 집의 이미지를 바꿀 수도 있다.

IMG_36B2EF88745E-1.jpeg
IMG_32D6C1A92935-1.jpeg
미니 주방을 욱여넣었을 때(좌)와 과감히 뺐을 때(우)


keyword
매거진의 이전글스케치업으로 집 기획하기