우리 건축 이야기. 15

마루

by Atticus


대청에 앉아 맞는 시원한 바람.



이 문장만 봐도 대청에 앉아서 시원한 바람을 맞는 모습이 상상되지 않으신가요?? 벌써 8년도 더 된 이야기입니다. 날씨가 더운 어느 날, 충청남도 논산에 있는 명재고택에 갔을 때입니다. 우리나라에서 참 좋은 건물 중에 하나라고 생각하는 곳을 가서인지 정말 열심히 돌아다니면서 사진을 찍고 있었죠 그러다 땀도 많이 흘리고, 힘이 들어 잠시 쉴 곳을 찾다가 사랑채의 대청에 걸쳐 앉았는데, 그때 저를 감싸고 지나가는 시원한 바람. 그 바람을 아직도 잊지 못하겠습니다. 이마에 맺힌 땀을 씻어주는 바람은 시원했고, 포근한 느낌이었습니다. 마루를 생각하면 항상 그 바람의 느낌이 따라옵니다. 오늘은 마루, 그중에서도 큰 마루라는 뜻을 가진 대청을 중심으로 이야기해 보려고 합니다.




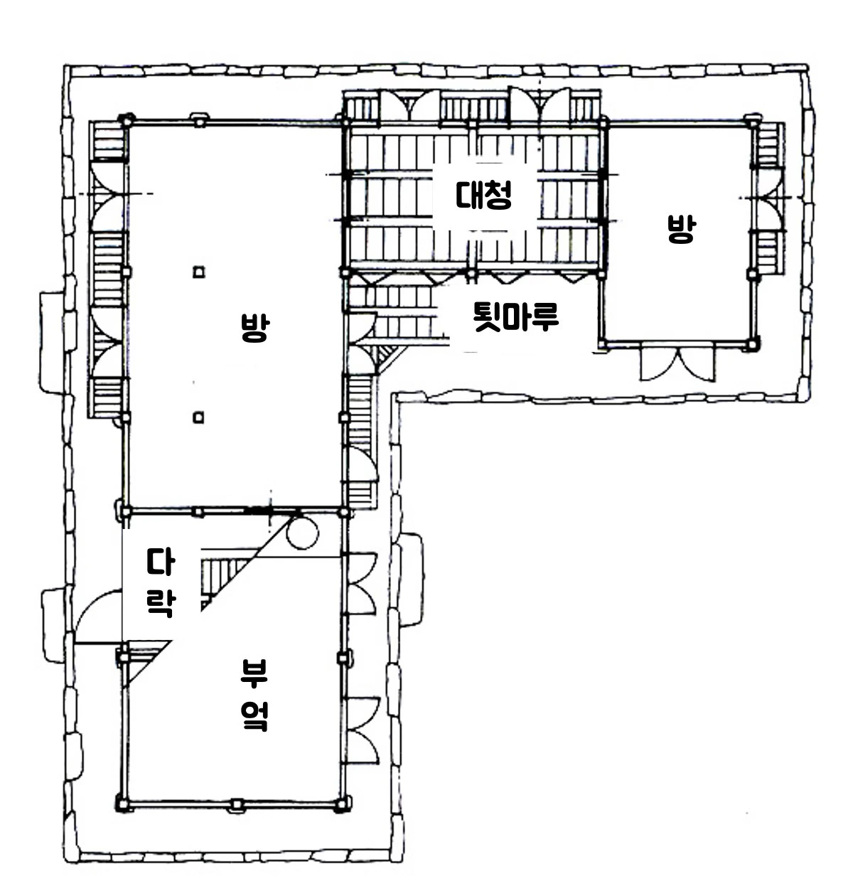
일반적인 주택의 평면.

바로 앞에 쓴 '우리 건축 이야기 14.' 주인공 온돌은 날씨가 추운 지방의 산물이고, 마루는 날씨가 더운 지방의 산물입니다. 고려시대 후기에 와서 온돌이 실내 전면에 깔리게 되고, 아궁이가 난방과 취사를 겸하면서 자연스럽게 부엌은 방과 결합이 됩니다. 그리고 마루 역시 고려시대에 오면 널리 일반화됩니다. 그러다가 고려시대 후기에 이르러 정반대의 성향을 가진 두 개의 평면은 결합을 하게 됩니다. 추운 곳의 산물과 더운 곳의 산물이 드라마틱하게 만나게 된 것입니다. 그리고 조선시대에 오면 아주 규모가 작은 집을 제외하고는 부엌, 온돌방, 마루가 한 지붕 아래에 놓이게 되는, 아주 독특한 평면이 만들어지게 됩니다. 이 평면이야 말로 우리 전통건축이 가지고 있는 고유한 특성이라고 할 수 있습니다.



tempImage4q2nvh.heic 논산 명재고택 안채 대청
tempImagePutIgn.heic 명재고택 사랑채 대청. 이곳이 마루에 대한 특별한 기억




대청은 벽체가 없어 외부라고 할 수 있지만, 집 안에 있기 때문에 내부이기도 합니다. 즉, 외부와 내부가 공존하는 공간입니다. 그리고 대청은 한가운데에 놓여 개방감을 주고 있습니다. 대청은 날씨가 더운 날 시원하게 지낼 수 있는 공간을 제공하지만, 그 역할만 한 것은 아닙니다. 대청은 또 하나 중요한 역할을 했는데, 넓은 공간을 이용해 집안의 각종 의례를 행하는 장소로 사용된 것입니다. 조선시대는 성리학이 기본이 된 유교 사회였습니다. 불교의 생활이 남아있던 조선 초기에는 잘 지켜지지 않았지만, 시간이 지날수록 유교적 예절은 지배층의 생활에 정착되었고, 일반 주택에도 강한 영향을 미쳤습니다. 집안에 가묘를 모시고 제사를 지내는 것을 물론이고, 유교와 관련한 다른 행사들도 늘어났는데, 이런 의식이 주로 집안의 대청과 마당에서 치러졌습니다. 그래서 대청의 기능이 유교의 정착에 따라 대단히 중요하게 되었습니다. 조선중기 이후의 사대부집을 보면 최소한 대청이 두 칸을 유지하고 있고, 세 칸을 가지고 있는 모습도 보이고 있습니다. 사계절이 뚜렷한 우리나라에서, 날씨가 추워지면 이용할 수 없는 대청이 집 전체의 면적에 비해 많은 규모를 차지하게 된 것입니다.



tempImagexa3Aqs.heic 사진 출처 : 김동옥, 한국건축의 역사, 기문당


또한 대청은 성주신(城主神)이 모셔져 있는 곳이기도 합니다. 혹시 영화 "신과 함께"를 보셨나요?? 1편에서 엔딩 크레딧이 올라가고 쿠키 영상이 나오는데, 망자를 데리로 온 저승사자가 이야기합니다. "네가 골칫덩어리 성주신이냐??" 그리자 마동석이 씩 웃으며 등장합니다. 그리고 이어지는 2편에서 염라대왕이 말합니다. 이미 저승에 데리고 왔어야 할 사람인데, 망자를 지켜주는 가택신이 있다고, 그리고 수많은 저승사자를 보냈지만 다시 돌아온 저승사자는 없다고 합니다. 그 가택신이 바로 마동석이 맡았던 성주신입니다. 그만큼 성주신의 힘이 셌다는 걸 보여주고 있습니다. 그도 그럴 것이 성주신은 한국의 가신(家神) 신앙에서 집의 건물과 가족을 수호하는 최고의 신으로, 집안의 길흉화복을 관장하는 가신(家神) 중 맨 윗자리를 차지합니다. 그 성주신을 모시는 곳이 바로 대청이고, 성주신에게 제사를 지내는 곳도 대청입니다. 상량도리나 대들보에 모시기도 하고, 단지 형태로 해서 마루의 구석에 모시기도 합니다. "신과 함께" 영화에서도 철거를 한 사람들에 의해 성주 단지가 깨어지자 성주신은 힘을 잃고 소멸되는 모습을 보여줍니다.




대청마루의 구조에 대해서 잠깐 이야기해 보려고 합니다. 대청의 마루는 우물마루라고 하는데, 우물 정(井)을 닮았다고 해서 붙여진 이름입니다. 우물마루는 건물 기둥의 앞 뒤로 길고 두툼한 나무를 건너지르고(장귀틀), 앞 뒤로 건너지른 나무 사이사이에 짧고 두툼한 나무를 놓아 마루의 틀을 만듭니다(동귀틀). 이렇게 놓고 보면 진짜 '우물 정' 자를 나타내고 있네요. 그리고 그 사이사이에 얇게 켠 나무를 끼워 넣는데, 이 얇게 켠 나무를 마루 청판이라고 합니다. 한옥을 새로 지으면 이 마루 청판이 좀 까다롭습니다. 물론 완전히 마른나무를 사용하면 아무 문제가 없지만, 대개는 마르지 않은 생나무로 새로 짓게 됩니다. 생나무는 마를 때까지 수축과 팽창을 합니다. 장귀틀과 동귀틀은 두툼한 부재를 사용하기 때문에 큰 문제가 없지만, 마루 청판은 얇고 넓게 켜서 여러 장을 붙이기 때문에 변형이 되기 쉽습니다. 그래서 계절에 따라 시공을 달리 해야 합니다. 여름에 시공을 하게 되면 빡빡하게 붙여도 됩니다. 아무리 딱 맞게 시공해도 겨울이 되면 수축이 돼서 느슨해져 있습니다. 그리고 겨울에 시공하면 빡빡하게 붙여서는 안 됩니다. 겨울에 시공할 때 틈 없이 딱 맞게 시공하면 여름이 돼서 팽창을 하여 마루 청판이 들뜨는 참사가 일어나게 됩니다. 그래서 계절에 따라 시공을 해야 하며, 대체적으로 2~3년 정도 되면 마루 청판은 마르기 때문에 그때 최종적으로 손을 보면 이후에는 큰 문제는 없습니다.


그림1.jpg
20241226_141016.jpg




한 겨울에 대청마루에 신발을 벗고 올라가 본 적이 있으신 분들은 공감을 하실 겁니다. 진짜 잠시만 위에 있어도 발이 꽁꽁 얼어붙을 것만 같은 차가움입니다. 우리 어르신들도 여름에는 시원해서 좋지만 겨울에 쓰기는 안 좋다고 생각하셨을 겁니다. 그래서 개항을 하고 나서 근대적인 재료가 우리나라에 들어왔을 때 우리 전통건축은 대청마루에 유리문을 끼우는 것으로 변화됩니다. 전면이 훤히 트인 조망을 포기할 수는 없고, 너무 추운 것도 싫은 상황에서 유리는 훌륭한 대안이 되었을 것이지요. 그래서 그때 지어지는 주거 건물이나, 혹은 수선한 건물은 대청마루에 유리를 끼우게 됩니다. 대청에 유리문을 둠으로써 전과 같은 개방감을 사라지고 말았습니다. 하지만 사람이 사는 곳인 만큼 불편한 부분은 바뀌면서 변화하는 게 주택이라 어쩔 수 없는 부분인 것 같습니다. 이건 요즘 지어지는 한옥도 마찬가지인데요. 요즘 지어지는 한옥 중에 대청을 둔 한옥은 거의 없을 겁니다. 건축비도 비싼데 한 겨울에는 쓰지도 못하는 공간을 쉽게 만들 수 없는 것이겠죠. 그래서 이제 대청이 있는 한옥은 문화재에서 밖에 볼 수 없습니다. 이해는 하지만 예전 건물에서 보는 청량함이 사라져 아쉬운 마음이 드는 건 어쩔 수 없습니다.



tempImagepQJQDC.heic 아산 윤보선가옥
tempImagesTReDU.heic 태안 동문리 근대한옥




대청은 일반적으로 천장을 하지 않습니다. 연등천장이라고 하죠. 그래서 대청에 누워 있으면 대들보, 서까래 등 목구조가 노출되어 보는 맛이 있습니다. 그리고 천장을 하지 않기 때문에 개방감이 있어 답답함이 없습니다. 일반 주택의 안채 대청마루는 폐쇄적인 공간이기에 시선이 차단되지만, 사랑채의 대청이나, 경사진 지형을 이용해서 공간을 만드는 서원이나 향교의 대청 앉으면, 건물을 조성하였던 사람이 무엇을 보고 싶었는지 알 수 있습니다. 천장이 없는 개방감과 확 트인 전망으로 인해 그 어디서도 느낄 수 없는 청량감을 느낄 수 있습니다. 그러다가 혹 바람이라도 살랑 불어오면 잠시라도 딴 세상에 온 것 같은 느낌을 받을 수 있지요. 다른 건 필요 없습니다. 병산서원의 입교당 대청에 앉아 만대루를 바라는 그 풍경 하나로 모든 것이 설명이 됩니다. 무더운 여름날이 어느새 지나가고, 드디어 선선한 바람이 부는 가을입니다. 선선한 바람이 부니 명재고택에 앉아서 맞았던 바람이 생각났고, 그 기억이 마루에 대한 글로 이어졌습니다. 여러분들도 대청에 앉아 가을바람을 맞는 호사를 누려보시길 바랍니다.



tempImagejPvggz.heic 병산서원 입교당 대청에서 바라본 만대루






*글 쓰는데 도움받은 책

김동욱, 『개정 한국건축의 역사』, 기문당, 2007.