두 번째 도면을 받다

두 가구가 함께 사는 집은 공용공간과 사적공간의 경계가 중요하다

by 히포동굴

첫 번째 도면 피드백 이후 10일이 지나 두 번째 도면을 받았다. 이번에도 옵션은 두 개. 우리에게 설명해주시는 모양새를 보니 건축 사무소 내부에서 두 팀이 경쟁입찰(?) 형식으로 안을 발전시키는 것 같다. 역시 경쟁이 최선의 안을 만들어내는 방식이려나? 마케팅 일 할 때 대행사 분들이 경쟁PT하던 모습이 떠올라 사뭇 건축사무소 직원분들의 노고에 감사하는 마음을 가지고 제안주신 내용들을 살펴보았다.



옵션1.


처음 보자마자 계단으로 층 간 연결되는 부분이 뻥 뚫려있어서 눈길을 사로잡았던 집. 마당도 완전 가족만을위한 마당과 이웃들에게 살짝쿵 오픈된 마당 두 개가 있다. 2층에 테라스 및 창가 Window seat로 며느리인 내 입장에서 #nook 한 공간까지 구비되어 있다.


다만 공용공간인 거실/주방과 개인 공간들이 아파트마냥 붙어있다. 이럴거면 아파트 1,2층에 사는 것이 낫지 않을까? 천창에서 내리쬐는 빛을 받으며 계단에 둘러앉아 이야기하고 노는 것이 좋아보이긴 했지만, 계속 보다보니 이건 집 안의 느낌이 아니라 마치 대학교 캠퍼스 노천극장 혹은 미술관 느낌이 강했다. 마당이 하나로 큰 게 아니라 애매하게 두 개로 나누어지고, 그 사이에 복도가 들어가니 오히려 죽는 공간이 많아지는 것 같기도 하고.


옵션1-1.JPG
옵션1-2.JPG
옵션1-3.JPG
계단부에 설치된 통창이 매력적인 집
옵션1-4.JPG
옵션1-5.JPG
1F/ 2F



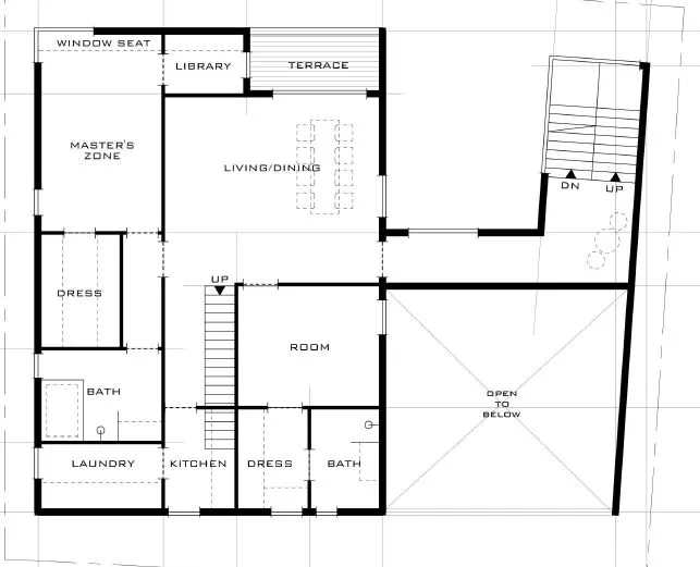
옵션2.


옵션1. 에 비해 단순한 집 구조인 듯 했으나 이 안에서 내가 움직이는 모습을 상상하니 오히려 더 다이나믹했던 집. 가장 좋았던 점은 가구원들의 공용 공간인 거실, 주방과 개개인의 사적인 공간이 동선 상 완전히 분리된다는 점이었다. 현관문을 하나 두기로 한 상태에서 집에 들어왔을 때, 다른 가구원들과 마주치지 않고 바로 나의 2층 공간으로 올라갈 수도 있고.



옵션2-2.JPG
옵션2-1.JPG
옵션2-3.JPG
공적공간, 사적공간이 명확히 분리가 되는 집


옵션2-4.JPG
옵션2-5.JPG
1F/2F




두 가구가 함께 사는 집은 공용공간과 사적공간의 경계가 중요하다.


역시 두 가구가 함께 사는 입장에서 집을 바라보다 보니 '따로 또 같이'가 얼마나 동선에 잘 반영되어 있는지를 가장 중점적으로 보게 된다. 그리고 첫 눈에 보았을 때 화려한 집과, 계속 보면 볼수록 편안한 집은 확실히 다르다. 이건 도면과 투시도를 보면서 그냥 상상으로 걸어봐도 느껴진다.


그래서인지 가족원들 모두 옵션 2. 안을 더 선호하였다. 다만 약간 아쉬운 부분들이 있어 & 옵션 1.에서도 차용하면 좋을 공간 아이디어들이 많아 이를 좀 더 보완해드릴 것을 요청하였다. 요청사항은 항상 서면으로 기록을 최대한 자세히 남기면서 진행하고 있다. 혹시나 모를 mis-communication 및 향후 문제 발생시 증빙할 수 있도록? 글로만 주루룩 쓰기에는 한계가 있어 #굿노트 어플도 활용하여 도면에 직접 표기도 하고 있다.여담이지만 아이패드를 산 지는 꽤 되었지만 요 근래 집짓기 프로젝트를 하면서 가장 잘 사용하는 듯 하다.



캡처1.JPG
캡처2.JPG
캡처3.JPG
건축사무소와 커뮤니케이션하는 방식.jpg



[1층] 공동거실+주방, 시부모님 안방 부

공동 거실-주방 부분의 폭을 좀 더 늘리기
현재 구획된 모양이 좁고 길쭉한 모양새인데, 공용 공간이다보니 더욱 널찍하고 컸으면 좋겠다. (지금 기준에서 1.3-1.5m 정도면 충분할 것 같다.) 이로 인해서 마당이 좁아져도 상관없다. (이미 마당은 충분히 넓다…!) 실 평수 기준에 37.7평으로 되어있어 1층의 내부 공간을 좀 더 넓혀도 건폐율 규정에 문제가 없을 듯 한데, 혹시 주차 확보 면적이 넓어져야 한다는 등의 제약사항이 있을지?


Utility room → 어머님 취미방 으로 바꾸기
입구에서 들어오는 부근에 작은 정원이 만들어진다면 현재 Utility room으로 되어있는 곳에서 그 정원을 바라보는 것이 정말 좋을 것 같다. 이 방을 세탁실 등의 방으로 쓰는 것은 너무 아깝기도 하고, 사실 세탁실이 그리 클 필요도 없다.(세탁/건조기 일체형에 세탁물들을 갤 수 있는 테이블 정도?) 이 방은 어머님이 원하시는 자그마한 취미방이 되면 좋겠다. 취미방 역시 클 필요 없이 2-3평 정도면 충분하고, 거기에는 피아노 및 각종 악기들/ 재봉틀이 들어갈 것이다.


안방 드레스룸 → 드레스룸+세탁실로
옷장도 이리 클 필요 없다. 차라리 옷장을 줄이고 그 자리에 세탁실을 넣는 것이 좋겠다.


안방의 위치가 소음에 취약할수도? 안방으로 잡힌 위치가 버스정류장/도로면에 가깝다. 이로 인한 소음이 우려되는데, 이를 해결할 수 있는 방안으로 어떤 것들이 있을지?


주차장부 → 원할 때는 동네에 오픈, 아닐 때는 창고로
아이들이 성장함에 따라 집 대문 앞에 각종 탈 것들이 자리잡게 될 것이다. 집안의 쓰레기 등도 버리기 전에 잠시 보관할 야외공간이 있으면 좋겠는데 지금 이 주차장 부가 제격으로 보인다. 다만 동네 주민들과 마실할 수 있는 공간으로도 활용하길 원하기 때문에 필요에 따라 폐쇄/개방형 구조로 바뀔 수 있는 주차장 영역이 되면 좋겠다.


1층 → 2층으로 올라가는 계단/창문의 모습
(기존) 1층의 한 면은 공용공간 & 다른 한 면은 아버님어머님 안방영역 / 2층은 자녀내외 공간
(변경) 2층 역시 한 면은 자녀내외 공간 / 다른 한 면은 아이방 및 게스트룸으로 공용공간화


2층 역시 일부분 공용공간으로 변경함에 따라 1-2층이 연결되는 계단으로 올라갈 때 지금처럼 완전 단절된 구조가 아니라 좀 더 시원한 뷰가 펼쳐지면 좋겠다. 다만 여전히 대문에서 들어오자마자 2층으로 올라가는 동선을 희망하기도 한다. 이 두 가지가 같이 충족될 수 있는 계단/창문 모습에 어떤 것이 있을지?


[2층] 자녀내외부+아이방


2층 역시 공용부/사적인 영역 두 부분으로 나누어 사용한다. 공용부에는 아이들 방이 위치한다. 손주들 입장에서야 할아버지 할머니가 자유롭게 올라오시는 게 큰 부담이 없을 것이다. 아이들 방 중 하나는 게스트룸처럼 사용할 수 있다.


안방 사이즈 늘리기
2층 역시 드레스룸이 클 필요가 없다. 이에 드레스룸을 줄이고 안방 사이즈가 넓어지면 좋겠다.


며느리 개인 취미공간 & 테라스
1층의 공용부 폭이 넓어진다면 2층 역시 넓어질 터. 이에 그 부분에 며느리의 개인 취미공간과 테라스가 설치되면 좋겠다. 이 쪽 공간은 옵션 1 에서 제안주셨던 공간들이 잘 녹아들면 좋겠다. 며느리는 원채 숨는 것을 좋아하는 사람이다.


[3층] 다락방(a.k.a 아지트)

다락방은 하늘을 바라보며 놀 수 있는 아지트가 되었으면 좋겠다.

아버님에게는 발사믹식초를 보관할 수 있는 공간, 자녀내외&아이들에게는 놀이공간, 가족 모두에게는 루프탑 등에서 고기를 구워먹을 수 있는 공간이 될 것이다. 1,2층 공용공간에서 퇴출(?!)된 TV와 소파가 이 층에 위치할 수도 있겠다.




건축비 걱정이 몰려온다...


원하는 공간들을 열심히 다 확보하고 나니 집의 크기가 어마무시하게 커져가고 있다. 일면 만족스러우면서도 (거거익선?!) 실제 거주했을 때 청소는 어떻게 할지 걱정이 되기 시작했다. (아이를 키우면서 처음으로 full time #전업주부 라이프를 경험하고 있는데, 하루 종일 집에 있어도 정말 바쁘다. 지금 사는 집 - 30평이 채 되지 않음 - 을 청소하고 관리하면서 아이를 케어하다 보면 하루 금방 간다)


그러나 가장 큰 걱정은 뭐니뭐니해도 건축비... 원래 전체 실 면적을 80평 좀 안되게 생각하고 도면 구상을 시작하였는데, 이번에 받은 옵션기준으로 본다면 다락방까지 해서 전체 실사용면적이 112평이나 된다...! 과연... 괜찮을까...?



#집짓기 #주택 #따로또같이 #시월드 #두가구한지붕 #건축사무소 #설계도면 #건축비




keyword
매거진의 이전글타협안, 그리고 두 번째 도면 요청