가족에 라이프 스타일에 꼭 맞는 2층 단독주택

울산 울주군 서생면 단독주택 기본설계

by 집을 그리는 사람

설계를 의뢰한 가족은 남편과 아내 5살 남자 꼬마 아이 이렇게 세 식구입니다. 그리고 친척들이 주말에 자주 방문하여 1층에는 손님방이 필요하다는 요구 조건이 있었습니다.

구석구석 수납공간이 충분하고 아이방은 층고를 높게 하여 복층구조로 사용하고 공부방과 놀이방 그리고 가족실 등 여러 가지 용도로 사용할 수 있기를 바랐습니다.



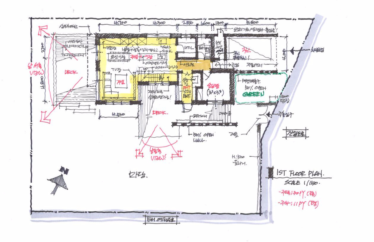
지상 1층 평면도 (1차 평면계획)

002_1층 평면도.jpg

손님을 자주 맞이하고 5살 자녀를 돌보아야 하는 아내를 위해서 집의 중심에 주방을 두어 집안과 마당 전체를 둘러볼 수 있도록 하였습니다. 설거지를 하면서 마당을 볼 수 있으며 온 가족과 친지들이 모였을 때 다 같이 식사할 수 있는 넉넉한 식당을 계획했습니다. 집안 곳곳이 수납공간을 충분하게 마련했습니다.


주차장에서 비를 맞지 않고 집안으로 들어올 수 있도록 하였고 보일러실을 겸한 주차장용 부속창고를 설계했습니다.



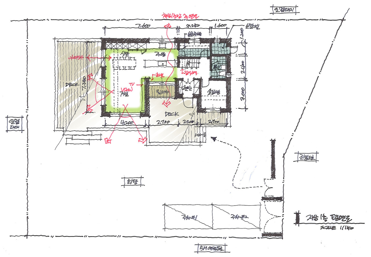
지상 2층 평면도 (1차 평면계획)

003_2층 평면도.jpg

계단으로 2층을 올라서면 가족실과 데크를 첫 번째로 맞이합니다. 가족들이 요구한 2층 가족실에 간이 주방 공간을 마련하였고 아이와 함께 목욕을 즐기는 가족을 위해 남쪽에 욕실을 두고 물놀이하면서 데크로 나와 일광욕을 즐길 수 있도록 배려하였습니다. 데크 남쪽 벽은 가족의 사생활 보호를 위해 적당히 가려주었습니다.




지상 1층 평면도 (2차 평면계획)

008_3차 평면계획_1층 평면도.jpg

1차 평면계획에서 가족들이 원하는 내용을 부족함 없이 담다 보니 40평형 규모의 주택이 되어 주어진 예산을 초과하였습니다. 꼭 필요한 본래의 기능과 중요한 요구 사항을 다시 점검하고 줄일 수 있는 공간은 줄여서 설계를 다듬어 나갔습니다.




지상 2층 평면도 (2차 평면계획)

009_3차 평면계획_2층 평면도.jpg



지상 3층 평면도 (2차 평면계획)

010_3차 평면계획_3층 평면도.jpg


남서측 조감도

015_3d image_남쪽에서 바라본 전경.jpg



남동측 조감도

016_3d image_동쪽에서 바라본 전경.jpg


남서측 투시도

014_3d image_남쪽에서 바라본 전경_눈높이.jpg





설계문의 jwi7270@naver.com

keyword
매거진의 이전글중정이 있는 전원주택