협소주택 설계 이야기 1

by 집을 그리는 사람

협소한 대지에 주택설계를 의뢰한 부부는 주생활 공간과 부부공간 그리고 자녀공간을 3개 층에 나누어 계획해 달라 요청하였습니다. 불편함을 다소 감안해서라도 3개층으로 공간을 나누면 각 층에서는 여유있게 지낼 수 있겠다는 생각이었습니다.



06_150610_콩콩둘 주택_평면제안(1F).jpg

1층 평면도 입니다. 1층 에서는 현관과 계단을 중심으로 거실과 식당, 주방을 공간을 나누었습니다. 계단과 욕실 그리고 다용도실은 컴팩트하게 계획한 덕분에 나머지 공간들이 제대로 갖추어져 있습니다.

협소한 공간임에도 불구하고 현관에는 양면에 수납장이 있고 주방에는 냉장고 2대가 들어갈 수 있는 넉넉하게 계획하였습니다.



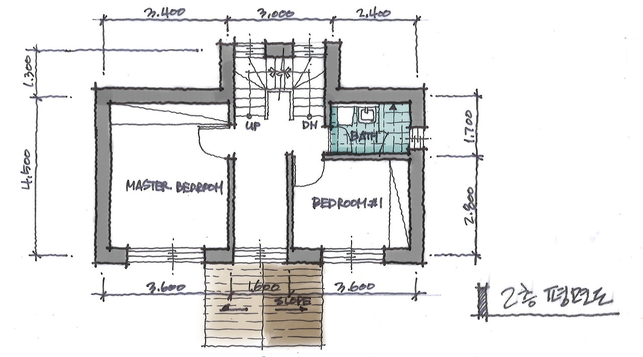
06_150610_콩콩둘 주택_평면제안(2F).jpg

2층에는 안방과 침실을 두었습니다. 돌음 계단 사이에 책장이나 장식장을 둔다면 두 침실 사이 공간을 협소하지만 책을 읽거나 휴식할 수 있습니다. 침실 벽은 가변형 구조로 하여 필요하면 안방에 딸린 드레스룸이나 서재로도 활용할 수 있습니다.


06_150610_콩콩둘 주택_평면제안(3F).jpg

어린 자녀를 위한 다락방에는 넓직한 테라스를 두어 마음껏 뛰어놀 수 있게 하였습니다. 다락방의 천정고를 1.8m이내로 한다면 바닥면적에서 제외되고 제대로 된 방의 구조를 원하면 바닥면적에 산입하고 천정고를 높일 수도 있습니다. 다락방을 제외한다면 27평이고 다락방을 포함하면 32평 규모입니다.




06_150610_콩콩둘 주택_평면제안(3D_Sketch)_006.jpg






설계문의 jwi7270@naver.com


keyword
매거진의 이전글공간의 낭비가 없는 일자형 주택 2