공간의 낭비가 없는 일자형 주택 2

군산시 개정면 단독주택 설계

by 집을 그리는 사람

대지는 2개의 도로에 접해있고 남쪽으로 널찍한 마당을 둘 수 있는 땅입니다. 동측에 면한 도로는 넓고 차들이 꽤 왕래하는 도로인지라 대지의 남쪽과 서쪽 방향을 가족들이 주로 생활하는 공간으로 사용하는 것이 처음 생각이었습니다. 건축주와 대화를 통해 설계는 2번 이루어졌고 각각의 계획안을 소개해 드립니다.




1층 평면도 (첫 번째 설계안)

공간의 낭비가 없도록 평면은 최대한 사각형 형태를 유지하였습니다.


침실 2는 안방과 거실 양쪽 방향으로 확장이 가능하도록 공간의 구조를 반듯하게 맞추었습니다.


거실, 주방, 식당 공간은 4.5m 폭으로 공간을 맞추어 집안에 들어섰을 때 최대한 넓게 보이도록 하였습니다.


그리고 주방 왼 편에는 가족들만 이용할 수 있는 야외식당을 두었습니다.



조감도 (첫 번째 설계안)

2층에는 다락방을 두었고 다락방 앞에는 10평 규모의 야외 테라스를 두었습니다.


동측 도로로부터 주택의 거실과 외부공간 마당이 보호될 수 있도록 주차장과 외부 담장으로 적당하게 가려주었습니다.


1층 내부 구조를 볼 수 있습니다. 거실에서 안방까지 전면에는 테라스를 두어 마당과 친근하게 보이도록 하였습니다.


2층 다락방 내부 구조입니다.




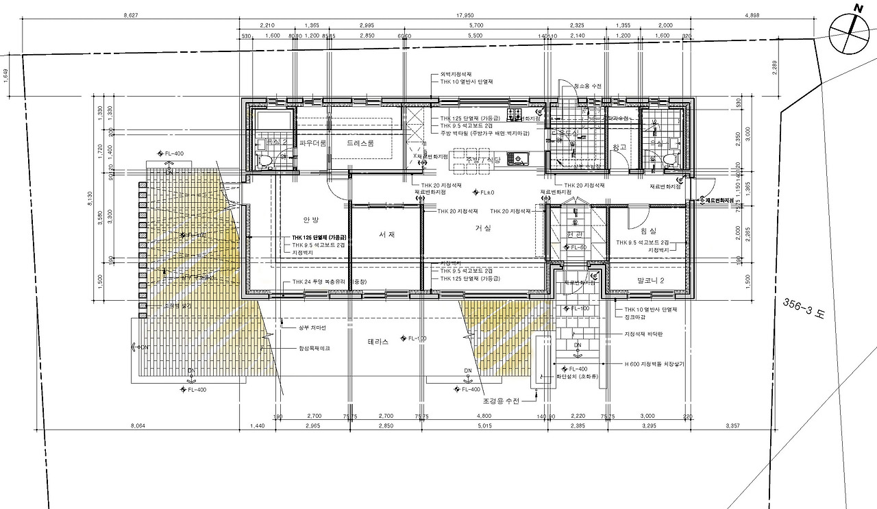
1층 평면도 (확장 전) _ 두 번째 설계안

건축주와 얘기하면서 집의 내부구조를 최대한 심플하게 해달라는 것과 안방이 너무 노출되어 있다는 의견을 받았습니다. 대안으로 평면에서 움푹 들어간 야외식당을 없애고 안방 앞 테라스 왼편으로 반쯤 가릴 수 있는 벽을 세웠습니다. 확장 후 집을 넓게 쓸 수 있도록 발코니를 많이 두었고 확장 전 평면도는 30평으로 하였습니다.



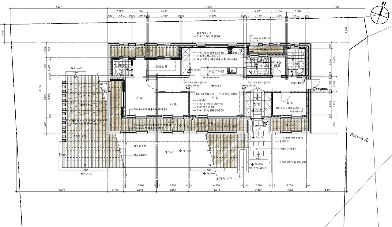
1층 평면도 (확장 후) _ 두 번째 설계안

확장 후 평면의 형태는 비로소 공간의 낭비가 없는 일자형 주택이 되었습니다.



조감도 (두 번째 설계안)

두 번째 설계를 하면서 공사비에 부담이 되어 2층의 다락방과 테라스는 없어졌습니다.


안방 앞에 반쯤 보이는 가벽을 두고 상부에는 정자 느낌이 들 수 있도록 목재 파골라를 계획하였습니다.


지붕은 징크 재료로 제안하였고 안방 쪽으로 지붕을 살짝 들어 올려 포인트를 주었습니다. 거실과 안방 위로는 처마를 두어 비를 맞지 않고 테라스를 이용할 수 있도록 하였습니다.




설계문의 jwi7270@naver.com

keyword
매거진의 이전글공간의 낭비가 없는 일자형 주택 1