brunch
매거진 인테리어

대형헬스장 인테리어 도면 작업기

인더스트리얼한 스타일의 대형 헬스장 투시도 작업기

by 백실장

안녕하세요 오랫만에 돌아온 백실장입니다:)

드디어 작업물들을 정리하고 있어서 하나씩 공개 중입니다. ^^;;

이번 작업은 벌써 작업한지 6개월이 넘어가는 작업인데요,

인더스트리얼 스타일의 대형 헬스장 인테리어 도면 작업기입니다,

이미 헬스장을 여러군데 운영하시는 근육질의 멋진 사장님께서는 본래 있던 컨셉을 타 지점에 옮기시면서 3D도면의 필요성을 백실장의 브런치를 통해 느끼시고 직접 공사를 도면을 가지고 수월하게 진행하고 싶어하시어 연락을 주게 되셨다고 하셨습니다, 실 도면을 짜며 당연히 레이아웃이 다르기 때문에,조금씩 변경되는 부분은 원래의 디자인에 벗어나지 않도록 신경쓰며 작업을 하여드렸습니다.

대형헬스장 인테리어에는 기구가 대부분 들어가므로 타 인테리어와 달리 벽이 없는 넓직한 공간들이 많이 생기기에, 평당으로 치면 당연히 단가가 낮아지게 되고, 바닥과 천정 거울등에 조금씩 포인트들을 내며 저렴하면서도 큰 포인트를 주는 형식으로 많이들 진행이 되시게 됩니다.

연락을 받은 후 사장님을 뵙고 필요한 상세 부분들을 듣고 난 뒤 , 현재 진행할 공간을 실측하고, 시공되어 있는 완성물을 보고 사진을 찍는 순서로 작업을 진행하게 됩니다.

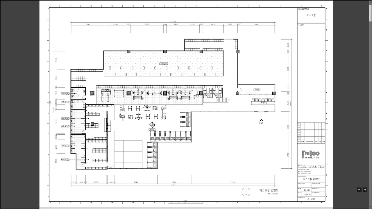
인더스트리얼 스타일의 대형 헬스장 인테리어 도면




# What is this room for?

제목 없음-1.jpg


아이소메트릭과 캐드도면을 보며 대형 헬스장 인테리어 안에 무엇이 들어갔는지, 살펴볼까요 ?

1.카운터


2.미팅,상담실


3.거울장양면락커


4.운동공간


5.세면대밑남녀탈의실복도


6.락커룸


7.샤워장


8.스크린골프존


9.개인락커룸


대형헬스장인테리어아이소메트릭 (4).jpg .

입구부분의 아이소메트릭입니다


전체적인 이번 대형 헬스장 인테리어의 컨셉은 노출콘크리트를 살린 인더스트리얼과 컨테이너,

h빔의 믹스였습니다, 이전 완성되있는 헬스장에 가서 인테리어 내용을 확인하니 백실장에 일전에 작업했던 대형 헬스장과 포인트들이 비슷한 부분이 많아 헬스장 인테리어가 인더스트리얼이 대세이구나 하는 것을 다시 한번 느꼈습니다

firstgyminner3d (3).jpg
firstgyminner3d (2).jpg
미팅룸, 바닥에서 단을 띄워 컨테이너 모양의 문을 만들고 밑은 창고공간으로, 윗층은 상담공간으로 활용하셨다.

샤워실 들어가기전 간편히 손을 씻을 수 있는 세면다이도 노출 시멘트를 그대로 이용한 스타일로 만들어 러프한인더스트리얼 스타일의 대형 헬스장 인테리어 느낌을 그대로 살린 것이 보입니다

분전반에 들어가는 전체 메인 전기라인도 노출파이프관과 곤지레다를 이용하여 ,

천정으로 이어지도록 디자인을 잡은 모습입니다

firstgyminner3d (6).jpg
firstgyminner3d (9).jpg
firstgyminner3d (8).jpg

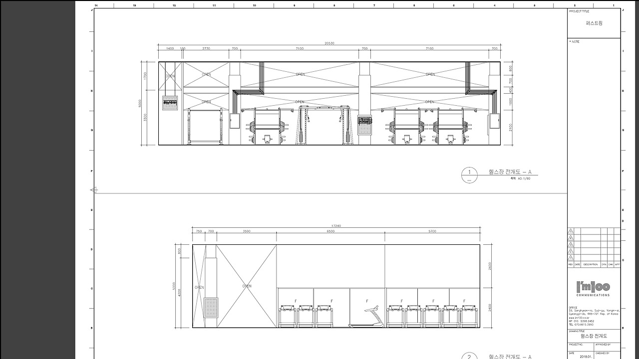
인더스트리얼 스타일의 대형 헬스장 인테리어 내부 홀 운동공간의 모습입니다,

바닥은 에버롤과 탄성고무매트가 깔렸습니다

firstgyminner3d (11).jpg
firstgyminner3d (12).jpg

컨테이너 모양의 메인 카운터 아트홀과 벽면 노출 파이프로 이루어진

인더스트리얼한 스타일의 조명의 모습입니다

인더스트리얼 스타일의 대형 헬스장 인테리어컨셉에

걸맞는 포인트가 되도록 갓등에 챠콜색상 도색을 한 모습입니다

내부의 락커룸 내부 파우더존 경대 역시 노출파이프를 이용하여 노출전구와 함께 인더스트리얼한 느낌을 표현하여 주었습니다

firstgyminner3d (16).jpg
firstgyminner3d (15).jpg
firstgyminner3d (18).jpg

이상 인더스트리얼 스타일의 대형 헬스장 인테리어 도면 작업 건이였습니다,

보통 작업기간에 대해서 백실장에게 전화가 오면 많이들 여쭈어 보십니다.

인테리어 디자인을 세세하게 처음부터 짜는 작업이 아닌, 계획이 곳곳에 이미 정해져있거나, 이번작업처럼 원래 있는 작업을 새로운 레이아웃에 적용시키며 3d도면으로 표현만 하는 경우에는 시간이 디자인을 짤때처럼 많이 걸리지 않고 1주일 내외로 끝납니다.캐드도면 작업 역시도 평수는 많지만 1주일 정도내외로 끝납니다.

2.jpg


이번 헬스장 인테리어는 사장님께서 3d도면과 캐드도면을 가지고 수월히 진행하셨으리라 믿습니다,

잘 완공하셨기를 바라며, 다음시간에는 또 다른 작업물로 찾아뵙겠습니다 :)


백실장의 다른 작업도 궁금하시다면 ~!

https://brunch.co.kr/@paikmh77/16

keyword
매거진의 이전글미용실 인테리어 작업기