brunch
매거진 인테리어

사무실 인테리어 작업기

베트남 공유사무실 디자인 기획

by 백실장

상업공간 인테리어 디자인 기획과 시공, 브랜딩을 전문으로 하고 있는, 아임백커뮤니케이션즈의 백민형 실장입니다:) 오늘은 2019년 작업했던 베트남의 사무실 인테리어 디자인 기획 작업건에 대해 써보려합니다


베트남 사무실 인테리어 3D 투시도 디자인 기획 작업기



설계 IM100 COMMUNICATIONS


디자인 아임백 커뮤니케이션즈


위치 베트남


면적 약330㎡


바닥 테라조 포세린타일


벽체 테라조 타일,도색,화이트모자이크타일,우드시트

사무실 인테리어_공유사무실


이번 작업은 2019년 베트남에 공유 사무실 사업을 오픈하시는 판교의 it기업에서 의뢰를 받은 일이였습니다. 사무실 인테리어의 전반적인 인테리어 디자인 기획과 현지 사람들이 이해할 수 있는, 3D 투시도를 만드는 (인테리어3d)작업이었습니다.

상호는 이미 정해져있었고, 디자인은 포트폴리오를 보시고 자유롭게 해달라는 말씀에 간만에 제약이 많이 없이 즐겁게 작업했던 기억이 납니다.

이렇게 3D 투시도로 내부 인테리어 기획작업을 완료한 상태로 시공팀을 만나면 대화도 견적도 수월해지고, 이렇게 해외작업에도 의사소통이 원할히 진행될 수 있습니다.

현재는 이런 소호사무실들이 아주 많지만 이때 작업할 즈음만 해도 이 정도로 많진 않았고, 베트남에는 특히나 아직은 활성화 되지 않았을 것 이란 생각이 들었다.공유 사무실인테리어 였기에, 일하는 사람들에겐 리프레쉬되고 ,일반 사무실처럼 틀에 박힌 듯한 지루함이 해소될 수 있었으면 하였고,이 곳에 입주하려는 이유는 사람들끼리의 네트워크와 기존 사무실들의 열악함 때문에 오는것이라 판단하였습니다. 미팅오는 사람들에게는 재미있지만 가볍지는 않은, 신뢰있는 느낌과, 여기 있는 사람들과 일하게되면 결과물이 좋겠다. 여기 입주하는 사람들은 센스가 있겠다.라는 느낌을 간접적으로 주기 위해 노력하며 작업을 진행하였습니다.





# Concept

이번 사무실인테리어 는 DREAM STATION 이라는 네이밍이 이미 정해져있었고 ,

그에 맞는 내부 공간디자인을 만들어 주었어야 했습니다.

사무실 인테리어 이기에 리프레쉬,신뢰(깔끔 정돈) 재미,위트가 있지만 , 너무 산만하여 신뢰감을 깨는 디자인은 피해야한다고 판단하였습니다 . 그러므로 미니멀함과, 그래픽등을 섞은, 그리고 station 이라는 스토리를 세련되게 해석할만한 사무실 인테리어 공간이 나와야하였었습니다 . 신뢰감을 줄 수 있는, 볼드한 폰트들을 예시로 넣어보았고, 모노톤의 컬러감을 섞어보았습니다.

공유오피스인테리어 (10).jpg


# What is this room for?

이번 #사무실인테리어 에는 어떤 용도의 방들이 필요한지 보겠습니다.


1.입구 (엘레베이터에서 내리게되면 바로 입주사들 소개를 아날로그한 카드 게시판)

2.게스트 미팅 및 쉼터

3.리셉션

4.공유사무실 공용 바공간 , 붙박이 의자와 메인 중앙 롱 테이블,

5.소 회의실

6.유동적 대 회의실

7.공유오피스 좌석 공간


회사소개를 하는곳은 Departure,메인 리셉션은 ticket, 미팅룸은 Platform 등으로 오피스에 뻔하게 들어갈 공간 제목들을 역을 상상하게끔 하는 제목들로 바꾸어 주었습니다. dream station이라는 컨셉을 너무 드러내지 않으면서도 개념은 녹여낼 수 있는,너무 유치하지 않게끔 푼 방법이라 생각하였습니다. 그외에도 오브제들에 열차 내부모습,등을 상상할 수 있는 공간들과 역에 가면 있는 스펠링이 돌아가는 아날로그한 오브제등으로 간접적으로 Station을 풀어보았습니다 아래는 대기실로 열차(지하철) 내부의 모습을 형상화하여 풀어본 미니멀한 컨셉의 공간입니다.

사무실 인테리어 웨이팅 존 모습

전체적으로 천정고가 높은것을 살려주기위하여 그리드형 메쉬천정을 이용하였고, 테라조라는 하드하지 만 차갑지 않은 소재와 허리라인을 블랙으로 돌려 유니크함을 살려보았습니다. 중간 라운지에는 바리솔조명을 이용하여,차분하면서도 깔끔한 느낌을 살려보았습니다.

사무실 인테리어 투시도 홀의 모습

공유 사무실인테리어 내 공용 바 모습이다 리셉션과 같은 형식으로 천정을 쳐서 위쪽으로 폴리카보네이트를 간접조명과 함께 이용하여 모던한 컨셉안 포인트를 살려보았습니다. 동일한 컨셉의 메인등과 플렌테리어로 포인트를 주었습니다.

사무실 인테리어 내부 공용 바와 대 미팅실이 보이는 라운지의 모습입니다, 라운지는 소파존과 붙박이형 존을 나누어주는 테라조 조형의자와 함께 구성되었습니다. 뒷면에서는 바의 손님들이 기대설 수 있고 , 앞에선 앉아서 티테이블을 이용할 수 있도록 계획하였습니다.

공유오피스인테리어 (8).jpg
공유오피스인테리어 (7).jpg
사무실 인테리어 홀의 투시도 모습
공유오피스인테리어 (6).jpg
공유오피스인테리어 (5).jpg

사무실 인테리어 내부 회의실의 붙박이 의자겸 아트월을 담당하는 벽면과 테이블을 가변적으로 이용가능하도록 해야하여 이동식 테이블로 구성되었습니다.

로고에 녹여진 아치형태는 제일먼저 맞이하게 되는 입구쪽 엘레베이터 실에 겹겹이 풀어보았습니다. 엘레베이터에서 내리게되면 바로 입주사들 소개를 아날로그한 카드 게시판과 함께 드림스테이션 로고의 형태를 표현한 조형물을 만날 수 있습니다.

공유오피스인테리어 (15).jpg

아래로는 사무실 인테리어 내부 구조를 편히 볼 수 있는 아이소메트릭 뷰입니다.


공유사무실인테리어아이소 (5).jpg
공유사무실인테리어아이소 (6).jpg
공유사무실인테리어아이소 (7).jpg
공유사무실인테리어아이소 (8).jpg
사무실 인테리어 단면을 볼 수 있는 단면 렌더컷



image.png?type=w1



image.png?type=w1


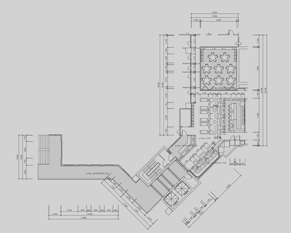
베트남 사무실인테리어 건에 간단하게 영어로 표기 해드린 평 입면도들입니다.3D 투시도와 함께 이 정도만 준비되어도 해외가서 대화가 수월할 것이라 생각이 듭니다.

제작년 작업이었고 많은 수정도 없이 수월히 마무리 되었던 작업이다. 현지에서 쓸 수 있는 타일 같은 것들을 후에 보여주셔서 초이스 해드렸던 기억이 납니다 . 앞으로도 승승장구하시길 바라며, 이번 사무실인테리어 작업편 글을 마치겠습니다.



아임백커뮤니케이션즈에서 작업한 또 다른 상업 인테리어 작업물들을 구경하실 수 있는 링크

https://brunch.co.kr/@paikmh77/24





keyword
매거진의 이전글코엑스coex 의류매장인테리어 시공 및 디자인 작업기