brunch

청담동 펜트하우스 프로젝트 입면자문 및 다이어그램 작업

by 글쓰는 건축가

안녕하세요. 글쓰는 건축가 김선동입니다.


제가 개인적으로 친분이 있는 시행사 대표님께서 청담동에 도시형 생활주택(다세대주택)을 시공하셔서

그에 대한 입면 자문 용역을 맡게 되었습니다.

이미 허가까지 진행되어 있는 프로젝트였는데

입면 재료와 창문 위치 등 제가 할 수 있는 선에서 조정하는 정도의 설계를 진행하였습니다.


기존의 설계는 입면 디자인을 그다지 크게 염두에 두지 않고 법규 준수와 최대 면적, 사업성 등에

중점을 둔 안이었습니다. 법규에 맞춘 기존의 안을 크게 흔들지 않는 선에서, 어떻게 건물의

인상을 만들지 고민하면서 시작하였습니다.




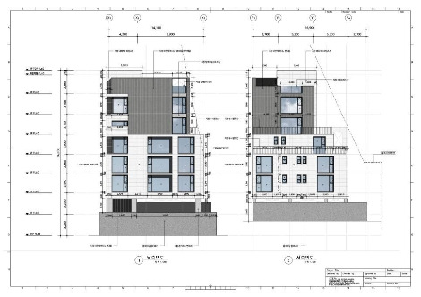
DESIGN PROCESS - 설계과정





초기 미팅 때 보여드렸던 자료입니다.

우선 하나의 메스가 아닌 상단, 중단, 하단의 3단 구성으로 메스를 분절하고 거기에 각각의 재료를

입혀서 입체감을 만들자는 것이 큰 아이디어였습니다.


가운데는 라임스톤 대리석 계열의 밝은 석재,

상단부와 하단부는 세로로 긴 마천석 계열의 어두운 석재로 제안 드렸는데요.

중단부가 너무 큰 메스로 보일 수 있어 가로로 긴 창호로 메스를 끊어주고, 5~6층 테라스 하우스 부분에

어두운 석재를 한번 더 써서 전체적으로 3개의 메스감으로 보이게 하고 싶었습니다.

주차장 측면 옹벽은 노출 콘크리트로 적용하였습니다.




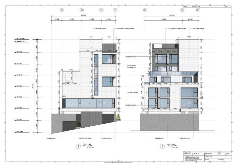
그 다음 미팅에서 중단부 석재가 좀 더 밝아지고, 상단부 재료가 럭스틸 칼라강판 재료의

골강판으로 바뀌었습니다.

주차장 측면 옹벽은 종석 뜯어내기 미장 마감을 제안드렸습니다.



입면도 컬러링 작업하여 전달드렸구요.



다음 미팅에서 상단부의 럭스틸 골강판 부분은 삭제되었습니다. 창호 크기도 미세하게 변경되었고,

북측 일조사선이날아오는 4층과 옥상 테라스 부분에 날개벽을 달아서 입면 요소를 추가하였습니다.





PERSEPECTIVE - 최종 투시도



Enscape_2022-05-04-18-07-30.png
Enscape_2022-05-04-18-15-16.png

이것이 최종안입니다. 법규상 옥상의 날개벽 적용이 힘들어 삭제되었고, 주차장 측벽에도 하단부의 어두운 석재를 적용하고 전망을 위한

개구부를 주었습니다. 초기 안에 비해 좀 더 정리되고 현실화된 느낌입니다.


이미 설계가 다 완료되어 허가까지 받은 프로젝트라 제가 제안드릴 수 있는 부분이

그렇게 많지는 않았습니다만, 청담동 도심의 맥락 속에서 이 건물이

어떻게 좋은 인상을 보여주도록 할지 고민했던 프로젝트입니다.

그러면서도 하이엔드 주거의 품격 내지는 고급 브랜드를 보여줄 수 있도록 노력 하였습니다.





DIAGRAM - 개념 다이어그램



아래는 별도로 작업한 동선 및 개념 다이어그램입니다.

세대와 주차장이 적층된 개념과 동선을 보여주려고 하였습니다.




현재 내부 수장 공사가 한창 진행 중입니다. 청담동의 품격을 반영한 주거공간으로

새로운 명소가 되길 기대합니다. 앞으로 공사가 진행되면 다시 포스팅하도록 하겠습니다.

감사합니다.






열린 설계와 소통으로 건축주, 시공사와 함께하는 건축을 만들어갑니다.

OPEN STUDIO ARCHITECTURE

글쓰는 건축가 김선동의 오픈스튜디오 건축사사무소


김선동

Kim Seondong

대표소장 / 건축사

Architect (KIRA)

M.010-2051-4980

EMAIL ratm820309@gmail.com

blog.naver.com/ratm820309

keyword
매거진의 이전글공동체에게 필요한 새로운 교회의 모습은?