빛의 IMPLUVIUM. 알베르토 캄포 바에자

그라나다 저축은행 본사

by ARQUI RYU
metalocus_campo-baeza_caja-granada_10.jpg

빛의 IMPLUVIUM. ALBERTO CAMPO BAEZA의 CAJA GENERAL DE AHORROS GRANADA 본사


건축가 : 알베르토 캄포 바에자.

발주처 : 그라나다의 일반 저축 은행.

건설회사 : OHL, LKS.

면적 : 40,000m².

일정 : 1992년 7월 21일 - 경연 대회 심사. 1998년 7월 18일 - 실행 프로젝트 납품.

1999년 2월 18일 – 건설 작업 시작 2001년 6월 21일 - 공식 취임식.

사진 : Hisao Suzuki, Fernando Alda, Duccio Malagamba, Alberto Piovano, Roland Halbe.



얼마전 2020년 국가건축상을 받았다. 스페인 건축에서 그의 작품 중 인정받고 상징적인 프로젝트 중 하나인 Caja General de Ahorros Granada의 중앙 본부를 알아보자.


그라나다에서 가장 중요한 은행인 이 저축은행의 본사는 도시 외곽에 위치해 있으며, 1992년 알베르토 캄포 바에자가 대회에서 우승한 후 2001 완공되었다.


metalocus_campo-baeza_caja-granada_01 (1).jpg
metalocus_campo-baeza_caja-granada_05.jpg
metalocus_campo-baeza_caja-granada_06.jpg
metalocus_campo-baeza_caja-granada_07.jpg
metalocus_campo-baeza_caja-granada_02.jpg
metalocus_campo-baeza_caja-granada_08.jpg
metalocus_campo-baeza_caja-granada_09.jpg
metalocus_campo-baeza_caja-granada_04.jpg

건축가의 참고 문헌을 사용하여 이 프로젝트는 내부에 햇빛을 가두는 지각 상자를 만들고 입체적, 폐쇄적, 돌과 콘크리트 상자로, 효율적인 "빛의 임플루비움"의 공간이 만들어졌다.


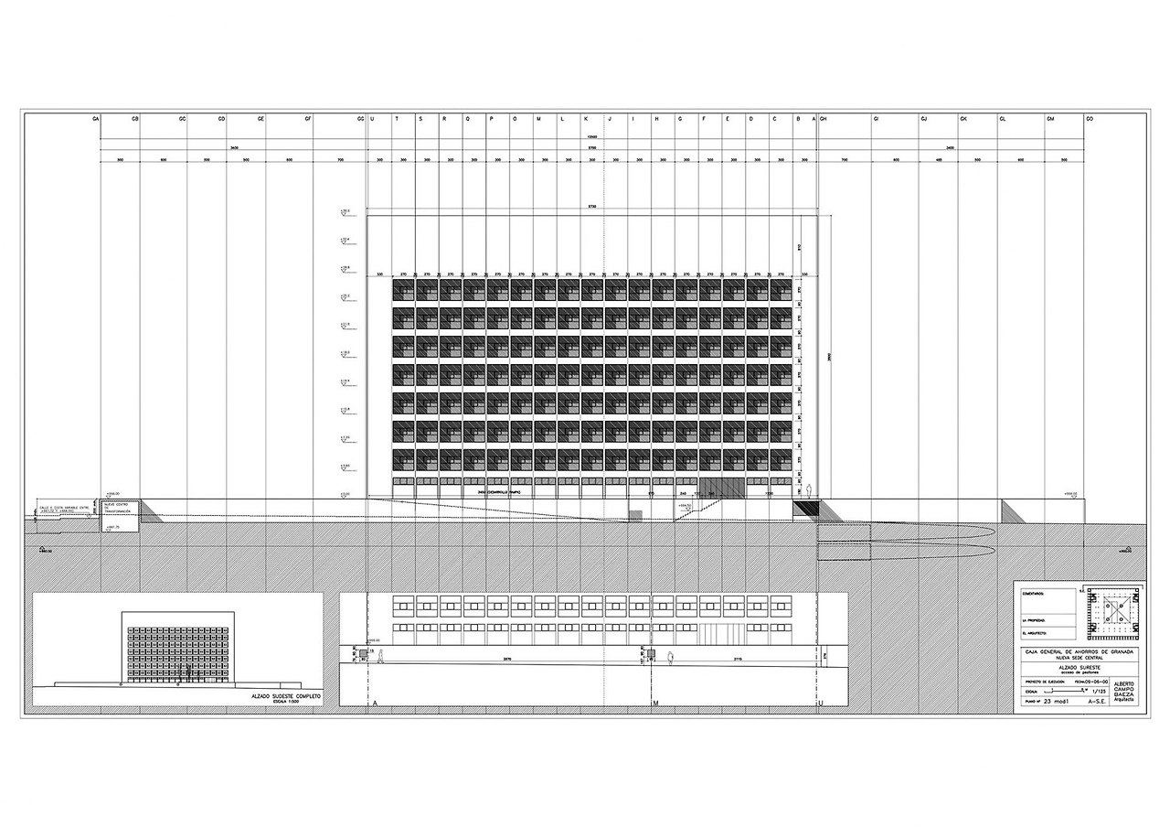
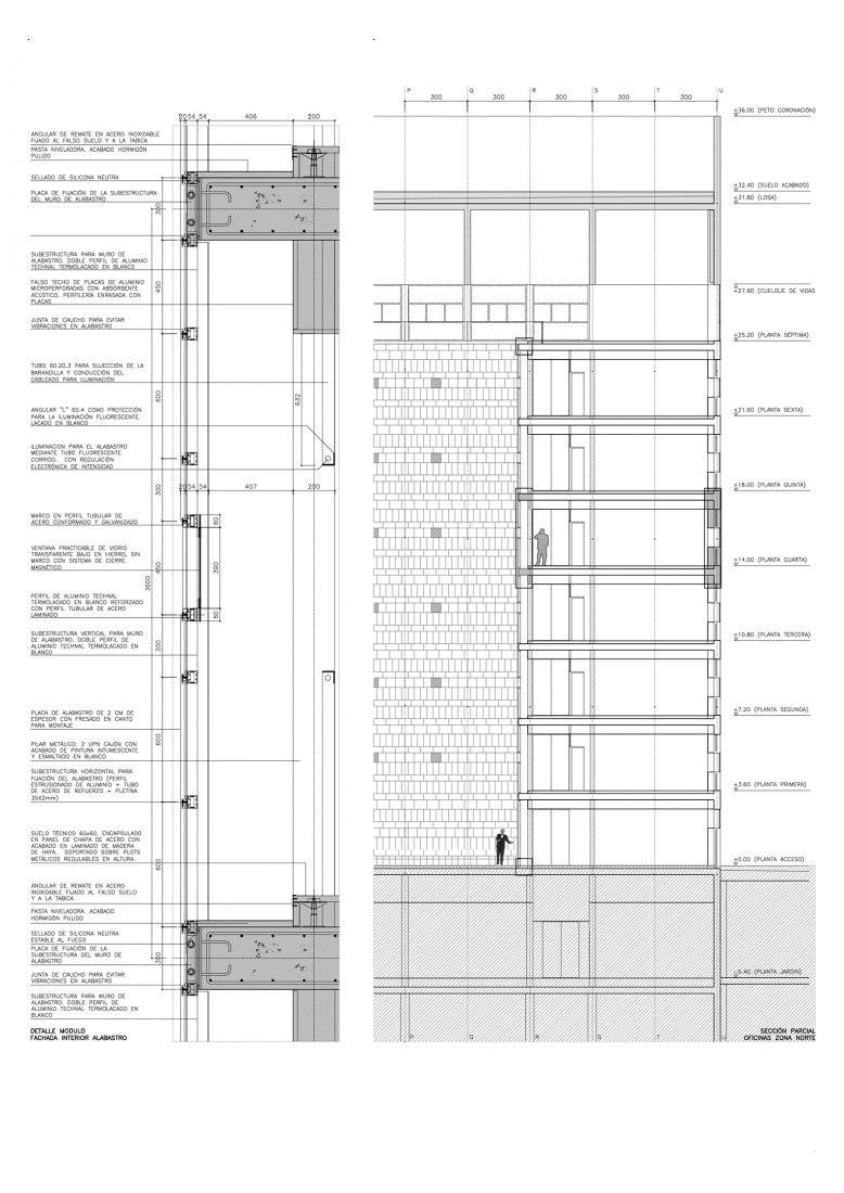
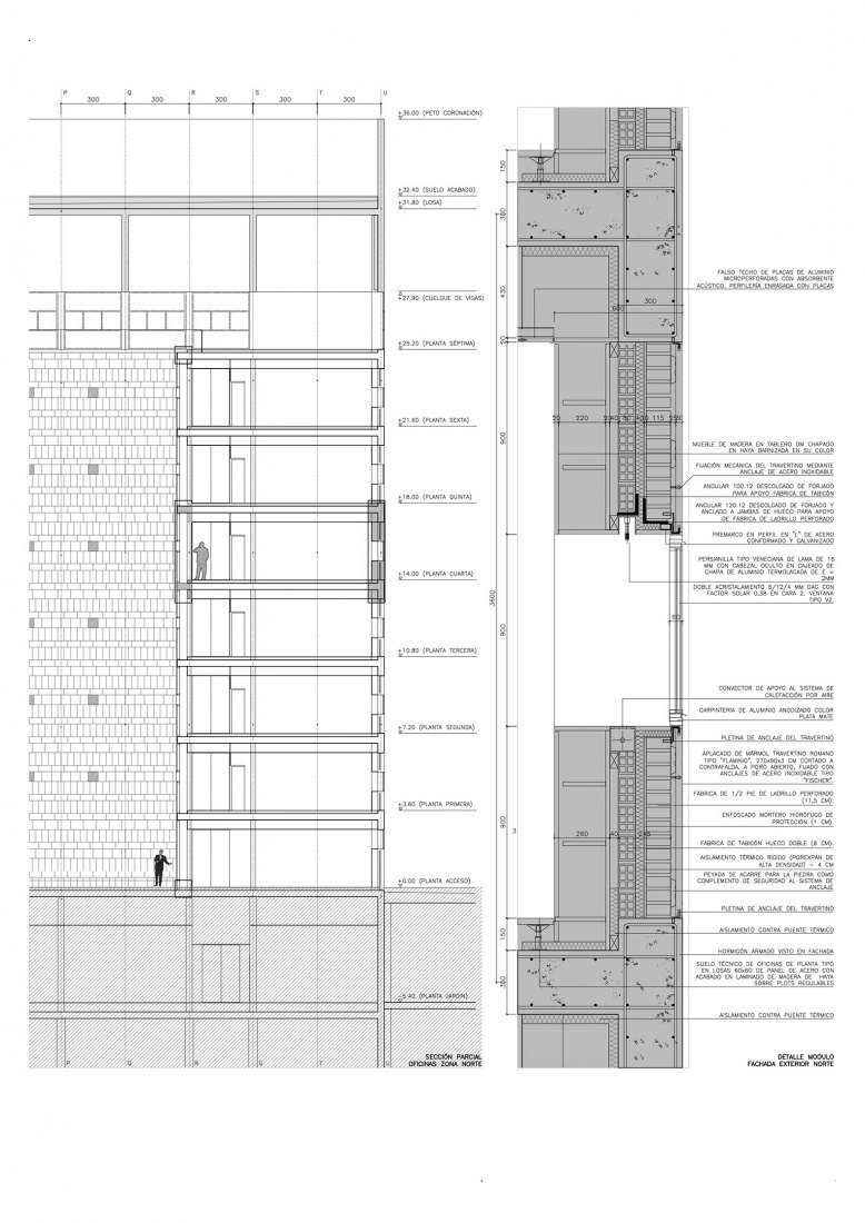
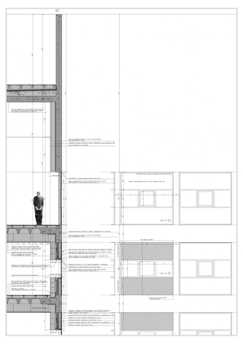
도시의 강한 햇빛을 조절하고, 그것을 격자 구조물로 치고, 조절하고, 내부 중앙 홀로 더 부드럽고 따뜻한 빛으로 바꾼다. Alberto Campo Baeza의 프로젝트에서 볼륨이 큰 세미 큐빅은 이 도시의 새로운 부분을 긴장시키는 참조 역할을 한다. 캄포 바에자는 이 프로젝트에서 건물의 거대한 볼륨의 세미 큐빅은 이 도시의 외곽을 좀 더 밀도 있고 긴장감을 높여 준다. 부지의 경사도를 1층의 높이에서 해결하기 위해, 큐빅 조각이 있는 부지와 접하는 두 도로 사이를 기반으로 조성된다. 입체 상자는 3x3x3 미터의 철근 콘크리트 격자로 제작되어 빛을 모으는 메커니즘 역할을 하었다. 두 개의 남쪽 면은 "브리즈 솔레일"로 작용하며, 두 개의 북쪽 면은 수평으로 된 돌과 유리로 구분되는 균질하고 연속적인 빛을 받는다.

metalocus_campo-baeza_caja-granada_11.jpg
metalocus_campo-baeza_caja-granada_13.jpg
metalocus_campo-baeza_caja-granada_15.jpg
metalocus_campo-baeza_caja-granada_16.jpg
metalocus_campo-baeza_caja-granada_14.jpg
metalocus_campo-baeza_caja-granada_18.jpg
metalocus_campo-baeza_caja-granada_22.jpg
metalocus_campo-baeza_caja-granada_20.jpg
metalocus_campo-baeza_caja-granada_12.jpg
metalocus_campo-baeza_caja-granada_23.jpg
metalocus_campo-baeza_caja-granada_17.jpg
metalocus_campo-baeza_caja-granada_24.jpg
metalocus_campo-baeza_caja-granada_19.jpg
metalocus_campo-baeza_caja-granada_28.jpg
metalocus_campo-baeza_caja-granada_25.jpg
metalocus_campo-baeza_caja-granada_29.jpg
metalocus_campo-baeza_caja-granada_26.jpg
metalocus_campo-baeza_caja-granada_27.jpg
metalocus_campo-baeza_caja-granada_21.jpg

매스 개념은 아주 간단하다. 큰 정육면체 덩어리가 두 개의 안뜰 옆에 있는 단상에 세워져 있다. 이 연단에서는 주차장, 아카이브와 데이터 처리 센터가 있고, 정육면체의 중앙 테라스에 있는 사무실들은 7층으로 구성되어 있다. 큐브는 이 건물의 중심 테마인 빛을 모으는 메커니즘 역할을 하는 지붕의 3 x 3 x 3m 철근 콘크리트 프레임으로 지어졌습니다. 남쪽의 두 면은 "브리즈 솔레일"로 기능하며 그 강력한 빛으로 열린 사무실 공간을 비춥니다. 개별 사무실의 두 개의 북쪽 면은 그 방향의 전형적인 균질하고 연속적인 빛을 받고 돌과 유리로 된 장식을 통해 외부와 차단한다.


metalocus_campo-baeza_caja-granada_67.jpg
metalocus_campo-baeza_caja-granada_72.jpg
metalocus_campo-baeza_caja-granada_69.jpg
metalocus_campo-baeza_caja-granada_70.jpg
metalocus_campo-baeza_caja-granada_74_0.jpg
metalocus_campo-baeza_caja-granada_65.jpg
metalocus_campo-baeza_caja-granada_68.jpg
metalocus_campo-baeza_caja-granada_66.jpg
metalocus_campo-baeza_caja-granada_75_0.jpg
metalocus_campo-baeza_caja-granada_73_0.jpg
metalocus_campo-baeza_caja-granada_71.jpg

진정한 "빛의 임플루비움"인 중앙의 내부 파티오는 천창을 통해 안달루시아의 강한 태양빛을 모아 남쪽으로 열려 있는 이면 복도의 벽에 반사시키고, 북쪽을 향한 복도에 열려 있는 사무실의 조도를 증가시킨다. 지붕은 4 개의 커다란 노출 콘크리트 기둥으로 지지된다. 기능적으로 건물은 매우 콤팩트하고 유연하며 단순하다.



간단히 말해서, 건물 안에서 일어나는 기능을 만들기 위해 "빛의 임플루비움"에서 햇빛을 가두어 놓는 콘크리트와 돌로 만든 상자이다.

그라나다 대성당의 스케일을 그대로 가져와 이 대 공간을 만들었다.



마드리드 건축가 RYU



https://youtu.be/4qTEOEFqNEs


keyword
매거진의 이전글사자와 건축